Варианты самодельных станков
Оптимальным вариантом будет применение шкива с несколькими ручьями, что даст возможность отрегулировать скорость (тогда вы сможете работать с материалами, которые разные по твердости). По аналогичной схеме можно сделать и присадочный станок. Просверлить отверстия небольшого диаметра можно даже на маленьком станке, который сделан из старого микроскопа, а на нем установлен электрический двигатель со старого магнитофона.
Единственной трудностью будет подбор подходящего патрона. Сверлильный станок поможет в ощутимой мере облегчить жизнь, и даже простейшее самодельное устройство, которое сделано на основе электрического двигателя, может открыть перед ним новые горизонты. Просверлить металл, дерево, проделать пазы и сделать предмет мебели – это будет возможным со сверлильным станком, сделать своими руками который не составит труда.
Конструкция станка для сверлильных работ
Несмотря на то, что конструкция агрегата кажется сложной, состоит он всего из четырех деталей.
Основные части сверлильного станка:
- двигатель;
- передаточный механизм;
- рабочий орган;
- орган управления.
В таком устройстве электрический мотор с помощью передаточного механизма передает движение к рабочему органу, которым является сверло. Рабочий орган крепится в патрон, который насажен на вращающийся вал (шпиндель).
К шпинделю вращение передается посредством ременной передачи. Используя реечную передачу, патрон со сверлом можно поднимать и опускать, повернув для этого рукоятку.
Орган управления агрегата находится на передней панели станка, на которой располагаются кнопки включения и выключения электродвигателя. В зависимости от необходимого направления вращения сверла, станок включается с помощью любой из крайних кнопок. Выключить устройство можно нажатием средней красной кнопки.
К основанию оборудования неподвижно монтируется вертикальный винт-колонна. Для перемещения вокруг него шпиндельной бабки используется одна из рукояток. С помощью второй рукоятки шпиндельная бабка фиксируется в нужном положении. Станки оснащаются специальной шкалой, на которой отражается глубина глухих отверстий.
Скорость сверления устанавливается в зависимости от того, какой материал имеет обрабатываемая заготовка. Для этого на шкив определенного диаметра перебрасывается ремень ременной передачи, и устанавливается определенная частота вращения шпенделя.
Описанная конструкция станка является одной из самых простых. На производстве чаще всего устанавливаются сверлильные агрегаты с более сложными схемами.
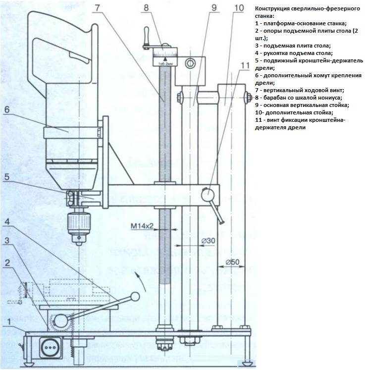
Основные части сверлильного станка
Станок сверлильный, значит, предполагается использование дрели в сборе с или быстрозажимным. Инструмент должен крепиться на надёжной вертикальной стойке и иметь свободу перемещения вверх-вниз. Стойка должна быть вертикально установлена и закреплена на массивной плите снизу, которую называют станиной. Инструмент прост в описании, но чтобы добиться точности выполнения операций, необходимо создать хорошо выверенную конструкцию. В специальных изданиях и интернете можно найти чертежи сверлильного станка из дрели своими руками из различных материалов.
Сверление сопровождается сильной вибрацией. Мелкие сотрясения разрушают структуру материалов, точного выполнения операций достичь не удастся. Гасят вибрацию мягкие прокладки, которые монтируют в местах крепления инструмента и массивная станина – вибрационные волны глохнут. Способствует мелкой дрожи инструмента плохая сборка, нарушение центровки, смещение центра тяжести. Все движущиеся части самодельного сверлильного станка из дрели подгоняются потно, с минимальными зазорами.
Самодельный сверлильный мини станок для PCB
При изготовлении двухсторонних миниатюрных печатных плат в домашних условиях трудно обойтись без высокоточного сверлильного станка. Особенно непросто, если есть необходимость сверлить отверстия сверлами диаметром около 0,5 мм в больших количествах, да так чтобы соблюдать соосность верхнего и нижнего слоя платы.
Сильно заморачиваться для изготовления станка мне совершенно не хотелось, да и не знал получится ли в итоге что-то годное, поэтому решил импровизировать и не особо заморачивался с его внешним видом. В итоге получилась довольно простая конструкция, пригодная для быстрого повторения почти в любых условиях.
Видео по сборке самодельного миниатюрного сверлильного станка.

Основные узлы
Независимо от сложности, обусловленной необходимостью решения тех или иных технических задач, каждый самодельный сверлильный станок содержит в своей конструкции следующие основные узлы:
- станина;
- электродвигатель;
- патрон для сверла;
- передаточный механизм;
- органы управления и измерительное оборудование.
Основным конструктивным элементом любого станочного оборудования является станина — массивный конструктивный узел, к которому крепятся все остальные детали. Как правило, в качестве станины используют массивную металлическую или деревянную плиту.
Патрон выполняет функцию держателя сверла, которое будет использовано в ходе сверления отверстий различных диаметров.
Электрический двигатель, получающий питание от бытовой сети, предназначен для создания вращающего момента и передачи его патрону через передаточный механизм.
Передаточный механизм позволяет уменьшать или увеличивать скорость вращения патрона при перестановке имеющегося в нем приводного ремня с одной пары шкивов на другую. Шкив для сверлильного станка можно взять от оборудования промышленного изготовления или сделать самостоятельно.
Измерительное оборудование представляет собой линейку, которая закреплена на вертикально движущейся части станка. При этом точка отсчета расположена на неподвижной части, а движущаяся совместно со сверлом вниз линейка указывает глубину высверливания глухого отверстия.
Виды сверлильных станков своими руками
Существуют различные виды сверлильных станков, сделанных в домашних условиях. Они различаются по: материалу изготовления, структуре, размерам.
И домашние мастера не перестают придумывать новые конструкции и подбирают размеры для сверлильных станков. Ведь не все изготавливают станки по уже готовым чертежам.
Вот некоторые самые популярные конструкции сверлильных станков:
Беспроводной станок из древесины. Эта конструкция хорошо подходит для портативного сверления больших изделий. Так как работа дрели в таком станке обеспечивается за счет аккумулятора, необходимо делать специальную деревянную коробку. Чертеж станка подгоняется самостоятельно под размеры встраиваемой дрели.
Мини сверлильный станок. Изготовление такого инструмента не отнимет много сил и времени. Данная конструкция считается наиболее экономичной, не требует большого количества материалов. Модель проектируется в зависимости от размера и формы дрели, закрепить саму дрель можно обыкновенными резиновыми жгутиками, либо кабельными стяжками.
Станок из пластиковых труб. Этот вариант хорош для тех, у кого после ремонта сантехники остались обрезки труб. В другом случае этот вариант является очень экономичным, так как трубы ПВХ стоят дешевле металла или дерева. Сделать его не так уж сложно, главное соблюдать пропорции и размеры.
Данные станки легко собираются, не дорого стоят и очень удобны. Но все же, чаще всего мастера предпочитают более классический вариант.
Сверлильный станок из дрели и алюминиевого профиля (своими руками)
В этом проекте использован алюминиевый профиль, что значительно повышает надежность станка и упрощает его сборку.
Так же для его изготовления вам понадобится дрель и дерево и неоткорые металлические запчасти.

Края профиля шлифуются, и нарезается внутренняя резьба:

Соединение профилей выполняется болтами:

Шпиндельная бабка будет скользить по стойке с помощью мебельных шариковых направляющих:

К шпиндельной бабке монтируется надежный держатель для дрели:

Перед началом работы на стол укладывается деревянная доска:

Источник фото: www.instructables.com/id/Drill-Press-DIY
Читать полностью (ссылка)
Дрель, как инструмент для станка
Чтобы, получился хороший сверлильный станок из дрели своими руками, конструкцию для этого инструмента, лучше делать настольную. При этом стоит избежать закрепления станка на столе. Электронная дрель, достаточно востребованный инструмент, поэтому он будет полезен, если сможет сниматься со станка. В этом случае, конструкция на столе будет лишней.
Настольный присадочный станок потребует таких материалов:
- станина 45х30 см, с закрепленной на ней вертикальной штангой;
- крепление для дрели, хорошо обхватывающее корпус инструмента;
- металлический ползунок, передвигающийся по штанге;
- колесо, играющее роль рычага;
- стальной трос, для контроля движения рычагом.
Для станины, лучше использовать металлический короб с толщиной стенок 3 мм. К коробу, приваривается стойка из квадратной трубы. Данная стойка будет служить штангой или штативом. Далее, на штатив следует прикрепить плотный ползунок, который будет удерживать держатель дрели и саму дрель.
Подобрать, точно подходящий ползунок будет сложно, поэтому его следует изготовить из металлических пластин. Свободного пространства между ползунком и штативом должно быть не более 0,5 мм, притом, что штатив будет идеально ровный.
Дальнейшая последовательность действий:
- ползунок делается высотой в 10–12 см;
- к нему, приваривается держатель для дрели с передней стороны и ушки для крепления колеса с задней стороны;
- в ушки, продевается стержень, к которому приварено колесо управления, и фиксируется шплинтом или приваренной гайкой;
- на стержень колеса, плотно наматывается стальной трос (не менее 6 витков), а оба конца троса надежно крепятся на верхней части штатива и на нижней. Таким образом, для передвижения ползунка по штативу потребуется усилие, а собственного веса (вместе с дрелью) не хватит, чтобы ползунок падал.
Бюджетный вариант – делаем станок из дрели за 300 рублей
А это необычный способ, и потратить нужно будет около 300 рублей. Так вы получите приспособление, которое сверлит под любым углом, от 45 до 90 градусов.
Итак, рассмотрим особенности такого устройства:
- Угол наклона. Для того, чтобы наклонять приспособление на требуемый угол сверления, будет достаточно раскрутить два зеленых рычажка сверху и по шкале выставить требуемый градус.
- Ограничение сверления. Если вы закрутите ручки ограничения на требуемой высоте, то можно будет ограничивать глубину, на которую сможет войти сверло.
- Фиксация. Приспособление можно зафиксировать в абсолютно любом положении на вертикальной плоскости. К примеру, это очень удобно, если меняешь сверла, чтобы дрель не опускалась вниз.
- Фиксирование на поверхности стола. Если можно зафиксировать подошву устройства на четыре самореза, к примеру, к столу, обязательно пользуйтесь такой возможностью. Такая функция будет очень удобной, если требуется просверлить много однотипных деталей.
- Подошва. Снизу есть углубление с шириной в 6 см, чтобы было удобнее устанавливать приспособление. В верхней части подошвы есть фаска с углом в 45 градусов с обеих сторон, и можно потребоваться сверление отверстия в ребре бруса квадратной формы.
В работе такое устройство простое и удобное. Это здорово поможет облегчить работы в мастерской, и при этом стоит сущие копейки.
( 5 оценок, среднее 4.8 из 5 )
Олег Сомов/ автор статьи
Что такое сверлильный станок и для чего он нужен
Просверлить тонкий материал не будет проблемой, достаточно взят дрель в руки, пару секунд и работа сделана. Но что делать, если вам очень нужно сделать точное и выверенное отверстие в толстом брусе? Ручные инструменты не подойдут, потому что есть большой риск испортить заготовку. Результатом такой работы будет смещение центра отверстия, появления рваного края и изменение геометрии. Избежать таких недочетов и сделать отверстие с определенными параметрами вам поможет именно сверлильный станок. За счет надежности фиксации детали, которую вы будете обрабатывать, а также центрованию инструмента получится обеспечить точность сверления, которой не добиться при работе дрелью.
Для того, чтобы сделать своими руками присадочный станок для мебели, потребуется доработать исходный инструмент. На изготовление не уйдет много времени и сил.
Не нужно забывать и про универсальность такого инструмента – при замене сверл вы сможете работать с абсолютно любыми материалами, и с мягкой древесиной, и с металлом, а также будет несложно просверлить листовую сталь. Вместо сверл можно использовать фрезу, и тогда устройство сможет заменить даже фрезерный станок с небольшой мощностью. Кроме того, сверлильный станок поможет облегчить труд мастеру. Поверьте, работать со стационарными устройствами намного проще, и не требуется удерживать на весу тяжелые инструменты.
Из чего он должен состоять
Элементарный агрегат можно сделать из обыкновенной дрели. Можно добавить к нему дополнительные устройства – например, фрезерный узел. Но каждый станок должен состоять из нескольких обязательных элементов: сверла, зенкера, развертки и метчика.
В промышленности встречаются множество типов сверлильных агрегатов – полуавтоматы, шпиндельные, вертикальные и другие. В быту чаще всего используется так называемый присадочный мини-агрегат со скромным набором выполняемых задач. Перед тем, как сделать самодельный сверлильный станок в домашних условиях, необходимо разобраться в функциях, основных элементах и общих принципах действия такого рода механизмов.
Вертикальный вариант станка.
Вертикально-сверлильный станок.
Настольный сверлильный мини-станок.
Сверлильный станок из дрели.
Из чего состоит сверлильный станок?
Общее устройство сверлильного станка.
По функциям самыми востребованными устройствами являются шпиндельные машины, главная функция которых – передача вращательного движения к обрабатываемым деталям. На втором месте по популярности – приспособления для горизонтального и радиального сверления. Также распространен аппарат для растачивания деталей. При таком функциональном разнообразии сверлильное оборудование в целом относят к аппаратам универсального пользования.
Но при этой свободе есть ряд обязательных составляющих, без которых не бывает сверлильных станков в принципе:
- станина;
- рулевая рейка;
- двигатель.
Область применения самодельных сверлильных станков
Мысли о создании сверлильного станка своими руками возникает у людей, любящих мастерить, но в то же время не занимающихся изготовлением каких-либо предметов на профессиональной основе как с использованием металла, так и прочих материалов (дерево, пластик и т.д.).
Это обусловлено тем, что самодельное оборудование не сможет в полной мере заменить промышленно выпускаемые аналоги в полной мере, как по функциональности, так и по производительности, а лишь облегчит выполнение несложных ремонтных и прочих работ.
Кроме этого, радиолюбители и люди, занимающиеся самостоятельным изготовлением печатных плат, также могут поставить перед собой подобную задачу, т.к. наличие сверлильного станка значительно упрощает их работу, а приобретение оборудования заводского производства нерентабельно.
Самодельная конструкция с использованием двигателя от стиральной машины
Варианты самодельных сверлильных станков
Полноценный сверлильный станок можно сделать из отслужившей свое рулевой рейки автомобиля. По ее размерам изготавливают станину, на которой крепят электродвигатель. Отлично подойдет двигатель от старой стиральной машины. Передача вращения осуществляется с помощью ременной передачи. Лучше использовать шкив с несколькими ручьями, это позволит регулировать скорость, тем самым работать с материалом разной твердости. По такой же схеме делают своими руками присадочные станки.
Сверлить отверстия небольшого диаметра можно на маленьком станке, изготовленном из остова старого микроскопа, на который установлен электродвигатель от магнитофона. Он гарантированно справится с тонким листовым материалом. Единственная трудность в изготовлении подобного устройства – сложно подобрать подходящий патрон.
Сверлильный станок в мастерской заметно облегчит жизнь домашнему мастеру. Даже простое самодельное устройство, изготовленное из электродрели, способно открыть перед ним новые горизонты. Сверлить дерево, металл, проделывать пазы, изготавливать мебель – все это станет возможным с самодельным сверлильным станком.
Электродрель
Рынок электроинструментов предлагает покупателю широкий ассортимент дрелей как отечественного, так и импортного производства. Продукция отечественных предприятий занимает небольшой сегмент по сравнению с хлынувшим потоком электротоваров из Китая. Импортная техника, в основном, представлена лицензионными моделями известных фирм-производителей.
Следует заметить, что электроинструмент в подавляющем большинстве представляет продукт высокого качества, за редким исключением.
Для сверлильного станка годятся дрели, которые рассчитаны только на сверление без всяких дополнительных ударных устройств. Вставлять в станок дрель-перфоратор – это большая роскошь, поэтому для силового оборудования достаточно будет установить дрель с минимумом опций – таких, как:
- регулировка количества оборотов;
- реверс;
- фиксатор кнопки включения.
БЕСПРОВОДНОЙ сверлильный станок из дерева. Сделай сам!
В данном станке использована дрель на аккумуляторах, что добавляет такому станку мобильности и позволяет использовать его вдали от электрической сети.
Давайте рассмотрим подробнее процесс изготовления по пошаговым фото.

Дрель прочно фиксируется в деревянном каркасе:

Направляющие для подачи шпинделя выглядит следующим образом:

Получившаяся конструкция крепится к стойке станка:

Движение шпинделя вниз осуществляется деревянным рычагом, возврат сверла происходит за счет пружины:

Получившийся станок значительно экономит время и повышает точность работы:

Источник фото: www.instructables.com/id/The-Cordless-Drill-Press
Читать полностью (ссылка)
Револьверные токарные станки
Горизонтальные револьверные токарные станки имеют две особенности, отличающие их от обычных универсальных токарных станков. Первый – это многогранная главная револьверная головка, которая занимает место задней бабки на токарном станке двигателя. Различные токарные, сверлильные, расточные, резьбонарезные инструменты могут быть закреплены на главной револьверной головке, которая может периодически вращаться вокруг своей вертикальной оси. Для продольного перемещения револьверной головки относительно заготовки, установленной на шпинделе станка, можно использовать либо маховик, либо автоматизированную продольную подачу.
Второй отличительной особенностью револьверного станка является револьверная головка, установленная на поперечном суппорте. Эта револьверная головка также может вращаться вокруг своей вертикальной оси и позволяет использовать различные токарные инструменты. К задней части поперечного суппорта можно прикрепить инструментальную стойку или инструментальный блок для установки дополнительных инструментов. Поперечное движение может быть приведено в действие или вручную или автоматически.

Револьверные токарные станки могут быть классифицированы как прутковые машины или отбойные машины. Прутковые машины раньше назывались винтовыми машинами, и они могут быть либо ручными, либо автоматическими. Прутковый станок предназначен для обработки мелких резьбовых деталей, втулок и других мелких деталей, которые могут быть созданы из пруткового материала, подаваемого через шпиндель станка. Автоматические прутковые станки производят части непрерывно путем автоматической замены запаса прутка в шпиндель машины. Отбойный станок предназначен главным образом для обработки более крупных деталей, таких как отливки, поковки или заготовки из штока, которые обычно должны быть установлены в патроне вручную.
Что такое сверлильный станок
Сверлильный станок — приспособление, относящееся к сверлильной группе металлорежущих устройств. Применяя другие насадки, помимо круглых отверстий, на нем можно выполнять:
- полу чистовую механическую обработку деталей резанием;
- цилиндрические и конические отверстия;
- рассверливание имеющихся отверстий;
- вырезание дисков;
- нарезание внутренней резьбы;
- вырезание до требуемых размеров.
Сверлильные станки подразделяются на: работающие в вертикальных и горизонтальных плоскостях, одношпиндельные и многошпиндельные, координатно-расточные. Каждый тип имеет свои буквенные обозначения, по которым можно определить их группу и предназначение. Присадочные мини-агрегаты имеют более скромный принцип действия, достаточный для работы в условиях дома.
Вариант вертикального станка
Пошаговая инструкция по изготовлению сверлильного станка
1. Изготовление основания под сверлильный станок из дрели для крепежа оборудования. В качестве основы можно использовать металлическую пластину размером 500 мм (д) х 300 мм (ш) и толщиной от 5 мм. Дополнительно потребуется уголок 40х40 или 50х50 мм, который будет выполнять функцию надежных подставок. Элементы соединяются между собой при помощи сваривания. По окончанию сварочных работ желательно зачистить швы и сгладить все выступы заподлицо с основной пластиной.
2. Регулировочные механизмы для станка. Для правильной работы мини сверлильного станка потребуется выставить оборудование по уровню. Для этого изготавливается регулировочный механизм в виде удлиненной (регулировочной) гайки и обычных болтов М12. Потребуется 4 механизма для каждого угла основы. Гайки привариваются к уголку в уровень, после чего закручиваются болты. Перед выполнением сварочных работ рекомендуется проверить совместимость гаек и болтов, чтобы в будущем избежать возможных трудностей и повреждений резьбы.
3. Изготовление подъемной колонны для регулировки уровня опускания сверла. В качестве основы потребуется труба квадратного сечения 40х40 мм длиной до 500 мм, а также уголок, который впоследствии можно соединить между собой с учетом требуемого зазора. Квадрат будет использоваться для фиксации положения станка
Чтобы сверлильный станок своими руками работал без каких-либо проблем важно сохранять симметричность всех деталей. Имеющиеся выступы после сварки лучше всего удалить путем шлифования напильником
В изготовленном квадрате из уголка необходимо проделать отверстия под механические зажимы. В отверстиях можно нарезать резьбу или для надежности наварить гайку под болт.
4. Механизм регулировки высоты и положения сверла. В силу особенностей конструкции самодельного сверлильного станка можно использовать тросиковый привод для регулирования уровня сверления. Для крепления троса потребуется изготовить вращающийся барабан с рукояткой и П-образную скобу для его крепления. Скоба с барабаном приваривается к квадрату. В нижней части колонны на основе требуется приварить болт для крепления петли тросика. Рукоятку для вращения можно изготовить любой конфигурации. Для работы системы тросик продевается специальным образом через барабан и натягивается с окончательным закреплением в верхней части колонны.
5. Крепежная система для дрели. По представленным чертежам и видеоматериалам можно легко изготовить крепежную систему для фиксации сверлильного устройства. Для этого необходим уголок 150-200 мм с заранее просверленными отверстиями с резьбой под болты. К уголку приваривается квадратная труба сечением 25х25 в форме буквы «Л». К изготовленной детали прикрепляется круглый фиксатор в виде хомута для зажима дрели. Фиксирующий элемент можно изготовить из металлической полосы шириной 20 мм.
6. Рабочий стол с фиксатором. Общие размеры стола подбираются с учетом индивидуальных требований. Элемент для фиксации обрабатываемых деталей необходим для обеспечения безопасности и удобства работы во время сверления. Фиксирующее устройство можно изготовить на основе металлической пластины с 4 крепежными отверстиями и обычной струбцины. Также вполне реально купить уже готовый механизм в магазине. Для его установки потребуется просверлить несколько отверстий в металлической основе станка.
7. Покраска элементов и смазка узлов. После изготовления станка можно покрасить все элементы для защиты металла от коррозии. Для этого подойдет любая краска. Дополнительно рекомендуется смазать все трущиеся детали литолом или любой другой технической смазкой. Рукоятку можно оснастить самодельными деревянными ручками для удобства пользования станком.
Конечный результат и функциональность станка можно просмотреть по предоставленному видео. В качестве электропривода подойдет практически любая ручная дрель вне зависимости от мощности. По данной схеме можно изготавливать станки разных размеров и производительности. Готовое устройство является бюджетной и простой альтернативой брендовым видам оборудования.
Зачем он нужен?
Если коротко и формально, то для расширения функциональных возможностей. Отверстия можно делать с помощью обычной дрели, это факт. Но рассверливание, зенкеровка и развертывание под силу только сверлильным станкам. Разберемся с понятиями.
Рассверливание – увеличение диаметра отверстия. Зенкерование – специальная обработка отверстий до самой высокой точности и идеальной цилиндрической формы 4-го или 5-го класса. Если задаться целью получить отверстие еще более точное, например, 2-го или 3-го класса, понадобиться развертывание – «чистовая» обработка отверстий для получения идеальных размеров и форм.
Качественная обработка отверстий – далеко не все возможности сверлильного механизма, с его помощью можно шлифовать, фрезеровать и делать многое другое.
Настольный самодельный станок.
Безусловно, такого рода сверлильные аппараты имеются в продаже — любых размеров и назначений. Но, во-первых, все они стоят недешево. А во-вторых, сделать самодельный сверлильный станок намного интереснее и вполне укладывается в общую концепцию «мастера на все руки».
Почему станок эффективнее дрели
Как правило, в домашних условиях при необходимости сверления отверстий используют ручную или электрическую дрель. Использование этих инструментов оправдано только в том случае, если нет особых требований к точности высверливаемого отверстия.
При попытке высверливания отверстий дрелью сверло может сместиться в сторону, в результате чего получится либо брак, либо изделие невысокого качества. Выполнить глубокое отверстие в строго вертикальном или строго горизонтальном направлении без станка вообще невозможно.
Очень трудно высверлить в каком-либо материале не сквозную дырку, а отверстие на заданную глубину (глухое отверстие) с применением дрели, так как этот инструмент не предусматривает использование в ходе сверления линейки. Сверлильный станок очень легко справится с подобной задачей.

При работе с мягкими материалами, такими как дерево или пластмасса, станок можно использовать для создания фрезерованных отверстий или выемок. Выполнить подобные операции дрелью невозможно.
Переносной сверлильный станок В ЧЕМОДАНЧИКЕ своими руками
Сверлильный станок можно сделать своими руками, сейчас он спрятанн в деревянный чемодан.
Очень удобен как в транспортировке, в хранении и использовании.

Сначала делается деревянный ящик, с защелками и крышкой на завесах:

С внутренней стороны крышка усиливается, и к ней крепятся мебельные направляющие:

На направляющих монтируется складывающееся крепление для дрели:

В нижнюю часть ящика вставляются две перегородки, образующие отсеки для хранения проводов и мелкого инструмента:

Для приведения станка в рабочее положение понадобиться не больше минуты:

Источник фото www.instructables.com/id/DIY-Portable-Dremel-Drill-Press
Читать полностью (ссылка)




































