Как сделать кроватку своими руками
Прежде чем заняться приобретением материалов и инструментов для детской кровати из фанеры или иных материалов, необходимо тщательно продумать весь процесс создания данного элемента мебели, разобраться в основных элементах.
- Каркас. Параметры зависят от размера спального места и соответственно используемого матраса. Основным материалом при изготовлении служит сухая доска.
- Ламели. Изделие поддерживает матрас и представляет собой основу в виде решётчатых планок или фанеры с вентиляционными отверстиями.
- Боковины. Решётчатые или сплошные страховочные ограждения.
- Быльца. Изготавливаются из массива, ЛДСП или фанеры. Высота у изножья традиционно делается ниже, чем у элемента изголовья.
- Ножки. Могут быть изготовлены самостоятельно или приобретены в магазине. Бывают целостные с основной конструкцией или прикрепленные отдельно.
Чертежи и схемы
Начните работу с подготовки чертёжа, согласно которому будет производиться распил конструкции. Ниже предлагаем вам варианты готовых чертежей и схем, которыми вы можете воспользоваться.
Для просмотра чертежа в полном размере кликните по изображению правой кнопкой мыши и выберите команду «открыть картинку в новой вкладке».
Материалы и инструменты
Наружные части кровати, видимые глазом, делают из МДФ. Можно выбрать древесину, руководствуясь финансами в вашем распоряжении. Если кровать будет часто передвигаться или переносится, стоит отдать предпочтение лёгким древесным породам. Также может быть изготовлена детская кровать из фанеры, которая устанавливается на каркас. Понадобятся обрезные и строганные пиломатериалы в виде доски и бруса, цельного или отрезками.
Также для работы необходим следующий инструмент:
- пила для работы по дереву;
- фрезер;
- машинка для шлифовки;
- сверло;
- уголок;
- саморезы;
- крепежи;
- стяжки;
- отвертка.
Первый этап – изготовление ножек
Начинаем с ножек, сделав из бруса заготовки. Также можно обратиться в пиломастерскую, заказав там их изготовление по вашим размерам. Необходимо по 4 штуки каждой длины.
Заготовки соединяем при помощи клея и саморезов.
Винты должны быть хорошо утоплены в древесине и покрыты шпаклёвкой. После высыхания продукта все неровности и стыки шлифуются.
Работу начинаем с изготовления ножек. Для этого берём попарно заготовки, ровно склеиваем их и скручиваем саморезами.
Это готовые ножки для кроватки. Осталось только из зашпаклевать.
Второй этап – отверстия под шканты
Для монтажа спинок следует сделать паз. Его ширина ровняется 2,5 см. Воспользуйтесь фрезером или при его отсутствии обратитесь к столяру. Шканты проще взять готовые, выбрав при этом сверло соответствующего диаметра.
Предварительно замерив точное расстояние и уровень на планках, просверлите отверстия под шканты в торцах планок. Глубину погружения сверла контролируйте при помощи прикреплённого на него маячка.
Третий этап – изголовье и изножье кроватки
Из доски 2,5*5 см надо нарезать равные по длине дощечки, чтобы заполнить ими изголовье и изножье. Далее вставляем их в паз, наполненный клеем.
В ножке просверливаем отверстие, затем отмечаем середину, приставляем и выравниваем спинку. Потом отмечаем области, где будут просверлены отверстия под шканты. В них помещаем немного клеящего материала и вставляем спинку. Полотно должно сесть плотно, избегайте щелей.
Крепим ножки к спинке кроватки.
Тот же самый процесс дублируется и на другой ножке. Если образуется неэстетичный стык, его маскируют доской, фиксируя на саморезы.
Готовые изножье и изголовье кроватки
Четвертый этап — основа для матраса
Берём две доски 5*10 см по длине матраса, на саморезы и клей закрепляем планку, которая короче на 10 см. Ближе к краю высверливаем отверстия. Шляпки должны быть в итоге полностью спрятаны.
Монтаж планок кроватки
Нарезаем планки и с шагом в 10 см по ширине матраса прикрепляем к планкам с упором двумя саморезами. Отверстия под крепёж покрываются шпаклёвкой, и впоследствии, шлифуются.
Крепление поперечных планок
В крайних планках надо сделать вырезы под ножки кроватки.
Пятый этап — сборка кроватки
Теперь устраняем окончательно все дефекты деревянных частей кроватки (сколы, трещины и т. п.) путём заделывания замазкой, далее шлифуем до гладкости.
Следующий шаг — грунтовка и окраска всех деталей.
Всё. Нам осталось соединить спинки и основу под матрас. Наша кроватка, которую мы сделали для малыша сами своими руками готова!
Для крепления используйте мебельную фурнитуру, которая продаётся в магазинах.
Как не надо делать!
Ни в коем случае не нужно делать кроватку для новорожденного, способную раскачиваться в 2-х плоскостях, поз. 1 и 2 на рис. Возможно, ваш отпрыск, повзрослев, вознамерится стать пилотом или парашютистом и с первого захода выдержит с радостной ухмылкой, не позеленев ни чуточки, тренировку на лопинге. Но в младенческом возрасте шалтай-болтай туда-сюда не пошло бы на пользу и Валерию Чкалову.
Неудачные конструкции кроваток для новорожденных
Далее, нежелательно делать днище кроватки со слишком редкой обрешеткой, поз. 3. Когда малыш научится вставать, его ножки будут уползать в щели вместе с матрацем. Толстый подматрасник (см. далее) решает проблему, но это лишняя работа, материал и затраты, и лишние сушки-замены. Лучшее днище в кроватку новорожденного – из ДВП толщиной ок. 10 мм с отверстиями диаметром 20-30 мм, насверленными по сетке с шагом 70-90 мм. Вдруг совсем придет в негодность, заменить проще и дешевле, чем подматрасник, а запасное места занимает меньше. И не беспокойтесь, ДВП экологически чистый материал, даже чище исходной древесины. При ее изготовлении синтетические связующие не используются, а в процессе обработки из дерева «выдыхаются» все летучие вещества.
Плохое решение также кроватка-манеж, поз. 4. У всех существ, жизнь которых разделена на активную фазу и сон, инстинкт во время последнего требует полной безопасности. Совмещение спальной зоны с игровой ее не дает. Кто из взрослых способен сладко выспаться на работе? А что говорить о малых детях, которые беззащитны и еще не способны осознавать окружающее?
Изготовление односпальной деревянной детской кроватки от 3 лет
В состав каркаса конструкции для ребенка входят основание и спинки, что наглядно показано на чертеже кровати. Ширина и длина изделия определяется габаритами матраса. Нижняя часть кровати должна находиться на расстоянии от пола не более 35 см, что позволит ребенку без усилий забираться на нее.
Каркас выполняется из двух перекладин, которые изготавливаются из обрезной доски размером 50х100 мм. Рулеткой отмеряется необходимая длина изделия, которая обозначается карандашом. Согласно метке с помощью лобзика отпиливается доска заданного размера в количестве двух штук. На боковую сторону каждой перекладины наносится клей. Посредством саморезов в этих местах фиксируются планки 25х50 мм для крепления ламелей, причем они должны быть короче перекладины на 10 см.

Односпальная детская кровать со спальным местом 850х1935 мм
Как выполняется подготовка основания для матраса детской кровати от 2 лет? Для этого из реек (20х20 мм) нарезаются доски, длина которых соответствует ширине матраса. Их количество определяется исходя из полного заполнения пространства основания. Изделия с упором с помощью саморезов крепятся параллельно друг другу к планкам перекладин. Шаг между ними должен быть не более 10 см.
Затем необходимо отшлифовать все отверстия под крепеж. В крайних планках выполняются вырезы для ножек кровати, которые изготавливаются из бруса размером 50х50 мм в количестве 8 шт. Четыре элемента под изголовьем должны иметь большую длину, чем изделия, находящиеся под изножьем. Заготовки попарно склеиваются и фиксируются саморезами.

Сначала покупается матрас, соответствующий параметрам ребенка, от этого будет зависеть точный размер кровати
Создание боковых элементов кровати для детей от 3 лет
Следующим этапом является выполнение с помощью электрической дрели отверстий под шканты в досках, имеющих паз шириной 25 мм, которые используются для изготовления изножья и изголовья конструкции. Их высверливают в торцах планок. Следует быть предельно внимательными при выполнении отверстий, которые должны располагаться на одном уровне на всех планках. Нужно, чтобы они имели одинаковую глубину, которая равна ½ длины доски.
Изголовье и изножье кровати можно изготовить из цельных кусков ЛДСП или МДФ. Первый элемент выполняется длиннее второго. Ширина деталей определяется исходя из значения данного параметра матраса, к которому прибавляется удвоенная толщина стенки продольных перекладин каркаса кровати. Изделия могут иметь различную форму торцевой части, которая бывает округлой или волнообразной. Если боковые элементы кровати изготавливаются с перилами, тогда к ширине изделия следует прибавить еще 25 мм.

Отверстия под канты в деталях кровати выполняются с помощью дрели
Если для изготовления боковых элементов кровати для детей от 2 лет используются деревянные доски, тогда требуется следующая последовательность действий. Из брусков размером 25х50 мм нарезаются равные по длине детали. Они вставляются в пазы вертикальных досок, заполненные клеем. В ножках выполняются отверстия под шканты. В них помещаются боковые элементы конструкции. Следует плотно прижимать детали, исключая перекосы и трещины.
Изготовив вертикальные опоры боковых элементов, их следует увязать рамкой по периметру, чтобы создать деревянную крышу. Последним этапом является крепление балки-конька, что соединит основание конструкции кровати-домика своими руками.
После того как подготовлены все детали изделия, наступает момент их сборки. Предварительно каждый элемент проверяется на наличие сколов и выемок, которые заделываются шпаклевочной смесью, а поверхность отшлифовывается до гладкого состояния. Далее все детали обрабатываются грунтовкой или морилкой. После полного их высыхания поверхность изделий покрывается краской.
Какую будем делать?
Классическая кроватка для новорожденного, поз. 1 на рис., конструкция незамысловатая. Основные требования к ней:
- Экологическая чистота и полная медико-санитарная безопасность.
- Отсутствие острых выступов и краев.
- Не должно быть отверстий/проемов и щелей, в которых у маленького может застрять что угодно, от пальчика до головки.
- Обязательно наличие бортиков; как опасно для младенцев падение даже с небольшой высоты, известно. Передний борт (стенка) желателен частично откидной или опускаемый, чтобы матери было удобнее ухаживать за ребенком.
- Вентилируемое, т.е. решетчатое или перфорированное, днище. Как бы ни совершенствовались средства детской гигиены, малыш когда-нибудь да опрудит постельку.
- Если новорожденный – первенец и предполагается когда-то добавить ему братьев-сестричек, то достаточная прочность и долговечность в сочетании с разборной конструкцией.
Виды кроваток для малышей
Нередко детскую кроватку для удобства передвижения по дому ставят на колесики, поз. 2. В малогабаритных квартирах иногда можно встретить образцы с ящиками для белья в подкроватном пространстве, как у взрослых, поз. 3. Однако по причинам, указанным выше, ящики под младенческой кроваткой должны быть снабжены влагонепроницаемыми крышками. Наконец, довольно сложное и дорогое, но удобное для мамы и экономящее жилую площадь изделие – кроватка для новорожденных, совмещенная с комодом для пеленания, поз. 4.
Немало младенцев приходится на сон укачивать. Основные виды кроваток-качалок гамак, поз. 5, люлька (с верхним подвесом ложа), поз. 6, и колыбель (с ложем на нижних изогнутых опорах-качалках), поз. 7. Гамак пригоден только как временное лежбище, скажем, на даче в выходные. Кости и младенца еще мягкие, и постоянное возлежание на чем-то податливом деформирует его скелет. Кроватки для новорожденных – гамаки делают чаще всего складными транспортируемыми.
Люльку легко качать, но сделать труднее, т.к. требуется какой-никакой, но механизм. Кроме того, риска для малыша вывалиться из люльки, перевесившись через бортик, много больше, чем из гамака или колыбели. Последнюю, кроме того, и сделать проще, а небольшие выступы-бамперы на качалках делают ее совершенно безопасной, отчего колыбель и распространена наиболее. В люльке же обязательно должен быть фиксатор ложа, причем весьма желательно пружинный с самосбросом, который нужно отводить для укачивания, иначе захлопотавшаяся мама может забыть его вставить, отходя от кроватки. «С самосбросом» значит, что механизм сам поставит ложе горизонтально и сбросит штырь в гнездо, если угол наклона люльки превысит некоторое допустимое значение.
Укачивание в поперечном направлении для человека не оптимально, так уж устроен наш вестибулярный аппарат. Любой, кто ходил в море на лодке или парусной яхте, знает, что килевая качка переносится куда легче бортовой. У младенцев, постоянно укачиваемых поперек, может даже развиться привыкание к укачиванию, отчего несносный крикун, подросши, рискует превратиться в гиперактивного обалдуя или «никакого» аутиста. Вероятность травмировать психику малыша чрезмерным укачиванием сводится практически к нулю, если люлька (поз. 8) или колыбель (поз. 9) приспособлены к укачиванию в продольном направлении.
В последнее время получили распространение кровати-маятники, поз. 10, свободные от недостатков люлек и колыбелей. Во-первых, поперечное укачивание в кроватке-маятнике безвредно, т.к. тело ребенка при нем не наклоняется и его вестибулярный аппарат испытывает совершенно ничтожную нагрузку в одной плоскости. Во-вторых, вывалиться из нее ребенку практически невозможно, ведь и сама кроватка не наклоняемая. В-третьих, подкроватный ящик может быть устроен проще – доступ в него обеспечен автоматически. Сам же маятниковый механизм принципиально несложен, поз. 11, придется только изредка регулировать натяжение пружин по мере роста ребенка.
Подготовительный этап
Прежде чем приступать к изготовлению, нужно учесть все нюансы и подготовить материалы, без которых работа будет невозможной.
Дизайн кровати
Детская кроватка должна быть одновременно:
- комфортной (давать ребёнку возможность переворачиваться во сне, не ударяясь о стенки, а за счёт «дышащей» конструкции обеспечивать приток воздуха);
- безопасной (предохранять от падения, не иметь выступающих острых частей, обладать достаточным запасом прочности);
- функциональной (пространство под кроватью или над ней стоит использовать для хранения игрушек, одежды и спальных принадлежностей);
- привлекательной (вызывать приятные эмоции и желание использовать её по назначению, вписываться в общий стиль комнаты).
При выборе дизайна важно учитывать свои навыки в столярном деле и технические возможности. Начинающий мастер, у которого есть доступ к минимальному набору инструментов, сможет без потери качества изготовить лишь самые простые модели кроватей, состоящие из бортов, изголовья, ножек, ламелей и ящиков
Приступать к созданию кроватей в виде автомобиля, самолёта, цветка или других сложных конструкций стоит лишь в тех случаях, когда человек, выполняющий работу, владеет немалым опытом и планирует обрабатывать детали на профессиональном оборудовании.
Инструменты
Чем большим количеством разнообразных инструментов обладает мастер, тем быстрее и проще ему будет выполнить работу. Однако существуют и такие, без которых не обойтись:
- Электрический лобзик.
- Ножевая пила.
- Шлифовальная машинка (её можно заменить наждачной бумагой, но в таком случае обработка досок займёт в разы больше времени).
- Шуруповёрт.
- Дрель.
- Болгарка.
- Надфили.
Материалы
Лучшим материалом для изготовления детской мебели считается цельный массив дерева. Кровать из сосны, бука или дуба прослужит долго, будет сравнительно устойчивой к влаге и атакам вредителей. Вместе с тем натуральное дерево обладает двумя качествами, которые не всегда делают возможным его использование, — это значительный вес готовых изделий и высокая цена.
Другое
Также понадобятся расходные материалы:
- Саморезы разного диаметра.
- Металлический уголок и стяжки.
- Рейки или другие направляющие и колёсики (для конструкций с выдвижными элементами).
- Простой или цветной карандаш.
- Бумага для заметок.
Гофрокартон

Гофрокартон состоит из гофрированного слоя и нескольких слоёв картона. В зависимости от типа гофрокортона, варьируется и число гофрированных слоёв. Как показывает практика, вес обуви в состоянии выдержать даже самый тонкий лист гофрокартона.
Совет: конструкцию можно усилить за счёт уменьшения промежутков и увеличения листов гофрокартона в изделии.

В гофрокартоне нас интересует именно гофрированная часть, которая и является залогом прочности. Она обязательно должна быть перпендикулярна полу, иначе, при первой же нагрузке вся конструкция развалится
Об этом важно помнить при составлении своих чертежей
Как определить размер мебели
Кукла — это маленькая копия человека, соответственно, мебель у нее такая же, как у нас, только меньше.
Для определения масштаба вам понадобится:
- метр;
- кукла;
- образец мебели, которую хотите изготовить.
Действия:
- Измеряем свой рост, размер куклы.
- Узнаем параметры имеющейся мебели.
- Полученные цифры, например, 168 и 14 необходимо соотнести, для этого мы найдем частное, 14/168=0,083. Это будет коэффициент подобия предметов.
- Вычисляем габариты мебели для куклы, для этого умножим высоту и ширину предмета на полученную цифру из пункта ранее.
Для стандартной куклы Барби этот коэффициент можно принимать за 0,09.
С учетом этого приемлемыми будут следующие параметры (размеры представлены в сантиметрах):
- односпальная кровать — ширина от 7,5 и длина — от 16;
- двуспальная — ширина от 13, а длина — также от 16;
- для стула высота посадочного места начинается от 4;
- стол должен быть не ниже 6,5.

Кресло-качалка с кроваткой своими руками «два в одном». Чертеж + размеры деталей
Следующую модель можно назвать «два в одном». Она значительно упрощает процесс укачивания ребенка и полностью освобождает руки.
Как видите здесь кровать соединена с креслом для мамы. После тяжелого для мама может, легко покачиваясь в кресле, отдохнуть, убаюкивая малыша.

На следующем чертеже показаны размеры всех деталей:

Вырезаются детали из дерева:

Все элементы соединяются с помощью мебельных уголков и столярного клея:

Наполнителем подушки кресла послужит поролон:

Здесь хватит места малышу и его маме:

Источник фото: www.instructables.com/id/building-a-rocking-chair-with-a-crib
Читать полностью (ссылка)
Как сделать своими руками детскую кровать для новорожденного
Изготовление классической кроватки для младенца является несложным процессом. Чертежи с размерами традиционной деревянной конструкции можно взять из интернета. Первым делом следует приобрести матрас, от размеров которого будут зависеть параметры кровати.

Перед изготовлением кроватки для новорожденного необходимо приобрести матрас
Стандартный размер изделия составляет 60х120 см. Высота бортиков конструкции, начиная от пола, достигает 90 см. Спинки будут иметь больший размер, равный 110 см. Лучше всего, если спальное место будет располагаться на высоте 30-35 см, что позволит малышу 2-3 лет беспрепятственно взбираться на него. Между вертикальными перекладинами на спинках и бортах кровати расстояние должно быть 10-12 см.
Для изготовления обвязки боковых элементов и бортов кровати для малыша используются доски сечением 35х70 мм. Лежак, на который будет укладываться матрас, выполняется из шести брусьев сечением 30х50 мм. В длинных брусьях выполняются отверстия глубиной 25 мм для проведения обвязки рамы глухим шипом. Длина поперечных элементов равна ширине матраса за вычетом удвоенной ширины брусьев. К полученному значению прибавляем величину, равную сумме двух глубин гнезда.
Как сделать детскую кровать для новорожденного: последовательность действий
На обоих краях деревянных брусьев выполняются шипы (для их связки используется сквозной шип). Такие отверстия производятся дисковой пилой, которая регулируется по высоте входа. Шип должен совпадать по толщине с размером гнезда. Эта процедура является одинаковой для всех идентичных деталей. Лишняя часть древесины убирается с помощью пилы.
Далее выполняется склеивание деталей лежака
Здесь важно следить за ровностью всех углов, которые должны иметь значение, равное 90°. Для изготовления стержней кровати используются рейки сечением 20х20 мм
Их необходимо присоединить к поперечинам спинок и бортов посредством применения одинарного глухого шипа. После того как собрана рама спинки, рассчитывается длина стержней, к которой требуется прибавить двойную длину шипа.

Чертеж кроватки для новорожденного с дополнительными ящиками
После изготовления всех элементов кровати поверхность каждой детали необходимо тщательно отшлифовать. С помощью рашпиля выполняется скругление всех острых граней и углов. Следующим этапом является склеивание всех деталей спинки на вайме. Требуется внимательно следить за прямоугольностью конструкции.
Изготавливаются борта кровати, размеры которых отличаются. Выполняется стыковка нижних поперечных перекладин спинок с данными элементами. Длина заднего борта равна длине лежака с припуском в 1 см. Чтобы получить высоту бортика, необходимо из числа 90 вычесть высоту нижних поперечных планок спинки.
Чтобы получить планку, снимающуюся на переднем бортике, длина его жердочек должна быть короче на 15 см, чем длина этих элементов второго бортика. Шипы на них выполняются с использованием того же алгоритма, который применяется при их изготовлении на спинках.

Каждую деталь кроватки необходимо тщательно отшлифовать
Бортик склеивается на вайме таким образом, чтобы все его элементы находились перпендикулярно друг другу. Следующим этапом является сборка бортов и спинки конструкции с применением для фиксации саморезов. Затем устанавливается снимающийся ограничитель для детской кровати своими руками. Он прикрепляется на внешнем борту с помощью резинки. По завершении сборки спальное место застилается фанерой толщиной 3-4 мм, которая фиксируется маленькими гвоздиками.
Какие требуются инструменты и материалы?
Материал, из которого мы рекомендуем делать детское спальное место – дерево. По ходу статьи, вы узнаете, сколько и чего надо на ту или иную модель детской кровати.
Инструменты необходимы для сборки:
- Дрель и сверла по дереву.
- Рулетка.
- Пила или ножовка для отреза.
- Металлические пластины для крепления.
- Столярный клей для проклейки швов.
- Шурупы или гвозди.
Инструменты для сборки детской кровати
Чем больше ваш набор инструментов, тем сложнее вы сможете сделать конструкцию. Повезет людям, которые владеют навыками и подручными средствами профессионального столяра. Но вот молодым и амбициозным папам – придется попотеть.
Чертежи детской кровати
Самое главное в удачной конструкции это схема и чертежи, заранее продуманные и составленные перед сборкой. Придерживаясь сборки кровати по схеме и чертежам. Вы будете видеть перед собой план, по которому стоит действовать. Поэтому, имея желание сделать качественно – не пренебрегайте возможностью нарисовать и провести расчеты. Мы предоставили чертежи по каждому варианты детской кровати: , , , , с
Что требуется при сборке
- Количество нужных материалов.
- Инструменты, которые будут использоваться при сборке.
- Схема чертеж готовой кровати
- Размеры данного изделия (длина, ширина, высота).
- Видимые скрепленные места в конструкции.
Размеры детской кровати
Собрав детскую кроватку самостоятельно – всем хочется, чтоб она прослужила, как можно больше лет. Для этого вы должны учесть период пользования спальным местом и сопоставить его с возрастом ребенка.
Правильным и практичным будет делать кровать для двух возрастных групп:
- Для детей до 3 лет.
- Для детей от 3 лет и до подросткового возраста.
Другими словами. Для дошкольников, школьников и подростков – можно сделать сразу большую и комфортную кровать.
Некоторые особенности столярных изделий
Чтобы мебель была надежной, при ее изготовлении применяют специальные столярные соединения. В отличие от привычных гвоздевых или саморезных такие крепления более стойки к расшатыванию, не «разлазятся», хорошо противостоят механическим повреждениям.

Главной задачей выбора способа соединения является декоративность, желание сделать его красивым, незаметным.
Состоит такое соединение из глухого или сквозного паза и хвостовика, свободно входящего в паз. Скрепляют их столярным клеем. Размер каждого паза и хвостовика подбирают индивидуально, исходя из толщины деревянной заготовки (рейки, бруса, доски).

Когда такое соединение выполнено с учетом расположения волокон древесины, ее текстуры, то создается впечатление, что изделие выработано из цельного куска дерева.
Вначале отмечают карандашом границы паза или хвостовика. Затем ножовкой делается надрез необходимой глубины для хвостовика, паз высверливают дрелью. С помощью стамески убирают лишнюю древесину. Края изделия выравнивают надфилями. Если есть фрезер – выставьте глубину реза и отфрезеруйте необходимые детали. Кроме того, используя копировальное кольцо, идущее в комплекте с машиной, без труда сумеете изготовить пазы нужного размера.
Требования к кровати-чердаку
Кровать-чердак должна быть особенно прочной и устойчивой, т.к. нижней рамы, придающей требуемую жесткость 2-ярусной кровати, здесь нет. Если спальное место располагается на столбах-подпорках, то вся конструкция должна быть подкреплена системой подкосов, поз. 1 на рис. Без них углы ложа окажутся чрезмерно нагружены, от непроизвольного верчения во сне со временем ослабнут, в один отнюдь не прекрасный момент стойки подломятся и весь чердак рухнет вбок. Моделирование подобных строений без подкосов однозначно дает внезапное обрушение, т.к. предварительные симптомы в виде расшатывания углов слабо выражены под нагрузкой, хоть и небольшой, от веса ложа с постелью.
Неудачная конструкция кровати-чердака
Лучший способ добиться надежности кровати-чердака – прикрепить ложе к стенам в нише, поз. 2, или подвесить на жестких тягах к потолку, поз. 3. Подвесы висячего угла на текстильном тросе, поз. 4, или на цепи недопустимы, т.к. угол все равно получается шатким. Точно так же недопустимы свободные углы выступающего из опорной системы ложа, см. рис. справа. С учетом обычных, без драки подушками, динамических нагрузок от ребенка весом 45 кг, добиться приемлемой надежности такой кровати удается разве что с применением титановых сплавов.
Зачем чердаку поддон?
В подвесной кровати-чердаке ложе/матрац укладываются на поддон: решетчатую раму из бруса, с обеих сторон обшитую фанерой. Схема поддона кровати-чердака размерами до 2000х1400 мм показана на рис. Брус – 100х50 или, для человека астенического телосложения (тонкая кость), 75х50; фанера – 10/8 мм соответственно. Рама симметрична относительно продольной и поперечной ее осей.
Поддон для кровати-чердака
Сборка – на клею ПВА и саморезах либо гвоздях с насечкой. Раму собирают в 1 прием: наносят клей на все склеиваемые поверхности, подсушивают 3-5 мин, все складывают и туго стягивают 6-мм саморезами; их вгоняют по паре диагонально в каждый стык и перекрестье деталей.
Листы фанеры ставят поочередно спустя не менее суток после сборки рамы. Технология та же: клей, выдержка, наложение, стягивание метизами, но в данном случае применимы саморезы 3-4 мм или гвозди 40-50 мм. Скрепление метизами ведут по всем связям рамы зигзагом (змейкой) с шагом 120-150 мм с отступом от края 30-40 мм. Удобно будет, наложив сперва раму на лист фанеры, прочертить на нем контуры каркаса, а фанеру клеить, перевернув. Технологический перерыв перед наложением 2-го листа фанеры не нужен, а нагружать поддон можно спустя 3-4 суток после сборки.
Подвешивается поддон кровати-чердака на широких П-образных скобах шириной 50-70 мм из стали толщиной 4-6 мм. Его можно класть и на столбы. Тогда стальная скоба, естественно, не нужна, но на каждый угол понадобится по паре подкосов размера от 500х500 из доски 70х20 или косынок из фанеры 12 мм того же размера.
Детское спальное место из дерева
Безусловно, самым подходящим материалом для изготовления мебели для детей является дерево.
Самое верное решение, на наш взгляд, это массив или, в крайнем случае, МДФ. Этот материал является экологически чистым и безопасным в сравнении с ДСП. Конечно, можно изготовить кровать из ДСП или из ЛДСП, но эти плиты выделяют опасные токсины и не подходят для детской комнаты.
Детская кровать из фанеры может быть изготовлена, это более дешевый и доступный материал. Однако мебель из него получается неплохая. Предпочтительнее выбирать качественную многослойную березовую фанеру. В таком случае кровать из фанеры своими руками долго будет радовать своим качеством и прочностью.
Для того чтобы изготовить детскую кровать своими руками понадобится схема и соответствующие чертежи.Свой эскиз можно начертить самостоятельно, если знать из каких деталей состоит этот предмет интерьера. Следует помнить, что габариты кровати должны соответствовать размерам матраса. Поэтому его необходимо приобрести заранее.
Порядок работы:
- Для начала следует подготовить все необходимые детали согласно схеме.Для этого для начала наноситься разметка на материал с помощью простого карандаша (его следы легко можно удалить с поверхности).
- С помощью лобзика или мелкозубой пила аккуратно выпиливается каждая деталь-заготовка.
- Распил материала можно заказать там, где он приобретался. Это значительно сэкономит время.
- Все детали после распила должны быть тщательно отшлифованы.
- Далее необходимо вырезать алюминиевые уголки и сделать в них отверстия для крепежных элементов.
- Готовые металлические детали следует прикрутить к бортам таким образом, чтобы на них расположить основание матраса.
- Далее собирается каркас кровати. Для крепежа деталей рекомендуется использовать мебельные стяжки. Они создадут более прочную конструкцию.
- Если изготавливается кровать с ящиками своими руками, то по завершении основной сборки можно приступить к сборке ящиков. Их необходимо оснастить мебельными колесиками для удобства пользования. Оптимальный вариант — 2 вместительных ящика, один можно использовать для постельного белья, а другой для игрушек.
- По окончании сборки можно покрыть готовое изделие грунтовкой, краской и лаком. Естественно использование ярких цветов для создания уютной атмосферы детской. Если была изготовлена кровать для подростка, то достаточно пропитки приятного оттенка.
Достаточно проявить немного фантазии и эта простая конструкция превратиться в мечту любого ребенка. Достаточно придать внешним деталям более привлекательный вид.
Деревянная кровать для детской комнаты в виде машинки — мечта любого мальчишки
Чтобы изготовить спальное место в виде машины или придать ей другой внешний вид необходимо выпилить боковины по эскизу и оклеить их пленкой с рисунком, нанесенным на широкоформатном плоттере. Срезы оклеить п-образным ПВХ профилем (это сделают специалисты). Ламели для поддержания матраса крепятся на брус с помощью латодержателей. Для крепежа на видимых местах деталей используются эксцентрики.
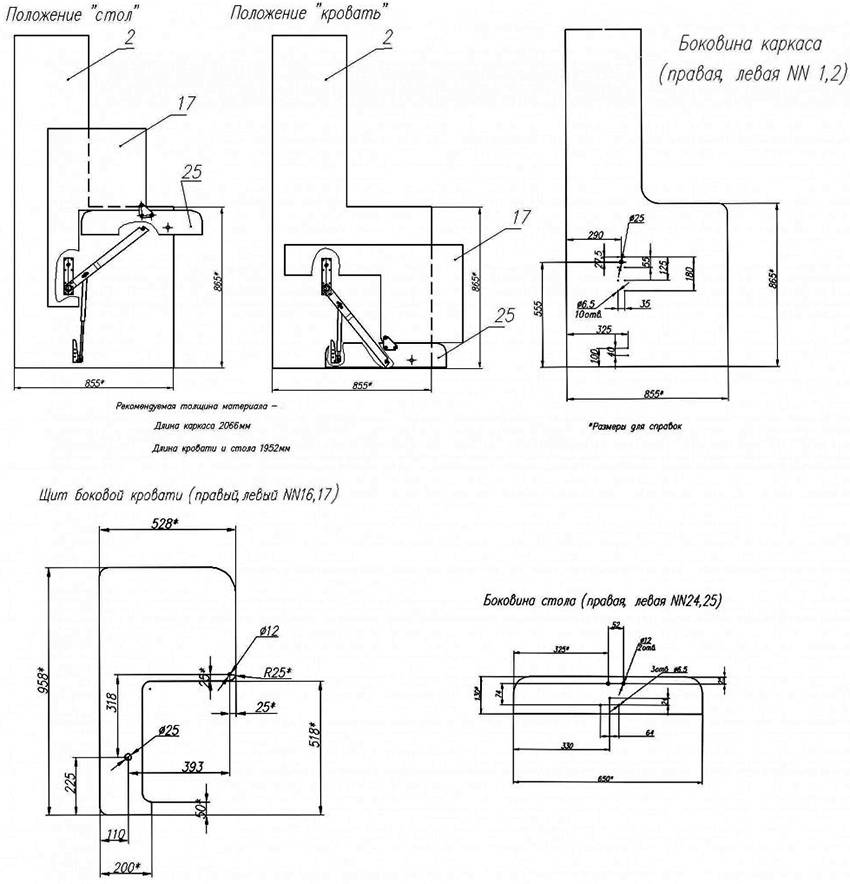
Как сделать самому кровать-трансформер: последовательность действий
Откидная кровать-трансформер состоит из трех основных элементов: ложа, короба и подъемного механизма. Габариты кровати определяются исходя из возраста. Однако необходимо предусмотреть большой запас с учетом взросления ребенка. В качестве материала для изготовления кроватки своими руками можно использовать натуральную древесину, МДФ или ДСП. Последний вариант является самым дешевым, обеспечивая конструкции небольшой вес.

Чертеж детской кровати, которая трансформируется в стол
Короб должен быть прочным, чтобы выдерживать нагрузку, создаваемую движущимися ложе и подъемным механизмом. Он состоит из плинтуса, задней стенки и упорной планки. Расчет габаритов короба выполняется исходя из размеров матраса и высоты спинок кровати. Все детали собираются на полу и фиксируются саморезами. Короб устанавливается на пол или основание и прикручивается с помощью металлических уголков к стене.
Ложе с матрасом должно легко подниматься и фиксироваться в вертикальном положении. Идеальным вариантом в качестве подвижной части является фабричная ортопедическая рамка. Она укомплектована ножками, высота которых подгоняется под необходимые размеры. Для исключения сдвигов матраса в разные стороны по периметру рамы требуется создать бортики из качественной деревянной доски.
Подъемный механизм можно выполнить самостоятельно из цапфов с подшипниками или из гаражных завес. Более надежным вариантом является приобретение заводского комплекта. Механизм необходимо закрепить к коробу и спальному месту. Фасад кровати в вертикальном положении можно задекорировать под шкаф с имитацией дверей с ручками или создать монолитную зеркальную поверхность.
Сегодня в интернете встречаются подробные чертежи с размерами различных вариантов конструкций детских кроватей. Обладая минимальными навыками и имея большое желание порадовать своего ребенка, можно своими руками создать уникальное спальное ложе.
https://youtube.com/watch?v=4nMP5e0JSDA





































