Высота розетки для духового шкафа
Высота розетки для духового шкафа имеет важное значение для комфортной и безопасной эксплуатации этого кухонного прибора. Определение правильной высоты розетки зависит от нескольких факторов, включая тип и модель духового шкафа, а также стандарты безопасности и эргономики

Одним из ключевых моментов при выборе высоты розетки является обеспечение удобства использования духового шкафа. Идеальная высота розетки должна быть установлена таким образом, чтобы пользователю было удобно достигать и контролировать элементы управления духового шкафа, такие как переключатели температуры, таймеры и функции.

В большинстве случаев рекомендуется устанавливать розетку для духового шкафа на уровне, доступном взрослому человеку среднего роста, чтобы избежать неудобства и возможных травм при использовании прибора. Обычно это означает установку розетки на уровне, близком к уровню стандартных кухонных столешниц.

Следует также обратить внимание на возможные ограничения в размещении розетки, вызванные конструкцией кухонных шкафов или планировкой кухонного пространства. В некоторых случаях может потребоваться консультация с профессиональным электриком или дизайнером интерьера для определения оптимального местоположения розетки и учета всех факторов

Определение оптимальной высоты розеток от пола является существенной составляющей при их установке. Будь то удобство использования, соблюдение норм безопасности или эстетический аспект, все эти факторы нужно учитывать при выборе расстояния.

Понимание и соблюдение соответствующих норм и рекомендаций способствуют комфортному и безопасному использованию электрического оборудования в домашних условиях и на рабочих местах.
Евростандарт — что же это за зверь и как к нему относиться простому человеку
Само слово «евростандарт» по правилам русского языка является сложным, составленным из двух слов:
- евро;
- и стандарт.
Под первым термином понимается международное объединение из 28 государств или Европейский союз, образованный 1 ноября 1992 года.
Второе же слово по своему смыслу должно определять какой-то нормативный акт, или узаконенный Евросоюзом документ с описанием общих технических требований, действующих в межгосударственных границах этого объединения.
Примером такого акта может служить денежная единица «евро», которой можно расплачиваться в любой из этих стран.
Вот я и решил с точки зрения электрика расширить свои познания в этой области, стал искать документ вначале через Гугл, а после неудачи — с помощью Яндекся.
Каждый поисковик мне показал более трех миллионов сайтов коммерческого характера, использующих это слово в названии своей компании.

Я не смог среди них найти технический документ, описывающий единый стандарт, общий для всех 28 стран участниц Евросоюза.
Решил продолжить поиск через самую известную народную энциклопедию — Википедию. И она меня тоже разочаровала. Вики не знает этого слова.

Она предложила мне создать страницу и написать статью. Поэтому я делаю самый простой и очевидный вывод.
Технический термин «Евростандарт» в природе не существует. Это слово придумано маркетологами для умелого продвижения своих товаров внутри стран с более низким уровнем экономического развития.
Им успешно пользуются все продавцы и работники, предоставляющие различные услуги своим клиентам в области строительства и ремонта. Этим словом они действуют на подсознание человека для решения своих личных интересов.
Попросите их показать технический документ с законодательно утвержденными нормативами, действующими для всех стран Евросоюза. Они его не смогут предъявить, ибо на момент написания моей статьи его просто нет в природе.
Чтобы исключить риски получения электрических травм и случаи возгорания проводки необходимо руководствоваться строгими научными разработками, которые законодательно утверждены правительством вашей страны.
Высота розеток от пола по ГОСТу
Высота установки розеток в помещениях определяется согласно ГОСТу. Этот стандарт обеспечивает безопасность использования электричества и удобство его использования для различных электроприборов.

Большинство рекомендаций основываются на общих принципах безопасности и удобства использования, а конкретные требования могут варьироваться в зависимости от региона или специфики помещения.

Однако, ГОСТы, которые регулируют производство, испытания и установку розеток включают:
| Название ГОСТа | Описание |
|---|---|
| ГОСТ 7396.1-89 | Этот ГОСТ устанавливает требования к производству и испытанию гнезд и вилок для напряжения до 440 В при частоте до 400 Гц. |
| ГОСТ 51324.0-99 | Этот ГОСТ содержит общие требования безопасности к электрическим приборам для домашнего и аналогичного применения. |
| ГОСТ Р МЭК 60083:2008 | Этот ГОСТ устанавливает систему стандартов для вилок и гнезд для бытовых и аналогичных целей. |
Общие требования
Согласно ГОСТу, розетки должны быть установлены на высоте не менее 0,8 метра от уровня пола. Это требование позволяет обеспечить безопасность использования электроустройств, исключая риск короткого замыкания при случайном контакте с водой.



Розетки в жилых помещениях
В жилых помещениях высота установки розеток от пола также определяется по ГОСТу. Как правило, в спальнях и гостиных розетки устанавливают на высоте 0,3-0,8 метра от пола для удобства подключения низкостоящих электроприборов. В детских комнатах рекомендуется устанавливать розетки выше, чтобы предотвратить случайное воздействие детей на них.
Розетки в ванных и санузлах
В ванных комнатах и санузлах розетки устанавливают на высоте не менее 1,8 метра от пола. Это связано с большим риском попадания воды на электроустановки в этих помещениях. Если розетка должна быть установлена ниже, она должна быть защищена специальной крышкой.

Розетки на кухне
На кухне высота установки розеток может варьироваться в зависимости от места их установки. Для розеток, предназначенных для подключения кухонных приборов, рекомендуемая высота от пола — 0,1-0,15 метра над рабочей поверхностью. Для розеток, предназначенных для бытовых приборов, рекомендуемая высота от пола — 0,8 метра.

Розетки в коридорах и прихожей
В коридорах и прихожих розетки обычно устанавливаются на высоте 0,8-1 метр от пола. Эта высота обеспечивает удобство использования, например, для подключения пылесоса.
Высота установки розеток в разных комнатах
Гостиная или Зал
Под телевизор, в зале, на высоте 140 см.
Подробно об этом читайте в статье – как правильно подобрать высоту розетки в спальне для телевизора, с учетом диагонали ТВ.
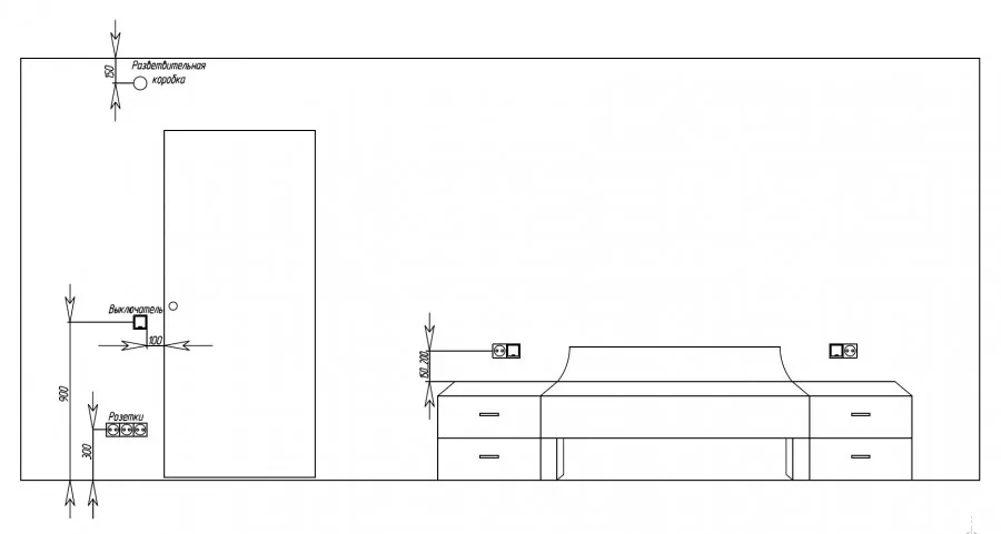
Спальная комната
– над письменным столом 900 мм т.к. стандартная столешница 75см + необходимый отступ 15см
– над прикроватными тумбочками: 600 – 700мм
– для телевизора в спальне – 150см. В зависимости от высоты монтажа ТВ, она меняется, подробно о всех вариантах мы уже писали здесь.
На кухне
Над столешницей на фартуке – 110 см
Для холодильника 10 – 30см
Под плиту, посудомоечную машину, встраиваемый духовой шкаф: 10см (под цоколем кухонного гарнитура), 30-50см за плитой или в соседнем шкафу
Для кухонной вытяжки 155-165см до напольной плитки. Для плит и варочных панелей высоты различаются.
Высота установки выключателей и розеток в квартире своими руками
Перечислим основные рекомендации, которые проверены практикой и не противоречат безопасности в жилых помещениях.
Проводка на кухне
- Стиральная и посудомоечная машина — 15–20 см. от пола.
- Питание кухонных электроприборов (чайник, тостер, мультиварка и т.д.). Блок розеток выводится на уровень 20 см. от столешницы.
- Для вытяжки отводится отдельная точка питания в 2 м. от пола.
- Встроенную в шкафы технику лучше всего подключать из розеток, расположенных за стенками мебели. Для свободного к ним доступа выпиливается отверстие в задней стенке. Оптимальное расстояние — 40–60 см. от пола.
- Для подсветки подвесных шкафов рекомендуется размещать розетки на уровне 10 см. над корпусом мебели.
Розетки и выключатели в гостиной и спальне
- В гостиной комнате располагается розетка для питания телевизора на высоте 1,3 м. от пола. На этом же уровне принято устанавливать розетку для подключения роутера. Сюда же подводят слаботочный кабели компьютерной сети и телевизионной антенны.
- Возле письменного стола размещают несколько розеток. Один блок, состоящий из 2 или 3 розеток, располагают на уровне 30 см. от пола. И второй блок — на высоте 15 см. от уровня столешницы, для подключения настольной лампы или зарядки ноутбука (телефона, планшета).
- Розетки для торшера, пылесоса или музыкального центра удобно размещать на высоте 30 см. от поверхности пола.
- Управление главной люстрой или точечными светильниками на потолке осуществляется выключателем, расположенным у входа в гостиную. Как правило, здесь устанавливают выключатель с несколькими клавишами — это позволяет варьировать интенсивность освещения.
- Спальня оборудуется одним общим выключателем на входе и двумя выключателями по обеим сторонам двуспальной кровати. Там же устанавливают по розетке, что бы можно было, не вставая с постели, поставить на зарядку телефон, подключить электронный будильник и т.д. Удобная высота — 0,7 м. от пола.
Электроточки питания в ванной комнате
В связи с повышенной влажностью и возможным возникновением брызг, рекомендуется подключать все розетки в ванной комнате через УЗО. Расстояние от умывальника и ванной (душевой кабинки) до розетки менее 60 см. запрещается.
Для электроприборов рекомендованная высота установки розеток:
- стиральная машина — 1 м.;
- водонагревательный бойлер — 1,8 м.;
- дополнительная точка питания для бритвы или фена — 1,1 м.
В ванной комнате рекомендуется устанавливать розетки с индексом IP 66
Выключатели света устанавливаются снаружи, на входе в санузел.
Видео: розетки на кухне
Самостоятельное проведение работ по замене и переносу «электро точек» подразумевает прямой контакт с токами высокого напряжения. Даже слабые электрические удары иногда приводят к остановке сердца или становятся причиной нервных расстройств. Перед началом работ нужно отключать подачу тока в квартиру.
Правила расположения электроточек в разных помещениях
Точки питания в ванной
Расположение розеток в ванной
Санузел — это помещение с повышенной влажностью
Поэтому здесь крайне важно знать, на какой высоте делать розетки и выключатели так, чтобы они не представляли опасности
Главные запреты — установка точек питания под раковиной, биде, ванной. От них нужно отдалить розетки минимум на 60 см, чтобы исключить случайное попадание воды. Выключатель желательно делать снаружи помещения или также отдалять от моечных предметов. Светильники и бра у зеркала желательно запитывать через шнурок или клавишу-выключатель с противоположной от раковины/ванны стороны.
Гостиная
Для телевизора и музыкального центра розетку лучше делать на высоте 90-140 см. Расстояние от пола до выключателя должно быть не менее 0,9 м. Если предусмотрена установка кондиционера, точку питания под него выводят на уровне 20-40 см от потолка.
Кухня
В этом помещении существует несколько стандартов размещения точек питания. Они варьируется в зависимости от используемой техники:
- Первый уровень. Подразумевает монтаж розеток на высоте 10-15 см от пола. Сюда подключается мощный духовой шкаф, электроплита, морозильная камера, холодильник, измельчитель отходов. Удобство такого расположения заключается в том, что после установки встроенной кухни подобраться к розеткам иным способом как через шкафчики или стол снизу будет невозможно.
- Второй уровень. Здесь монтируют целый блок розеток на уровне 110-130 см от пола в зоне кухонного фартука. Благодаря такому расположению удается удачно подключить электрочайник, блендер, микроволновую печь, миксер и другие мелкие бытовые приборы, которыми удобно пользоваться на рабочей поверхности.
- Третий уровень. Монтируют точки питания для подключения электрической вытяжки, телевизора, подсветки. Высота локации равна 2-2,5 метра от пола.
Выключатель располагают сразу у двери на удобной для пользователя высоте. Как правило, она приближена к евростандартам и равняется 90-110 см.
Спальня
Пример расположения электроточек у кровати
Комнате отдыха рекомендуется придерживаться таких норм:
- С обеих сторон двуспальной кровати (независимо от её размера) делают по двойной розетке и по двухклавишному выключателю. Их располагают в 70 см от плинтуса. Это позволяет отдыхающему человеку, не вставая с постели, управлять освещением, ставить на подзарядку мобильный телефон, читать книгу под ночником.
- Основной выключатель ставится в комнате сразу при входе.
- Если в спальне предусмотрен туалетный столик, по обе стороны от него на высоте 70-90 см делают по розетке для подключения бра или фена.
Детская
Ещё 10 лет назад специалисты рекомендовали располагать все точки питания максимально высоко в детских комнатах. Это обеспечивает безопасность ребёнка и исключает вероятность его контакта с электросетью. Сегодня все штепсельные розетки оснащены специальными запорными крышками. Чтобы их поднять, малышу требуются усилия. Поэтому такие розетки можно монтировать согласно европейскому стандарту.
Выключатель в комнате ребёнка делают по его росту. Желательно устанавливать регулируемую точку питания, при помощи которой можно увеличивать или снижать интенсивность искусственного освещения. Под ночник лучше установить отдельную стандартную розетку с крышкой.
Кабинет
Для дорогой техники нужно обеспечить систему защиты от перепадов напряжения
Это помещение требует большего количества точек питания. Как минимум один блок нужно расположить в непосредственной близости к столу. Через него будут подключены персональный компьютер, монитор, роутер, принтер и ксерокс, аудиоколонки. Блок располагают в 30 см от уровня пола. Сколько точек питания в него будет входить, мастер решает сам в зависимости от количества будущей техники.
Если в кабинете предусмотрена библиотека, необходимо смонтировать розетку под торшер. Его устанавливают в зоне чтения. Точку питания под торшер также делают на евро-уровне 0,3 м.
На свободной стене будут располагаться еще 1-2 розетки. Их используют для подключения временной техники.
На какой высоте установить розетку.
Определиться с местом установки розетки гораздо сложней, чем в случае с выключателем. По так сказать «евростандарту» розетки должны устанавливаться на высоте – 30 сантиметров от уровня пола. Такая высота установки позволяет прятать сетевые провода от ваших домашних электроприборов.
Но при такой установке, следует учесть тот факт, есть ли в семье пожилые люди. Ведь для того, чтобы пользоваться розеткой им придётся наклоняться. Для молодых это не составит никаких проблем, а вот для пожилых это будет трудновато. Лучше тогда установить розетку немного выше, на уровне 40-50 сантиметров от пола.
Ещё низкая установка розеток может быть опасной, если в доме есть маленькие дети. Но с этой проблемой можно легко справиться с помощью обычных заглушек в розетки. Или же установить розетки со специальным секретом.
А для полной уверенности ещё и подключить их через устройство защитного отключения (УЗО).
В том случае, если розетка будет стоять возле вашего рабочего стола, то каждый раз наклоняться, чтобы включить зарядку от ноутбука или от телефона, или ещё что-то там, будет не совсем удобно. Я бы советовал сделать вам розетку на 10-15 сантиметров выше уровня стола. Так пользоваться нею будет намного удобней.
Высота розеток на кухне.
На электропроводку кухни следует обратить особое внимание. Дело в том, что зачастую все мощные электрические приборы находятся именно на кухне
И их может быть около 10 штук (духовка, микроволновая печь, посудомоечная машинка, электроплита, водонагреватель, стиральная машинка и так далее).

При монтаже электрической проводки на кухне, я всегда советую прокладывать отдельный провод с отдельным автоматом на каждую розетку. А саму розетку, устанавливать в том месте, где будут находиться электрические приборы.
Конечно, такой монтаж требует большое количество провода и как следствие большое финансовое вложение. Но лучше один раз потратиться, и потом пользоваться электропроводкой долгое время. Чем подключить провода «шлейфом», и потом иметь кучу проблем.
Так же если у вас стоит газовый котёл, то на него нужна в любом случае отдельная линия. Так как он очень чувствителен к перепадам напряжения. Поэтому монтируя розетку под котёл нужно учесть тот факт, что вам, возможно, придётся ставить стабилизатор напряжения.
Розетку для встроенной техники и стиральной машинки можно установить на высоте 5-10 сантиметров от пола. А можно и выше, главное, чтобы могли к ней дотянуться.

Для вытяжки и для подсветки, точки питания можно сделать над шкафчиками. Выключатель для подсветки можно сделать где-то сбоку, чтобы было удобно его включать и выключать.
Вся остальная мелкая техника обычно ставиться на стол. Значит и розетки нужно монтировать на уровне этой техники. А если кухонного гарнитура у вас нет, но вы его уже заказали, то обязательно нужно узнать его высоту, чтобы правильно распланировать места расположения всех розеток.
Ещё могу посоветовать сделать на кухне на несколько розеток больше. Вдруг вы в будущем захотите приобрести ещё какой-то электрический прибор.
Смотрите видео ролик о том, как размещать розетки на кухне.
Ещё один видео ролик.
Розетки в ванной комнате.
Ванная комната – это помещение с повышенным уровнем влажности. Поэтому розетки нужно устанавливать на безопасном расстоянии, чтобы на них не попадала вода. Условно помещение ванной комнаты можно разделить на три зоны. Смотрите на картинке.

В красной зоне есть огромная вероятность того, что на розетки может попасть вода. Поэтому их там устанавливать нельзя.
В жёлтой зоне можно установить водонагреватель и светильник.
А вот в зелёной зоне уже можно устанавливать розетки, только минимальное расстояние до источника воды должно быть 60 сантиметров и более.
Требования к установке выключателей и розеток
Вообще, ПУЭ достаточно требовательно подходит к нормам монтажа выключателей и розеток. Но для жилых помещений эти нормы значительно упрощены.
Сделано это, исходя из строительных реалий советской эпохи, когда площадь помещений и их конструкция просто не позволяли выполнить все эти требования.
Требования к установке розеток
Прежде, чем ответить на вопрос: на какой высоте делать розетки и выключатели, давайте определимся, где их можно устанавливать и каковы строительные нормы их монтажа.
Вариант расположения розеток в кухне
- Так, еще на этапе планирования вы должны учесть следующие нормы ВСН 59-88. В жилых помещениях должна иметься одна розетка на ток не менее 6А на каждые 6м2.
- Для коридоров эта норма уменьшается и одна розетка полагается на каждые 10м2 помещения.
- В кухнях п.12.27 ВСН 59-88 требует установки не менее трех розеток при площади помещения до 8м2. Если же площадь кухни больше, то должно быть не менее 4 розеток. При этом хотя бы одна из этих розеток должна быть на номинальный ток в 10 или 16А.
- Что касается ванной комнаты. То здесь п.7.1.37 ПУЭ разрешает устанавливать розетки только в случае их подключения через устройство УЗО. Конечно, еще возможен вариант установки через разделительный трансформатор, но для жилых помещений он не очень приемлем.
- А вот для дач и частных домов нормы ВСН 59-88 еще более занижены. Они требуют только установки 1 розетки в каждой комнате, кроме кухни. В этом помещении требуется не менее 2 розеток. Причем, номинальный ток этих устройств определяется проектом.
- А вот на чердаках ни нормы ПУЭ, ниВСН 59-88 не допускают установки розеток. И даже если там установлено какое-то электрооборудования, все коммутационные аппараты должны находиться вне чердака.
- Что же касается вопроса: на какой высоте розетки и выключатели можно устанавливать, то в целом здесь все зависит от удобства их эксплуатации. Обычно это расстояние — 30 см от пола. Но,например, для подключения холодильника, вытяжной установки или кондиционера удобнее расположить их выше.
Требования к установке выключателей
Что касается выключателей, то для жилых помещений нормы их установки также не очень требовательны.
Здесь стоит только четко определиться с тем, где выключатели устанавливать нельзя. А вот нормы по высоте носят в основном рекомендательный характер.
Расположение розеток и выключателей в жилых помещениях
- Прежде всего, следует помнить, что п.7.1.39 запрещает устанавливать выключатели в ванных комнатах и санузлах. Выключатели для этих помещений следует располагать в смежных помещениях.
- Это же касается и чердачных помещений, а также кладовых, где наша инструкция, как и п.2.1.74 ПУЭ, не рекомендует устанавливать выключатели. Выключатели для этих помещений следует устанавливать в любом удобном смежном помещении.
- Что же касается вопроса: на какой высоте розетка и выключатель должны быть установлены в жилых комнатах? То здесь расстояние от пола выбирается, исходя из удобства. Для строительных организаций п.12.29 ВСН 59-88 нормирует это расстояние в 1,5 метра. Сейчас же принято устанавливать выключатели на высоте 0,8 – 0,9м от пола. Это незначительное нарушение в угоду европейским стандартам уже практически стало нормой.
- Так же стоит помнить, что п. 7.1.40 ПУЭ нормирует не только расстояние, но и место установки выключателя. Оно должно находиться у дверей входа в комнату со стороны ручки. Если установлен выключатель с управлением при помощи шнура, то он должен находиться с той же стороны.
Расположение розеток и выключателей по правилам
Старый стандарт и новые тенденции моды. Обустраивая новый дом, или меняя проводку в старой квартире, хозяева задаются вопросом: «На какой высоте должны быть розетки и выключатели?» Представителям старшего поколения, возможно, будет больше по душе расположение выключателей по старинке, на уровне плеча, и высота розеток не ниже уровня пояса.
Молодёжь же, подверженная веяниям модных концепций, будет ориентироваться на евростандарт при решении данного вопроса. Стоит сразу обмолвиться, что так называемого «евростандарта» не существует в официальных правилах, регламентирующих подключение и расположение внутри помещений данных электротехнических устройств, есть лишь несколько ограничений по поводу их размещения, относительно противопожарной и электрической безопасности.
Высота розеток и выключателей: стандарты или здравый смысл?
Практически любой, даже небольшой косметический ремонт помещения включает в себя если и не полную замену существующей электропроводки, то хотя бы ее частичную модернизацию. Заключается такая модернизация обычно в восстановлении неработоспособных участков проводки, а также переносе имеющихся и добавлении новых точек. И если непосредственно прокладка проводов, «завязывание» разветвительных коробок, сборка электрических щитков и прочее — это задачи для специалистов, то выбор мест для размещения розеток и выключателей — прерогатива владельцев помещения.
Когда дело доходит до планирования расположения электроустановочных изделий, у владельцев возникает вопрос: а существуют ли какие-нибудь обязательные стандарты для такого случая?
Как таковых, жестких и обязательных к соблюдению стандартов на высоту расположения розеток и выключателей не существует — ни в России, ни в Европе. Поэтому устанавливать их можно на любом расстоянии от пола. Но при этом обязательно должны быть соблюдены четыре условия:
- Должна быть физическая возможность не только монтажа «точки» в выбранном месте, но и подведения к ней проводов.
- Должна обеспечиваться безопасность эксплуатации розетки или выключателя — здравый смысл подсказывает, что возле источников воды, сильного тепла и, тем более, открытого огня эти изделия лучше не устанавливать.
- Смонтированную розетку (ну, или выключатель) должно быть удобно эксплуатировать — выключатель под диваном так же неуместен, как и розетка на потолке.
- Крайне желательно иметь возможность оперативного доступа к «точке». В первую очередь это касается электророзеток, часто «прячущихся» за мебелью или бытовой техникой.
Если не брать в расчет «специализированные» помещения (типа кухни, санузла или ванной комнаты), то обычно условием, определяющим выбор места и высоты установки «точки», служит соблюдение пункта №3. Проще говоря, куда удобно — туда и ставим. Именно так и появился пресловутый «европейский стандарт», вовсе таковым не являющийся — это, по сути, просто наиболее часто выбираемая высота установки:
- Для розеток — 20-40 см от уровня пола;
- Для выключателей — оптимально 80-100 см от уровня пола.

Высота расположения розеток и выключателей
Продиктованы эти цифры следующими соображениями: при слишком низком расположении электрической точки велики шансы залить ее водой во время влажной уборки полов. Да и часто пользоваться ею не слишком удобно — приходится очень низко нагибаться. Если розетка смонтирована намного выше 40 см от пола — становятся слишком заметными шнуры питания включенных в нее электроприборов, что довольно неэстетично, а с точки зрения большинства дизайнеров — вообще преступно.

Для выключателей высота установки выбирается так, чтобы клавиша включения попадала «под руку» — для среднестатистического человека это как раз немного меньше метра от пола.
Исключение — это детские помещения, в которых рекомендовано вообще все электроустановочные изделия с питанием от сети 220 В располагать на высоте не менее 1,6 м от уровня пола; однако для частного жилого сектора это правило обязательным не является.

Рекомендованная высота по нормативным документам
Высота розеток от пола регулируется различными нормативными документами. В каждом стандарте прописано различное размещение, а также указана аргументация.
Требования СП и ГОСТ

В государственном стандарте прописаны следующие нормы:
- В ванной комнате расстояние от душевой кабинки до разъема не должно быть менее 60 см.
- Норма расположения розеток от кухонных плит и кондиционеров не указана.
- На кухне следует предусмотреть не менее 4 электророзеток, в жилых комнатах – по 1 на каждые 4 метра по периметру, в коридорах 1 на 10 м².
- Заказчик имеет право заказывать количество, если работы проводятся в частном, одноквартирном доме.

Высота расположения в доме розеток по ГОСТу, а также рекомендации по их монтажу прописаны в своде правил 31-110-2003. Здесь же указано рекомендуемое количество элементов, согласно площади помещения.
Правила электроустановок ПУЭ

Согласно Правилам установки розеток, жилец решает самостоятельно, на какой высоте монтировать розетки
При этом важно учитывать другие рекомендации, прописанные в ПУЭ:
- Электроприборы должны быть удалены от газопровода не менее чем на 50 см.
- Расстояние от входного проема и открытых источников воды до электрических приборов – не менее 60 см.
- Аппарат УЗО – необходимость в комнатах с высокой влажностью.
- Высота от пола до выключателя – не менее 1 метра.

Требования в ПУЭ разрабатывались согласно с правилами пожарной безопасности, а также безопасности эксплуатации электроприборов. Кроме того, были учтены нюансы по удобству использования.
Установка розеток по советскому стандарту

Стандартная высота розеток согласно советским требованиям составляет 90 см. Такой уровень обусловлен тем, что высота рабочего стола равна 75-80 см, что позволяет подключать все приборы, даже те, у которых короткий шнур питания.
При этом электророзетки буду располагаться вне зоны досягаемости для маленьких детей.
Высота розеток по евростандарту
Евростандарт гласит, что оптимальная высота установки розеток – 30 см от пола. Такое расположение позволит беспрепятственно меблировать комнату. Европейские стандарты рекомендуют осуществлять учет роста жильцов при планировании установки электророзеток.
При этом установка розеток по евростандарту положительно сказывается на декоративных качествах помещения, а также удобстве эксплуатации приборов, поскольку шнуры находятся на полу, не перекрывая проход.
Преимущества и недостатки советского и евро стандартов

Каждый из стандартов имеет положительные и отрицательные стороны, которые детально изложены в таблице.
| Советский стандарт | Евростандарт | |
| Преимущества |
|
|
| Недостатки | Низкие декоративные качества, поскольку электроточки находятся на видимом месте. |
|
Размещать розетки по советскому или евростандарту решает потребитель, исходя из личных требований и предпочтений.
Почему стоит размещать розетки и выключатели по современным стандартам:
Выключатели:
Всегда находятся возле двери и всегда возле дверной рукоятки (не за дверью или на другой стене);
Розетки:
- Устанавливаются только в тех местах, где точно не будет шкафов и другой мебели (так как перед монтажом вы планируете и расстановку мебели в том числе);
- Современные блоки защиты делают электропроводку безопасной для детей полностью (главное этим не пренебрегать);
- Как правило техника подключается к «своей розетке» и не требуется каждый раз отключать вилку из розетки (это к слову о неудобстве использования);
- Количество розеток и выключателей планируется таким образом, чтобы в последствии всё как говорится было «под рукой» и не требовалось использование дополнительных тройников и переносок.
На каком расстоянии от пола вешают выключатели и розетки
Высота установки строго не регламентируется в документах, правила устройства электроустановок дают лишь рекомендации по расположению. Придерживаться их или нет, решает хозяин квартиры.
Нормы ПУЭ рекомендуют устанавливать выключатели на расстоянии не более 1,7 м от пола. Это совпадает с советскими стандартами. В настоящее время расположение точек питания определяется удобством и дизайном помещения. Предполагается, что высота розеток может находиться на расстоянии 30-40 см от пола, а выключателей – от 80 до 100 см.
В кухне и ванной
Особенность ванной комнаты – это повышенная влажность. Высоту точек питания следует выбирать, опираясь на требования ГОСТи ПУЭ. Выключатель должен быть вынесен за пределы ванной. Электророзетки должны располагаться не ближе чем на 60 см от источника воды. Рекомендуемая высота для бытовых приборов:
- для бойлера 1,5 м;
- для фена, бритвы – 1 м;
- для стиральной машины не ниже метра.
На кухне электротехнические изделия должны располагаться на расстоянии 60 см от газопроводов и источников воды. Учитывая стандарты высоты мебели, электророзетки можно ставить на трех уровнях:
- 10-15 см от пола – точки питания плиты, холодильника, посудомоечной и стиральной машины;
- 110-130 см – для чайника, микроволновой печи, мультиварки и других бытовых приборов, которые размещены на рабочей поверхности;
- 200-250 см – для вытяжки и подсветки.
Размеры выбраны с учетом удобства доступа к розеткам.
В детской комнате и спальне
В спальне точек питания традиционно устанавливается меньше. Выключатель от основной люстры устанавливается около двери со стороны ручки на высоте 90 см. Около прикроватных тумб традиционно делаются по одной электророзетке с каждой стороны на высоте около 70 см. Дополнительная розетка на 2-3 разъема ставится около рабочего стола на уровне 30 см от пола. Если в спальне есть телевизор, электророзетку лучше скрыть за его корпусом.
В детской комнате выключатель должен устанавливаться на такой высоте, чтобы ребенок мог до него дотянуться, 70-90 см будут оптимальны. Розетку желательно оснащенную защитными шторками, следует поставить около кроватки и рядом с письменным столом на той же высоте, что и в спальне.
В коридоре и гостиной
В гостиной устанавливают несколько электророзеток за телевизором на уровне 1 м от пола. Дополнительно делают точки питания для светильников, музыкальных систем на комфортной высоте. Выключатель устанавливается один, около входной двери со стороны ручки. Для помещений с многоуровневым сложным освещением можно поставить выключатели на несколько клавиш.
Коридор оборудуют одним выключателем рядом с входной дверью. Розетку также делают одну рядом с бра на комфортной высоте.
Заключение
В дополнение к уже перечисленным правилам и способам обустройства розеток и выключателей хотим предложить Вам несколько вариантов маскировки проводов в жилых помещениях.
Оригинальные узоры из кабеля, сопровождающие их рисунки делают даже открытую прокладку кабеля эстетичной.
Дверки и раздвижные панели отлично скрывают розетки, выключатели и разноцветье проводов.
Специальные короба с держателями помогут «выбрать» лишнюю длину кабелей и при этом сделать блок розеток более защищенным от случайных повреждений.
Наконец, есть специальные удлинители с декоративно-защитной панелью, которые успешно позволяют скрыть гроздь проводов для подзарядки гаджетов.





































