REACHMONT 60 — Строительная компания – Доминанта
REACHMONT 60
Трехкамерная профильная система REACHMONT 60 была разработана в 2010 году. Оконная система проектировалась на основе современных технологий разработанных в Великобритании в области экструзии. И за столь короткий срок торговая марка REACHMONT уже хорошо зарекомендовала себя на нашем рынке.
Металлопластиковые окна из данной профильной системы могут похвастаться отличным уровнем теплопередачи, в оконную конструкцию можно установить стеклопакеты как шириной в 24 мм, так и в 32 мм, усилив тем самым характеристику теплопередачу окна. Окна из профильной системы REACHMONT 60 имеют современный внешний вид, который подчеркивает элегантная оптика углов приближенная к прямоугольной. Конфигурация профиля идеально подходит к любому дизайну интерьера.
Лучшим выбором для покупателя окна REACHMONT 60 от нашей компании делает выгодная цена в сочетании с безупречным качеством сборки и технологии контроля качества на производстве. Окна из профильной системы REACHMONT 60 полностью соответствуют ГОСТУ 30673-99 и хорошо подходят для остекления любых объектов, так как отвечают всем требования современного покупателя.
Характеристики профиля:
Монтажная ширина 60 мм
Трехкамерная система
Толщина лицевых и не лицевых внешних стенок — класс В.
Возможность установки стеклопакетов толщиной в 24 мм и 32 мм
Звукоизоляция: до класса 4
Воздухо- и водонепроницаемость: надежная защита от сквозняков, пыли и воды благодаря двум контурам уплотнений.
Элегантная оптика 15-ти градусных скосов на видимых лицевых поверхностях
Системы управления климатом AirDrive I, II и III
В окна встроены оптимальные механизмы проветривания — створки приоткрываются на 1-5 мм в зависимости от выбранного режима. Это НЕ внешние устройства (гребенки или клапаны), а именно ВСТРОЕННОЕ фурнитурное проветривание.
- AirDrive I: щелевое проветривание (1 режим)
- AirDrive II: дискретное многоступенчатое проветривание (3 режима)
- AirDrive III: дискретное многоступенчатое проветривание (5 режимов)
Мы стараемся не ставить гребенки из-за их внешнего вида (только по Вашему желанию). Клапаны в принципе не используем из-за того, что они нарушают целостность окна, снижают его герметичность и прочность (поскольку насквозь просверливается профиль и его армирование).
Негативные стороны окон reachmont
И все же не безупречные они, окна ричмонд. Отзывы со знаком «-» тоже присутствуют.
Профиль плохого качества
Так многие считают, плюс к этому Rexther с Forum House. Он пишет, что «Монблан» считается подделкой «Рехау». А «Ричмонд» — подделка «Монблана». И благодаря этому качество завершающего элемента в цепочке – далеко не лучшее. Вот такая вот лукавая схема.
Как обеспечить должный уход за окнами ПВХ во время их эксплуатации? Про это вы тоже сумеете прочесть на ресурсе.
Здесь Rexther откровенно зашёл слишком далеко. Ведь Lamborghini Aventador (2011) лучше Lamborghini Murcielado (2010), хотя и случился от него. Иное дело, что «Ричмонд» доступнее «Монблана». Но первый гораздо моложе, благодаря этому выгибать цену на такой профиль невыгодно.
Плохо сделан
Такой просвет между оконными штапиками остался у заказчика
Janfm2009 на форуме «Город специалистов» пишет: «Поставили оконный профиль reachmont. Отзывы о нем вроде неплохие, однако у нас просто ужас какой-то! Между штапиками щели, в которые неслабо задувает. На балконной раме какие-нибудь швы заваренные… Это хорошо? Я в праве требовать замену?»
Нет, это ненормально. И да, вы весьма даже вправе требовать новые окна. А прекраснее всего пускай вернут деньги, и вы с ними обратитесь в иную фирму. Кстати, быстрее всего, тут вина собственно монтажника, а не изготовителя. Точнее скажет только экспертиза.
Тяжело найти комплектующие
Существует мнение, что если профиль практически не распространен, благодаря этому комплектующие для него в случае неполадки достать тяжело. В действительности, изготовитель такого профиля – «Монблан-Ост» — достаточно знаменитый. Продолжительно искать его не придется. Более того, многие делали в «Ричмонд» и «Монблан» взаимозаменяемы.
Пластиковые окна и двери | ГК “Мастер Билл”
При выборе пластикового окна в первую очередь необходимо уделить большое внимание профилю. От качества этой конструкции зависит надёжность всего изделия
«МАСТЕР БИЛЛ» работает с профильными системами известного производителя – российского холдинга «МОНБЛАН». Это высококачественный, экологически безопасный продукт, разработанный с учётом дальневосточных климатических условий.
Мы осуществляем производство из профилей следующих марок:
Монблан Ричмонд 60
Монблан Термо 60
Монблан Эко 60
Монблан Норд 70
ПРОФМастер 70
Нестандартные решения
Монблан Ричмонд 60
Изящный дизайн профиля «МОНБЛАН РИЧМОНД 60» благодаря глянцевой поверхности и скругленным кромкам, в сочетании с высокими техническими характеристиками, отвечает современным требованиям покупателей к пластиковым окнам.Bданную профильную систему предусмотрена установка стеклопакетов как 24 мм, так и 32 мм.

Ширина профиля: 60 мм
Толщина стеклопакета: до 32 мм
Количество воздушных камер: 3
Армирование: П-образное стальное
Уплотнение: EPDM
Приведенное сопротивление теплопередаче: 0,64 м² х ºС/Вт (Класс В1)
Фурнитура: Siegenia-Aubi
Монблан Термо 60
Превосходные характеристики, изящный дизайн, а также высокие термосберегающие и звукоизоляционные свойства делают изделие Монблан Термо 60 весьма привлекательным для потребителя.
Главная особенность профиля Монблан Термо 60 заключается в том, что при монтажной ширине 60 мм он обладает пятью воздушными камерами. В результате такая конструкция способна более равномерно распределять температуру на внутренней стороне окна, благодаря чему заметно возрастают теплоизолирующие свойства.
Ширина профиля: 60 мм
Толщина стеклопакета: до 32 мм
Количество воздушных камер: 5
Армирование: П-образное стальное
Уплотнение: EPDM
Фурнитура: Siegenia-Aubi
Монблан Эко 60
Монблан Эко 60 – идеальное предложение для тех, кто заинтересован в выгодном соотношении «цена-качество», требователен к дизайну и заботится о своём здоровье.
Этот трёхкамерный профиль учитывает все особенности современных технологий установки окон, что обеспечивает минимум теплопотерь. К тому же, профиль отвечает высоким дизайнерским требованиям и сделан из экологически чистых материалов.

Ширина профиля: 60 мм
Толщина стеклопакета: до 32 мм
Количество воздушных камер: 3
Армирование: П-образное стальное
Уплотнение: EPDM
Фурнитура: Siegenia-Aubi
Монблан Норд 70
Монблан Норд 70 позволяет сохранять тепло даже в самых холодных уголках Земли.
Главное отличие данного пятикамерного профиля – глубина монтажа в 70 мм. Благодаря этому воздушные камеры в створке и раме располагаются наиболее оптимально, что обеспечивает максимальную теплоизоляцию и не допускает проникновения постороннего шума. Ширина профиля позволяет устанавливать стеклопакет до 42 мм.
Уровень теплозащиты этой модели соответствует первому классу. Окно из такого профиля можно устанавливать даже в Якутии, где температура воздуха опускается до – 60 ºС.

Ширина профиля: 70 мм
Толщина стеклопакета: до 42 мм
Количество воздушных камер: 5
Армирование: П-образное стальное
Уплотнение: EPDM
Фурнитура: Siegenia-Aubi
ПРОФМастер 70
Благодаря повышенной герметичности окон из профиля ПрофМастер 70 шириной 70 мм, в Вашем доме будут тишина и спокойствие. ПрофМастер 70 позволяет не только сохранить тепло и уют дома, но и сэкономить деньги на отоплении.
Ширина профиля: 70 мм
Толщина стеклопакета: до 42 мм
Количество воздушных камер: 5
Армирование: П-образное стальное
Уплотнение: EPDM
Фурнитура: Siegenia-Aubi
Нестандартные конструкции
При проектировании и строительстве коттеджей и загородных домов архитекторы стремятся подчеркнуть индивидуальность своего творения, применяя изделия, в том числе нестандартных форм. Как правило, в ход идут арочные, круглые, треугольные и трапециевидные пластиковые конструкции.
В силах группы компаний «МАСТЕР БИЛЛ» изготовить для Вас окна и двери из ПВХ практически любой конфигурации. По желанию заказчика изделия «уникальной» формы могут быть «глухими», открывающимися или поворотно-откидными.
Производство изделий практически любой конфигурации стало возможным благодаря большому опыту, накопленному нашими специалистами и приобретённому новейшему оборудованию. На уникальной гибочной машине немецкой фирмы «TRICKY» мы изготавливаем сложные арки даже очень малых радиусов из ПВХ-профиля со стальным армированием. Наши сотрудники имеют огромный опыт работы с подобными конструкциями и делают всё на высшем уровне.
Общие черты
У двух этих профильных систем есть много общего. Ввиду того, что российского потребителя больше всего интересует вопрос энергосбережения, пока исключим из рассмотрения системы профилей, предназначенные для объектов. Исходя из предназначения, они обладают не очень высокими потребительскими свойствами.
В России с её климатическими зонами от субтропиков до заполярья необходимо постоянно совершенствовать оконные системы. Даже на юге имеются серьёзные перепады температур, что требует применения конструкций с повышенным энергосбережением. Montblanc Nord и Rehau Sib Design рекомендованы к использованию в любых климатических поясах. И тот и другой имеют ширину (монтажную глубину) 70 мм. Можно устанавливать стеклопакеты примерно одной толщины, до 44 мм и 42 мм соответственно. Возможно использование двухкамерных стеклопакетов. Контуров резиновых уплотнителей по два. Уплотнители двухлепестковые.
Почему стоит выбирать окна Ричмонд?

- окна Ричмонд имеют стильную геометрию и оснащены стеклопакетом с толщиной 22-32 мм;
- пластиковый профиль для окон ричмонд имеет 3 или 4 камеры, что обеспечивает высокую теплоизоляцию в зимний период;
- высокий уровень звукоизоляции позволяет создать уютную тихую атмосферу в любом помещении;
- ПВХ окна Ричмонд абсолютно герметичны, поэтому в помещение не будет попадать холодный воздух и сквозняк;
- Ричмонт окна подходят для сложных климатических условий всех регионов России;
- оконный профиль Ричмонд гармонично вписывается в любой интерьер благодаря продуманному дизайну и разнообразию расцветок и форм (например, окна Ричмонд подойдут для остекления Г образного балкона или других сложных геометрических форм);
- при создании профиля используются экологически безопасные материалы;
- высокий уровень пожарной безопасности продукции.

Одна из главных характеристик, которая отличает профиль Ричмонд – его цена. Это отличный экономичный вариант, который по многим показателям не уступает более дорогим аналогам, например, немецкому Rehau.
Пластиковые окна Richmond от производителя комплектуются современной фурнитурой Axor, что позволяет сохранять конкурентоспособную цену при высоком качестве всех составляющих оконной системы.
Экономные системы Ричмонд прошли все необходимые проверки, поэтому продукция сопровождается соответствующими сертификатами гигиены и качества.
Mонблан – Новости
ГК Монблан, один из крупнейших производителей оконных и дверных профилей, представляет новые оконные системы REACHMONT SPACE 60 и REACHMONT PRESTIGE 70
REACHMONT SPACE 60

Это высококачественные профиль, позволяющий изготавливать окна с повышенным светопропусканием. Окна REACHMONT SPACE добавят на 10% больше света в Ваш дом и сохранят уют и тепло.Данная профильная система практически полностью совместима с уже известной оконной системой REACHMONT ECO.
В этой оконной системе может быть установлен современный камерный уплотнитель Термоконтур черного и серого цветов, который используется также в энергосберегающих системах REACHMONT PRESTIGE 70. Камерный уплотнитель имеет эластичную структуру и обладает улучшенными теплосберегающими свойствами. Уплотнитель не требует ежегодного ухода в отличии от обычных резиновых уплотнителей.
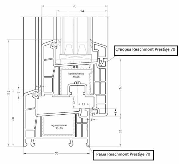
REACHMONT PRESTIGE 70

Профильная система REACHMONT PRESTIGE 70 специально рассчитана на удовлетворение потребностей клиентов, которые наиболее требовательно относятся к теплосбережению. Пятикамерная система REACHMONT PRESTIGE 70 обеспечивает оптимальную теплозащиту и звукоизоляцию. Использование этой профильной позволит нашим партнерам изготавливать более тёплые окна по доступным ценам для конечного потребителя.
Окна REACHMONT PRESTIGE 70 позволят насладиться тишиной и теплом.
Новые оконные системы REACHMONT полностью адаптированы под доборные профили Montblanc и Reachmont. Это позволит нашим партнерам не увеличивать складские запасы и номенклатуру артикулов, перейдя на новый качественный уровень.
Подробности Вы всегда можете узнать в отделе продаж.
Reachmont ECO
Естественным стремлением любого владельца жилья – это его уют и комфорт. Именно поэтому все максимально стремятся провести различные ремонтные работы и благоустроить свое жизненное пространство. Качество установленных окон можно считать один из самых важных составляющих, которое влияет на удобство вашего жилого помещения.
Не столь давно компания «Монтблан ОСТ» разработала и освоила выпуск новой линейки профилей – Ричмонд. Особенность этого профиля в том, что он рассчитывался специально под климатические условия РФ и при этом был «эконом» класса (т. Профиль Reachmont ECO это эконом-класс для холодных русских зим.
Окна из профиля Reachmont ECO отлично подойдут для остекления теплых балконов, лоджий, летних домиков, офисных, производственных и жилых помещений. При своей не высокой цене они обладают отличными эстетическими и эксплуатационными параметрами. Срок службы окон из этого профиля более 30 лет.
Источник : http://okna-cvetoslava.ru/plastic-windows/reachmont/reachmont-eco.html
Основные отличия Rehau и Montblanc
Пластиковые окна, изготовленные из профиля Рехау, имеют следующие отличия от изделий компании Монблан:
- У немцев представлен более широкий ассортимент – более десяти видов против семи.
- Самая бюджетная вариация Рехау – Euro-Design 60 – имеет глубину 60 мм, три камеры, звукоизоляцию 35 дБ, двухконтурный уплотнитель, наибольшую ширину стеклопакета 32 мм, сопротивление теплоотдаче 0,65. А аналогичный по классу профиль для окон из линейки Монблана – LOGIC – отличается толщиной 58 мм с теми же тремя камерами, стеклопакетом до 32 мм, двухконтурным уплотнителем имеет показатель сбережения тепла 0,58, а звукоизоляцию всего 30 дБ, но зато более низкую стоимость. Та же ситуация наблюдается с монблановским ECO 60. При совпадении основных характеристик ECO 60 все равно проигрывает немецкому конкуренту – 0,58 против 0,65 м2°С/Вт, 30 против 35 дБ.
- По максимальным характеристикам Rehau также вырывается вперед. Их наивысший коэффициент сопротивления потере тепла составляет 1,05 против 0,77 у Montblanc, звукоизоляция – 47 против 35 дБ, стеклопакет – до 54 против 52 мм, трехконтурное уплотнение у немцев против двухконтурного у российского изготовителя. Однако по монтажной глубине изделий выигрывают россияне – 120 мм против 86 мм.
Пластиковые окна REACHMONT (ричмонд)
Свойство экономии на приобретении чего-либо характерно для всех обычных, не избалованных ни судьбой, ни деньгами, россиян.
Именно для них австрийская компания в 2007 году впервые представила на отечественном рынке новые уникальные и достаточно надёжные пластиковые окна REACHMONT (Ричмонд). Эти бюджетные профили эконом-варианта полностью отвечают мировым стандартам качества, но при этом остаются доступными для всех без исключения потребителей.
Пластиковые окна Reachmont (Ричмонд) в состоянии полностью разрушить стереотип о том, что хорошее качество не может быть дешёвым и навсегда избавить от подобного мнения рядовых покупателей.
Совершенно недорогой профиль Reachmont пользуется хорошим спросом и имеет множество положительных отзывов тех, кто уже установил дома эти окна. Гармоничное сочетание цены и качества, а также привлекательный дизайн конструкций Reachmont (Ричмонд) заслуживает того, чтобы рассказать об этих окнах более подробно.
Характеристики профиля Richmond (Ричмонд)
Окна торговой марки Richmond пришли на российский рынок в 2007 году. Этот австрийский бренд быстро завоевал популярность у наших соотечественников качеством и невысокой ценой.
Сегодня, окна Richmond изготавливаются в России, но по австрийским технологиям и на британском высокотехнологичном оборудовании. К слову, металлопластиковые системы Montblanc производят на тех же станках.
Характеристики
- Трехкамерный профиль, шириной 58мм.
- Толщина внешних стенок профиля 2,6мм.
- Применяется армирование 1,2мм.
- Максимальная толщина стеклопакета 32мм.
- Коэффициент сопротивления теплопередаче м²°с/вт-0,63.
- Двухконтурное уплотнение.
- Шумоизоляция со стеклопакетом 32мм — 25 дб.
- Вязкость пластика кдж/м²-40,2.
- Гладкая поверхность, полуматовый.
- Рассчитан на использование в течение 25 лет.
Эксплуатационные свойства
Теплоизоляция. Говоря об эксплуатационных свойствах окон Richmond, первое что стоит отметить — это морозоустойчивость. Эти системы можно применять во всех природных зонах России. Так как температура эксплуатации от -35°С до +50°С. Они подойдут и для нашей зимы, и для жаркого южного лета.
Прочность и долговечность. Окна Richmond имеют П-образное армирование толщиной 1.2 мм. Оно усиливает прочность окна. Richmond сохраняет рабочие свойства до 25лет.
Эстетичность. Безусловно, продукция Richmond выглядит строго и современно. Слегка глянцевый профиль отлично впишется в интерьер.
Уплотняющий жгут — это эластичный элемент, который служит для фиксации полотна в профиле. Жгут имеет черный цвет.
Ценовая категория
Системы Richmond относятся к эконом-классу. Они стоят дешевле окон Rehau или KBE. Однако, касательно окон Richmond, дешевле не значит хуже. Соотношение приемлемой цены и хорошего качества делают продукцию Richmond значимым игроком на оконном рынке.
Источник : http://narodnyeokna.ru/kharakteristiki-profilia-Richmond.html
Как делают профили Montblanc?

окна монблан пластиковые окна монблан профиль окон монблан пвх окна монблан окна montblanc пластиковые окна montblanc окна монтбланк профиль монблан монблан профиль пвх профиль окон монблан оконный профиль монблан профиль монблан норд монблан оконные системы профиль montblanc montblanc профиль пвх монблан пвх пвх montblanc
История производства ПВХ-профилей насчитывает уже не одно десятилетие. Первыми российские просторы начали покорять оконные системы из Германии и Австрии, затем рынок заполнила турецкая продукция.
Очевидная перспективность нового для России продукта – окон из ПВХ-профиля, достаточно быстро породила отечественного производителя профильных систем, а конкуренция с мэтрами европейской экструзии потребовала высокого качества. Качество – важнейший вопрос на всех этапах производственных процессов.
Компания STL-Extrusion, появившаяся на отечественной рынке ПВХ-профилей в 2001 году, поставила перед собой задачу – производить профиль высочайшего европейского уровня. В отличие от ряда компаний, производящих ПВХ-профиль в России на оборудовании, уже достаточно отработавшем на предприятиях Европы, компания STL-Extrusion работает только на новом, суперсовременном, как для экструзии, так и для других производственных процессов.
Поставщиками сырья и компонентов для экструзии являются авторитетные и известные в мире производители, такие как Chemson Polymer – Additive AG (Австрия), Vinnolit Gmbh & Co.KG (Германия), Renolit A. G. (Германия), Klebchemie M. G. Becker Gmbh & Co.KG (Германия) и другие, сотрудничество с которыми – залог качества готовой продукции.
Тем не менее, все сырье проходит контроль в собственной лаборатории предприятия, оснащенной оборудованием не просто современным, но и позволяющим проводить уникальную компьютерную диагностику на цветность, глянцевитость и точность геометрических параметров. Лабораторному контролю (в соответствии с ГОСТом 30673-99) в обязательном порядке подлежат образцы из каждой партии готовой продукции.
Участок смесеприготовления оснащен лучшим в мире оборудованием компаний Henshel (Германия) и Plasmec (Италия), исключающим брак на этом технологическом этапе. Весь комплекс работает в автоматическом режиме, оснащен системой контроля и обеспечения качества, а также автоматическим программным контролем управления рецептурой. Участок смесеприготовления имеет большой резерв мощности и способен производить до 6 тонн смеси в час. Это позволяет не только регулярно вводить в строй новые линии, но и оперативно реагировать на потребности рынка.
Одна из важнейших особенностей STL-Extrusion – детальный подход к качеству на всех ступенях производственного цикла. В ходе высокотехнологичных процессов потребовалась вода повышенной очистки, и питьевую воду стали закупать на пищевом комбинате. Эта вода дополнительно смягчается и постоянно фильтруется, чтобы исключить попадание абразивов, а для исключения развития бактерий проходит биоочистку с помощью ультрафиолета.
Техническая и технологическая новизна производства позволила компании STL-Extrusion в короткие сроки наладить выпуск ПВХ-профиля, соответствующего самым высоким мировым образцам. Совместно с австрийской компанией A+G Extrusion Technology GmbH – лидером на мировом рынке экструзионного оборудования – были спроектированы и разработаны системы ПВХ-профилей с торговой маркой MONTBLANC
При их разработке особое внимание уделялось особенностям российского климата, в котором большое значение имеют эксплуатационные свойства
Стеклопакеты в окнах с профилем Ричмонд залог хорошей погоды в доме
Мультифункциональные стеклопакеты шириной до 40 мм в раме 70 мм не впустят холод в дом и не выпустят тепло наружу. Знойным летом дома окунетесь в прохладу, а снежной зимой — не будут страшны морозы. Двухконтурный силиконовый уплотнитель защитит стекла от промерзания, конденсата и продувания. Северный ветер или южное солнце теперь останутся за пределами квартиры. Наслаждайтесь комфортом, на какую бы сторону света не выходила оконная конструкция.
Мультифункциональный от 2 450 р/м² | от 1 800 р/м²
Энергосберегающие от 1 570 р/м² | от 950 р/м²
Солнцезащитный от 1 740 р/м² | от 1 200 р/м²
Шумозащитный от 1 890 р/м² | от 1 340 р/м²
Огнестойкие от 5 570 р/м² | от 4 800 р/м²
Ударостойкие от 3 680 р/м² | от 3 100 р/м²
Самоочищающийся от 2 430 р/м² | от 1 900 р/м²
Тонировка в массе от 2 390 р/м² | от 1 720 р/м²
Сложная геометрия другие не берутся, а мы давно делаем
Привычный прямоугольник — не единственный вариант оконной рамы. Оформите проем необычными формами
Пусть соседи и прохожие обращают внимание! Беремся за сложные индивидуальные фантазии на заказ. Дизайнеры компании имеют массу свежих идей для каждого стиля интерьера. Нужно только позвонить или связаться с менеджером онлайн
А хорошие отзывы про окна марки Ричмонд добавят решительности
Нужно только позвонить или связаться с менеджером онлайн. А хорошие отзывы про окна марки Ричмонд добавят решительности.
Треугольные от 6 915 р/м² | от 3 700 р/м²
Круглые от 5 610 р/м² | от 2 800 р/м²
Арочные от 3 340 р/м² | от 1 500 р/м²
Трапециевидные от 3 590 р/м² | от 1 650 р/м²
Ламинирование пластиковых окон бренда Ричмонд добавьте солидности внешнему облику
Имитацию натурального дерева придаст ламинация цветной пленкой. Не хотите такую расцветку? Палитра Ренолит удовлетворит вашего внутреннего эстета. Выбирайте любой цвет из 100 имеющихся вариантов в палитре и не переживайте, что белый пластик испачкается или изменит цвет. Пленка не царапается, не выгорает и в ежедневном уходе неприхотлива.
. и еще более 50 различных цветов
Полный комплекс услуг «под ключ» без головной боли
Затеяли замену оконной конструкции? Делайте все сразу! Зачем разводить грязь на долгие месяцы, когда можно все заказать здесь? Мастера с опытом работы от 7 лет установят отливы, подоконники и москитные сетки, а также оформят откосы быстро и как нельзя лучше. Согласитесь, приятно получать сервис бесплатно — уборка и вывоз мусора порадуют каждую хозяйку. Также осуществляем бесплатно аккуратную доставку на специальном транспорте с пирамидой. Отзывы и видео Клиентов об установке окон бренда Reachmont возможно найти на сайте компании в свободном доступе.
от 250 р пог/м | от 150 р пог/м
Подоконники (Danke, Moller, натуральный камень)
от 585 р пог/м | от 350 р пог/м
Откосы (ПВХ, гипсокартон, штукатурка)
от 500 р пог/м | от 300 р пог/м
Ручки (с замком, элитные)
от 635 р/шт | от 380 р/шт
Сертификаты — не словом, а делом
Вам не дают сертификат качества с синей печатью? Это огромный повод для сомнений! Будет ли гарантия, что оконные конструкции не делаются в грязном гараже засаленными неумелыми руками? А пластик Ричмонда имеет характеристики высокого качества? Окна-Хауз имеют сертификаты экологичности и качества, согласно ГОСТ 30674-99, СНиП 23-02-2003 и ISO 9001. Автоматизированная немецкая линия производства и контроль ОТК подвергают изделия сериям испытаний в разных условиях использования.
Фото Ричмонд окна — нет предела совершенству
Главный принцип работы компании — делаем Заказчику как себе. Регулярные благодарные отзывы Клиентов об окнах в профиле Ричмонд с завода Окна-Хауз окрыляют весь персонал. Покупайте окна бренда Ричмонд у официального производителя, чтобы потом не кусать себя за локти. Лучше один раз основательно вложиться, чем ежегодно ремонтировать и переделывать. Фотогалерея готовых работ приглянется даже самым требовательным и капризным Заказчикам. Хотите так же? Звоните прямо сейчас и заказывайте для квартиры и дома окна Reachmont в Москве и МО.
Пластиковые окна REACHMONT (ричмонд)
Свойство экономии на приобретении чего-либо характерно для всех обычных, не избалованных ни судьбой, ни деньгами, россиян. Именно для них австрийская компания в 2007 году впервые представила на отечественном рынке новые уникальные и достаточно надёжные пластиковые окна REACHMONT (Ричмонд). Эти бюджетные профили эконом-варианта полностью отвечают мировым стандартам качества, но при этом остаются доступными для всех без исключения потребителей.
Пластиковые окна Reachmont (Ричмонд) в состоянии полностью разрушить стереотип о том, что хорошее качество не может быть дешёвым и навсегда избавить от подобного мнения рядовых покупателей. Совершенно недорогой профиль Reachmont пользуется хорошим спросом и имеет множество положительных отзывов тех, кто уже установил дома эти окна. Гармоничное сочетание цены и качества, а также привлекательный дизайн конструкций Reachmont (Ричмонд) заслуживает того, чтобы рассказать об этих окнах более подробно.
Оконный профиль Ричмонт полностью отвечает требованиям современных стандартов и может применяться в регионах со значительными сезонными перепадами температуры.
Профильные системы Ричмонт экологически безопасны и рекомендованы к применению в детских и лечебно-профилактических учреждениях по результатам независимых лабораторных испытаний.

ПРОФИЛЬНЫЕ СИСТЕМЫ РИЧМОНТ

Это доступные оконные системы отвечающие всем самым современным требованиям надежности,энегоэффективности, шумоизоляции, долговечности. Комплексное техническое решение и широкая номенклатура вспомогательных профилей позволяет решать самые сложные архитектурные задачи. А продуманный современный дизайн и элегантный внешний вид способны удовлетворить самые изысканные вкусы
Где производится профиль?
Компания СТЛ Экструзия выпускает свою профильную продукцию на четырех заводах. Три из них расположены в Российской федерации, а один в Беларуси.
Компания выпускает такие марки, как Монблан, Гудвин, Ричмонт. Профильные системы Ричмонт производятся на заводе СТЛ Экструзия в городе Могилев (Республика Беларусь). Доля рынка профиля, выпускаемого данной компанией на белорусском рынке составляет 30%. Профиль Ричмонт производится по самым современным технологиям, применяемым в Европе, а многолетний опыт позволяет поддерживать высочайшее качество отвечающее всем европейским требованиям и гарантировать его надежность на долгие годы эксплуатации.
ПРОФИЛЬНЫЕ СИСТЕМЫ РИЧМОНТ: Ричмонт ЭКО(3 камеры, 60 мм), Ричмонт(4 камеры,60 мм ), Ричмонт 70 (4 камеры, 70 мм).
Преимущества пластиковых окон Reachmont (Ричмонд)
- окна Richmont (Ричмонд) имеют правильную геометрию, в основе которой лежит металлопластиковый профиль из трёх или четырёх камер. Стеклопакет толщиной до 32 мм обеспечивает не только высокую прочность, но и надёжную теплоизоляцию помещения. Он как раз и позволяет сэкономить на отоплении, когда за окном «минус»;
- система уплотнителей устойчива к сносу и не боится перепадов температур;
- оконные профили Richmont гарантируют максимальную звукоизоляцию;
- прочный материал обладает повышенной устойчивостью к агрессивным факторам из вне. И в солнцепёк, и в дождь, и в снегопад окна Richmont (Ричмонд) не потеряют своей привлекательности и эксплуатационных качеств;
- продуманный дизайн профилей, который хорошо подойдёт под любую отделку фасада и элементы интерьера, а также широкая гамма оттенков позволяют использовать данные окна в любом типе строения;
- толщина стенок профиля Richmont (Ричмонд) соответствует классу А, что гарантирует отсутствие деформации в процессе длительной эксплуатации;
- экологичность, пожароустойчивость и защита от взлома – ещё несколько «плюсов» в копилку положительных качеств окон Richmont (Ричмонд).
Как показывает практика, дешёвые оконные профили Richmont (Ричмонд) по своему внешнему виду и качественным особенностям, практически ничем не уступают более дорогим конструкциям. И если для сравнения выбрать окно Рехау Блиц , то вариант пластикового окна Richmont (Ричмонд) по счёту является аналогом первого, зато стоит на порядок дешевле. Невысокая стоимость профилей Richmont (Ричмонд) объясняется также тем, что фурнитура Axor для данных окон изготавливается в Днепропетровске, а не в далёких странах Еврозоны. При этом эти комплектующие высочайшего качества, так как технология производства – импортная.
Полное соответствие ГОСТу, наличие всех сертификатов качества и экологичности делает окна Richmont (Ричмонд) одними из самых востребованных на рынке. Вы сами можете убедиться в качестве и доступности данных профильных систем, заказав их у нас!
Дополнительные опции для пластиковых окон
При покупке пластиковых окон в компании «ПанОкна» вы можете включить в заказ специальные аксессуары и дополнительные опции, которые улучшают функциональность и внешний вид оконной конструкции.

Открывание пластиковых окон наружу дает возможность получить больше пространства в помещении.
Ламинация окон

Для ламинирования окон мы используем современные пленки Renolit с широкой палитрой цветов (под любые породы дерева, металл).
Москитная сетка

Сетки от комаров легко монтируются как на раздвижные, так и на распашные окна и эффективно защищают балкон и квартиру от насекомых, пыли, мусора и птиц.
Стеклопакеты

У нас вы можете приобрести стеклопакеты с различными видами покрытия, которые улучшают функциональность и теплоизоляцию окна.
Декоративная раскладка

Раскладка в окна – специальные декоративные профили, различной ширины, текстуры и цвета, которые устанавливают для визуальной разбивки стеклопакета.
Детский замок

Детские замки на окна выглядят аккуратно и не портят внешний вид окна. Главное предназначение – обеспечение защиты ребенка.
Оконная фурнитура

Качественная фурнитура обеспечивает легкость управления створками, защиту от продувания, долговечность и надежность работы окна.






























