интересные решения для маленькой квартиры
Независимо от того, покупаете ли вы свою первую квартиру или просто желаете улучшить масштабирование своей текущей квартиры, есть множество интересных решений, которые помогут оптимизировать ваше пространство.
Один из наиболее популярных и практичных методов для маленьких квартир – это антресольный этаж. Антресоль – это дополнительный уровень, верхняя часть которого размещается над уровнем пола комнаты, что позволяет увеличить жилую площадь и использовать вертикальное пространство. Дополнительный этаж может быть использован как спальня, рабочее место, хранилище, зона под отдых или всевозможные комбинации из перечисленного выше.
Если у вас маленькие комнаты, как пример на кухне, интеллектуальное планирование может существенно помочь. Например, вы можете добавить подвесные полки на стене над столом для хранения посуды или разместить маленький островок, который может использоваться как рабочий стол и место для исследования кулинарных премудростей.
Если у вас небольшая гостинная, то установка съемной модульной мебели поможет вам оптимизировать место. Некоторые модули могут использоваться в качестве столиков, другие – как шкафы или диваны. Таким образом, способность использовать пространство по мере необходимости, обеспечивая одновременно максимальный комфорт, останется на высоте.
Не забывайте также, что свет может играть важную роль в увеличении пространства вашей маленькой квартиры. Более светлое и яркое освещение визуально расширит пространство, создавая более открытую и просторную атмосферу. Предпочитайте натуральное освещение, когда это возможно, и убедитесь, что окна не заслонены тяжелыми шторами или жалюзи.
В то время как маленькие квартиры могут быть ограничены в площади, умное планирование и свободный подход к интерьеру могут значительно увеличить пространство и сделать квартиру более удобной и приятной для проживания. Антресольный этаж – только один из способов, которым вы можете оптимизировать свое жилище. Наполните свое жилье креативностью, и вы будете довольны результатом.
антресоль в современной квартире
Антресоль – это популярный архитектурный элемент, который становится всё более популярным в современных квартирах. Он является отличным решением для обустройства дополнительного пространства и используется в основном для создания дополнительного жилого или офисного пространства внутри квартиры.
Антресоль представляет собой пространство, которое находится между потолком и стеной. Он может быть использован как хранилище, рабочее место, спальня, гостинная или даже кухня. Этот элемент квартиры даже может быть оборудован мебелью, компактными приборами, люстрами и другими элементами, которые не занимают много места.
Что касается дизайна, антресоль его значительно улучшает
Он позволяет создать эффектную композицию интерьера, которая может привлечь внимание всех, кто заходит в квартиру. Вы можете воплотить самые смелые архитектурные решения, сделав пространство более привлекательным и функциональным
Если вы планируете использовать антресоль в своей квартире, то многие компании предоставляют специальные услуги, чтобы помочь вам реализовать ваши идеи. Они предоставят консультации, расскажут о возможностях использования антресоли и помогут вам создать оптимальное пространство в соответствии с вашими потребностями.
Таким образом, антресоль – это уникальное решение для оптимизации пространства в современных квартирах. Он позволяет использовать максимально возможное пространство, создать дополнительные зоны и сделать квартиру более функциональной и комфортной. Если вы хотите создать что-то особенное в своей квартире, то антресоль – это идеальный вариант для вас.
Планировка однокомнатной квартиры в новостройке
Если Вы собираетесь приобрести квартиру в новостройке, пусть и однокомнатную, наверняка Вам известно про возможность почти у каждого застройщика заказать нужную расстановку внутренних перегородок в квартире.
Так, обсудив нужную планировку с дизайнером и утвердив ее у застройщика, Вы получаете квартиру, полностью отвечающую Вашим ожиданиям.
Кому-то кухня нужна побольше, кому-то ванная, а кто-то может пожертвовать площадью коридора в пользу комнаты — все это возможно.
Потому таким преимуществом не стоит пренебрегать, и нужно всегда иметь в виду, когда на горизонте маячит приобретение новой квартиры в новостройке.
Рекомендации по оформлению
Дополнительная конструкция под потолком может зрительно утяжелять пространство, нарушать его сбалансированность.
Для того чтобы сохранить гармоничность интерьера, можно воспользоваться следующими советами:
- визуально добавить высоты навесным элементам помогут зеркальные панели;
- внешняя часть оформления, обращенная к полу должна быть преимущественно светлой или повторять отделку потолка;
- недопустимо перегораживание доступа к другой мебели или окну;
- в открытом состоянии дверцы не должны цепляться за осветительные приборы и другую мебель;
- если по дизайну требуется использование натурального дерева, а бюджет ограничен, можно применить хорошую имитацию.

Зрительно увеличивает пространство
Лестница
Доступ на антресольный этаж возможен только после создания лестницы, которая может иметь винтовую или маршевую конструкцию. В последнем случае есть два варианта, подходящих к различным условиям — это небольшая лестница с крутым уклоном, сохраняющая полезное пространство, или классическая с перилами. Несмотря на оригинальный внешний вид и компактность винтового вида, стоит помнить о его травмоопасности ввиду наличия нестандартных ступеней. Также на них практически невозможно занести крупные предметы мебели, к примеру, неразборную кровать. Независимо от конструкции лестницы, она в первую очередь должна обеспечивать легкий доступ на антресольный этаж в квартире.
Мобильная компактная лестница — это одна из особенностей лаунж-зоны
При выборе подобного варианта исполнения должно уделяться особое внимание не только архитектурным, но и эстетическим аспектам, так как подобное дополнение постоянно притягивает взор и должно отличаться гармоничностью пропорций и используемых материалов

Дизайн маленьких квартир от 31 до 35 кв. м.
Проект студии 35 кв. м.
Лучшие маленькие квартиры оформляются с помощью натуральных материалов – это вносит в их обстановку требуемую основательность, и позволяет обойтись без загромождающих пространство декоративных элементов, так как в качестве декора используется цвет и фактура самих материалов.
Паркетная доска, уложенная «елочкой», керамогранит с «мраморной» поверхностью, шпонированный МДФ – вот основные отделочные материалы в квартире. Кроме того, использовалась белая и черная краска. Деревянные элементы интерьера в сочетании с мраморными поверхностями позволяют насытить его интересным рисунком, при этом сохраняя свободным основной объем.
Гостиная объединена с кухней и столовой, а спальное место отделяется перегородкой, выполненной из металла и стекла. Днем ее можно сложить и прислонить к стене, так она не займет много места. Входная зона и санузел изолированы от основного объема квартиры. Кроме того, имеется постирочная.
Проект «Дизайн от Geometrium: студия 35 кв. м. в ЖК «Филиград»
Квартира с отдельной спальной комнатой 35 кв. м.
Красивые интерьеры маленьких квартир имеют, как правило, общую черту: за основу в них берется стиль минимализм, и к нему добавляется интересная декоративная идея. Такой идеей в 35-метровой «однушке» стала полоска.
Небольшое место для ночного отдыха выделяется стеной с нанесенными на нее горизонтальными линиями. Они зрительно делают крохотную спальню больше, и добавляют ритм. Стена, в которой спрятана система хранения, также «полосатая». Трековые светильники в интерьере поддерживают идею горизонтальных полос, повторяющихся и в мебели, и в отделке санузла.
Основной цвет интерьера – белый, в качестве контрастного используется черный. Текстильные элементы и панно в гостиной вносят нежные цветовые акценты и смягчают обстановку.
Проект «Дизайн однокомнатной квартиры 35 кв. м. с спальным местом»
Интерьер маленькой квартиры в стиле лофт 33 кв. м.
Это настоящий мужской интерьер с сильным характером, отражающим взгляды ее владельца. Студийная планировка дает возможность сохранить максимум возможного объема, выделив при этом необходимые зоны для работы и отдыха.
Гостиная и кухня разделены кирпичной барной стойкой, характерной для интерьера в стиле лофт. Между гостиной и домашним офисом поставили комод, к которому примыкает рабочий стол.
Интерьер насыщен сочными декоративными деталями, многие из которых сделаны вручную. При их изготовлении использовались старые, уже выброшенные вещи. Так, журнальный стол – это бывший чемодан, сиденья барных табуретов были когда-то сиденьями велосипедов, ножка торшера – фотоштатив.
Малогабаритная двухкомнатная квартира 35 кв. м. с компактной спальней
Основной цвет интерьера двухкомнатной квартиры – белый, это идеальный вариант для небольших помещений.
За счет сноса стены во входной зоне увеличили площадь кухни-гостиной. В гостиной зоне разместили прямой диван без подлокотников, а в кухонной – маленький диванчик у окна с ящиками для хранения.
Дизайнеры выбрали минимализм для оформления квартиры, это наиболее подходящий стиль для маленьких пространств, он дает возможность использовать минимум мебели и декора.
В компактной спальне установили трансформирующуюся кровать, она раскладывается одной рукой: ночью – это комфортное двуспальное место, а в дневное время – узкий шкаф. У окна расположили рабочее место с креслом и полками.
Фото дизайна маленькой двухкомнатной квартиры 33 кв. м.
Дизайн квартиры в современном стиле спроектирован для молодой семейной пары. На небольшой площади удалось найти место для кухни-гостиной и уютной спальни. При перепланировке малогабаритной двухкомнатной квартиры увеличили ванную комнату, а в прихожей разместили компактную гардеробную. На том месте, где прежде была кухня, разместили спальню.
Квартира оформлена в светлых тонах с добавлением ярких деталей – идеальное решение для небольших помещений, позволяющее визуально расширить их объемы.
В спальне в качестве цветных элементов выступает бирюзовый прикроватный столик, подушки на кровати и частичная отделка штор в салатовом цвете, в кухне-гостиной – бирюзовый стул современной формы, подушки на диване, крепления для полок и фоторамка, в ванной – верхняя часть стен.
Открытая планировка
Современные дома часто строятся с квартирами без межкомнатных перегородок. Вновь приобретенную жилую площадь можно спланировать соответственно с предпочтениями владельца.
Открытая планировка дает возможность совмещения разных по функциональному назначению зон. Столовая гармонично объединяется с кухней. Спальня легко превратится в гостиную, если кровать можно поднять и закрыть в шкафу.
Такая планировка имеет несколько неприятных характеристик:
- Если вместе живут хотя бы два человека с разным суточным ритмом, то выспаться скорее всего не удастся никому из них. «Жаворонки» и «совы» — это не вымысел.
- Шум на кухне понижает работоспособность человека, которому, например, срочно нужно сосредоточиться на поиске информации в интернете.
- Запах котлет приятен во время еды, но вряд ли кому-то понравится, если пищей будет пахнуть вся мягкая мебель.
- Если одному из членов семьи нужна тишина, то другому придется наслаждаться любимой музыкой в наушниках. Дорогостоящая аудиоаппаратура будет простаивать бесполезной мебелью.
- Каждому человеку иногда хочется побыть одному, наедине со своими мыслями. В однокомнатной квартире это возможно, только если человек живет один.
- С уменьшением количества стен острее становится проблема размещения вещей: негде поставить достаточное количество шкафов, полок, других систем хранения.
При всех недостатках популярность квартир с минимальным количеством перегородок нисколько не уменьшается. Наоборот, все больше дизайнеров создают новые образцы интерьеров, достойных воплощения в жизнь.
Причиной служат весомые выгоды обладателя квартиры-студии:
- Вместо нескольких крохотных комнат, подавляющих своей теснотой, получается одно просторное помещение. Появляется возможность применить фантазию для обустройства функционального интерьера.
- Для типовых планов советской эпохи достаточно сложно выбрать оригинальный дизайн. Открытая планировка позволяет изобрести множество нестандартных решений.
- Отсутствие перегородок дает больше естественного освещения от окон, что делает помещение еще просторнее.
- Когда в доме гости, то общение не прерывается ни на минуту, даже если хозяева находятся у кухонной плиты, а остальные смотрят телевизор.
Дом с антресольным этажом: его преимущества и недостатки
Как и говорилось выше, наличие антресольного этажа в первую очередь позволяет увеличить жилую площадь – так сказать, создать пусть небольшое, но все же дополнительное жилое пространство. Это является его основным преимуществом, кроме которого имеются и другие моменты, делающие антресоль весьма привлекательным элементом для многих людей. К таким моментам можно отнести следующее.
- Широкие возможности в плане дизайна: антресоль в доме – это не только дополнительная площадь, но и стильное украшение помещения, в котором она располагается. Это усиление интерьерного решения.
- Отличным декором служит в таких помещениях и лестница, ведущая на антресольный этаж – сделать ее можно практически в любом стилистическом исполнении, так что вписать все это дело получится в любой стиль интерьера.
Рациональное использование не только площади в доме или квартире, но и их объема.
В принципе, преимуществ достаточно, чтобы подумать над изготовлением такого балкона или, как его называли раньше, мезонин. Да, да, этот элемент строений пришел в нашу жизнь из далекого прошлого – это именно тот случай, когда смело можно сказать, что новое – это хорошо забытое старое, возвращающееся в нашу жизнь в несколько измененном виде.
Что нужно знать
Не стоит забывать про высокий риск нахождения на дополнительном пространстве для пожилых людей и маленьких детей
Также важно рассчитать несущие способности фундамента, так как основание, отличающееся подвижностью или располагающееся под старым домом, может просто не выдержать увеличившейся нагрузки
Не стоит расстраиваться при недостаточной высоте потолков и невозможности реализации подобной идеи. В случае если помещение кажется неуютным, несмотря на высоту, не достигающую 3 м, нужно искать проблему в неподходящем дизайнерском исполнении. Невысокие комнаты имеют множество положительных сторон, таких как меньшие затраты на ремонт и экономия на электроэнергии.
жилая антресоль в квартире цена
Антресольный этаж в квартире – это функциональное решение для тех, кто хочет обзавестись большим жильем с минимальными затратами. Антресоль, как правило, используется для установки второго яруса, который может быть использован как спальня, кабинет или гостинная.
Сегодня наша компания предлагает услуги по установке антресолей в квартирах. Все работы производятся опытными специалистами с использованием только высококачественных материалов. Наше предложение подойдет как для обычных квартир, так и для студий и квартир-студий.
Цена на жилую антресоль зависит от многих факторов, таких как площадь помещения, сложность работ, выбранный материал и другие. Мы готовы предоставить Вам бесплатную консультацию и оценку стоимости работ.
Антресольный этаж позволит создать дополнительное пространство в квартире и сделать жизнь более комфортной и функциональной. Вы можете использовать это пространство по своему усмотрению – для работы, отдыха или сна.
Наша команда профессионалов готова предложить Вам полный комплекс услуг по установке антресолей – от проектирования до установки и отделки. Мы гарантируем высокое качество работ и индивидуальный подход к каждому клиенту. Обращайтесь к нам и получите уютную жилую антресоль в Вашей квартире уже сегодня!
Квартира с антресолью
16.02.2012
Разработкой проекта занимались:
художественный руководитель и дизайнер Сергей Аветисов
архитектор Святогор Попов
визуализатор Виктор Мойсенко
Технические характеристики объекта:
общая площадь квартиры до проектирования – 72,1 м2
общая площадь квартиры после разработки проекта – 93,8 м2
Заказчик: ГК «СИНУР».
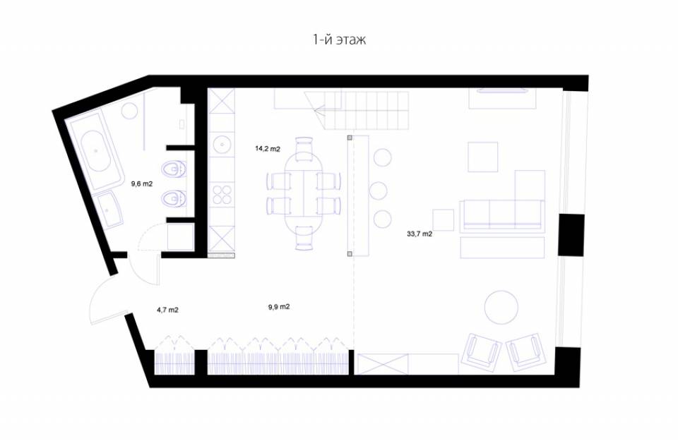
Квартира расположена на 24-м верхнем этаже ЖК “Премьер” в городе Сочи. При разработке дизайн-проекта перед архитектором была поставлена задача – создать комфортное и максимально открытое жилище для отдыха молодой пары. Также следовало учесть, что отправляясь на Юг, молодые люди могут проводить веселые и шумные вечера в компании друзей.

Гостиная-столовая. Вид в сторону кухни.
Планировка показала, что возведение второго уровня позволит вынести спальную зону хозяев из шумного пространства для вечеринок и отдыха гостей. Нижний уровень заполняет просторная гостиная, кухня-столовая с барной стойкой, связывающей оба пространства, небольшой коридор и прихожая, вмещающие обширное пространство для гардероба, ванная комната.



Спальная комната.


Ванная комната.

Возведение антресоли.

Планы с расстановкой мебели.

Жилой комплекс «СКАЙ ФОРТ», ЖК Соколиная Гора, Royal House on Yauza (Роял Хаус он Яуза), Большая Никитская 45, Lake House (Лейк Хаус), Трилогия, Loft Garden, Легенда Цветного, Богородский, Большевик, Родной город. Воронцовский парк, Город Кристалл, аппартамент МФК IQ-квартал, ЗИЛАРТ, Нахимовский 21, Green Park (Грин Парк), BALCHUG RESIDENCE (Балчуг Резидент), The MID, Варшавское шоссе 141, Пресня Сити, Мещерский Лес, Коминтерна вл. 10, Штат-18, Парк Плаза, Гришина 16, Воробьёв Дом, ИСКРА-ПАРК, Union Park (Юнион Парк), Loft Park, ВТБ Арена парк, Рассвет Loft-Studio, Sky House (Скай Хаус), ФилиЧета-2, Золотая миля, Фили Град, Сердце Столицы, Лос-Анжелес, V-House (В-Хаус), Wellton park, Долина Сетунь, Wine House (Вайн Хаус), Садовые кварталы, Царицыно-2, Штаб-Квартира на Мосфильмовской, Studio #12, Кленовый DOM, Тимирязевский, Ближняя дача, GRAND DELUXE на Плющихе, Площадь четырех ветров, «Резиденция Мон», Жилой квартал RedSide, МФК Crystal Towers, «Камушки», «Гранатный, 6», «Рассвет Loft*Studio», Art Residence (Арт Резидент), М-House, Воробьевы Горы, Loft River (Лофт Ривер), YE’S, ОКО, ЖК Триколор, Versis (Версис), Just M, Эмеральд, Воробьевы горы, Мосфильмовский, Дом на Мосфильмовской, Квартал на Ленинском, Лобачевский, The MID, Ломоносовский, Снегири Эко, Петра Алексеева, Грюнвальд, Сколково Парк, Futuro Park, Дом на Набережной, Махаон, Сады Пекина, Элитный квартал Литератор, Фьюжн Парк, Wine House, Ривердейл, RedSide, Loft Park, Park Avenue, Studio #8, TriBeCa Apartments, апарт-комплекс Art Residence, Шоколад, Клубный квартал Afi Residence Paveletskaya, Жилой комплекс Котельнический, Клубный дом Рассвет, Depre Loft, Loft Post, Balchug Residence, квартира, Гранатный Палас, Грантынй 6, Квартал 38, Сити Квартал, Пресня Сити, МФК Neva Towers, Barkli Residence, Квартал 38А
Практичность и экономия пространства
Антресоль может быть использована для различных целей. Например, это может быть рабочее пространство, где можно разместить рабочий стол и компьютер. Или же это может быть спальная зона, где можно уютно расположить кровать и создать уединенное место для сна.
Кроме того, антресоль позволяет сделать стильный и оригинальный интерьер. Здесь можно реализовать все свои дизайнерские идеи и создать уникальное пространство, которое будет отличаться от обычного одноуровневого интерьера.
Также, квартира с антресолью идеально подходит для семей с детьми. На антресоли можно разместить детскую зону, где будут расположены игрушки, книги и все необходимое для занятий и развлечений.
Таким образом, квартира с антресолью – это прекрасное решение для тех, кто преследует две цели: практичность и экономию пространства.
Антресоль в детской
Обустройство антресольного этажа в детской комнате также является удачным решением и имеет несколько вариантов использования.
- Таким способом можно выполнить зонирование детской и отделить спальную зону от игровой. При этом кровать нужно оставить на первом этаже;
- Если ребенок уже достаточно взрослый и ходит в школу, может потребоваться отделить игровую зону от спальной и рабочей. Можно поднять спальное место на антресоль, а под ней установить письменный стол и полки. Тогда освободиться часть комнаты, где ребенок сможет проводить время с друзьями. Либо отдать антресоль под игровую, а кровать и стол оставить на первом этаже. Детей такая идея приведет в восторг, ведь часто антресоль ассоциируется с подобием домика на дереве – своим личным пространством;
- Если в семье несколько детей, с помощью антресоли, можно организовать личное пространство, в том числе и спальное место, для каждого из них.
Советы по максимизации пространства
- Выжимать по-максимуму. Антресоль, расположенная под спальным местом, — прекрасный способ увеличения пространства, когда у вас маленькое помещение, но высокие потолки. На этапе проектирования дизайна такого рода помещения, архитекторами закладывается перекрытие для второго яруса (там обычно размещается спальня).
- Пытайтесь сэкономить. Всякий ремонт или строительство обходится дорого с точки зрения финансов, потому стоит консультироваться с инженерами-строителями. Они посоветуют, как правильно и без серьёзных трат сделать жилую антресоль, которая может стать спальным местом или будет использовать как хранилище.
- Соблюдать сочетание «два в одном». Жилая антресоль позволяет сочетать в одном помещении гостиную, спальню и даже ванную. Все необходимое в шаговой близости!
- Создать просторную гостиную. Не обязательно планировать помещение так, чтобы в нем была лишь спальня. Можно все расставить так, чтобы расширить гостевую зону, используя перекрытия, стекло, оптические трюки и многое другое.
- Использование высокого потолка. Создание дома с антресолью возможно лишь при наличии высоких потолков. Разделив высоту на половину, вычитайте толщину перекрытия. Помните, что все расчеты будут верными тогда, когда можно будет убедиться в том, что самому высокому члену семьи будет комфортно передвигаться по дому с таким сооружением.
- Подумать про освещение. Дому с антресолью потребуется хорошее освещение. Свет, проникающий через окна, сделает комнату визуально ярче.
- Оборудуйте кабинет.Если жизнь и работа на дому – одно целое, то стоит задуматься о собственном рабочем месте. И тут с этим может помочь антресоль. Там вы можете поставить стол, оборудование, и ваш кабинет готов.
- Задумайтесь о кладовой. Тем, кому повезло с потолками и их высотой, могут позволить себе разместить кладовую на антресоли. Это будет не сильно затратно, но крайне полезно в будущем для дома. Есть другой вариант – расположить кладовую под лестничными ступеньками. В таком случае антресоль может послужить для других целей. Кладовая под лестницей также принесет большую пользу, и потом не понадобится заказывать шкафы-купе и прочее.
- Приобретать мебель на заказ.Такая мебель может стать многофункциональным элементом всего дома и антресоли в том числе. К тому же не стоит забывать о второй цели – экономии пространства. Все этого может предоставить мебель на заказ.
Квартира с антресолью: элегантность и функциональность
Одной из особенностей квартиры с антресолью является возможность создать удивительно просторную область без необходимости увеличивать площадь помещения. Этот дополнительный этаж может быть использован в качестве спальни, рабочего кабинета или хранения вещей.
Квартира с антресолью также отличается своей элегантностью. Дизайнеры могут использовать различные материалы и элементы декора, чтобы придать интерьеру стиль и шарм. Как правило, антресоль оформляется в виде мезонина, с опорой на красивую лестницу.
| Идеи использования антресоли:
|
Квартира с антресолью — это не только элегантное и функциональное решение, но и отличная возможность создать уникальное пространство по своему вкусу. Последние тенденции в дизайне интерьера подтверждают популярность этой концепции, и владельцы таких квартир смогут насладиться всеми ее преимуществами.
Этап строительства
Все антресольные конструкции можно условно поделить на опорные и безопорные. Последние обустроить значительно труднее. Особенно если планируется большой выступ. Их следует закладывать ещё на этапе проектирования.
С опорными проще — в этом случае несущую балку будет поддерживать колонна или пилон. Толщина перекрытия может варьироваться. Она зависит от функционального назначения этажа.
«Скелет» антресоли может состоять из дерева или железобетонных перекрытий. Материал выберет проектировщик, он должен рассчитать нагрузку на площадку. Может потребоваться перенос коммуникаций, разработка новых схем теплоснабжения и вентиляции.
Архитектор Кендзи Хашимото
Студия Sirëe, дизайнер Desirée García Paredes, фотограф Yanina Mazzei
Зонирование, установка перегородок и стеллажей
Разделение единого внутрикомнатного пространства на отдельные жилые зоны — это инструмент дизайнера, позволяющий получить максимальную функциональность мест для отдыха, работы, приготовления пищи, приема гостей.
Рабочий стол, кухонная столешница будут максимально освещены рядом с окнами. Зоны можно разделить сквозными полками и диваном. Для визуального отделения спальни от остальной площади студии используются внутрикомнатные шторы или раздвижные стеллажи. Прихожую можно отгородить бамбуковыми занавесями.
При наличии балкона можно существенно увеличить обитаемое пространство квартиры. Придется пойти на значительные расходы, чтобы демонтировать балконную дверь с окном, поставить снаружи тройное остекление, утеплить лоджию, сделать отопление по схеме «теплый пол». Но результат будет оправдан получением нескольких дополнительных квадратных метров жилой площади.
Если в малогабаритной квартире проживает семья, то для каждого нужно предусмотреть небольшое личное пространство. Например, ребенку нужен письменный стол для выполнения домашних заданий. Желательно расположить его рядом с окном для максимальной освещенности днем. Рядом должны быть полки для книг, учебников, школьных принадлежностей.
Напольное покрытие также служит инструментом выделения, например, кухонной зоны. Тут целесообразно применить крупноразмерную плитку. Для остальной территории подойдет натуральная доска или ее имитация. Мелкий паркетный рисунок пола визуально уменьшит размеры комнаты.
Дополнительное преимущество получается при наличии высоких потолков. Тогда спальное место реально оборудовать на верхнем уровне. Там же можно расположить дополнительные полки и шкафы для хранения редко используемых вещей.
Обустройство места для хранения
На антресольном этаже, размещенном в шумной зоне жилища, рационально обустроить зону для хранения вещей.
- Такая зона может быть логическим продолжением кухни, размещенной под ней. Тогда сверху устанавливаются такие же по дизайну и цвету шкафы, как в кухонном гарнитуре. Там можно хранить мелкую бытовую технику, излишки посуды, либо создать полноценную кладовую для хранения консервации. Такому нужному уголку часто не находится места в современном интерьере;
- В малогабаритных квартирах часто не находится места для хранения домашнего текстиля – полотенец, постельного белья, дополнительных подушек и громоздких зимних одеял. Все эти предметы обычно распределяются в диванные и кроватные ниши или хранятся в шифоньерах. В итоге большинство предметов мебели имеют основательный и громоздкий вид, что в свою очередь визуально делает комнату еще меньше. Предпочтите более изящные и легкие предметы мебели, а все необходимое разместите на антресоли.
Дизайн маленьких квартир до 20 кв. м.
Дизайн интерьера маленькой квартиры 18 кв. м.
При площади 18 кв. м. необходимо экономить каждый сантиметр и использовать все возможности для того, чтобы увеличить маленькое пространство. С этой целью дизайнеры утеплили лоджию и объединили ее с жилой комнатой – для этого пришлось убрать балконный блок. На бывшей лоджии оборудовали кабинет для работы с угловой столешницей и открытыми полками для книг.
При входе поставили скамью, над ней расположили зеркало и вешалки для одежды. На скамье можно с удобством переобуться, а под ней – хранить обувь. Тут же располагается основная система хранения переменной ширины, часть ее отдана под одежду, часть – под бытовую технику.
Жилая комната поделена на функциональные зоны. Сразу за входной зоной начинается кухня, оборудованная всей современной техникой. За ней располагается гостиная – диван с маленьким столиком, над ним открытые полки для предметов декора и книг, а напротив – ТВ-зона.
Вечером гостиная превращается в спальню – диван раскладывается, и становится удобной кроватью. Между кухонной и гостиной зоной поместилась складная обеденная зона: стол поднимается и становится одной из секций системы хранения, а стулья складываются и выносятся на лоджию.
Проект «Компактный интерьер студии 18 кв. м.» от Людмилы Ермолаевой.
Дизайн-проект маленькой квартиры студии 20 кв. м.
Для того, чтобы создать лаконичный и функциональный интерьер, дизайнеры решили использовать открытую планировку и демонтировали все стены, которые не были несущими. Полученное пространство поделили на две зоны: техническую и жилую. В технической зоне расположили маленькую прихожую и сантехнический блок, в жилой оборудовали кухню-столовую, выполняющую одновременно роль гостиной.
В ночное время в комнате появляется кровать, которая днем убрана в шкаф и не мешает свободному передвижению по квартире. Возле окна нашлось место для рабочего стола: маленькая столешница с настольной лампой, над ней – открытые полки, рядом – удобное кресло.
Основной цвет дизайна – белый, с добавлением серых тонов. В качестве контрастного выбран черный. Интерьер дополнен деревянными элементами – светлое дерево вносит тепло и уют, а его фактура обогащает декоративную палитру проекта.
Современный дизайн маленькой квартиры 19 кв. м.
Для такой ограниченной площади лучшим стилистическим решением для оформления интерьера является минимализм. Белые стены и потолок, белая мебель лаконичной формы, сливающаяся с фоном – все это визуально увеличивает размеры комнаты. В качестве декоративных элементов используются цветные акценты и дизайнерские светильники.
Трансформируемая мебель – еще один ключ к успешному решению задачи размещения на маленькой площади всего, что необходимо для комфорта и уюта современному человеку. В данном случае диван гостиной зоны раскладывается, и гостиная превращается в спальню. Стол мини-кабинета легко превращается в большой обеденный.
Смотреть проект полностью «Компактный дизайн квартиры 19 кв. м.»
Квартира-студия в Киеве, 35 кв. м
Ещё один проект небольшой квартиры-студии основной идеей которого стало размещение спальни под потолком, но от предыдущих проектов есть некоторые существенные отличия. В киевской квартире площадью 35 квадратных метра было возведено несколько перегородок и полноценное горизонтальное перекрытие над ними. В результате, удалось увеличить полезную площадь помещения аж до 49 квадратных метров. Всё это стало возможным благодаря высокому потолку 4 метра, то есть разделение пространства по горизонтали пополам позволило создать два этажа высотой по два метра каждый.
Автор проекта: Иван Юнаков.
Площадь (по полу): 35 кв. м.
Страна: Украина.
Стиль: современный, лофт.

Вид от окна на входную дверь и спальню на втором ярусе
Под горизонтальным перекрытием компактно размещается сразу несколько помещений: прихожая, закрытая гардеробная с раздвижной дверью и санузел. Вдоль одной из стен выстроена современная лестница на антресоль (в спальную зону)
Чтобы не терять драгоценное пространство под лестницей дизайнер предусмотрел стеллаж, который стал важной частью интерьера

Кровать на втором ярусе

Вид сверху от спальной зоны на кухню и гостиную
Оставшаяся часть помещения разделена на две равные зоны: кухонную и гостевую. Важным акцентом интерьера стал бирюзовый диван с тканой обивкой. Именно он задаёт настроение этой «большой» комнате. В целом, в интерьере использована простая, но функциональная современная мебель.
Пространство для творчества и отдыха
Антресоль в квартире считается идеальным местом для создания своего собственного пространства для творчества и отдыха. Это место, где можно развернуть всю саму себя и заниматься любимыми делами, такими как чтение, писание, рисование или любое другое хобби.
Если вы являетесь профессиональным художником, писателем или музыкантом, антресоль может стать вашим личным ателье или студией. Здесь вы можете разместить ваши инструменты, материалы и все необходимое для работы. Благодаря высоким потолкам и большим окнам, вы будете наслаждаться хорошим естественным освещением, что является отличным условием для творческой работы.
Даже если вы не являетесь профессионалом, антресоль все равно может стать идеальным местом для того, чтобы развивать свои творческие способности. Здесь вы сможете хранить книги, журналы и все необходимые материалы для своих проектов. Будь то вышивка, рукоделие или другие рукотворные проекты, антресоль предоставляет уединенное и вдохновляющее место для вашего творчества.
Несмотря на свою небольшую площадь, антресоль может стать вашим местом для отдыха и релаксации. Создайте здесь уютный уголок с мягким креслом или диваном, в котором вы сможете читать книги, смотреть фильмы или просто отдыхать после долгого рабочего дня. Преимуществом антресоли является то, что она находится над главной зоной жилой комнаты, что позволяет оставаться на связи с другими членами семьи, даже когда вы находитесь в своем собственном личном пространстве.
Понятие «антресольный этаж»
В специальном стандарте «Здания жилые многоквартирные» — СП 54.13330.2011 есть четкое определение, что называется антресольным этажом.
Это внутренняя площадка, которая расположена в пределах одного этажа и не занимает более 40% площади помещения.
Главной особенностью антресоли является ее компактность и сравнительная легкость, а также небольшая толщина перекрытия. Отсюда вытекают и преимущества данной конструкции:
- Максимально рациональное использование свободного пространства;
- Эффект визуального исправления помещения вытянутой формы за счёт его деления;
- Интерьеры с антресолями выглядят современно и объемно.
К недостаткам можно отнести:
- Ограниченность по весу размещаемых предметов. Даже самые прочные сварные металлические конструкции не рекомендовано нагружать. Ввиду этого накладываются некоторые ограничения на выбор предметов мебели и их количество. Вы должны выбирать максимально простую и легкую мебель и ограничиваться лишь действительно необходимыми предметами;
- Не каждый может позволить себе обустроить ограждение на антресоли из шумопоглощающих перегородок ввиду их высокой стоимости. Поэтому часто подобные надстройки являются неизолированными от другой жилой зоны как полноценное помещение. Это может доставлять некоторые неудобства;
- Одновременно со способностью увеличить полезную площадь помещения, антресоль, ввиду своих конструктивных особенностей, будет и скрадывать пространство первого этажа. Неотъемлемым элементом надстройки является лестница, которая занимает довольно много места. Поэтому необходимо заранее продумать и самое оптимальное место ее размещения, и способы эргономичного использования пространства под лестничным пролетом.





































