Варианты подключения радиаторов
Чтобы знать, как правильно подключить батарею отопления, нужно учесть, что помимо типов разводки трубопровода существует несколько схем подключения батарей к отопительной системе. К ним относятся следующие варианты подключения радиаторов отопления в частном доме:
В этом случае подключение отводящей и подающей трубы производится с одной стороны радиатора. Такой способ подключения позволяет достичь равномерного прогрева каждой секции при минимальных затратах на оборудование и небольшой объем теплоносителя. Чаще всего используется в многоэтажных домах, с большим количеством радиаторов.
Полезная информация: Если батарея, подключенная к системе отопления по односторонней схеме, имеет большое количество секций, эффективность ее теплоотдачи значительно снизится из-за слабого прогрева ее отдаленных секций. Лучше следить за тем, чтобы число секций не превышало 12 шт. или использовать другой способ подключения.
Используется при подсоединении к системе отопительных приборов с большим количеством секций. В данном случае подводящая труба так же, как и при предыдущем варианте подключения, находится сверху, а обратка – снизу, но располагаются они с противоположных сторон радиатора. Таким образом, достигается прогрев максимальной площади батареи, что повышает теплоотдачу и улучшает эффективность обогрева помещения.
Эта схема подключения, иначе называемая «ленинградкой», используется в системах со скрытым трубопроводом, проложенным под полом. При этом подключение подводящей и отводящей труб производится к нижним патрубкам секций, расположенных на противоположных концах батареи.
Недостатком данной схемы являются теплопотери, достигающие 12-14 %, компенсировать которые позволяет установка воздушных клапанов, предназначенных для удаления воздуха из системы и повышения мощности батареи.
Теплопотери зависят от выбора способа подключения радиатора
Для быстрого демонтажа и ремонта радиатора его отводящая и подводящая трубы комплектуются специальными кранами. Для регулировки мощности он снабжается терморегулирующим устройством, которое устанавливается на подводящей трубе.
Какими обладают алюминиевые радиаторы отопления техническими характеристиками. вы можете узнать из отдельной статьи. В ней вы также найдете перечень популярных фирм-производителей.
А о том, что собой представляет расширительный бачок для отопления закрытого типа. читайте в другой статье. Расчет объема, установка.
Советы по выбору проточного водонагревателя на кран есть здесь. Устройство, популярные модели.
Как правило, монтаж отопительной системы и установка радиаторов отопления производится приглашенными специалистами. Однако, используя перечисленные способы подключения радиаторов отопления в частном доме, это можно сделать самостоятельно, строго соблюдая технологическую последовательность этого процесса.
Если выполнить эти работы точно и грамотно, обеспечив герметичность всех соединений в системе, с ней не возникнет никаких проблем при эксплуатации, а расходы на монтаж будут минимальными.
На фото пример диагонального способа установки радиатора в загородном доме
Порядок действий при этом будет следующим:
- Демонтируем старый радиатор (при необходимости), предварительно перекрыв отопительную магистраль.
- Производим разметку места установки. Фиксация радиаторов производится на кронштейны, которые нужно прикрепить к стенам, с учетом нормативных требований, описанных ранее. Это нужно учитывать при разметке.
- Крепим кронштейны.
- Собираем батарею. Для этого на имеющиеся в ней монтажные отверстия устанавливаем переходники (идут в комплекте с прибором).
Внимание: Обычно два переходника имеют левую резьбу, и два – правую!
- Для заглушки неиспользуемых коллекторов используем краны Маевского и запорные колпачки. Для герметизации соединений используем сантехнический лен, наматывая его на левую резьбу против часовой стрелки, на правую – по часовой.
- Прикручиваем краны шарового типа к местам соединения с трубопроводом.
- Вешаем радиатор на место и соединяем его с трубопроводом с обязательной герметизацией соединений.
- Производим опрессовку и пробный пуск воды.
Таким образом, перед тем, как подключить батарею отопления в частном доме, необходимо определиться с типом разводки в системе и схемой ее подключения. Монтажные работы при этом можно выполнить и самостоятельно, учитывая установленные нормы и технологию процесса.
Как проводится установка батарей отопления в частном доме видео продемонстрирует вам наглядно.
Основные варианты
Есть несколько различных систем обогрева и несколько вариантов их подключения. В частности, отопление может быть однотрубным или двухтрубным, принудительной или естественной циркуляции.
Однотрубные варианты сетей обогрева подразумевают такое подключение, при котором теплоноситель движется от радиатора к радиатору по одной труде, проходя их последовательно. Как правило, именно такая схема применяется повсеместно в многоквартирных домах старой застройки, в то же время в новых городских квартирах уже делают двухтрубный вариант подключения.
Вторая труба служит для отвода теплоносителя из радиатора, после того как его туда подали посредством первой. Это позволяет теплоносителю иметь одинаковую температуру на всех участках цепи отопления и регулировать его движение, следовательно, температуру в каждом конкретном греющем устройстве. Схема подключения батарей отопления в квартире выполняется в зависимости от подводной обвязки. Нельзя однотрубную схему переделать на двухтрубную в случае, если остальные квартиры применяют однотрубную систему.
Теперь давайте рассмотрим вопрос, как подключить радиатор отопления, в зависимости от потребностей и возможностей каждой из этих систем.
Вход-выход
Строго говоря, каждый из представленных вариантов, как правильно подключать батареи отопления, имеет свои преимущества и недостатки. Например, самый простой способ – однотрубное подключение, с одной стороны радиатора в верхнюю часть заводится теплоноситель, из нижней части он выводится дальше.
Наиболее частый вариант подключения, его ещё называют нормативным. Практически не даёт потерь тепловой энергии. Лучше всего дополнять такое подключение байпасом, для возможности регулировки и ремонта радиатора.
Как правило, последовательное подключение батарей отопления производят по описанной или следующей схемам.
Самый простой способ – однотрубное подключение, с одной стороны радиатора в верхнюю часть заводится теплоноситель, из нижней части он выводится дальше.
Диагональное
Несмотря на свою высокую эффективность – встречается довольно редко, видимо из-за сложности в обвязке и расходе дополнительных материалов. Выполняют следующим образом: в верхнюю часть радиатора заводят теплоноситель – из нижней части с противоположной стороны делают его выход.
Ленинградка
Самое правильное подключение батареи отопления, если речь идёт о горизонтальной прокладке стояка. Вход производят со стороны ближней к току теплоносителя, вывод с противоположной стороны, и то и другое соединение находятся при этом в нижней части батареи.
Частенько Ленинградку дополняют байпасом, для того чтобы была возможность управлять потоком теплоносителя и регулировать температуру в радиаторах. Названа она так, потому что разработана и впервые начала применяться именно в Ленинграде.
Тем не менее, несмотря на всю оригинальность и управляемость рассмотренной системы – у неё есть существенный минус, а именно теплопотери, которые составят до 15% от общего показателя. Что, согласитесь, не очень хорошо, когда отапливаешь дом газом за свои деньги.
Мы рассмотрели выше основные способы подключения батарей отопления, применяемые для однотрубных сетей. Параллельное подключение батарей отопления в однотрубной системе выполнить невозможно, так как нет возможности подвести теплоноситель отдельно к каждому греющему элементу.
Для двухтрубной системы нет необходимости строить хитрые схемы последовательного подключения, обычно в таких сетях подключают радиаторы нормативным способом, реже диагональным.
В случае, если теплоноситель циркулирует без насоса, естественным образом, подключение идёт всегда диагональным способом, так как он обеспечивает наименьшее сопротивление на пути движения теплоносителя.
Куда поставить циркуляционный насос
В большинстве схем обвязки теплоаккумулятора с циркуляционным насосом, он стоит в обратном трубопроводе перед котлом. В обратке — потому что тут ниже температуры, но можно поставить и на подаче. Современные насосы рассчитаны на прокачку теплоносителя до 110°C, так что они там неплохо себя чувствуют. Второй момент: при установке на подаче, насос не будет создавать дополнительное давление на теплообменник, что продлит срок его службы.
В любом случае при установке циркуляционного насоса в подаче или на обратке, возможность естественной циркуляции отсутствует. То есть, при отключении электроэнергии, циркуляция остановится, котел неминуемо закипит. Чтобы избежать этого, ставят четырехходовой клапан, через который организуют сброс перегретой воды в канализацию и подпитку холодной водой из ХВС. Так организуется аварийное охлаждение теплообменника и предупреждается закипание теплоносителя.
Один из способов избежать перегрева теплоносителя в котле отопления
Есть и другой способ. Он более щадящий по отношению к теплообменнику (подходит и для чугунных) и требует меньше материалов. Можно сделать обвязку между котлом и теплоаккумулятором для отопления так, чтобы сохранить естественную циркуляцию. В таком случае при отключении электропитания котел не закипит — будет продолжать греть воду в емкости.
Для сохранения естественной циркуляции теплоносителя, насос ставят в отдельном, специально созданном контуре. Чтобы схема работала, в контуре ставят лепестковый обратный клапан большого сечения.
Так сохраняется естественная циркуляция даже при отсутствии электропитания
Когда не работает циркуляционный насос, он пропускает поток теплоносителя от ТА. При работе циркуляционного насоса, он своим напором подпирает клапан и теплоноситель идет через насос. На насос идет труба не менее дюйма в диаметре. Только в этом случае может сохраниться естественная циркуляция.
Как правильно установить
Теперь о том, как навешивать радиатор. Очень желательно чтобы стена за радиатором была ровной — так работать проще. На стене размечают середину проема, чертят горизонталь на 10-12 см ниже линии подоконника. Это линия, по которой ровняют верхний край отопительного прибора. Кронштейны надо устанавливать так, чтобы верхняя грань совпадала с начерченной линией, то есть было горизонтальным. Такое расположение подходит для систем отопления с принудительной циркуляцией (при наличии насоса) или для квартир. Для систем с естественной циркуляцией делают небольшой уклон — 1-1,5% — по ходу теплоносителя. Больше делать нельзя — будут застои.

Правильная установка радиаторов отопления
Крепление к стене
Это надо учитывать при монтаже крюков или кронштейнов для радиаторов отопления. Крюки устанавливаются по типу дюбелей — в стене сверлится отверстие подходящего диаметра, в него устанавливается пластиковый дюбель, а крюк в него вкручивается. Расстояние от стены до отопительного прибора регулируется легко — вкручивая и выкручивая корпус крюка.

Крюки для чугунных батарей отличаются большей толщиной. Это — крепеж для алюминиевых и биметаллических
При установке крюков под радиаторы отопления учтите, что основная нагрузка приходится на верхний крепеж. Нижний служит только для фиксации в заданном положении относительно стены и его устанавливают на 1-1,5 см ниже чем нижний коллектор. В противном случае вы просто не сможете радиатор навесить.

Один из видов кронштейнов
При установке кронштейнов их прикладывают к стене в том месте, где будут монтировать. Для этого сначала приложите батарею к месту установки, посмотрите куда «встанет» кронштейн, отметьте место на стене. Положив батарею, можно кронштейн приложить к стене и разметить расположение крепежа на нем. В этих местах сверлят отверстия, вставляют дюбеля, прикручивают кронштейн на винты. Установив все крепежные элементы на них навешивают отопительный прибор.
Крепление к полу
Не все стены могут удержать даже легкие алюминиевые батареи. Если стены сделаны из легкого бетона или обшиты гипсокартоном, требуется напольная установка. Некоторые виды чугунных и стальных радиаторов идут сразу на ножках, но они не всех устраивают по внешнему виду или характеристикам.

Ножки для установки алюминиевых и биметаллических радиаторов на пол
Возможна напольная установка батарей отопления из алюминия и биметаллических. Для них есть специальные кронштейны. Их крепят к полу, потом устанавливают отопительный прибор, дугой закрепляют нижний коллектор на установленных ножках. Подобные ножки есть с регулируемой высотой, есть с фиксированной. Способ крепления к полу стандартный — на гвозди или дюбеля в зависимости от материала.
Схема трубной разводки
Начнем со схем трубной разводки
Почему это так важно? Дело в том, что не к каждой разводке можно подключить радиаторы тем или иным способом. Чтобы это понять, необходимо рассмотреть оба типа трубных систем
Однотрубная схема
По сути, это кольцо из труб, в центре которого установлен отопительный котел. Такие схемы встречаются и в многоэтажных зданиях, и в частном малоэтажном домостроении. Это самая простая отопительная система, самая дешевая, но и самая сложная в плане контроля и регулирования температурного режима. С помощью такой схемы регулировать подачу теплоносителя практически невозможно, поэтому в ней не используются устройства для управления теплотехническим процессом.
Получается, что в самом начале строительства дома еще проектировщики закладывают расчетную норму тепловой отдачи. И изменить ее в процессе эксплуатации не представляется возможным. То есть потребитель получает то, что заложено в проекте.
Двухтрубная схема
Двухтрубная система отопления в этом плане более мобильна. Само название говорит о том, что в трубной разводке присутствуют два контура — подача и обратка. Это совершенно разные трубопроводы, каждый со своими функциями. В первом теплоноситель движется от котла отопления к радиаторам, а во втором уже охлажденный теплоноситель идет от батарей к котлу.
В этой схеме намного больше способов правильного подключения радиаторов. К тому же в ней отопительные приборы работают намного эффективнее, поскольку теплоотдача у них выше.
Плюсы байпаса
Домовладельцу иногда сложно принять решение по рекомендации специалистов при монтаже однотрубной системы отопления об установке байпаса. Принцип прост: в конструкцию включается обводная труба (это и есть байпас), которая сэкономит материальные ресурсы, и позволяет вести локальный ремонт радиатора без отключения всей системы. Последнее актуально для владельцев частных домов и для жильцов типовых многоэтажек прошлого века.

Фото 1. Радиатор, подключенный к отопительной системе. Стрелками указано расположение байпаса и шаровых кранов.
Для обладателей обширного жилого помещения с однотрубной системой теплоснабжения, станет целесообразным подключение «обводки». Она представляет собой отрезок трубы, который устанавливается в непосредственной близости от радиатора. Диаметр трубы на одну позицию ниже, чем сечение основного трубопровода. Это объясняется тем, что при подаче носителя, вода предпочитает устремляться по каналам большего диаметра. Таким образом, появляется возможность безболезненно для отопления дома начать ремонт протекающих узлов радиатора.
Самотечная система не обеспечивает комфортную (и регулируемую) температуру в жилых помещениях, вот здесь и необходим байпас. Мастера монтируют обводную трубу с расположенным в ней циркуляционным насосом и термодатчиками. Не беда, если прервётся энергоснабжение — байпас направит потоки воды по принципу «самотёка» и в аварийном режиме. Обводная труба приносит экономию домовладельцу до 25% платы за электроэнергию, перемежая самотёк и принудительную циркуляцию теплоносителя.
Внимание! Циркуляционный насос устанавливайте в обводную трубу, придерживаясь правила «криволинейности»: чем больше изгибов, тем меньше теплопроводность системы отопления. Байпас с двух сторон «окружается» шаровыми кранами для ограждения подачи воды в определённый радиатор. Байпас с двух сторон «окружается» шаровыми кранами для ограждения подачи воды в определённый радиатор
Байпас с двух сторон «окружается» шаровыми кранами для ограждения подачи воды в определённый радиатор.
Каковы особенности применения полипропиленовой трубы 40 мм для отопления
При проектировании и монтаже системы отопления всегда возникает вопрос – трубы какого диаметра использовать при работе. Диаметр (а значит, и пропускная способность труб) важен, так как необходимо обеспечить скорость теплоносителя в пределах 0,4–0,6 м/с, которая рекомендована специалистами. При этом к теплоносителям (к радиаторам) должно поступать необходимое количество энергии.
При скорости меньше 0,2 м/с происходит застаивание воздушных пробок. Скорость больше 0,7 м/с нерационально применять в плане энергосбережения, так как сопротивление движению жидкости становится значительным (оно прямо пропорционально квадрату скорости). Также при превышении этой скорости появляется вероятность возникновения шума в трубопроводах малых диаметров.
Труба полипропиленовая 40 мм все чаще применяется в системах отопления даже при наличии недостатков в виде сложности обеспечения качества стыков и значительного расширения под воздействием тепла. Такие трубы стоят недорого и просты в монтаже, а это зачастую – решающие факторы.
Полипропиленовые трубы подразделяются на несколько видов, в зависимости от технических характеристик и условий эксплуатации. Для отопления применяются марки РN25 (РN30), рассчитанные на рабочее давление в 2,5 атм при температуре жидкости не более +120 °С.
Труба полипропиленовая 40 мм, армированная алюминиевой фольгой или стекловолокном, используется для отопления. Армировка не позволяет материалу сильно расширяться при нагревании.
Некоторые специалисты выбирают трубы с внутренней армировкой стекловолокном. Их чаще всего применяют в частных системах отопления.
Трубы изготавливаются стандартных диаметров, из которых нужно выбрать наиболее подходящий. Существуют типовые решения, с помощью которых можно подобрать диаметр трубы для отопления дома. Они позволяют в 99 % случаев выбрать оптимальный диаметр без выполнения гидравлического расчета.
К стандартным диаметрам полипропиленовых труб относятся – 16, 20, 25, 32, 40 мм.
Стандартные наружные диаметры полипропиленовых труб – 16, 20, 25, 32, 40 мм. Этим значениям соответствует внутренний диаметр труб марки РN25 – 10,6, 13,2, 16,6, 21,2, 26,6 мм.
Более подробные данные о наружных и внутренних диаметрах и толщине стенки полипропиленовых труб можно посмотреть в таблице.
Наружный диаметр, мм | PN10 | PN20 | PN30 | |||
Внутренний диаметр | Толщина стенки | Внутренний диаметр | Толщина стенки | Внутренний диаметр | Толщина стенки | |
16 | 10,6 | 2,7 | ||||
20 | 16,2 | 1,9 | 13,2 | 3,4 | 13,2 | 3,4 |
25 | 20,4 | 2,3 | 16,6 | 4,2 | 16,6 | 4,2 |
32 | 26 | 3 | 21,2 | 5,4 | 21,2 | 3 |
40 | 32,6 | 3,7 | 26,6 | 6,7 | 26,6 | 3,7 |
50 | 40,8 | 4,6 | 33,2 | 8,4 | 33,2 | 4,6 |
63 | 51,4 | 5,8 | 42 | 10,5 | 42 | 5,8 |
75 | 61,2 | 6,9 | 50 | 12,5 | 50 | 6,9 |
90 | 73,6 | 8,2 | 6 | 15 | ||
110 | 90 | 10 | 73,2 | 18,4 |
Читайте материал по теме: Как выбрать фитинги для полипропиленовых труб
Нам требуется обеспечить подачу необходимой тепловой мощности. Она будет находиться в прямой зависимости от количества поданного теплоносителя, но скорость движения жидкости не должна превышать 0,3–0,7 м/с.
Исходя из этого, существует следующее соответствие подключений (для полипропиленовых труб указывается наружный диаметр):
16 мм – при монтаже одного или двух радиаторов;
20 мм – при монтаже одного радиатора или небольшой группы радиаторов (радиаторы «обычной» мощности от 1 до 2 кВт, максимальная подключаемая мощность не выше 7 кВт, количество радиаторов не более 5 шт.);
25 мм – при монтаже нескольких радиаторов (обычно не более 8 шт., мощность не выше 11 кВт) одного крыла (плеча тупиковой схемы разводки);
32 мм – при подключении одного этажа или целого дома в зависимости от тепловой мощности (обычно не более 12 радиаторов, соответственно, тепловая мощность не выше 19 кВт);
40 мм – для магистрали одного дома при ее наличии (20 радиаторов – не выше 30 кВт).
Разберем выбор диаметра труб подробнее, основываясь на заранее рассчитанные табличные соответствия энергии, скорости и диаметра.
Обратимся к таблице соответствия скорости к количеству тепловой мощности.
В таблице представлены значения тепловой мощности (Вт), а под ними указано количество теплоносителя (кг/мин) при подаче с температурой +80 °С, обратки – +60 °С и температуры в комнате +20 °С.
Из таблицы видно, что при скорости 0,4 м/с подается следующее количество тепла по трубам из полипропилена указанного наружного диаметра:
4,1 кВт – внутренний диаметр около 13,2 мм (наружный диаметр 20 мм);
6,3 кВт – 16,6 мм (25 мм);
11,5 кВт – 21,2 мм (32 мм);
17 кВт – 26,6 мм (40 мм);
При скорости 0,7 м/с подаваемая мощность увеличивается на 70 %, что легко проследить в таблице.
Материалы и инструменты, необходимые для монтажа
Грамотная установка радиаторов отопления самостоятельно хозяином жилья потребует наличие специального инструмента и определённых расходных материалов. Что касается первых и вторых, то их вид и размеры зависят от выбранных моделей приборов отопления, способа их подключения и пр. В любом случае для монтажа радиаторов обязательно потребуется необходимый набор инструментов и материалов.
Как подключить радиатор отопления с боковым подключением
Watch this video on YouTube
Инструмент и приспособления
Так, как все батареи, кроме напольных приборов, крепятся к стенам, то для этого нужно будет вооружиться следующим:
- перфоратор;
- дрель-шуруповёрт;
- сварочный аппарат для полипропиленовых труб;
- молоток;
- уровень;
- рулетка и линейка;
- маркер;
- гаечный и трубный ключи;
- торцевой ключ для сборки секций.
- шнур или намотка для резьбовых соединений;
- герметик.
Материалы
Обычно фирма-изготовитель к своим радиаторам отопления поставляют в продажу монтажные наборы, как для сборки и подключения батарей, так и для навески их на стены. В данных наборах встречается минимально необходимый для установке комплект состоящий из:
- Кронштейнов.
- Кран Маевского или автоматический воздухоотводчик.
- Заглушек.
- Запорной арматуры.
Кронштейны
Они могут присутствовать в комплекте поставки радиаторов. Если их нет, то необходимый крепёж можно приобрести в ближайшем строительном супермаркете.
Существует много разных по конструкции и форме опор для батарей, но всех их объединяет высокая несущая способность и передача нагрузки от веса радиатора на стену. Кронштейны могут быть строго фиксированными конструкциями и с регулировочными механизмами, как по длине, так и высоте.
Кран Маевского или автоматический воздухоотводчик
В процессе прохождения теплоносителя по системе отопления, захваченный им воздух попадает в радиаторы. Обычно это происходит при запуске отопительной системы по окончании тёплого времени года. Воздушные пробки, если их не удалить, сдерживают прохождение горячей воды в верхнем коллекторе батареи, и она будет оставаться холодной.
Кран Маевского — небольшое устройство, которое вкручивают с одной из сторон верхнего коллектора в свободное отверстие. Если диаметр крана отличается от размера резьбового входа в коллектор, то применяются специальные переходники. На резьбу устройства наматывают уплотнитель
Гаечным ключом осторожно закручивают кран до упора
Сброс воздуха производят откручиванием винта или ручки. Поворотом кольца меняют направление воздушного потока. Воздух сбрасывают до появления сплошной струи воды
В многоквартирных домах важно произвести сброс воздуха в радиаторах верхних этажей
Автоматы, по отзывам специалистов довольно капризные устройства и не переносят загрязнённый теплоноситель. Со временем автоматический воздухоотводчик, установленный в системе централизованного отопления, начинает протекать. Поэтому рекомендуется их использовать в автономном отоплении частных домов, где применяется чистый теплоноситель.
Заглушки
Универсальность батарей отопления с боковым подключением заключается в том, что 4 выходных отверстия – по два на нижнем и верхнем коллекторе. Два из них в зависимости о схемы подключения заняты подающим и обратным патрубками.
В третье отверстие устанавливают кран Маевского или автоматический воздухоотводчик. Остаётся четвёртое отверстие, которое «глушат» резьбовой пробкой (заглушкой). Её вкручивают в отверстие коллектора гаечным ключом с накрученной на резьбу подмоткой (паклей, уплотнительным шнуром или лентой).
Запорная арматура
Запорная арматура для радиаторов отопления — это три вида кранов.
Шаровые. Используются в двух крайних положениях: «закрыто» или «открыто». Их ставят на входе и на выходе батареи. Роль в кране запора исполняет поворотный металлический шар со сквозным отверстием. Поворачивая его наружным рычагом, добиваются полного открытия или закрытия прямотока теплоносителя.
Штоковые. Это традиционная схема перекрытия протока подвижным штоком, находящимся на одной оси с поворотной головкой. В отличие от шарового устройства штоковым краном изменяют скорость прохода горячей воды, следовательно, регулируют степень нагрева батареи.
Обратный клапан. Краном с обратным клапаном отсекают отток теплоносителя на определённом участке отопительной системы. Их редко применяют в централизованных сетях отопления. Чаще всего их используют в особо сложных автономных отопительных системах.
Схема подключения радиаторов Паук
Образно представим котел из которого мы берем трубопровод, и выводим его где то в центр дома. Обычно такая система называется паук. Опускаем стояки и собираем, направляем это все в обратку. Подсоединяем к трубам радиаторы. Теплоноситель поднимается вверх по своим естественным физическим законам. То есть горячий теплоноситель идет вверх, а на второй трубе посередине он уходит и падает вниз. Проходит через радиатор, охлаждается и попадает в обратку.
Обратите внимание, нижние трубы идут под уклоном. Это единственная проблема, то что нужно делать уклоны
Но именно в сегодняшнее время многие опять переходят на эти старые системы, так как начинаются проблемы с энергоносителями. Например, часто отключают электричество, при этом насос работать не будет. Система просто встанет. А вот такая система работает у вас постоянно. Котел может быть любой: газовый, угольный, дизельный и даже электрический. Вся эта система будет работать.
Эта система очень громоздкая. Её необходимо практически выводить на крышу и на чердак. Поэтому не каждому дано ее осилить.
Методы обвязки
Чтобы смонтировать обвязку батареи в частном доме или городской квартире, потребуются:
- запорная арматура, в качестве которой чаще всего используются простейшие шаровые краны;
- заглушки для перекрытия оставшихся каналов;
- краны Маевского, позволяющие спустить воздух из системы при сезонном запуске оборудования;

Устройство для удаления воздуха из системы отопления
герметизирующий материал.
Дополнительно на любой радиатор отопления можно установить:
- манометр, определяющий давление в системе (чаще всего применяется при монтаже оборудования в автономных загородных домах);
- терморегулятор, работающий в ручном или автоматическом режиме. При помощи данного оборудования можно устанавливать определенную температуру любого отдельного радиатора.

Устройство для установки определенного режима работы батареи
Если проводится обвязка полипропиленом, то дополнительно потребуется сварочное оборудование.

Прибор для сварки полипропиленовых труб
Итак, в зависимости от представленных выше факторов обвязка радиатора отопления может быть выполнена по следующим схемам:
- для бокового подключения;
- для диагонального подключения;
- для нижнего подключения.
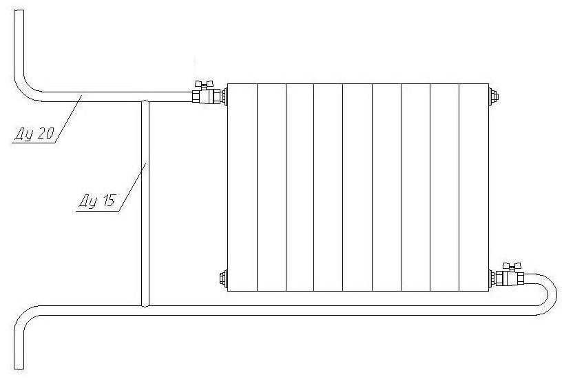
Обвязка бокового соединения
При боковом способе подключения и однотрубной системе монтаж обвязки выполняется так:
- на вводящий и выводящий патрубки устанавливаются шаровые краны, позволяющие перекрыть подачу теплоносителя для выполнения ремонтных или профилактических работ;
- краны соединяются с тройниками;
- в оставшиеся отводы тройников вставляется отрез трубы, выполняющий роль байпаса.
Байпас необходим для автономного перекрытия отдельного радиатора, например, для ремонта, без отключения всей системы отопления.
При боковом соединении с двухтрубной системой работа выполняется в аналогичном порядке. Однако установка байпаса в данной ситуации не требуется.

Схемы обвязки при выборе бокового способа подключения батареи
Обвязка диагонального соединения
Соединение радиатора с трубами при диагональном подключении следующее:
- входящий патрубок соединяется с отрезом трубы, длиной не более 10 см – 15 см;
- далее устанавливаются шаровый кран и тройник для присоединения байпаса;
- выводящий патрубок соединяется с угольником и только после этого присоединяется к отводящему теплоноситель трубопроводу;
- перед соединением с центральной магистралью устанавливается кран.
При подключении к двухтрубной системе работа выполняется аналогично за исключением байпаса.

Схема обвязки батареи при выборе диагонального способа подключения
Обвязка нижнего соединения
Выполнить обвязку нижнего способа подключения проще всех остальных:
- к входу и выходу из радиатора присоединяются запорные краны;
- отводы труб вводятся в центральные магистрали. При необходимости в местах перегиба устанавливаются специальные переходники – уголки или тройники.

Схема обвязки радиатора с нижним способом подключения
Отдельный нюанс есть при обвязке нижнего соединения при подключении к однотрубной системе. В большинстве случаев подключение производится как показано на рисунке, то есть без байпаса, позволяющего автономное отключение отопительного прибора. Но при желании пользования устройство можно установить. Для этого между сгонами входящего и выводящего патрубков устанавливается дополнительный отрез трубы.

Обвязка нижнего соединения с применением байпаса
Подробному описанию видов обвязки батарей в системе отопления посвящено следующее видео.
Таким образом, при правильном выборе способа подключения и корректном монтаже отопительная система будет служить длительное время, равномерно прогревая все помещения.
Типы двухтрубных систем
Двухтрубные системы делятся на виды в зависимости от:
- типа контура (открытый и закрытый);
- способа и направления тока воды (проточные и тупиковые);
- способа перемещения теплоносителя (с естественной и принудительной циркуляцией).
Системы с открытыми и закрытыми контурами
Двухтрубная система открытого типа в городских квартирах не прижилась из-за особенности, связанной с верхней разводкой труб, предполагающей использование расширительного бака. Это приспособление дает возможность контролировать и пополнять водой отопительную систему, но в квартире не всегда имеется место для монтажа такого объемного устройства.
Проточные и тупиковые
В проточной системе направление тока воды в подающей и отводящей трубе не изменяется. При тупиковой схеме теплоноситель в трубах подачи и возврата движется в противоположных направлениях. В такой сети устанавливаются байпасы, а радиаторы располагаются на замкнутых участках, что дает возможность отключать любой из них, не нарушая работу отопления.
С естественной и принудительной циркуляцией
Для естественной циркуляции воды укладка труб производится с обязательным уклоном, в верхней точке системы устанавливается расширительный бак. Принудительная циркуляция осуществляется за счет насоса, установленного в возвратной трубе. Такая система требует наличия воздухоотводящих клапанов или кранов Маевского.
Виды радиаторов для обвязки
Прежде чем приступать к созданию отопительной системы и перед тем, как соединить батареи отопления, необходимо определить, какие именно типы радиаторов вы хотите использовать. На сегодняшний день существует огромное количество видов батарей. Они могут различаться по:
- материалу;
- принципу, как подсоединить батарею отопления;
- методу крепления к стене.
Сегодня наиболее распространенными являются следующие виды радиаторов:
стальные панельные батареи – являют собой относительно тонкую панель из плоских стальных пластин. Как правильно подключить радиатор отопления такого вида? Радиаторы такого типа подключаются боковым либо нижним способом.
Стальные панельные батареи
секционные радиаторы. Облегченная секционная модель, выполненная из алюминия (существуют также биметаллические радиаторы данного типа). Как правильно соединить батареи отопления в таком случае? Подключать такие батареи можно несколькими секциями или же по одной. Для таких радиаторов лучше всего использовать полипропиленовые трубы, тип подключения – боковое.
Секционные алюминиевые радиаторы
О подключении биметалла в статье: Подключение биметаллических радиаторов отопления.
Примечательно, что в последнее время в квартирах с центральным отоплением все чаще устанавливают биметаллические батареи, отказываясь от чугунных. Причина такого изменения вызвана целым рядом причин. Прежде всего, чугунные радиаторы являются более тяжелыми и громоздкими. Кроме того, из-за некачественной воды, используемой в качестве теплоносителя отопительной системы, в таких радиаторах достаточно быстро возникает осадок, появляется песок и ржавчина – а эти факторы в значительной степени способствуют снижению теплоотдачи радиаторов. С биметаллическими радиаторами таких проблем не возникает.
Главное – соблюдение всех правил при монтаже
Важно помнить – если у вас проложен медный трубопровод, то к нему можно подключать и стальные, и алюминиевые радиаторы. А в случае если трубопровод из обычных труб – разрешено устанавливать только алюминиевые батареи




































