Виды арок и их конструкционные особенности
Первыми применять межкомнатные арки в проемах без дверей начали применять жители Азии, оттуда они и пришли к нам. В данный момент арки претерпели некоторые изменения, появился новый дизайн этих конструкций. Видов арок из гипсокартона много, но есть самые популярные, которые применяются повсеместно, в интерьерах квартир:
Широкие арки квадратные или закругленные. Их применяют в дизайне интерьера маленьких помещений для визуального его увеличения. Полукруглые конструкции обычно озонируют пространство. Особенно красиво и гармонично смотрятся эти сооружения в квартирах классического стиля с большой высотой потолков.



Асимметричные конструкции – довольно часто используются. Если вас не страшат эксперименты, вы творческая и неординарная личность, то этот вид арок для вас. Эти конструкции не только украшают интерьер, но и способны визуально увеличить высоту помещения.


Сводчатые арки с усеченным радиусом применяют в современном оформлении при низких потолках и маленькой площади помещения, они зрительно расширяют пространство.


Полуарки из ГКЛ – зонируют пространство зала, и применяются как декоративный штрих в интерьере.

Красивое оформление дверного проема гипсокартонной аркой с полками
Установленные в гипсокартонной арке подсветка и полки
Восточные – арки с куполообразным сводом, смотрятся очень эффектно, но применять их нужно только в комнатах, оформленных в стиле востока.

Конструкции применяют в оформлении интерьеров многие дизайнеры.
О разметке и геометрии
Контур полуциркульной арки размечают при раскрое материала, как известно, самодельным циркулем из рейки или куска профиля с ввинченными по краям саморезами. Но при разметке сегментной арки радиус образующей окружности стремительно нарастает с уменьшением ее стрелы, что особенно актуально при низких потолках. Если кто-то и сделает реечный циркуль с плечом в 5, а то и 15 м, то как им пользоваться? Равно как и строить по формулам дугу эллипса или сложной кривой персидской (модерновой) арки. На такой случай на рис. даны чертежи семейств образующих кривых сегментных (вверху), эллипсных (в середине) и персидских (внизу), по которым может быть построена декоративная арка различной глубины, т.е. относительной величины стрелы: за ее 100% принято отношение пролета к стреле, равное 2, как у полуциркульной арки. При аккуратном переносе по клеточкам строительная точность в 3 мм на 1 м длины соблюдается до пролета в 3-4 м.

Чертежи шаблонов дуг арок
Другая проблема – отделка сегментных арок – возникает на углах при установке наличников: срезы под привычные 45 градусов по контуру не совпадают, т.к. касательная к окружности в данном месте и вертикаль не перпендикулярны. Срезы деталей оформления сегментной арки нужно вести по биссектрисе угла между ними. Как ее построить, не погрязая в зубодробительных вычислениях, показано на след. рис:

Построение сопряжения угловых деталей арки
- Берем лист бумаги в клетку А4 (лучше А3), вырезаем из картона шаблон дуги арки в уменьшенном масштабе. Очерчиваем шаблон на бумаге, пока убираем. На контуре шаблона строим стрелу арки a (поз. I); касательная к ней в вершине 1 будет горизонтальна, поз. II.
- Накладываем шаблон в контур и аккуратно, следуя по контуру, поворачиваем его, пока кончик шаблона на придется на вершину дуги (фиг. B на поз III). Теперь вершина шаблона совпала с пяткой дуги 1’. Проводим на бумаге линию, параллельную основанию шаблона, это и есть касательная t к дуге в ее пятке, поз. III.
- Из той же пятки, которая теперь центр построения O, проводим вниз вертикаль (зеленая на поз. IV). Затем обычным циркулем произвольного радиуса r из т. O делаем засечки 2’ и 2” на касательной t и вертикали, а из них радиусом R (можно тем же, но желательно большим) – пару перекрещивающихся засечек, которая даст точку O’. Линия O’-O и есть искомая биссектриса s угла 2”O2’ между вертикалью и касательной к дуге.
- По биссектрисе осталось (поз. V) либо вычертить и вырезать шаблон для порезки (уже в масштабе 1:1), либо вычислить угол α установки поворотного стола стусла – несложного приспособления для ручной распиловки длинномерных материалов под заданным углом; есть в продаже и под аренду.
Как промерить свод?
Мастер-арочник должен уметь вымерять длину образующей свода по внутри, т.е. по вогнутой поверхности, с изломами, остриями, резкими углами. Простейший способ измерения образующей – х/б изолента. Свежая, только с рулона, она не отпадает с оштукатуренной поверхности, не говоря уже о картоне, дереве и металле, но при отдирании не тянется и не рвется. Полоску «тряпочной» изоленты аккуратно накладывают по образующей, затем снимают и промеряют.
Виды арок
Такой материал, как гипсокартон, очень удобен в использовании, позволяет сооружать сложные конструкции различных форм. Он хорошо поддается резке, прост в монтаже, при смачивании способен изгибаться и принимать нужную форму. Материал обладает гладкой ровной поверхностью, поэтому чаще всего не требует дополнительной отделки и шпаклевания. Гипсокартон обладает легким весом, поэтому работы можно осуществлять и в одиночку без чьей-либо помощи.

Шикарная межкомнатная арка
За счет своих функциональных свойств гипсокартон делает возможным сооружать арочные проёмы самых сложных, оригинальных и причудливых форм, создавая также в конструкции резные сквозные отверстия и декоративные полки. Какой же дизайн лучше выбрать, и как правильно сделать арку из гипсокартона:
- Купольная симметрия. Это исполнение считается классическим вариантом создания арки. Такая конструкция представляет собой дугу, имеющую правильный радиус. Недостатком такой арки является тот факт, что она значительно забирает высоту в дверном проёме.
- Сегментная конструкция. Это арка в стиле Модерн. Радиус закругления при этом получается больше половины ширины дверного проема. Чаще такую конструкцию можно встретить в проемах, больших по ширине, и с толстыми стенами. Грани могут быть как острые, так и гладкие.
- Конструкция в стиле Романтизм. Такую арку сооружают в широком дверном проеме, закругляются в данном случае только углы. Арка имеет вид двух небольших по радиусу полукругов, при этом проем сохраняет очертания и размер.
- Асимметрия. Это арочная конструкция со смещенным центром, самый бюджетный и простой вариант, впишется в любой интерьер.
- Портал. Это также простой и бюджетный вариант исполнения арки. Подойдет для интерьера в Классическом стиле или Хай-Тек.
- Готический стиль. Высшая точка готической арки получается благодаря плоскостям, сходящим под небольшим углом.
- Полуарка. Такая конструкция смотрится стильно и отлично сочетается с современными стилями. Образована такая арка, как правило, четвертью окружности (может быть и меньше).
- Ажурное исполнение. У такой арки присутствуют сквозные проемы и отверстия.
- Многоуровневые конструкции. Такой дизайнерский замысел возможно реализовать при условии наличия богатой фантазии и навыков работы с материалом.
Выбирать дизайн арки следует, исходя из вашего интерьера. Конструкция должна дополнять общую картину и вписываться в стилистику квартиры. Технология сооружения арки из гипсокартона с пошаговой инструкцией показана на данном видео.
Мокрый способ согнуть гипсокартон
Альтернатива сухому способу служит мокрый способ согнуть гипсокартон. Этот способ позволяет значительно снизить радиус изгиба. Для этого способа требуется специальный инструмент. Повторю таблицу с минимальными радиусами изгиба:
Этапы мокрого способа согнуть гипсокартон
Технология мокрого способа согнуть гипсокартон достаточно проста.
- Точно отмерьте и вырежьте нужный кусок гипсокартона;
- Уложите его внутренней стороной изгиба вверх на ровную поверхность;
- Игольчатым валиком прокатайте поверхность листа, тем самым проколов бумажную облицовку листа насквозь;
- Мокрой губкой обильно смочите проколотую поверхность листа. Воду на лист не лейте, а водите мокрой губкой или паралоновым валиком. Водите губкой до тех пер пока поверхность листа начнет блестеть от впитавшейся воды ( ± 8 минут в зависимости от толщины листа);
- Мокрый гипс в листе изменяет свои свойства, и становиться пластичным, как пластилин. Но еще раз отмечу: не лейте волу на лист, можете перемочить.
- Далее два варианта.
- «Мокрый» лист сразу прикрепить к сделанному каркасу;
- «Мокрый» лист уложить на заранее сделанный шаблон каркаса, прижать к шаблону струбцинами и дать листу высохнуть в таком положении сутки.
Самостоятельная установка сводчатой арки
И даже более сложную арку со сводами можно воплотить в реальность при домашнем ремонте. Важный момент — просто оформить сводом вершину дверного проема не получится из эстетических соображений. Вам придется увеличивать высоту проема, чтобы проход между комнатами не напоминал давящий со всех сторон пиратский грот. Решите вопрос с расширением стенного проема или снесите стену и поставьте новую гипсокартонную конструкцию
Обратите внимание, что нарушать целостность и каким-либо образом менять несущие стены запрещено

А теперь — пошаговая инструкция, как сделать сводчатую арку в межкомнатной перегородке:
- Вариант с расширением проема. Размечаем границы будущего проема на существующем. К желаемой ширине арки добавьте 4 см по ширине и столько же по высоте. Отметьте засечками на стене. Далее через каждые 10 см надо пробить перфоратором сквозные отверстия в стенке и расширить проем дисковой пилой. Потом организуем основание для боковых панелей из гипсокартона или ДСП с монтажом на П-профиль. Как делается свод, вы увидите в отдельном разделе.
- Вариант с межкомнатной аркой из гипсокартона на новой стене. Перед установкой новой гипсокартонной стены нанесите вертикальную разметку с помощью отвеса на несущую стену, к которой будет примыкать конструкция. Возьмите обрезок профиля и перенесите разметку на противоположную стену. Установите и зафиксируйте дюбелями П-образный профиль ЦД по разметке. От боковин с двух сторон отложите на полу отрезки профиля, равные ширине гипсокартонной стенки до арочного проема, прикрутите эти элементы. Профиль по потолку займет всю ширину стены. Далее ведем две рейки от потолочного профиля и соединяем с концами отрезков на полу, чтобы получилось основание боковых арочных панелей. На раму монтируем поперечины с шагом 20 см, что способствует устойчивому положению ГКЛ (гипсокартонных листов), которые мы уложим на этот каркас. И на последнем этапе мы будем делать свод для арки.

Техника отделки
Каждый из вышеперечисленных материалов имеет свои особенности отделки. Рассмотрим каждый из них поэтапно.
Обоями
Для отделки обоями арки, изначально необходимо обработать поверхность гипсокартона грунтовкой чтобы материал лучше крепился
Также очень важно подобрать клей, который подойдет для того или иного типа обоев. Для отделки арки необходимо приготовить клей гуще чем для обычной поверхности. Способ нанесения клея для различных видов обоев разный
Потому ознакомитесь перед оклейкой с инструкцией на рулоне
Способ нанесения клея для различных видов обоев разный. Потому ознакомитесь перед оклейкой с инструкцией на рулоне.
Статья по теме: Использование в спальне черных обоев

Первая полоса наклеивается на стену что возле арки, а затем внахлест следующая. Часть обоев должна выступать за арочный проем. Затем обрезаем полосу, оставляя припуск в 2-4 см. Таким же образом оклеиваем и другую стену.
Следующий этап — это оклейка арочного свода. Необходимо измерить глубину арки и вырезать полосу такой же ширины. Если обои у вас с узором, то вам необходимо подогнать рисунок. В случае если свод арки слишком высокий полосы можно разделить на несколько частей, а стыки делаем в наиболее незаметном месте.
Аккуратно выгоняем пузырьки воздуха с помощью тряпки. Делать это стоит сверху вниз, от центра полосы в разные стороны. По стыкам рекомендуется пройтись резиновым валиком, для того чтобы они более крепко приклеились.
Декоративная штукатурка
Сначала необходимо зашпаклевать швы и неровности гипсокартона, а также спрятать шляпки крепления. Затем грунтуем поверхность для более прочной схватки штукатурки.

Способ нанесения декоративной шпаклевки довольно прост — с помощью шпателя наносим материал на поверхность. Губкой вы можете создать простейший рельеф штукатурки, также существуют различные валики с узорами для создания более интересной фактуры.
После того как штукатурка полностью высохнет ее необходимо обработать грунтовкой. При желании вы можете окрасить поверхность. Для покраски шпаклевки подходят обычные акриловые краски.
Камень
Облицовка арки декоративным камнем процесс трудоемкий. Сложности могут возникнуть на этапе отделки свода проема. Перед тем как приступить к монтажным работам необходимо запастись терпением и точно следовать инструкциям. Изначально нужно зашпаклевать поверхность арки, чтобы устранить неровности, швы и т. п. Затем обрабатываем стены грунтовкой и даем ей высохнуть 4-6 часов. Существуют различные технологии изготовления декоративного камня: на гипсовой основе и на цементной. Соответственно для каждого вида подходят разные по консистенции растворы.
Статья по теме: Оригинальная подвесная полка для вина и бокалов своими руками

Облицовку следует начинать снизу вверх и со стыка стены и арочного проема. Необходимо чтобы камень с внутренней стороны шел внахлест с внешней стороной. Те камни, которые идут вдоль дуги, обрезаем по форме проема с помощью ножовки, предварительно наметив границы обрезки карандашом.
После того как камень будет уложен, начинаем затирать швы. Делаем это с помощью специального затирочного средства. Наносим аккуратно с помощью маленького шпателя или шприца. Когда швы просохнут, можно обработать камень специальной грунтовкой, это будет дополнительной защитой от грязи и влаги.
Каждый из вышеперечисленных способов отделки арки может выполнить самостоятельно, соблюдая инструкции и рекомендации по монтажным работам. Прекрасно оформить арочный проем можно с помощью любого материала. Ведь главное не чем, а как. Проявив немного фантазии, вы сможете создать уникальный дизайн арки.
Стандартная резка
Если в бывшем дверном проеме планируется установка арки обычного стиля, без дополнительных изгибов и геометрических форм, то можно воспользоваться стандартным способом резки. Такой вид подготовки листов для осуществления процедуры обустройства арочной конструкции выполняется в определенной очередности. Пошаговая инструкция действий, следующая:
Разметка листа карандашом или другим пишущим предметом.

Затем к листу гипсокартона прикладывается длинная линейка, и вдоль нее необходимо резать пластину из гипсокартона выбранным инструментом.

Если получились какие-то изъяны, можно обработать поверхность наждачной бумагой или же рубанком для гипсокартона. Все зависит от того, насколько заметны неровности.
Этим методом можно вырезать прямоугольные или квадратные отрезки гипсокартона.
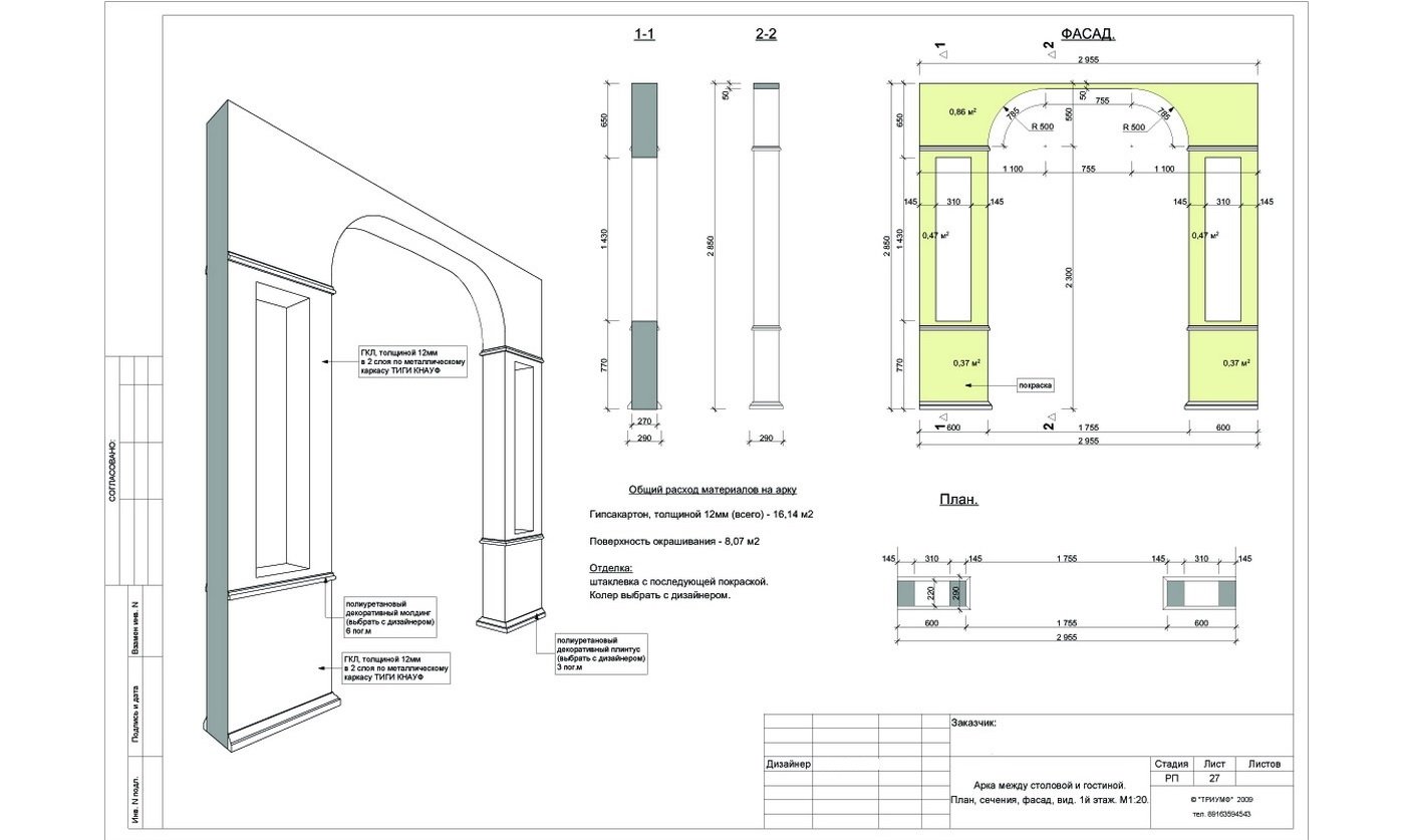
Как сделать межкомнатную арку своими руками: пошаговая инструкция
Ниже приведено два алгоритма выполнения работ по созданию арки из гипсокартона в зале или любом другом помещении в соответствии с чертежами и расчетами, представленными выше.
Арка в дверной проем из гипсокартона
Последовательность работ после подготовки проема (очистки, чернового выравнивания):
усиление прямоугольного проема металлическим профилем по П-образному типу (боковые и верхняя стороны). Используются угловые или П-образные профили
Важно! Если стена, в которой оформляется проем, уже имеет чистовую отделку, профили монтируются на расстоянии, равном толщине ГКЛ, от плоскостей стены внутрь проема. Если предполагается отделка всей стены гипсокартоном, профили устанавливаются на той же линии, что и стойки для стеновой отделки;
с помощью подвесов или других соединительных элементов монтируется изогнутая часть конструкции
с помощью подвесов или других соединительных элементов монтируется изогнутая часть конструкции
На этой стадии можно выполнить проводку, чтобы впоследствии скрыть ее под ГКЛ;
устанавливаются распорки для усиления проема (при толщине стены более 250 мм); монтаж боковых участков ГКЛ заподлицо с отделкой стены;
монтаж изогнутой сухим или мокрым способом полосы на криволинейную часть арки. Если планируется устройство светильников в арке, места для них необходимо разметить и вырезать заранее.
Арка в перегородке
Здесь последовательность действий описана для всей перегородки:
- монтаж потолочного и напольного (направляющего) профиля по всей длине будущей стены;
- установка стоек полной высоты;
- монтаж распорок и укороченных вертикальных фрагментов каркаса;
- крепление арочной части конструкции;
- зашивка лицевой и оборотной стороны перегородки заранее раскроенными листами;
- зашивка криволинейной части арки предварительно или по месту изогнутой полосой (полосами).
Черновая отделка арки в квартире своими руками заключается в обязательной проклейке всех углов (особенно в изогнутых фрагментах) армирующей лентой (т.н. серпянкой) и тщательной шпаклевкой с последующей шлифовкой. Чистовая отделка зависит от выбранного дизайна арки из гипсокартона. Это может быть декоративная штукатурка, окраска, оклейка обычными или жидкими обоями, облицовка панелями или плиткой разного рода.
Деревянная арка: начало установки
Выбор в пользу деревянной арки оправдан, если вы располагаете хорошим бюджетом и хотите дополнить классический стиль интерьера. Это не только респектабельная декорация на входе-выходе, а еще и прочная защита проема. Натуральные материалы всегда смотрятся дорого и надежно, причем не только на профессиональных интерьерных фото, но и в обычных квартирах. Плиты ДВП и МДФ стоят дешевле и изнашиваются медленнее, чем натуральное дерево, поэтому именно этот материал мы рекомендуем пробовать начинающим создателям арочных проемов. Кроме того, ДВП можно приобрести уже с антисептической обработкой, а дерево придется подготовить своими силами (морилка, лак в три слоя).

Главный этап — подготовка формы. Элементы из дерева будут крепиться на границах проема, поэтому все замеры должны быть произведены верно — для точного распила и экономии материала. Первым делом определяемся с видом арки: какая геометрическая фигура будет лежать в основе свода: прямоугольник, круг, эллипс, ломаная линия, асимметрия. Затем расчертите схему будущей арки на проеме с указанием размеров и перенесите их с помощью уровня на стену, поставьте засечки.
Арка из фанеры
Фанерный проем собственноручно выполняется быстро и просто. Фанера — очень прочный и гибкий материал. А здесь её именно надо гнуть под выбранную форму проёма. Выполните полный эскиз изделия с точными промерами ширины и глубины. Заранее приобретите необходимую фурнитуру, лаки для покрытия древесины.

Вырежьте по размеру нужной дуги, замочите полосу фанеры в воде. Установите на распорки в проёме, закрепите. После полного высыхания она примет прочную форму дуги.

Далее возможны такие действия:
- укрепляют вставками из деревянного бруса;
- поверхность обшивают гипсокартоном;
- монтажной пеной заполняют открытые участки. Разбухший и подсушенный химикат обрезают ровно.

Если проём больше одной двери по ширине, то на нем монтируют металлическую арматуру, опирающуюся на кирпичи по бокам. Снизу, опустив на пару сантиметров от арматуры, устанавливаете дугу. Заливаете густым гипсовым, известковым или даже цементно-песчаным раствором. Отделываете по вашему замыслу и эскизу.

Шумоизоляция арок из дерева и гипсокартона выполняется строительной пеной до полного ее схватывания и отвердения.

Разработка проекта и составление сметы
Существует множество вариантов оформления арок. Например, в квартирах с высокими потолками отлично будет смотреться классический вариант, а в молодежной современной комнате – авангардная полуарка. Все зависит от фантазии владельца, стиля в интерьере и размеров помещения. О том, как делать ремонт с использованием арок из гипсокартона, стоит проконсультироваться с опытным мастером и дизайнером.
Один из самых распространенных вариантов — это использование классической или купольной конструкции для декорирования дверных проемов. Именно на этом примере можно поэтапно рассмотреть, как своими руками можно сделать арку из гипсокартона.
Прежде чем приступать к разметке, следует приобрести весь необходимый инструмент и «расходники». Количество может быть рассчитано в зависимости от высоты потолков и размеров будущей конструкции.
Список, который следует взять с собой в строительный магазин:
- арочный гипсокартон толщиной 6.5 мм;
- металлические профили;
- дюбели;
- саморезы;
- нож;
- ножницы по металлу;
- перфоратор;
- шуруповерт;
- игольчатый валик;
- уровень;
- карандаш;
- рулетка;
- лента-серпянка;
- наждачная бумага;
- материалы для отделки.
Как сделать разметку под арку своими руками? Для этого нужно правильно «раскроить» гипсокартон. Конструкция будет состоять из трех частей: верхней изогнутой и одинаковых боковин. Далее следует произвести все замеры: ширину проема и определить радиус изгиба.
После этого можно с помощью обычного шила, капроновой нити и карандаша расчертить лист гкл. Длина нити должна быть равна радиусу дуги. На концах нити завязывают петли, вставляют шило и карандаш и чертят будущую кривую. Остается только вырезать элемент и по его образцу сделать вторую сторону.
Монтаж каркаса под арку из гипсокартона
Перед началом установки основы необходимо подготовить дверной проем. Это нужно для того, чтобы увеличить высоту будущей арки. Если не убрать часть перегородки, то после установки конструкции высокий человек будет цепляться за нее головой. Как правильно сделать проем под арку в железобетоне? Варианта два — болгарка или кувалда с последующим выравниванием проема цементным раствором.
Пошаговая инструкция для тех, кто делает каркас арки, обычно включает 4 этапа:
- Крепление направляющих дюбелями вверху проема и на стены.
- Изготовление дугообразного профиля с помощью специальных ножниц. Металл подрезается, а затем ему придается нужная форма.
- Крепление изогнутого профиля к направляющим дюбелями.
- Установка между дугами дополнительных отрезков профиля, которые придадут устойчивость конструкции.
После того как готова основа из профиля, можно делать обшивку арки гипсокартоном. На этом этапе нельзя забывать и о подсветке: проводка должна быть проложена еще до обшивки основы гкл.
Пошаговая инструкция с фото: самый быстрый способ
Арки из гипсокартона своими руками делают разными способами. Этот занимает минимальный промежуток времени. Определившись с формой приступаем к монтажу. На подготовленный проем — очищенный от отслаивающейся штукатурки и относительно выровненный, по размерам будущей арки крепим каркас. Его делают из профиля для гипсокартона или сухого деревянного бруска подходящего размера. Иногда, если стена узкая, подобрать можно только древесину.
Для начала вырезаем из гипсокартона прямоугольник по размерам будущей арки, находим его середину, отмечаем, после чего временно прикручиваем на место. Отступаем от края 12,5 мм — толщину листа гипсокартона. Если прилежащие стены уже оштукатурены, добавляете еще пару миллиметров на шпаклевку — чтобы можно было поверхность выровнять.
Теперь берем кусок профиля или жесткого уголка, от одного края откладываем половину ширины проема. На этом месте в уголке делаем отверстие, в него вставляем гвоздик. Этот гвоздь втыкаем в отмеченную нами ранее середину дверного проема на листе. Получается своеобразный циркуль, при помощи которого легко нарисовать идеальную линию.
Изменяя высоту крепления можно получить более или менее высокую арку. Если нужна более пологая кривая, увеличиваете длину «циркуля».
Сняв лист, по намеченному контуру дугу вырезаем. Это можно сделать специальной пилкой по гипсокартону, пилой по металлу — с мелким зубом для более ровного края, электролобзиком (будет много пыли). Если срез получился не очень ровным, его выравниваем при помощи закрепленной на терке наждачной бумаги. Этим приспособлением добиваемся идеально ровной кривой нужной нам формы. Вырезанный фрагмент арки — боковую стенку — снова крепим на место.
Если все ровно, никаких перекосов или неровностей нет, с другой стороны проема прикрепляем такой же лист гипсокартона, как несколькими шагами раньше — прямоугольник или квадрат — в зависимости от формы. Он должен быть закреплен строго вертикально. Теперь переносим форму арки на него. Берем угольник, прямым углом и одной стороной прижимаемся к гипсокартону, на который переносим арку, второй стороной — к своду. Выставив угольник перпендикулярно, отмечаем карандашом точку. Такие точки делаем по всей дуге. Чем чаще они будут сделаны,тем проще будет нарисовать линию и точнее будет совпадение — меньше придется стачивать.
Почему так сложно, а не просто сделать копию первого листа? Потому что мало какие проемы симметричны. В результате установить второй лист так, чтобы линии арки совпадали очень проблематично.
Отметив все точки, лист снимаем, рисуем линию, по ней выпиливаем. Монтируем на прежнее место. Теперь снова берем гладилку с наждачной бумагой и теперь ровняем оба края до полного совпадения. Один момент — гладилка должна быть шире проема, чтобы за один проход захватывались обе стенки арки.
Замеряем длину дуги, вырезаем кусок профиля такой же длины, делаем насечки на стенках каждые 3-4 см. Эту ленту нужно будет закрепить вдоль свода арки с одной и с другой стороны.
Крепим на саморезы, аккуратно, прижимая профиль и придерживая его бруском, а не пальцами: попасть саморезом в пальцы элементарно. Кстати, с нарезанным профилем работать нужно в перчатках. Если без — руки порежете точно.
Кстати, спинку профиля можно выставлять по краю — так проще работать, а стык потом все равно придется заделывать. Точно так же прикручиваете полосу к другой стороне.
Есть второй способ крепления профиля — посадить его на быстро схватывающийся универсальный клей, типа жидких гвоздей. Этот способ приемлем, если ширина проема небольшая. При большой толщине арки, клей может не выдержать массы гипсокартона, которая будет крепиться снизу.
Следующий шаг — крепим перемычки. Сначала затеряется глубина арки, от нее вычитается 1-1,5 см. Это и будет длина перемычек. Нарезают куски профиля такой длины.
В местах крепления перемычек срезаются «лепестки», устанавливается и закрепляется подготовленный фрагмент. Он не должен упираться в стены, находится примерно на расстоянии 5 мм от спинки. Перемычки нужны, чтобы конструкция получилась более жесткой, иначе она «гуляет» при нажатии.
Далее из гипсокартона необходимо вырезать прямоугольник, который будет закрывать конструкцию снизу. Ширина его определяется просто — от наружной кромки одного листа ГКЛ, до наружной кромки второго листа. Длина измеряется гибкой лентой (можно портняжной) или рулеткой с помощником. Этот лист крепим саморезами к каркасу арки. Лист приходится изгибать, а как это сделать читайте чуть ниже — ближе к концу статьи.
Далее остались отделочные работы: на угол крепится специальный уголок, все шпаклюется по обычной технологии: сначала стартовой стыки и углы, потом финишной.




































