Ворота из профнастила своими руками — предпочтительная конструкция
Наиболее просты и надежны распашные ворота из профнастила. Большая часть ворот индивидуальных приусадебных и дачных участков имеют именно такую конструкцию. Особенность ее заключается в том, что ворота состоят из двух створок, открывающихся в разные стороны. Это позволяет вдвое уменьшить нагрузку на опорные столбы и максимально ограничить свободное пространство, необходимое для их открывания.
Для легких ворот из профнастила это не так существенно, как для значительно более тяжелых металлических. Но чем меньше нагрузка на опорные столбы ворот, тем меньше вероятность их перекоса и деформации в дальнейшем. Уменьшается также и нагрузка на петли, и они значительно меньше изнашиваются при эксплуатации. Да и для открывания створок ворот требуются гораздо меньшие усилия.
Второй тип — это откатные ворота из профлиста. В этом случае есть только одна секция, которая отодвигается параллельно забору при открытии. Такая конструкция имеет свои преимущества:
- легкость автоматизации;
- минимальные усилия для открытия в условиях обильных снегопадов;
- нет необходимости в свободной площади перед или за воротами для их открытия.
Однако сделать ворота из профнастила подобной конструкции самостоятельно — очень тяжело. Во-первых, необходимо правильно рассчитать массу противовеса, чтобы ворота открывались без лишних усилий и, тем более, не перекосились. Во-вторых, нужно сделать мощный фундамент для опорной части ворот. И, в третьих, сложно правильно сварить ворота из профнастила подобной длины без практики и специального оборудования. Если вам нужна еще и автоматизация — то без помощи специалиста уже не обойтись.
Наконец, третий тип — это сдвижные ворота. Они имеют черты как распашных, так и откатных конструкций. Такие ворота состоят из двух створок, которые раздвигаются в стороны вдоль забора. Они сочетают в себе преимущества двух предыдущих конструкций, однако, не лишены и недостатков.
В первую очередь, для сдвижных ворот также важен правильный расчет противовеса. Пусть небольшие ошибки в данном случае не так фатальны за счет вдвое меньшей ширины полотна, но они обязательно скажутся «на дистанции» в виде перекоса, а также быстрого износа направляющих и роликов.
Кроме того, под такие ворота необходимо два опорных фундамента, причем по конструкции и размерам они не сильно будут отличаться от фундамента для откатных ворот. Также в подобной конструкции существуют проблемы с реализацией калитки. Поэтому, опять-таки, сделать такие ворота с профнастила своими руками — слишком сложно, поэтому далее остановимся на распашной конструкции как на самой простой в реализации.
Фотоотчет об изготовлении и установке ворот
Это один из вариантов того, как можно сделать ворота из профнастила своими руками. Технология не лучшая, но и не худшая: все функционирует без проблем на протяжении уже шести лет.
К установленным столбам 80-80 мм приварены петли, ответные части приварены на требуемом расстоянии на вертикальных частях стоек из трубы 40*40 мм — на правой и левой. Стойки навешиваем на петли на столбе, подкладываем между ними и столбами нужной толщины прослойку и фиксируем струбциной.

Навешиваем стойки на приваренные на столбах петли
Отмеряем требуемую высоту и обрезаем излишки, сверху к стойкам, не к столбам, привариваем поперечину из той же трубы 40*40 мм
Качество сварки на этом этапе неважно. Мы пока прихватываем детали, не заботясь о тщательности наложения шва — его потом доведем до нормы
Главное чтобы все было ровно и держалось вместе
Потому точками прихватываем в нескольких местах
Главное чтобы все было ровно и держалось вместе. Потому точками прихватываем в нескольких местах.

К стойкам воротин приварена поперечина
Точно также прихватываем трубу по низу.

Привариваем нижнюю трубу
Находим середину поперечных балок. От середины в обе стороны откладываем по 3 мм. Делаем четкие отметки. Замеряем расстояние между верхней и нижней балкой, отрезаем два отрезка, привариваем по отметкам (между двумя вертикальными трубами должен остаться зазор в 6 мм).

По середине с зазором в 6 мм привариваем две вертикальные трубы
Замеряем расстояние между двумя стойками одной половины ворот. Они должны быть одинаковыми, но лучше измерять отдельно. Отрезаете трубы нужной длины и прихватываете их на нужной высоте. Если требуется больше поперечин — устанавливаете и их.

Приваренные поперечины для усиления жесткости
По отмеченному центру болгаркой вверху и внизу делаем сквозные пропилы, разделяя ворота на две половины. Так очень просто мы получили ворота, которые будут открываться и закрываться без особых проблем.

Разделенные половинки ворот
Каркас створок ворот готов. Его снимаем, укладываем на ровную горизонтальную поверхность и хорошо провариваем швы
Вот тут уже качество сварки важно, следим за наполненностью ванны, стараемся не прожечь дыры. Готовые швы зачищаем, грунтуем, красим

Уложив створку на ровную горизонтальную поверхность провариваем все швы
Приступаем к сборке опоры для крепления профильного листа. Для уменьшения парусности его разрезали на две части, так что лист не цельный, а резаный. Для этого используем профилированную трубу 20*20 мм. Ее нарезаем на отрезки нужной длинны, так, чтобы можно было закрепить по внутреннему периметру.

Нарезаем трубу 20*20 мм и прикручиваем по внутреннему периметру
Выставляем их в одной плоскости с наружной частью — прикручиваться лист будет изнутри. Крепим на саморезы, предварительно просверлив отверстия требуемого диаметра.

Как крепить планки для профлиста

Так выглядит готовый каркас створки ворот
Готовый каркас красим — внутри светло-серой краской, снаружи — красно-коричневой, в тон окраске профнастила. Оставляем сохнуть.

Приступаем к монтажу профлиста на ворота. Его нарезают чуть меньшего размера, чем основная рама — по периметру на 2-3 мм должен быть отступ. Укладывают на подготовленные опоры и крепят изнутри по периметру на саморезы.

Монтаж профлиста на ворота
Можно брать специальные, со шляпками и прокладками, но посадили на обычные.

Для экономии использовали обычные саморезы по металлу
Можно сказать, что ворота готовы.

Осталось установить запоры. Можно, конечно врезать замок и ручку, но качество недорогих очень низкое, а брать дорогие — на данный момент непозволительная роскошь. Потому из остатков труб и арматуры сварены засовы. Они точно работают при любых условиях.

Один (верхний) посажен на саморезы с ответной частью на створки, два нижних прикреплены к стойкам. В грунте в нужных местах пробурены небольшие лунки, в которых забетонированы отрезки круглых труб, диаметр которых больше диаметра стержня. Калитка сделана по той же методе, только в нее врезан замок.

Готовые ворота из профнастила своими руками
При такой технологии изготовления створки ворот гарантированно открываются и закрываются. Если и были некоторые перекосы при установке столбов, они учитываются. При пошаговом изложении весь процесс не выглядит сложным, да так оно и есть. Если варить все части отдельно, геометрия должна быть идеальной, да еще приходится следить за тем, чтобы трубу при сварке не повело. Несколько разных технологий изготовления ворот из профнастила смотрите в следующем разделе, где собраны видео уроки.
Достоинства и виды ограждений из профнастила

Самостоятельно изготовить ворота можно из различных материалов, их выбор будет зависеть от суммы предполагаемых расходов, выбранного дизайна и мастерства хозяина участка. Многие из владельцев загородных строений при этом отдают свое предпочтение профиллированному листу, и это неудивительно, ведь выполненные из профнастила не только забор, но и ворота, обладают многими достоинствами:
- экономичность;
- прочность и долговечность;
- простота в изготовлении;
- легкость;
- большое разнообразие декора.
По способу открытия ворота из профиля разделяются на распашные и откатные. Каждый из данных видов имеет свои преимущества, а также и недостатки в использовании.
Данная разновидность ворот из профнастила наиболее проста для самостоятельной установки. Распашная конструкция представляет собой две стойки, на которые фиксируются створки, обшитые металлическим профилем. Готовые ворота должны двигаться плавно, безо всяких препятствий в ходе использования.
Распашные створки можно сделать таким образом, чтобы они открывались вручную либо в автоматическом режиме. При этом электропривод встраивается в данный вид ограждения в основном на промышленных территориях, где идет активное движение транспортных средств.
Распашные ворота доступны и просты в установке, однако, у них имеется и существенный недостаток – необходимо наличие свободного пространства, чтобы полностью открыть створки.
Откатные ворота


Самыми удобными в использовании считаются откатные ворота, так как более функциональны.
Кроме того, после установки такого ограждения у владельца территории будет отсутствовать необходимость расчищать место от снега для открытия створок в зимний период года. Однако, несмотря на существенные достоинства, которыми характеризуются откатные ворота перед распашными, у них имеются и недостатки:
- установка обойдется дороже;
- закладка фундамента должна происходить по более сложной схеме;
- требуется приобретение специальных комплектующих материалов.
Такое ограждение в основном оборудовано автоматикой, вручную открывать и закрывать данную разновидность ворот крайне неудобно.
Последующие этапы
В то время, пока бетон будет схватываться, можно заняться изготовлением каркаса. В работе можно использовать металлические трубы или бетонные столбы. Реже, но всё же, иногда в качестве рабочего материала берут сваи.
Дальнейшие действия – это изготовление рамы створок и установка петель. Обычно 2 петель достаточно. Но если необходимо усилить конструкцию добавляют ещё одну петлю. Навеска профлистов может выполняться с наружной и внутренней стороны каркаса с использованием саморезов или заклёпок.
Не забываем о фурнитуре. Это не менее важные элементы конструкции, чем предыдущие составляющие. Одним из важных элементов фурнитуры считается замок. В вопросе выбора замка приоритетов нет. Можно установить навесной, врезной или накладной замок. Благо вариантов на рынке масса.
Обязательный атрибут- защелка. Она традиционно устанавливается с внутренней стороны конструкции. Так же, она монтируется на калитку из профнастила.
Можно установить автоматику. Это избавит вас в холод и дождь от необходимости открывать ворота вручную.
Теперь давайте рассмотрим вопрос об устройстве калитки и определимся с вариантами её монтажа.
Если створки ворот сделать не одинаковыми по ширине, тогда одна из них может выступать как входная калитка из профнастила. В этом случае нагрузка на конструкцию будет минимальной, в большей части на одну стойку. Описанную конструкцию можно отнести к бюджетному варианту.
Если калитку расположить посередине, то каркас калитки будет выступать в качестве усилителя створки. Монтаж калитки ближе к опорному столбу подразумевает нагрузку на опорный столб.
Нужно понимать, что калитка – это дополнительный вес для всёй конструкции створки, поэтому необходимо для ее усиливать такой каркас и ставить дополнительные петли.
Мы не будем говорить о преимуществах и/или недостатках конструкции, остановимся на сроках изготовления и общей стоимости. Изготовить и установить распашные или откатные ворота с калиткой из профнастила можно за несколько дней. Средняя стоимость материалов и работы не должна превысить 3 тыс. руб.
Как сделать ворота в частном доме. Распашные ворота – изготовление и установка своими силами
Знакомство с домом начинается с ворот. По сути, это визитка хозяев. Поэтому, их вид должен быть по определению солидным и красивым. Но, в тоже время, основное их назначение – обеспечение сохранности и безопасности частных загородных домов и дач.
Как соединить эти два назначения вместе? Как сделать распашные ворота для дачи красивыми, надежными и функциональными. Какие виды распашных ворот бывают и какие лучше выбрать. Как изготовить и установить. Обо всем этом подробная пошаговая инструкция в нашей статье.
Распашные ворота своими руками – изготовление
Преимущества распашных ворот:
- простая конструкция;
- относительно низкая цена;
- нетребовательны в обслуживании;
- длительный срок эксплуатации;
- прочность;
- простота эксплуатации;
- неограниченная возможность выбор дизайнерских решений и формы;
- отсутствие необходимости в бетонировании площадки. Например, под ролики для откатных ворот ;
- возможность установить автоматику.
Недостатки:
- необходимость предусмотреть довольно много места для открытия-закрытия;
- необходимость учитывать ветровую нагрузку в регионе.
Простая арифметика показывает, что преимуществ у распашных ворот значительно больше. А недостатки устранимы или не критичны. Длительная история их существования только подтверждает надежность системы.
Конструкция распашных ворот
Какие бы материалы не появлялись, как бы не изменялась мода на отделку ворот, основной принцип их обустройства остается неизменным. Конструктивное устройство:
столбы (стойки). По сути, воротами не являются, но представляют собой опоры для их крепления;
рама для распашных ворот. При ее изготовлении может использоваться дерево или металл. Последний более популярен, т.к. придает раме большую жесткость;
отделочный (облицовочный) материал для обшивки;
петли;
задвижки и замки.
Итак, мы определились, что представляют собой распашные ворота и какими особенностями они отличаются.
Изготовление распашных ворот – инструмент и материал
Убедившись, что можем изготовить их своими руками, приступим к строительству.
Требуемый инструмент для изготовления распашных ворот и расходный материал к нему.
Инструмент
Обязательный для изготовления каркаса и обустройства стоек:
- болгарка. Предназначена для резки и шлифовки металлических заготовок;
- нарезные диски;
- шлифовальные диски;
- сварочный аппарат;
- электроды;
- рулетка;
- строительный уровень;
- уголок;
- молоток;
- лопата;
- мастерок.
Вспомогательный:
- компрессор, краскопульт или кисточки для окрашивания стоек и/или ворот;
- дрель. Если понадобится для крепления обшивки ворот;
- клепатель, а также заклепки к нему.
Материал
труба для изготовления рамы. Предпочтительно использовать профильную трубу 60х40х1,5. Подойдет и 40х20х1,5. Окончательный выбор зависит от отделочного материала и учета ветровой нагрузки;
труба для изготовления стоек. Здесь также следует руководствоваться весом готовых ворот.
Общие рекомендации по выбору таковы:
- вес ворот в пределах 150 кг. и ниже. Подойдет труба 80х80х4;
- вес ворот от 150 кг до 300 кг. Труба – 10х100х5;
- вес ворот превышает 300 кг. Труба –140х104х5.
Совет: Для стоек может быть использовать кирпич, бетон или даже дерево. В любом случае соотносите свойства материала с предполагаемой нагрузкой.
петли для распашных ворот. Могут быть регулируемыми и нерегулируемыми. Должны быть изготовлены из качественного материала и обладать способностью выдерживать значительный груз;
замки. Могут быть механические и электромеханические. Выбор на усмотрение;
краска. Нужна для окраски стоек и/или обшивки;
обшивка. Здесь также полная свобода выбора. Главное, чтобы было вам по нраву и по карману;
автоматика для распашных ворот. Для возможности сделать автоматические ворота. Можно не устанавливать вообще или установить позже. Но, если ее установка предполагается, пусть и в отдаленном будущем – каркас распашных ворот лучше делать более прочным.
Как сделать распашные ворота своими руками
Не думайте, что самодельные, это синоним слов «некрасивые» и «ненадежные». Как раз наоборот – самодельные распашные ворота – означают креатив, индивидуальность и заботу о собственной безопасности.
Последовательность выполнения работ.
- этап – установка стоек для навешивания ворот.
- этап – изготовление распашных ворот.
Этапы, естественно, можно менять. Но установленные стойки (столбы для распашных ворот) должны выстоять как минимум неделю. Чтобы, не растягивать удовольствие, время ожидания можно занять свариванием ворот.
Как обшить раму профнастилом?
После окончательного высыхания окрашенной рамы можно начинать обшивку каркаса профнастилом. Профилированный лист укладывается на раму и аккуратно прикрепляется при помощи саморезов или заклёпок. При этом заклёпки имеют более привлекательный внешний вид.
Саморезы или заклёпки обязательно крепятся только в углублениях профнастила. Для крепления 1 кв.м. материала используют не менее 6 саморезов или заклёпок. Это, в первую очередь, обусловлено тем, что створки ворот, помимо собственного веса, должны выдерживать дополнительную ветровую нагрузку. После того как листы профлиста закреплены, ворота навешиваются на петли.
Пошаговая инструкция монтажа
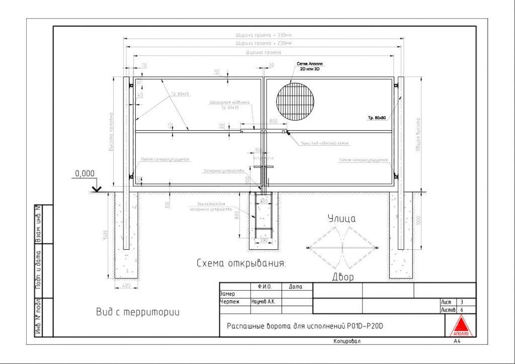
Прежде чем приступать к монтажу конструкцию нужно забетонировать столбы. Для этого размечаем место установки. Если ворота из профнастила с калиткой – понадобится 3 опоры.
Пошаговая инструкция установки опор:
Выкапываем ямы в местах, где будут столбы для ворот. Глубина отверстия – до 1,2 м, диаметр – 0,5 м.Важно! Глубина ямы должна превышать глубину промерзания грунта. Она должна соответствовать 30-35% высоты наземной части
Учитываем, что запас между нижним краем ворот и поверхностью земли должен составлять 20-30 см.
Обрабатываем ту часть профильной трубы, которая будет находиться в земле: зачищаем ржавчину, грунтуем, красим, оборачиваем в рубероид.
Засыпаем в яму гравий (щебень). Высота слоя 10-15 см. Тщательно утрамбовываем.
Готовим бетонный раствор. Массовые пропорции:цемент М400 – 10 кг;песок карьерный или речной, не очень мелкий – 20-23 кг;мелкий щебень (размер фракций 5-10) – 40-43 кг;вода – 5 литров.
Тщательно перемешиваем сухие составляющие. Затем постепенно добавляем воду. Получается смесь, по консистенции похожая на густую сметану. Пропорции воды можно менять, ее должно быть 40-50% от массы цемента.
Вставляем в углубление опорные столбы. Чтобы обеспечить их надежное вертикальное положение можно установить распорки из металлического уголка, арматуры либо зафиксировать при помощи битого на крупные куски кирпича.
Заливаем в яму бетон до самого верха. На верх трубы ставим заглушку чтобы внутрь не попадала влага.
Это важно! Каркас створок нельзя навешивать на столбы до тех пор, пока бетон не высохнет. Для этого понадобится минимум 3-4 дня
Если бетон не наберет прочности, то после устройства каркаса ворот столбы могут дать крен.
Пока раствор высыхает можно заняться сборкой самой конструкции. Для этого нужно выделить свободное пространство где будет удобно проводить сварочные работы. Поверхность должна быть идеально ровной.
Пошаговая инструкция по сборке каркаса
1. Делаем заготовки из уголка по размерам, соответствующим длине и ширине створки. Лучше, если угол среза будет 45 градусов хотя и проще собирать каркас ворот встык. Углы должны быть строго прямыми, проверяем это при помощи угольника.

2. Свариваем раму по технологии дуговой сварки.
3. Усиливаем надежность углов. С этой целью нужно приварить косынки в форме треугольника с прямым углом и сторонами по 10 см. Косынки вырезаем из листовой стали или тонкостенного профиля.
4. Укрепляем раму, придаем ей жесткость. Для этого к ней привариваются дополнительные перемычки. Одна горизонтальная обустраивается по центру. Она должна разделить рамку на два одинаковых прямоугольника. Далее приваривается диагональная перекладина от нижнего угла к верхнему.

5. Зачищаем все сварные швы используя болгарку.
6. Устанавливаем на каркас фурнитуру. Это накладные замки, задвижки, нижние и верхние стопы и так далее.
7. Красим трубу, чтобы защитить металл от коррозии.
8. Привариваем петли к каркасу. Расстояние от нижнего или верхнего края не должно быть больше 30-40 см. Используются крупные гаражные петли. Сварной шов выполняется по всей длине крепежного края. Смазываем петли специальной смазкой, которая не боится влаги и низких температур.
9. Обшиваем каркас профнастилом по внутреннему периметру при помощи саморезов. Под каждый саморез нужно подложить резиновую прокладку. Окрашиваем головку самореза в тот же цвет, что и профлист, можно сразу купить цветные шурупы. Саморезы вкручиваются по периметру рамки, в горизонтальные и вертикальные перемычки. Выдерживается такое расстояние между саморезами – 80-110 мм. Вместо шестигранных шурупов можно использовать специальные заклепки.
10. После того как установлены опоры и произведена обшивка каркаса можно приступать к навешиванию створок. Процесс непростой и требует определенной сноровки. Для удобства нужно соорудить небольшую подставку из досок или кирпичей между опорными столбами. Ставим створку на подставку и выравниваем по всем плоскостям. Для проверки горизонта и вертикали используем строительный или лазерный уровень.
11. Ставим метки на опорных столбах в местах расположения петель. Привариваем соединительные элементы и навешиваем створки. Убираем подставку.
Ворота из профлиста – плюсы и минусы
Самой популярной моделью ворот считается металлическая распашная конструкция, представленная на фото, которая открывается на обе стороны. При этом для обшивки каркаса используют крашеный профнастил, который можно украсить элементами ковки. Полы оградительной системы имеют облегчённую конструкцию с калиткой, расположенной, по соседству. Такая разновидность ворот получила популярность в домах частного сектора.
Такая популярность была достигнута большим эксплуатационным ресурсом изделия без необходимости проведения регулярных ремонтов в отличие от деревянных аналогов. Современные модели ворот из профлиста часто дополняются автоматической системой открывания, что очень удобно. При этом профилированный лист, используемый для изготовления ограждений, имеет целый ряд следующих преимуществ:
- сравнительно невысокая стоимость профлиста;
- простой процесс изготовления и установки ворот, как с калиткой, так и без неё;
- длительный эксплуатационный ресурс и простота в уходе;
- многофункциональность материала;
- привлекательный внешний вид окрашенного профнастила.
Если рассматривать недостатки такого материала, то хочется выделить следующие проблемы:
- для открывания распашной конструкции ворот нужно большое свободное пространство вокруг оградительной конструкции;
- из-за большой площади створок ворот на них действует повышенная ветровая нагрузка, которую необходимо учитывать в зависимости от региона, в котором устанавливается заграждение.
Но всё-таки достоинства распашной конструкции ворот с калиткой, приведённые на фото перечёркивают незначительные недостатки такого изделия. Тем более что проблемы не столь критичны и их, можно устранить в процессе проведения монтажных работ своими руками. А как стало известно из практики, ворота из профлиста являются самыми надёжными среди подобных конструкций.
Ворота и калитка из профнастила. Обшиваем каркас.
При работе с профнастилом неизбежно встают два вопроса. Первый — чем его крепить? А второй — как его резать? С крепежом все просто: лист удобнее всего крепить к раме саморезами с шайбой и резиновой прокладкой. Вообще говоря, это кровельный крепеж, но здесь он будет не лишним, т.к. резиновая прокладка защитит место соединения от попадания влаги, и таким образом предохранит металл от коррозии.

Такие саморезы есть и для дерева, и для металла. Однако, если ваша рама сварена из металла, то сверлить направляющие отверстия для саморезов все-таки придется, так что запаситесь хорошим сверлом. А лучше — двумя!

С резкой дело обстоит намного сложнее. Резать профнастил болгаркой — не самая лучшая идея, так как абразивный диск сильно разогревает металл, сжигая цинк и полимерное покрытие, защищающее лист от коррозии. Лучше всего пользоваться вырубными ножницами по металлу. Они бывают как ручными, так и электрическими.

Другой приемлемый вариант — электролобзик.

Если все же вам придется использовать угловую шлифмашинку, возьмите самый тонкий диск (1мм) и постарайтесь сделать резать одним уверенным движением, не прерывая реза. Иначе болгарку придется снова вставлять в уже начатый разрез, а сделать это аккуратно как правило не получается. В любом случае край выйдет не идеальным. Не зависимо от того, чем вы будете резать профнастил, постарайтесь спланировать все так, чтобы на видные места попадали только заводские края листов.

Как видите, для того, чтобы успешно сделать ворота и калитку из профнастила своими руками вам понадобится минимум три-четыре дня.

Для того, чтобы ворота и калитка из профнастила имели более привлекательный вид можно приварить на раму несложные декоративные элементы.

Особую ажурность и эстетичность ворота из профнастила приобретают даже с минимальными элементами ковки в сочетании с профлистом «под дерево».

Ворота и калитка из профнастила своими руками — не суперсложная задача, однако, желательно иметь некоторые специальные инструменты и хотя бы немного владеть либо сваркой, либо столярным делом. При желании с этим может справиться каждый!

Процесс установки распашных ворот
Прежде чем сделать крепкие ворота из профнастила своими руками, следует подготовить чертеж с указанием точных размеров. При этом необходимо учесть вид автотранспорта, который будет проезжать через возведенную конструкцию, а также наличие калитки.


Кроме тщательного составления чертежа, потребуется заранее закупить и обработать материал для работы, а также приготовить необходимые инструменты:
- профильные трубы разного сечения;
- металлические уголки;
- профиллированные листы;
- саморезы, болты, заклепки;
- цемент;
- грунтовка и краска по металлу;
- электроинструменты;
- сварочный аппарат.
Перед началом работ профильные трубы следует осмотреть на наличие дефектов, зачистить коррозийные места наждачной бумагой и нарезать на части, в соответствии с размерами, указанными в чертеже конструкции.









Установка опоры
В случае, если ворота из профнастила требуется установить на забор с готовыми металлическими столбами, то каркас ограждения можно зафиксировать прямо на них. Чтобы это проделать, к существующим опорам привариваются петли, и собранная стальная конструкция вешается на них.
Если же каркас приходится возводить с самого начала, процесс установки столбов выглядит другим образом:
- Измеряется требуемое расстояние и ставится разметка с учетом расчетов в чертеже.
- Роются 2 округлые ямки под фундамент, ширина которых составляет около полуметра, а глубина – не менее одного метра.
- Дно ямок засыпается песком или мелким щебнем и тщательно утрамбовывается.
- В подготовленные лунки ставятся опорные столбы строго в вертикальном положении, добиться которого можно при помощи строительного уровня. Их можно временно зафиксировать кусками арматуры, чтобы они не отклонялись в стороны.
- Столбы заливаются бетонным раствором.
Для полного затвердевания смеси необходимо выждать несколько недель, после чего приступать к дальнейшему выполнению установочных работ.
Изготовление рамы





Раму для конструкции изготавливают на ровной поверхности, вооружившись сварочным аппаратом для соединения заранее нарезанных заготовок из профильных труб.
Для надежной фиксации частей на внутреннюю стыковку каркаса приваривают металлические уголки, а также дополнительно две поперечные перекладины. Затем следует закрепить на рамную конструкцию навесы и засовы.
После того как рама готова, необходимо тщательно отшлифовать сварочные швы, весь каркас обезжирить с помощью растворителя, загрунтовать и покрыть краской.
Установка обшивки

Дождавшись полного высыхания краски на раме, можно приступать к фиксации на нее обшивки из заранее нарезанных листов профнастила. Они крепятся к каркасу конструкции при помощи саморезов или специальных заклепок. При этом, лучше их устанавливать в местах углубления материала, таким образом, они будут менее заметными.
После того, как обшивка из профиля своими руками установлена на раму, конструкция вешается на петли и производятся завершающие этапы работы, такие как монтаж замков на ворота и крепление украшающих элементов.
Как выполнить чертёж каркаса ворот из профнастила?
Сейчас я расскажу о методе сварки ворот, который даёт большую точность, чем обычный слесарный угольник.
Выбираем ровную площадку на твёрдом основании и, используя правило трех чисел 3-4-5, отчерчиваем контур будущих ворот.
Давайте я поясню метод. Проводим от одного угла ворот линию и отмечаем на ней 3 одинаковых отрезка. Длина отрезков может быть любая и для разметки удобнее использовать шнур. Этим шнуром мы размечаем вторую линию примерно на 90 градусов к первой. Отмечаем на ней 4 отрезка той же длины. Теперь, если скорректировать дальние точки так, чтобы расстояние между ними было как 5 отрезков, то мы получим прямой угол.
После того как вы начертили каркас будущих ворот, можно проверить правильность прямоугольника. Измеряем диагонали, они должны быть равны.
Почему мы так детально рассмотрели момент разметки ворот? Вы должны понимать, что ошибка в длине, может вызвать перекос ворот.
Как выбрать размер створок?
Откатные ворота изготовить самостоятельно сложно. Рассмотрим, как выбрать размер створок на примере распашных ворот. Такой вход на территорию имеет два типа открытия створок:
- наружу;
- внутрь.
Калитку можно вырезать в одной из подвижных частей либо сконструировать отдельно.
Важно! Перед тем как монтировать ворота с калиткой из профнастила нужно тщательно измерить проем и пространство вокруг, чтобы понять, достаточно ли будет места для открытия створок. После этого следует нарисовать чертеж конструкции с точностью до миллиметра и включить в него все необходимые элементы
Распашные ворота обычно устанавливаются теми владельцами дачного у которых есть машина, поэтому длина проема должна равняться габаритам машины с учетом зеркал плюс зазор для свободного въезда равный 1 метру. Если предполагается что-либо завести внутрь территории на грузовом транспорте, при обустройстве входной зоны следует учесть его габариты.
Поэтому конструкция, как правило, имеет в ширину около 4 метров, то есть длина одного полотна будет 2 метра. Прежде чем устанавливать учтите, что перед воротами должно быть не менее 2 метров свободного участка открытия створок. Если въезд обустраивается для грузового автомобиля, то ширина проема должна быть 6 метров, то есть по 3 метра на каждую часть.
Высота подбирается по усмотрению владельца. Наиболее используемые габариты – 2-2,5 метра.
Рассчитаем необходимое количество профнастила. Габариты створки 2х2 метра – 8 м2. Полезная ширина панели профилированного листа С8 – 1150 мм (общая 1200 мм). Дина панели варьируется в достаточно большом диапазоне – от 0,5 до 13 мм. Если габариты подвижной части другие, например, 1,75х1,8 м, профнастила понадобится 6,3 м2. Расчет делается так:1,75х1,8х2. Не забывайте учитывать нахлест.
Если есть возможность, то лучше при расчете ширины створок отталкиваться от стандартных габаритов листа, чтобы его не пришлось подрезать.
Это важно! Чем выше и длиннее конструкция ворот, тем больше вес, а, следовательно, и нагрузка будет на опорные столбы. Поэтому нужно тщательно высчитать размер
Если створки получаются громоздкими придется усилить фундамент и опоры.
Количество профильной трубы (уголка) на раму рассчитывается просто:
- Умножаем ширину одной створки на 4 (например, ширина 2 м, получаем 8 метров).
- Умножаем высоту створки на 6 (2 м х 6 = 12 м).
- Складываем оба полученных произведения: 8 м + 12 м = 20 м. То есть для рамки понадобиться 20 метров.
Высота столбов для ворот должна равняться высоте профнастила плюс около 0,8–1,2 метра для подземной части и выполнения зазора между нижней гранью створок и грунтом.





































