Планировка 1-этажного дома с тремя спальнями — выбираем проект по вкусу

Как подключить водопровод в частном доме?

Для подключения водопровода в частном доме необходимо следующее:

  1. Определиться с местом подключения: водопровод можно подключить к городскому водоснабжению через городскую сеть или создать собственную скважину или колодец.

  2. Получить разрешение: в зависимости от места подключения может потребоваться получение разрешения от муниципальных органов.

  3. Определиться с материалами: для монтажа водопровода необходимы трубы, фитинги, краны и другие комплектующие.

  4. Провести монтаж: монтаж водопровода выполняется специалистами или самостоятельно с учетом технических требований.

  5. Протестировать систему: после монтажа необходимо протестировать водопровод, чтобы убедиться в его надежности и эффе

Подключение водопровода в частный дом является сложным процессом, требующим высокой квалификации и знаний в области инженерных сетей. Для подключения водопровода вам может понадобиться следующее:

  1. Согласование планов строительства и подключения водопровода с местными властями и водоснабжающими компаниями.

  2. Получение всех необходимых разрешений и сертификатов для строительства и подключения водопровода.

  3. Установка главных труб водопровода до дома и далее до кранов внутри дома.

  4. Установка фильтров, насосов и других комплектующих элементов, необходимых для обеспечения качественного и надежного подачи воды.

  5. Проведение технических испытаний и внедрение корректирующих мер, если это не

Для подключения водопровода в частный дом, вы должны следовать следующим шагам:

  1. Определите местонахождение водоснабжения в вашем городе.

  2. Свяжитесь с водоснабжающей компанией или муниципальным органом, которые отвечают за предоставление воды в вашем регионе, для получения дополнительных инструкций и разрешений.

  3. Определите, сколько воды вам нужно и согласуйте его с водоснабжающей компанией.

  4. Установите трубы для подключения воды к вашему дому. Это может включать в себя установку новых труб или ремонт существующих.

  5. Установите краны и сантехнические приборы, такие как унитазы, ванные комнаты, душевые кабины и т.д.

  6. Проверьте систему на утечки и убедитесь, что все работа

Для подключения водопровода в частный дом, вам нужно выполнить следующие шаги:

Обратите внимание, что подключение водопровода – дело специалис

Для подключения водопровода в частном доме необходимо следующее:

  1. Определиться с местом подключения: водопровод можно подключить к городскому водоснабжению через городскую сеть или создать собственную скважину или колодец.

  2. Получить разрешение: в зависимости от места подключения может потребоваться получение разрешения от муниципальных органов.

  3. Определиться с материалами: для монтажа водопровода необходимы трубы, фитинги, краны и другие комплектующие.

  4. Провести монтаж: монтаж водопровода выполняется специалистами или самостоятельно с учетом технических требований.

  5. Протестировать систему: после монтажа необходимо протестировать водопровод, чтобы убедиться в его надежности и эффе

Подключение водопровода в частный дом является сложным процессом, требующим высокой квалификации и знаний в области инженерных сетей. Для подключения водопровода вам может понадобиться следующее:

  1. Согласование планов строительства и подключения водопровода с местными властями и водоснабжающими компаниями.

  2. Получение всех необходимых разрешений и сертификатов для строительства и подключения водопровода.

  3. Установка главных труб водопровода до дома и далее до кранов внутри дома.

  4. Установка фильтров, насосов и других комплектующих элементов, необходимых для обеспечения качественного и надежного подачи воды.

  5. Проведение технических испытаний и внедрение корректирующих мер, если это не

Для подключения водопровода в частный дом, вы должны следовать следующим шагам:

  1. Определите местонахождение водоснабжения в вашем городе.

  2. Свяжитесь с водоснабжающей компанией или муниципальным органом, которые отвечают за предоставление воды в вашем регионе, для получения дополнительных инструкций и разрешений.

  3. Определите, сколько воды вам нужно и согласуйте его с водоснабжающей компанией.

  4. Установите трубы для подключения воды к вашему дому. Это может включать в себя установку новых труб или ремонт существующих.

  5. Установите краны и сантехнические приборы, такие как унитазы, ванные комнаты, душевые кабины и т.д.

  6. Проверьте систему на утечки и убедитесь, что все работа

Для подключения водопровода в частный дом, вам нужно выполнить следующие шаги:

Обратите внимание

Комфортный одноэтажный дом для семьи

Одноэтажный дом с тремя комнатами предназначен для одновременного проживания в нем полноценной семьи. Жилые комнаты удивят своими просторными формами, большие окна прибавят свет и уют. Проект дома рассчитан на 4-х человек, но и большее количество людей не будет чувствовать себя стесненно. В таком доме очень просто разместить гостей, проводить встречи друзей и родных. Небольшой дом позволяет чувствовать себя в нем комфортно в любое время года.

Комфортный семейный одноэтажный дом из сруба

Комфортный семейный дом в европейском стиле

Небольшой современный дом может вместить только маленькие спальни

Как улучшить функциональность дома с тремя спальнями

Современный подход к формированию жилого пространства характерен реализацией оригинальных идей технического и эстетического плана. Широкий выбор отделочных материалов, механизмов, элементов мебели и аксессуаров позволяет формировать практичные, комфортные пространства. Добиться заметных результатов можно как в уже готовом доме, так и в проектируемом. Во втором варианте возможностей больше, поскольку отсутствует этап перепланировки. Все коммуникационные маршруты и конструктивные элементы выполняются по плану.

Туалетная комната в спальне

Возможны два варианта по исполнению. Если за одной стеной уже есть туалетная комната, то можно сделать второй вход туда из спальни. Небольшая перепланировка помещений не сильно ударит по семейному бюджету, но существенно повысит комфорт и удобство пользования. Второй вариант предусматривает прокладку всех необходимых коммуникаций — водоснабжение, канализацию, вентиляцию. Более затратный способ. Но он дает полную независимость пользователям, которые могут не подстраиваться под нужды других обитателей дома. Без монтажа эффективной системы вентиляции устанавливать ванну, душевую кабину в спальне не рекомендуется. Повышенная влажность – точно не лучшее условие для отдыха и сна.

Туалетная комната в спальнеИсточник myfancyhouse.com

Выход на улицу из спальни

Эта идея все чаще применяется на практике. Хорошо защищенный участок вокруг дома делает выход безопасным. Вмонтировать дополнительную дверь можно в любую спальню. Интересным выглядит это решение как в детской комнате, так и в помещении для семейной пары и пожилых людей. Устройство дополнительного входа не требует больших вложений. Можно использовать для этой цели оконный проем, расширив его до нужного размера. Популярным вариантом становится стеклянная дверь «в пол», или, как ее часто называют, французская. Общий план одноэтажного дома с 3 спальнями не изменится, а вот функциональность его существенно повысится.

Выход на улицу из спальниИсточник archilovers.com

Трансформируемая комната

Изменения назначения комнаты в большинстве случаев обеспечивается специальной мебелью и инженерными конструкциями. Трансформировать пространство можно с помощью:

  • откидных, раздвижных кроватей;
  • трансформирующихся столов;
  • раздвижных, откатных, мобильных перегородок;

Кроме того, в современном интерьере широко используется встроенная техника. Проекторы, музыкальные центры. Производители детского и спортивного инвентаря также предлагают богатый ассортимент продукции с изменяющимися качествами. Детская игровая зона может в считанные минуты быть изменена либо вообще убрана. Некоторые модели тренажеров выпускаются в универсальном исполнении. Они не занимают много места и могут храниться в ограниченном пространстве, когда не используются по прямому назначению.

Комната-трансформерИсточник 4woodi.pl

Резюмируя информацию, можно утверждать, что современные технологии и оригинальные идеи для дома с тремя спальнями сделают жизнь его обитателей комфортной, насыщенной и полезной. Для этого нужно адаптировать общестроительные нормы к конкретной конфигурации строения, использовать все имеющиеся преимущества и нивелировать недостатки.

Планирование собственного дома

Пример того, как можно распределить комнаты

Без чего не обойтись

Любой одноэтажный дом с тремя спальнями — это возможность выбрать быстрое или капитальное строительство из несколько интересных материалов:

  • Быстрая сборка по типу «канадской технологии». Отлично подходит как раз для одного этажа, позволяет строить быстро, а само строение будет длительное время находиться в эксплуатации.
  • Строительство из пеноблоков. Так же позволяет строить быстро, экономит время, а главное позволяет провести утепление по упрощенной схеме.
  • Стандартное строительство с использованием кирпича. Это уже основательная работа, однако, один уровень строить намного легче.

Наиболее распространенный вариант, это строительство из кирпича или пеноблоков, и здесь придется рассмотреть самый простой проект, в котором в план одноэтажного дома с 3 спальнями войдут:

  • Ленточный фундамент.
  • Железобетонные перекрытия.
  • При чердачном варианте потребуются деревянные стропила, при плоской крыше — гидроизоляция железобетонных перекрытий.

Простой вариант с деревянными стропилами и чердачным пространством

Что касается распределения помещений по размеру, здесь придется руководствоваться многими составляющими, ведь проект одноэтажного дома на 3 спальни предполагает, что необходимо разместить:

  • Гостиную.
  • Кладовку.
  • Возможно, небольшое помещение под гардероб.
  • Кухню.
  • Столовую.
  • Санузел общий или раздельный.

Как можно увеличить функциональность

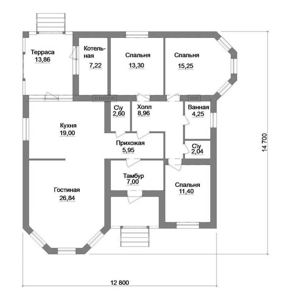
Любой план одноэтажного дома с тремя спальнями показывает площадь каждого помещения.

Читать также: Проект одноэтажного дома с четырьмя спальнями – на что следует обратить внимание при выборе варианта

Соответственно можно рассмотреть полезную площадь для каждой комнаты:

  • Гостиная может быть рассчитана с учетом всей семьи и максимально возможного количества гостей.
  • Кухня планируется с точки зрения именно функциональности. Здесь учитывается необходимость именно удобного приготовления пищи.
  • Площадь под гардеробы можно выделить в каждой из спален, а так же устроить один общий гардероб, и все это можно своими руками сделать.
  • Помещение под котельную рассчитывается строго под котел и под его технологические требования

Пример проекта, в котором отдано необходимое помещение для котельной

Интересно, что привести все квадратные метры именно к функциональности помогает совмещение нескольких комнат.

Если не говорить о необычном зонировании, а остановиться на самых распространенных объединениях, то получается:

  • Совмещенный санузел.
  • Гостиная и кухня, или кухня и столовая. В этом варианте в любом случае можно выделить одно помещения под две зоны.
  • Котельная и кладовка. Технологически совершенно неправильный вариант, однако он часто встречается в частных домах.

В частном коттедже можно идеально совместить кухню и столовую

Что интересно, такое совмещение позволяет не просто максимально использовать площадь, но и увеличивает конкретно жилую площадь, которую предоставляет одноэтажный дом с 3 спальнями.

Смысл в том, что каждое совмещение помещения означает минус перегородка или стена, а это плюс к общей площади. Даже несмотря на самые тонкие перегородки, их сечение не может быть меньше 10 см. К примеру, проект одноэтажного каркасного дома с тремя спальнями обязательно рассчитан с учетом материала, и здесь перегородки, по сути, не могут быть широкими.

Читать также: Планировка спальни – простое занятие для души, но с подтекстом

Кстати, вариант с совмещением помещений дает возможность рассматривать и смету по-другому. Цена такого совмещения естественно ниже, чем при наличии перегородок. Плюс отсутствие дверей между комнатами.

Все намного боле упрощается, если в реализацию идет проект одноэтажного дома 10х10 с тремя спальнями. Такие цифры говорят о том, что для планирования есть 100 квадратных метров, а это уже нормальная возможность организовать любое помещение практически без ущерба для его площади.

Плюс на такой площади можно не совмещать кухню и столовую, спроектировать достаточно большую гостиную, отдать необходимые квадраты под кладовую и сделать раздельными туалет и ванную.

Нельзя сказать, что есть определенная инструкция для проектирования на все случаи жизни, каждый раз, если разговор касается именно частного дома, коттеджа, проектировщик делает план, соизмеряя его с потребностями будущих владельцев.

Проект 10х10 позволяет спокойно планировать все помещения

Оптимизация затрат

Успех строительства и дальнейшей эксплуатации дома закладывается во время составления плана. Вы можете рассматривать типовые проекты частных домов, или заказать индивидуальный план

В любом случае важно внимательно изучать предлагаемые варианты, примерять их на свои потребности и привычки

Проектирование – сложный многоступенчатый процесс, во время которого специалисты предусматривают множество важных деталей. О существовании многих из них заказчик, не связанный со сферой строительства даже не подозревает. Однако существуют нюансы, которые позволяют оценить грамотность и, следовательно, выгодность проекта. Преимуществами считаются следующие особенности планировки 1-этажного дома с 3 спальнями:

Проект учитывает потребности людей всех возрастных категорий

Хотя в нем отсутствует лестница, потенциальный источник травм, важно не забывать про потребности маленьких детей и старших родственников. Большим плюсом также будет удобное (в близкой доступности) расположение помещений общего пользования

Проект с низким крыльцомИсточник mcdonaldjoneshomes.com.au

Проект с низким крыльцомИсточник mcdonaldjoneshomes.com.au

  • Те же условия важны для доступа к приусадебной территории. Если в плане предусмотрено крыльцо, необходимо сделать его безопасным: позаботиться о перилах и ограждении, сделать навес для защиты от осадков, провести свет.
  • Разводка труб водоснабжения и канализации просто обязана быть экономной. Ее выполняют по упрощенной схеме, что уменьшает не только строительные расходы, но и суммы в счетах за отопление. С этой точки зрения наиболее экономически выгодна планировка, в которой кухня и санузел расположены рядом, а жилые комнаты – через перегородку.
  • Комфорт проживания увеличивается благодаря остеклению большой площади, а также наличию пристроек: террасы, веранды, гаража.

Образец нерациональной разводки коммуникацийИсточник domavis.ru

Важен не только комфорт, но и функциональность помещений, поэтому необходимо присмотреться к следующим деталям:

  • Технические помещения располагаются с учетом требований нормативно-технической документации (они прописаны в СНиПах и ГОСТах). В противном случае возникнут проблемы с их подключением.
  • В регионах с продолжительными зимами необходимо защитить дом от потерь тепла. В этом поможет коридор, снабженный тамбуром или внешняя пристройка в виде застекленной и утепленной веранды.
  • Если в доме будут жить более пяти человек, понадобится второй (отдельный) санузел. Также придется подумать о логике перемещения людей.

С сауной и террасой вдоль длинной стороныИсточник karkasnik-stroy.ru

Создание проекта

При проживании в холодном климате необходимо сделать в доме тамбур. Его наличие не позволит холодному воздуху попадать в дом. Если тамбур не вписывается в общую концепцию дома, можно сделать его как пристройку. Решение не самое красивое с точки зрения дизайна, но довольно практичное.

Кухню, ванную и туалет лучше разместить рядом. Такое решение позволит сэкономить на стройматериалах для канализации и проведение воды. Также, желательно заранее прорисовать на проекте крупногабаритную мебель. Если отразить мебель на рисунке, можно подстроить план дома так, чтобы она органично вписывалась в дизайн.

При разработке проекта необходимо учитывать климатические особенности региона

Как правило, адаптация уже готового проекта под климат занимает несколько дней. Но такая мера позволяет сэкономить время и денежные средства на строительство.

Также важно учитывать расположение участка (низина или возвышенность), глубины залегания грунтовых вод. При их близком залегании стоит подумать о хорошем дренаже. Жилой дом не должен располагаться ближе 3 м от границы участка и 5 м от проезжей части

Если рядом находится водоем, расстояние между ним и домом должно составлять не менее 50 м

Жилой дом не должен располагаться ближе 3 м от границы участка и 5 м от проезжей части. Если рядом находится водоем, расстояние между ним и домом должно составлять не менее 50 м.

При разработке плана одноэтажного дома важно учитывать климатические условиях региона, где будет строиться дом

Проект No1

На фото ниже — проект одноэтажного аккуратного дома 10*12 метров с 3 спальнями. Фасад дома выполнен в современных традициях с деревянной отделкой, крыша покрыта черепицей. Сама постройка возведена из газобетона. Общая площадь здания составляет 100 кв. м.

Фасад дома.

У постройки есть выход на задний дворик с небольшой открытой террасой:

Задний дворик.

Планировка дома продуманная, грамотно составлена и имеет четкое разделение на зоны: правая сторона постройки предназначена для спален, левая сторона – это дневное общее пространство. Смысловым центром дома выступает гостиная, совмещенная со столовой. Из этой комнаты есть выход на террасу. В доме также предусмотрены две уборные (гостевая и расширенная), гардеробная, котельня.

Схема этажа.

Одноэтажный дом: преимущества и недостатки

Если вы решили начать строительство собственного дома, но не можете определиться, какая этажность будет наиболее оптимальной, то обязательно обратите внимание на проект дома 9. Не думайте, что одноэтажный дом – это пережитки прошлого, вовсе нет. В последнее время все больше и больше внимания жителей мегаполиса привлекают компактные коттеджи, способные обеспечить полнофункциональную площадь для проживания целой семье

В последнее время все больше и больше внимания жителей мегаполиса привлекают компактные коттеджи, способные обеспечить полнофункциональную площадь для проживания целой семье

В последнее время все больше и больше внимания жителей мегаполиса привлекают компактные коттеджи, способные обеспечить полнофункциональную площадь для проживания целой семье.

Типовой проект частного одноэтажного дома

Стоит отметить несколько наиболее значимых преимуществ таких сооружений, а именно:

  • доступность. Так как строительство двухэтажных домов – это весьма недешевая задача, далеко не каждому человеку удается накопить необходимую сумму, чтобы стать владельцем дома своей мечты. Одноэтажные строения не только доступны, но еще и благодаря огромному разнообразию планов сооружений с мансардой, могут удивлять своими архитектурными решениями.
  • комфорт и уют. Согласитесь, жить в огромном и пустом замке, даже при наличии большой семьи, нерационально. Кроме того, пустующие комнаты все равно будут требовать обогрева помещений, поэтому, это будет требовать немалых ежемесячных трат на оплату коммунальных услуг или покупку топлива для котла.
  • -удобство для детей и пожилых людей. Разумеется, никакой двухэтажный дом невозможно представить без лестницы. Но она, в свою очередь, может стать немалым препятствием, а иногда даже угрозой безопасности для малышей и пожилых родственников.

Небольшой, но уютный одноэтажный дом Но, несмотря на все перечисленные преимущества, одноэтажные дома имеют определенные недостатки. Они не всегда практичны в том случае, когда у вас большое семейство. Если вы решили возвести дом, то вам наверняка, хочется обеспечить комфорт проживания для себя и родных. Именно поэтому, планировка дома 9 на 11 одноэтажный должна продумывать то количество помещений, которое понадобиться вам. Если метров площади будет недостаточно, то вы можете возвести коттедж с мансардой. Мансарда – это превосходный вариант для всех людей, которые приняли решение отказаться от возведения капитального сооружения, но все-таки хотят задействовать чердак, реализуя проект дома 9 на 11 м. Кроме того, стоит отметить также и то, что сейчас весьма не просто подобрать подходящий участок, под те чертежи, которые размещены в сети. Как правило, в таком случае, целесообразно воспользоваться услугами опытных проектировщиков, которые знают свое дело, чтобы без погрешностей рассчитать все необходимые строительные работы и уберечь себя от неоправданных трат на материалы.

Удачный проект коттеджа 9 на 11 с функциональной планировкой

Оптимальное расположение спальных комнат

Если в доме два и более этажей, то специалисты рекомендуют комнаты отдыха делать наверху. Когда же в наличии всего один уровень, проектировать три спальни гораздо сложнее. Не делают их проходными и не располагают в центре жилья. По всем правилам, помещения для отдыха и сна должны иметь окна. Естественный свет и приток свежего воздуха в комнату – жизненно необходимое условие. В любом случае одна из стен будет несущей

Квалифицированные проектировщики, архитекторы и дизайнеры советуют обратить внимание на некоторые важные факторы при планировке спален

Дом с тремя спальнями: проект с планировкой Источник m.yandex.com

Детские

Располагать их желательно на восточной стене дома. Тогда с утра помещение будет наполняться естественным светом, заряжая ребенка энергией на целый день. После обеда солнце перемешается на противоположную сторону, и в детской не будет перегрева. Света достаточно. Комфортные условия для игр и послеобеденного сна. Расположение относительно других помещений общей жилой площади не имеет принципиальных ограничений, но не желательно делать за смежной стеной гостиную, где установлен домашний кинотеатр либо другие обитатели дома могут производить шум после укладки детей на ночь.

Детская Источник aviarydecor.com

Комнаты для супружеских пар

В отличие от детских, спальня для взрослых не обязательно делается со стороны восточной стены. Дизайнеры рекомендуют ее планировать на южной, юго-западной стороне. Прямых солнечных лучей либо вообще не будет, либо они будут появляться на короткий период времени. Идеальные условия для отдыха в любое время суток, если возникает такая необходимость. Желательно близкое расположение ванной и туалетной комнаты. Можно расположить спальню для взрослых ближе к кухне, чтобы не тревожить других членов семьи ранними завтраками и поздними вечерними разговорами.

Комната для супружеской пары Источник chrome-effect.ru

Спальня для людей старшего поколения

Первостепенное значение при планировании комнаты для пожилых членов семьи имеет максимально комфортное доступное местоположение. Помещение располагают строго на одном уровне с общей жилой зоной. Никаких подиумов, ступеней, приступов

Важно мнение самих обитателей спальни. В этом возрасте желательно обеспечить людям старшего поколения такие условия, о которых они сами высказались. Если они не хотят прямого солнечного излучения, то комнату располагают на северной или южной стороне

Солнце с утра будет на восточной стороне, после полудня на западной части дома

Если они не хотят прямого солнечного излучения, то комнату располагают на северной или южной стороне. Солнце с утра будет на восточной стороне, после полудня на западной части дома.

Спальня для людей старшего поколения Источник u-f.ru

Гостевые комнаты

Это помещения временного проживания, а значит таких требований, как для комнат с постоянными обитателями, нет. Расположить гостевую спальню можно в любом удобном месте дома, но не желательно делать ее смежной с детской или комнатой отдыха для пожилых людей. Важнее оборудовать ее минимальным набором мебели. Кровать, шкаф должны быть обязательно. В качестве дополнительных опций можно установить там телевизор, небольшой холодильник, кондиционер. В современных реалиях со множеством гаджетов в комнате рекомендуется не менее двух розеток.

Гостевая комната Источник prostroyer.ru

Проекты одноэтажных домов до 150 м2: фото и особенности

Практически любая планировка одноэтажного дома площадью 150 кв м позволит разместить следующие виды помещений:

  • не меньше 3 спальных комнат (иногда 4 или 5, если дом с мансардой);
  • большую гостиную, столовую и просторную кухню площадью от 8 до 15 кв. м. Эти же помещения могут быть объединены в одно общее;
  • два санузла – первый внизу, второй в мансарде.

Размещение других комнат – строго индивидуальное. При наличии в семье человека, работающего на дому, в их состав может быть включён кабинет. На первом этаже располагают баню, бойлерную и, иногда, гараж. Хотя в здании общей площадью от 120 до 150 кв. м вообще может не быть мансарды.

Планировка одноэтажного частного дома площадью до 150 кв. м

Планы одноэтажного дома 10 на 12 и 12 на 12: хороший выбор для больших семей

В большинстве случаев на плане одноэтажного дома с тремя спальнями 10×12 отмечается просторная гостиная, санузел, столовая и кабинет. Часть комнат может объединяться. Например, кухня и столовая обеспечат больше пространства при отсутствии между ними перегородок. А для дополнительного увеличения пространства стоит предусмотреть расположение жилой зоны в мансарде. Здесь же будет уместно смотреться ещё один санитарный блок и гардеробная для хранения вещей, не подходящих по сезону.

Планировка дома 10 на 12

При планировке зданий такого размера – при этом параметры дома могут немного изменяться в большую или меньшую сторону (примерно так же планируются постройки 10 х 12 метров) руководствуются такими факторами:

  • расположение комнат вдоль сторон света. Желательно, что стены детских и спален смотрели на юг, а большая часть их окон – на запад, чтобы утреннее солнце не будило жильцов слишком рано;
  • комнаты «дневной зоны» (гостиную и столовую) можно располагать ближе к выходу или к веранде, если она включена в план;
  • форма жилых помещений должна быть прямоугольной.

Нежелательно делать любую из спален или гостиную проходными. А расчёт оптимальной площади выполняется в соответствии с нормой в 8 кв. м на одного ребёнка. Для супружеских пар достаточно спальни размером около 15 кв. м. Если же в здании проживает 2 семьи, можно предусмотреть для него отдельный вход.

Фото дома 10 на 12

План одноэтажного дома 12 на 12: аналог небольшой двухэтажной постройки

Любая выбранная по типовому или индивидуально разработанному проекту планировка одноэтажного дома 12×12 м представляет собой отличную возможность расположить комнаты в соответствии с требованиями жильцов и рекомендаций специалистов. Особенности такого здания:

  • комфортное размещение от 2 до 6 человек даже без мансардного этажа;
  • удобное расположение жилой зоны в верхней (мансардной) части и хозяйственных помещений внизу;
  • возможность временного использования мансарды только в летнее время, а, при увеличении размеров семьи, перевод её помещений в полностью жилую зону.

Размеры одноэтажного дома 12×12 м позволяют разместить внутри и веранду, и гараж на один автомобиль, и мастерскую, и бойлерную. Санузлов для такого здания может быть и два, и даже три – если количество проживающих здесь постоянно семейных пар тоже равно трём. При этом для каждой семьи может делаться отдельный вход. Ведь при устройстве ломаной крыши общая площадь дома может превышать 200 кв. м, то есть быть примерно равной трём 2-х или 3-х комнатным квартирам.

План дома 12 на 12

План одноэтажного дома 11 на 11 и разнообразие вариантов

Вместительный одноэтажный дом 11 на 11 м с мансардой легко заменит собой не меньше двух полнометражных городских трехкомнатных квартир. Если же добавить к мансардному ещё и цокольный этаж, постройка позволит с комфортом проживать в ней семье из 6–8 человек. При этом у каждой пары будет собственная спальная, а у ребёнка – детская. Средний размер гостиной такого дома – от 20 до 30 кв. м, кухни – не меньше 10 кв. м. Из-за того, что наличие мансарды позволяет не экономить на пространстве, в хозяйственной зоне можно предусмотреть небольшую сауну и даже встроенный в дом гараж. А дополнением к жилой части станет кабинет и просторная веранда.

Проект дома 11 на 11

Проекты такого размера редко применяют для дачного строительства. Но, если дача 11 на 11 всё же будет строиться, в ней не обязательно предусматривать мансарду. Для большого частного дома мансардный этаж практически обязателен, так как позволяет эффективнее использовать подкрышное пространство. Большая часть проектов предполагает создание мансарды, делающей дом почти двухэтажным.

Фото дома 11 на 11

Статья по теме:

Поделитесь в социальных сетях:FacebookX
Напишите комментарий