Что такое пиролиз
Твердотопливный котел, работающий на угле или на дровах по старой, традиционной схеме – это уже пережиток прошлого. Несмотря на то, что твердое топливо продолжает оставаться относительно доступным, многих смущает невысокая эффективность обогрева жилого помещения, отапливаемого традиционными твердотопливными котлами. Ситуация сегодня в корне изменилась. На рынок отопительной техники пришли пиролизные котлы, экономичные, высокоэффективные и мощные агрегаты. Огромные технологические оборудования этого вида обязаны пиролизу, инновационному процессу сжигания твердого топлива.

Пиролиз представляет собой процесс равномерного распада органических соединений под воздействием высокой температуры. Искусственно ограничив доступ воздуха, можно превратить обычное горение топлива в медленно текущий термический распад органических соединений. В процессе тления органического топлива помимо тепловой энергии выделяется большое количество газообразного горючего вещества. В результате процесса получается древесный газ и древесный уголь. Другое название конечного продукта — кокс, органическое вещество, на 90% состоящее из углерода.
Полученный в результате пиролиза древесный газ является отличным топливом. Попадая во вторичную камеру сгорания, насыщенную кислородом, в процессе горения газообразное вещество выделяет огромное количество тепловой энергии.
Количество золы, оставшейся после сгорания древесного газа незначительно, что существенно облегчает чистку отопительного котла.
Этапы пиролиза
Что бы понять принцип работы пиролизного котла нужно иметь представление, что и зачем происходит на каждом этапе. Твердотопливный котел этого типа имеет две камеры сгорания. В первой камере сгорания осуществляется досушивание древесины. Температура котла в этот момент составляет 450 0С. На этом этапе начинается генерация продуктов горения в газообразное вещество — древесный газ. Смешиваясь с подаваемым с помощью вентилятора разогретым, вторичным воздухом, газообразное вещество горит уже при температуре 560 0С.
На данном этапе экзотермическая реакция набирает силу, создавая в итоге высокую интенсивность горения. Газ поступает во вторую камеру, где уже с помощью подаваемого кислорода горит значительно интенсивнее. Температура во второй камере сгорания составляет 1100 0С.

На каждом этапе из получаемых в результате горения продуктов выжимается максимально возможное количество полезной работы, соответственно КПД котла значительно увеличивается. Для оптимизации работы отопительного котла в рабочем режиме, конструкция пиролизного котла имеет шиберы (задвижки). В чем суть этих приспособлений?
После включения пиролизный котел работает в обычном, печном режиме. При полной загрузке котла топливом с помощью шибера можно выставить наиболее эффективный пиролизный режим горения. В отличие от традиционного горения экзотермической реакцией можно управлять. Такая особенность дала возможность сделать пиролизные котлы автоматизированными нагревательными приборами. Благодаря пиролизу удалось полностью использовать топливные возможности древесины, доведя в результате горения КПД котла до высоких значений. Автоматизация всего процесса минимизирует человеческий фактор, снижает расход топлива.
В плане выбора топлива, пиролизные котлы всеядны. Для отопления жилого дома с помощью твердотопливного котла пиролизного типа подойдут дрова и опилки, брикеты из древесины и торфа, пеллеты.
Что подразумевается под названием пиролиз
Пиролиз – генерирование горючего газа и его последующее сжигание, — происходит во всех твердотопливных котлах, в большей или в меньшей степени. Такой же процесс идет и в обычной печи, — при горении дров или угля, в каком-то месте не хватает кислорода, появляется угарный газ CO, затем он находит недостающий кислород и сгорает, выделяя тепло, превращаясь из яда в обычный углекислый газ – CO2.
В качестве экспериментов еще 1950-х годах была разработана схема котельного оборудования, где сначала топливо тлело при недостатке кислорода, затем полученное СО дожигалось во вторичной камере. Но идеи не были воплощены, как не дающие ни каких преимуществ с весомыми недостатками и дорогостоящие.
Теперь же в рекламках ядовитый угарный газ СО называют – «древесный газ».

Это интересно: Как сделать освещение в ванной комнате своими руками — разбираемся в вопросе
Устройство отопительного котла
Простая конструкция пиролизного котла и его устройство основано на следующем: во время сжигания дров, лучшим из которых является древесина, они разлагаются. Благодаря этому происходит образование углей и горючего газа. Чтобы добиться этого процесса, внутри отделения необходимо создать достаточно высокую температуру, а также проследить, чтобы не было кислорода.
Это возможно сделать в специальном отсеке машины, в котором будет происходить горение древесины, а также газа, который выделяет этот вид топлива. В этом процессе практически отсутствует выделение сажи, наблюдается незначительное количество золы.

Устройство пиролизного котла
Оборудование котла на твердом топливе является достаточно эффективной установкой, так как кпд составляет до 85%. Причем параметры мощности пиролизного котла регулируются от 30% до 100%.
Схема, сборка и установка пиролизного котла своими руками довольно трудные, поэтому имеются свои преимущества и недостатки.
Требования безопасности и правила эксплуатации
Несоблюдение правил пожарной безопасности при установке котла может привести к пожару, к тому же это ставит под угрозу здоровье и жизнь вашей семьи.
Основные правила которые требуется учесть:
- Устанавливаться котел, должен в специально отведенном для этого месте (котельная);
- Под основанием котла должна быть вымощена площадка из кирпича либо залита бетоном;
- Расстояние между котлом и стенами не должно быть меньше 30 см. Окружающие котел стены должны быть обшиты листами металла;
- Обязательное наличие вентиляционного отверстия в котельной, для постоянного притока свежего воздуха.
Важно! Утепленный дымоход предотвратит образование на его стенках конденсата, что увеличит эксплуатационный срок службы трубы. Настройка правильного функционирования котла после установки также имеет свои особенности. В норме котел не дымит
Перед первым включением котел подсоединяется к дымоходу и наполняется водой. На котле размещается терморегулятор для контроля показателей температуры жидкости. Чтобы смонтировать термометр в котлах предусмотрены специальные отверстия
В норме котел не дымит. Перед первым включением котел подсоединяется к дымоходу и наполняется водой. На котле размещается терморегулятор для контроля показателей температуры жидкости. Чтобы смонтировать термометр в котлах предусмотрены специальные отверстия
Настройка правильного функционирования котла после установки также имеет свои особенности. В норме котел не дымит. Перед первым включением котел подсоединяется к дымоходу и наполняется водой. На котле размещается терморегулятор для контроля показателей температуры жидкости. Чтобы смонтировать термометр в котлах предусмотрены специальные отверстия.
Последовательность включения котла:
- Вентилятор подключается к электросети и проверяется на работоспособность. Воздушные заслонки должны быть на среднем положении.
- В загрузочный бункер необходимо положить небольшое количество бумаги и щепок. Дверцы камеры потребуется закрыть.
- Открывается дроссельная заслонка дымохода, включается вентилятор и поджигается бумага.
- После разгорания дров форсунка перекрывается.
- Через нижний отсек сжигания выполняется контроль горения.
- После закипания жидкости потребуется отключить вентилятор. Пламя погаснет, а вода начнет остывать.
Топить дровами не слишком удобно, поскольку в обычных условиях древесина сгорает очень быстро, а значительная часть тепла при этом не используется. Приходится постоянно загружать топливо в котел или печь. Пиролиз предполагает создать такие условия, при которых топливо сгорает значительно медленнее, отдавая при этом заметно большее количество тепла.
Перед началом работ рекомендуется внимательно изучить схему устройства пиролизного котла, чтобы понять принципы его функционирования и избежать ошибок
На ней отражено положение таких необходимых элементов, как:
- отверстие для воздуха;
- камера сгорания;
- дымовые каналы;
- трубы для подачи и отвода воды;
- регуляторы;
- место установки вентилятора и т. п.
На этом чертеже подробно представлена конструкция пиролизного котла, который можно сделать своими руками. Рекомендуется точно соблюдать все указанные разработчиком размеры
Чтобы сделать своими руками пиролизный котел подходящей мощности, нужно изготовить элементы соответствующего размера. Правильное соотношение размеров гарантирует успешный результат
Котел мощностью 25-30 кВт может стать оптимальным выбором для небольшого дома. Изготовление небольшого агрегата позволит сэкономить и время, и средства.
Особенности устройства и принцип работы
Пиролизный котел оптимизирует процесс горения, увеличивает его продолжительность, максимально повышает эффективность. Он имеет две камеры – газификации и дожига. Существуют основные типы установок: с принудительным поддувом и естественным, от этого зависит расположение топок.

В аппаратах с природной тягой дрова загружают сверху, с механической – снизу. В загрузочной топке тлеют дрова и твердые остатки. Во второй камере сгорают образующиеся газы. Сравнить плюсы и минусы обеих конструкций поможет таблица:
| Расположение камеры с топливом | Преимущества | Недостатки |
| Верхнее | Удобно загружать дрова | Требуется чистка обеих топок от золы |
| Естественный отвод дыма и продуктов сгорания | Сложно регулировать тягу, которая зависит от погоды | |
| Энергонезависимый котел | ||
| Нижнее | Естественная циркуляция древесного газа | Потребляет электроэнергию |
| Топки чистятся гораздо реже | Требуется дополнительное оборудование: вентилятор, источник бесперебойного питания |
Агрегаты с принудительным поддувом имеют свои преимущества. У них гораздо быстрее начинается пиролиз и прогревание системы отопления. Продукты сгорания сразу выводятся, не задерживаясь внутри. Есть возможность автоматического регулирования процесса. Существенный недостаток – постоянная зависимость от электроэнергии. Котел с естественной тягой неприхотлив и надежен, редко ломается.
Топливо разлагается на составные части при минимальном объеме поступающего кислорода. Дрова в обычном котле сгорают при средней температуре 1000° за 3–4 часа, выделяя около 5 килокалорий тепла. В пиролизном это происходит при 300–800° на протяжении половины суток. Коэффициент полезного действия вырастает до 90% по сравнению с обычными 70%.
Агрегат запускается и работает в такой последовательности:
- в топку загружают дрова, поджигают и закрывают дверцу;
- отворяют заслонку дымохода – возникает перепад давления, начинается приток кислорода в верхнюю камеру;
- выделяющийся при тлении топлива газ CO тяжелее воздуха, поэтому опускается и воспламеняется;
- происходит постоянная циркуляция смеси – она горит в обеих камерах, процесс стабилизируется.
Работа котла состоит из трех стадий:
- Розжиг. Заслонка прямого хода в открытом положении, дым удаляется беспрепятственно.
- Рабочий режим. Шибер перекрывают, начинается пиролиз. Тяга обеспечивается вентилятором или процесс естественный.
- Догрузка топлива. Открывают дроссель и быстро заполняют топку дровами.

В пирокотле постоянно циркулирует большое количество тепловой энергии. Значительная ее часть используется на самоподдержку рабочего цикла. Для отбора доступна только та, что не требуется для этих целей. Если установить теплообменник в любой камере, это резко ухудшит эффективность агрегата, возможно образование вредного угара, который не успевает сгореть. Водогрейный регистр располагают на пути дымовых газов.
Режимы работы пиролизного котла
Розжиг
На этом этапе нужно, чтобы шибер находился в открытом состоянии. Продукты горения движутся непосредственно в дымоход
Рабочий режим
Устройство работает при закрытой заслонке, обеспечивая, таким образом, протекание процесс пиролиза. Создание тяги в газоходе достигается принудительным образом или естественным путем.
Догрузка топлива
В этот момент шибер закрыт, но тяга в газоходе еще присутствует на протяжении некоторого времени. Процесс пиролиза не заканчивается. Догрузка топлива должна осуществляться как можно быстро, так как в противном случае оно может просто сгореть.
Принцип работы
Пиролизный котел – схема изготовления, основные этапы
Чтобы самостоятельно собрать газогенераторный отопительный агрегат, следует придерживаться следующих требований:
Необходимые элементы следует резать посредством болгарки. Отверстие для загрузки топлива размещается несколько выше, чем у твердотопливных устройств. Для осуществления контроля над поступающим в топочную камеру количеством воздуха, необходимо вмонтировать ограничитель. Его можно изготовить с помощью трубы диаметром 70 мм, при этом длина должна быть немного больше, чем корпус котла. С помощью сварочного аппарата приваривается стальной диск, который совместно со стенками трубы должен образовывать зазор примерно 40 мм. Чтобы установить в крышке котла ограничитель, нужно проделать соответствующее отверстие. Оно должно иметь прямоугольную форму. Отверстие закрывается дверцей, укомплектованной накладкой из стали. Это обеспечит надежное прилегание. Ниже располагается отверстие, предназначенное для удаления воды. С помощью трубогиба необходимо согнуть трубу, предназначенную для перемещения внутри котла теплоносителя. Таким образом обеспечивается максимальная отдача тепла. Регулирование количества теплоносителя, направляемого в устройство, может осуществляться посредством вмонтированного снаружи вентиля. Как только будет выполнен первый запуск оборудования, в продуктах горения не должно быть угарного газа. Если данное условие соблюдается, обвязка пиролизного котла (схема указана) сделана правильно
Важно регулярно следить за состоянием сварных швов устройства и своевременно удалять с него образовавшуюся копоть и золу. Прекрасным вариантом может стать совместное использование пиролизного котла не с классическим водяным отоплением, а с системами воздушного обогрева. В результате передача воздуха будет производиться по трубопроводам, а его возврат в систему – по полу
Такая система обладает многочисленными достоинствами: при сильных морозах не замерзает, во время отъезда хозяина отсутствует необходимость слива теплоносителя
В результате передача воздуха будет производиться по трубопроводам, а его возврат в систему – по полу. Такая система обладает многочисленными достоинствами: при сильных морозах не замерзает, во время отъезда хозяина отсутствует необходимость слива теплоносителя
Прекрасным вариантом может стать совместное использование пиролизного котла не с классическим водяным отоплением, а с системами воздушного обогрева. В результате передача воздуха будет производиться по трубопроводам, а его возврат в систему – по полу. Такая система обладает многочисленными достоинствами: при сильных морозах не замерзает, во время отъезда хозяина отсутствует необходимость слива теплоносителя.
Полезные советы по обустройству
Не у всех есть возможность устанавливать огромные хранилища для вещей. Зачастую приходится довольствоваться более скромными помещениями. Но даже в самой маленькой гардеробной (1 х 1 м) можно создать все условия, чтобы для каждой вещи нашлось свое место.
Несколько советов:
- пространство помещения будет выглядеть визуально больше, если использовать стеклянные или глянцевые дверки и встроенную в полки подсветку;
- разделители для ящиков позволят хранить ремни, галстуки, бижутерию систематизировано;
- надписи на ящиках и коробках с крышками помогут находить необходимые предметы быстрее;
- для исключения появления затхлого запаха и сырости, должна быть предусмотрена хорошая вентиляция;
- необходимо вовремя избавляться от вещей, которыми долго не пользовались, что позволит не создавать в помещении беспорядок, освободить место на полках.
Рекомендуется спроектировать оптимальную расстановку коробок, контейнеров и органайзеров из пластика, ткани, соломки или дерева. Они идеально подходят для размещения ремней, галстуков, платков, перчаток, а также одежды, не требующей глажки. Кроме того, такие системы хранения помогают сэкономить место на стеллажах, быстро находить нужные вещи.
В целом планировка такого участка в квартире требует большой подготовки, умения работать с чертежами и схемами. Если есть какие-либо сомнения, лучше будет обратиться за помощью к специалистам. Ведь гардеробная комната оборудуется не на один год, поэтому к ее проектированию нужно подойти со всей ответственностью.
Встроенная подсветка поможет быстрее найти необходимую вещьСтеклянные дверцы расширяют пространствоЯщики с разделителями помогут систематизировать хранение вещей
Подготовка материалов
Чтобы изготовить пиролизный котел своими руками, необходимо приобрести следующие виды металлопроката:
- сталь листовая толщиной от 4 до 5 мм нужна для сваривания топливника и камеры дожигания;
- то же, толщиной 3 мм – для водяной рубашки;
- профильные трубы сечением 80 х 40 х 2 и 60 х 30 х 2 мм пойдут на изготовление воздушных каналов;
- шамотный кирпич для обкладывания топливника и формирования сопла;
- из труб диаметром 159 х 4 и 57 х 3 мм делается патрубок дымохода, теплообменник и штуцеры для подключения к водяному отоплению;
- полоса стальная 20 х 3 мм;
- для обшивки понадобится базальтовая вата плотностью от 60 кг/м³ и толщиной 2 см, а также тонкий металл с полимерным покрытием;
- блок автоматики с вентилятором и датчиком температуры (недорогой и надежный – польского производства KG Elektronik).
Изготовление теплогенератора с верхним горением значительно упростится, если сделать топливник из старого газового баллона со стенками 4—5 мм. Тогда вам останется заготовить металл для водяной рубашки, воздушную трубу Ø57 мм и лист толщиной 1 см для дискового груза. Патрубки водяного отопления делаются из обрезков трубы Ø32—40 мм, дымохода – 159 мм. Также возьмите арматуру диаметром 2 см или уголки 40 х 40 на сборку колосниковой решетки.
Котельная установка верхнего горения
Чем топить пиролизный котел?
Пиролизный котел
Виды топлива
Для топки пиролизного котла можно использовать:
- дрова;
- торф в брикетах;
- антрацит;
- древесные гранулы и брикеты;
- бурый уголь;
- кокс.
Перечисленные виды топлива различаются по калорийности. От этого показателя напрямую зависит эффективность работы агрегата. Применение менее калорийного топлива может уменьшить КПД котла на 30% и более.
Чем топить котел
Чем топить котел
Чаще всего для топки пиролизных котлов используют брикеты и пеллеты. Брикеты могут изготавливаться из древесины, соломы и торфа. Идеальный вариант – брикеты, изготовленные по методу прессования. Те же брикеты, которые изготавливаются из опилок, рекомендуется использовать только в комплексе с бурым углем либо дровами.
Для изготовления пеллетов тоже может использоваться древесина или солома. Материал прессуется подобно брикетам.
Нередко для топки пиролизных котлов используются дрова
Важно! Для обеспечения максимальной эффективности работы оборудования и уменьшения расхода топлива нужно использовать древесину влажностью не более 20%
В целом же при выборе топлива следует учитывать особенности местности, в которой находится ваш дом. Если вы живете в окружении лесов, наиболее целесообразным вариантом будет использование дров. Жителям же степных полос, как правило, выгоднее топить углем.
Если в месте вашего проживания доступно любое топливо, выбирайте самое калорийное. Этим вы обеспечите наиболее высокий КПД оборудования при минимальном расходе.
Котел пиролизный
Гардеробная комната: варианты планировки
Линейный тип подходит для помещений прямоугольной формы
Организовать гардеробную систему можно как в спальне, детской, гостиной так и в другом помещении дома, которое позволяет забрать немного квадратуры. В зависимости от способа размещения оборудования, она бывает:
- линейная
- угловая
- п-образная
Каждый тип отличается особенностями, рассмотрев которые, можно решить для себя, какую гардеробную сделать своими руками.
Линейная
Гардеробная комната
Классическим вариантом обустройства гардеробной является линейное ее расположение. В данном случае вся система хранения расположена на одной стене. Такое размещение будет идеальным, если под зону отведено длинное, но узкое пространство. Внешне планировка будет напоминать использование шкафа-купе, поэтому не лишним будет изготовление двери купе, которое описано в последующих разделах.
Под линейное размещение выбирают длинную стену без дверных проемов и окон. Хорошо подойдет стена в спальне, недалеко от кровати.
Чтобы отделить зону хранения от комнаты, можно использовать такие вспомогательные элементы:
- раздвижную систему
- занавеску
- перегородку из гипсакратона
Преимущество линейной гардеробной в том, что владельцу квартиры нет необходимости выделять под хранение целую комнату: достаточно отделить лишь часть пространства имеющегося помещения.
Угловая
Угловой тип можно разместить как в спальне, так в гостиной – главное, правильно скрыть зону хранения одежды
Сделать угловую гардеробную своими руками немного сложнее, но эта задача выполнима. Для работы используют деревянные щиты ЛДСП, которые применяются для изготовления домашней мебели. Внешне такая система будет похожа на угловой шкаф, однако внутреннее оборудование гораздо функциональнее и больше.
Для изготовления из мебельных панелей достаточно проделать такие шаги:
- Планирование. Первое, что нужно сделать – создать чертеж в специальной программе или на листе бумаги. В чертеже прорисовывается схематически расположение всех полок, корзин, выдвижных систем, а также просчитывается количество деталей, перекладин, определяется тип раздвижной системы. Подробнее о планировании можно узнать в следующем разделе
- Закупка материалов, инструменты и распил. Чтобы изготовление прошло быстрее, можно воспользоваться услугами распила мебельных щитов. В цех подается чертеж со всеми размерами будущих полок и других деталей. Заказчику доставляется материал, который необходимо лишь собрать в единую систему. Ля этого потребуется шуруповерт, крепления, болты, а также дрель – при желании закрепить полки у стены
- Установка. После сборки необходимо проверить надежность всех соединений, а также смонтировать дверь
Не стоит забывать про освещение в угловой гардеробной: для этой цели отлично подойдут точечные споты, расположенные в потолке и на стенах.
П-образная
П-образное оформление позволяет вместить большое количество белья, одежды, обуви и других принадлежностей
Система под хранение вещей, сделанная в филе буквы П, отлично подходит в те комнаты, где есть возможность выделить пространство под гардеробную. Такая форма предполагает расстановку полок и другого оборудования с трех стен, а четвертая стена является входным проемом. Если нет возможности выделить отдельную площадь, то гардеробную размещают в одном из отрезков комнаты, огораживая ее декоративной ширмой.
Гостиная станет прекрасным вариантом для размещения системы хранения вещей. Если комната большая, не менее 20 квадратных метров, то все оборудование можно скрыть за раздвижными системами. Внешне это будет выглядеть как большой вместительный шкаф, дверцы которого можно использовать по своему усмотрению: например, повесить телевизор на кронштейне.
Гардеробная система обойдется в разы дешевле, чем изготовление мебели. Выбирая гипсокартон вместо щитов ЛДСП, можно самостоятельно декорировать все стены и оборудование, расписав их по своей фантазии.
Как сделать детский домик своими руками: из дерева и других материалов. Чертежи с размерами | (80 Фото Идей & Видео)
Способы подачи воздуха для горения
К высоте и диаметру дымохода предъявляются повышенные требования, когда схема подачи воздуха в пиролизном котле предполагает использование обычной тяги. Ее должно хватать на преодоление сопротивления газовоздушного тракта установки и дымоходной трубы, а также на создание разрежения в топке величиной 16—20 Па. Подобрать диаметр можно по выходному патрубку, а высота должна быть не менее 5—6 м.
Принудительная подача воздуха в обе камеры может осуществляться тремя способами:
Обычно схема пиролизного котла, предусматривает установку вентилятора в режиме нагнетания. Это объясняется тем, что обычный нагнетатель по стоимости доступнее чем дымосос, так как последний должен вытягивать отходящие газы с высокой температурой. По этой причине его конструктивные элементы стоят дороже.
Ведущие производители пиролизных котлов устанавливают на свои изделия дымососы на выходе продуктов горения. Причина – обеспечение безопасности для человека, открывшего дверцу топки в рабочем режиме. Дымосос создает разрежение, поэтому пламя не полыхнет через открытый проем человеку в лицо.
При большой мощности установки производителями применяются вентиляторы для котлов обоих типов, на входе и выходе газовоздушного тракта.
Для того, чтобы понять, как работает пиролизный котел, рекомендуем посмотреть следующее видео.
Толщина блинов
Эта величина находится в обратной пропорциональности к внутреннему диаметру D. Необходимо добиться оптимального нажима поршня на топливную закладку. Если давление будет недостаточным, это приведет к снижению коэффициента обратного действия. Как результат, может случится обратное возгорание топки с дальнейшим выходом дыма через трубу. Если же поршень будет очень тяжелым, это заметно уменьшит необходимую для качественного горения воздушную прослойку: в результате пламя затухнет.
Соотношения между внутренним диаметром и толщиной блинов примерно такие:
- 30 см – 6-10 мм.
- 40 см – 6-8 мм.
- 60 см – 4-6 мм.
- 80 см – 2,5-4 мм.
Что такое печи с двойным дожигом. Устройство и преимущества
В настоящее время на рынке можно встретить огромное количество отопительных печей и каминов, при этом продавцы, расхваливая свой товар, расскажут Вам о большом количестве дополнительных функций, таких как длительное горение, подвод воздуха или даже — двойной дожиг. А что такое двойной дожиг? Какие преимущества он дает и так уж ли он необходим владельцу печи или камина? В данной статье мы постараемся ответить на все вопросы касающихся функции двойного дожига дымовых газов в современных печах и каминах.
Сам термин дожиг дымовых газов подразумевает, что догорают какие-то дымовые газы. Что это, и о каких газах речь? Возможно, для кого то будет неожиданностью, но при сгорании твердого топлива, например дров – горят газы! Да именно газы, образуются в процессе сгорания дров, и с участием содержащегося в воздухе кислорода обеспечивают пламя с выделением тепла.
Как работает печь с двойным дожигом
Так, что же из себя представляет печь с двойным дожигом, и как она обеспечивает этот дожиг дымовых газов? Прежде всего, особенностью таких печей является особая конструкция топки, в которой специальным образом происходит забор дополнительного воздуха, потоки которого распределяются по системе каналов, нагреваются и подаются в камеру сгорания.
Распределение потоков воздуха в печах каминах с двойным дожигом
Условно, по этапно, процесс двойного дожига можно описать так:
- Дополнительный воздух поступает через отверстия забора воздуха
- Проходя через каналы вдоль стенки топочной камеры воздух нагревается, в результате нагрева образуется давление
- Предварительно нагретый воздух, через ряд отверстий в верхнем уровне камеры сгорания подается в топку печи
- Смешиваясь с дымовыми газами, обеспечивает их более полное сгорание.
На приведенном ниже видео показан процесс двойного дожига в современных датских печах каминах Morso серии 7110. На данном видео ролике Вы можете увидеть подачу в камеру сгорания дополнительно подогретого воздуха через два ряда отверстий в топке данной печи.
Как отличить печь с двойным дожигом от обычной печи
Конечно, можно положится на слова продавца о наличии данной функции у понравившейся печи или камина. Однако не стоит забывать, что продавец прежде всего планирует заработать, продав Вам товар, пускай даже не самого высочайшего качества, пользоваться сам он им не намерен. По этому, не стоит покупать печь для своего дома абы где, а только в местах с хорошей репутаций, где продавцам можно доверять.
Визуально, наличие функции двойного дожига можно определить заглянув в топку печи. У печей с функцией длительного горения в верхней части топки можно увидеть ряд отверстий для подачи предварительно нагретого воздуха.
Ряд отверстий для подачи дополнительного воздуха в топку печи при двойном дожиге
Однако, следует учитывать, что некоторые недобросовестные производители, просто создают отверстия в топке печи, эмитируя наличие функции двойного дожига
Поэтому, прежде чем выбрать и купить печь камин, лучше обратить внимание на репутацию производителя
Преимущество печей с функцией длительное горение
Печи с функций длительное горение, несомненно имеют ряд преимуществ перед обычными печами:
- Красивое горение – печи с двойным дожигом, как правило обеспечивают более красивое сгорание. Пламя в такой печи более объемно, имеет завораживающую красивую форму.
- Эффективность печи – такие печи более эффективно используют топливо (дрова), которые сгорают практически полностью, оставляя минимум золы. Дополнительный воздух в топке печи, смешиваясь с дымовыми газами, обеспечивает их более полное сгорание. Так достигается максимальная высокая температура и теплоотдача камина.
- Сохранность дымохода. В печах с двойным дожигом образуется и попадает в дымоход минимальное количество сажи и копоти. В печах с обычным режимом горения напротив, образуется большое количество сажи, которая попадая в дымоход смешивается с влагой, образует агрессивную среду и приводит к его коррозии. Дымоход при использовании печей длительного горения будет служить более длительное время.
- Экологичность. Топливо в печах с двойным дожигом, сгорает практически полностью, с минимальными выбросами в атмосферу продуктов сгорания, и практически не загрязняют окружающую среду. Жители Российской Федерации не предают большого значения экологической безопасности, а к примеру в странах Евросоюза – установлены зоны контроля дымовых выбросов, где запрещено использовать печи без двойного дожига. И многие производители отказываются от производства старых моделей печей и каминов без двойного дожига.
Как сделать пиролизный котёл своими руками
Технологический процесс изготовления котла пиролизного принципа действия включает выполнение слесарных и сварочных работ.
Необходимые материалы и инструмент
Для изготовления качественного агрегата необходим опыт в работе со следующими инструментами:
- аппарат электросварочный;
- дрель электрическая;
- угловая шлифмашина;
- набор слесарных инструментов — угольник, уровень.
Потребуются материалы и комплектующие:
- металл: листовой, толщина 4 мм, 7,5 м²;
- труба — 8 м (диаметр 57 мм, толщина стенки 3,5 мм);
полоса сталь (толщина 4 мм, ширина 20 мм) — 7,5 мп; полоса сталь (толщина 4 мм, ширина 30 мм) — 1,5 мп; полоса сталь (толщина 5 мм, ширина 80 мм) — 1 мп; шамотный (огнеупорный) кирпич — 15 шт; профтруба 60×30 (толщина стенки 2 мм) — 1,5 мп; профтруба 80×40 (толщина стенки 2 мм) — 1 мп; круг отрезной d 230 — 10 шт.; круг шлифовальный d 125 — 5 шт.; электроды — 5 пачек; датчик температуры.
Им автоматически выполняются манипуляции с заслонкой: открытие (для увеличения температуры горения) и закрытие (при достижении температурой максимального значения) Температурный датчик — это механическое устройство контроля количества воздуха, проходящего в камеру сгорания.
Продуктивность работы котла зависит от функционирования дымоотводящей трубы. Для обеспечения хорошей тяги дымоотвод должен соответствовать требованиям качества:
- высота не меньше 5 метров;
- хорошее утепление;
- отсутствие резких изгибов;
- отвод конденсата;
- простой доступ для чистки.
Чертежи и схемы устройства
Пиролизный котёл без принудительной вентиляции имеет наиболее простую схему. Энергонезависимость конструкции удешевляет эксплуатацию агрегата.
Схема пиролизного котла с естественным дымоотводом имеет вид:
Для повышения высокого КПД некоторые конструкции имеют двойные стенки основания
Котёл состоит из трёх основных камер:
- загрузочная, служащая для заброса топлива;
- камера дожига, куда подаётся вторичный воздух;
- теплообменник, выходящий в трубу.
Горение сырья направляет поток газа сверху вниз. При подаче воздуха под колосники в массив шамотного кирпича происходит дожиг горючих газов. Продукты распада уходят через теплообменник в дымоотвод. Регулировка тяги выполняется термодатчиком на выходе из котла с помощью цепочки, связанной с заслонкой подачи вторичного воздуха.
Подробную деталировку с размерами и допусками можно взять в стандартном чертеже:
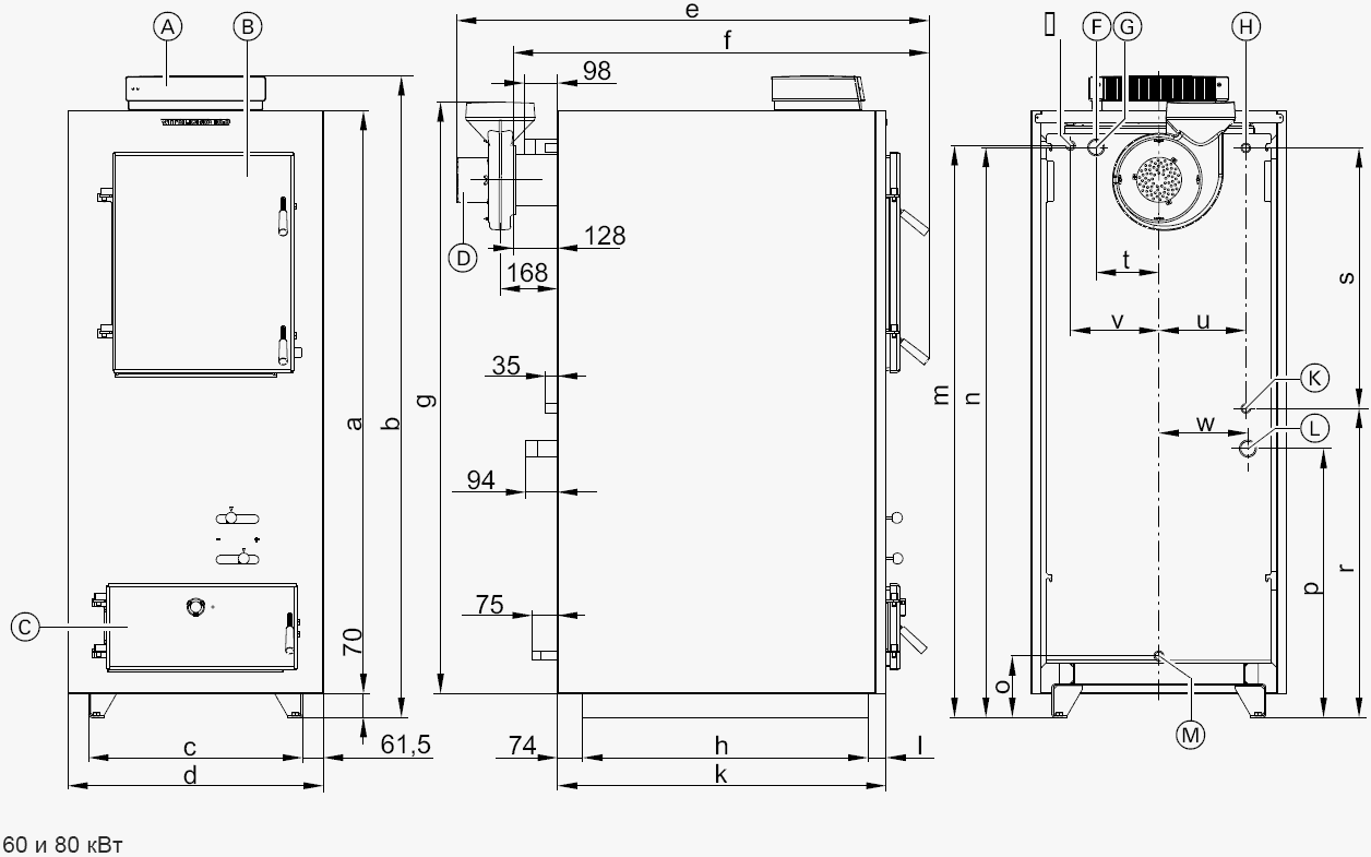
A — контроллер контура котла; B — дверца загрузки; C — крышка зольника; D — дымоотвод; E — муфта для датчика температурного предохранителя; F — патрубок предохранительного клапана; G — подающая магистраль контура; H — подвод холодной воды в теплообменник; L — обратная магистраль контура котла; M — расширительный бак
Пошаговая инструкция изготовления агрегата
Изготовления пиролизного котла своими руками разделяется на этапы:
- Согласно чертежу выполняется разметка и нарезка деталей для корпуса. После «прихватывания» элементов производится контрольный замер, затем делаются сварочные швы. Установленные на свои места задняя панель и боковые стенки свариваются с двух сторон, зачищаются, обрабатываются сварочным герметиком.
- Производится монтаж труб теплообменника.
- После наваривания внешней стенки и обечаек дверок устанавливается механический регулятор контроля теплоносителя.
- Дымоход собирается наращиванием трубы Последующую часть нужно вставлять внутрь предыдущей, чтобы конденсат не попадал на внешнюю сторону. Готовая конструкция окрашивается огнеупорной краской.





































