Стационарная установка для пиролиза
Оборудование пиролизного типа для переработки твердых отходов представляет собой блочную конструкцию с расположенной в центре достаточно объемной камерой. Верхняя часть устройства имеет загрузочные отверстия, через которые поступает сырье, требуемое утилизации.
В систему входят насосы различной мощности. Установка также оснащена:
- конденсаторами
- вентиляторами, над которым закреплены дроссельные заслонки
- отсеками для воды
- реактором
- загрузочным блоком
- модулями выгрузки
- швельшахтами
- газоанализаторами
- подогревающими воздух приспособлениями
- дымососами
Реактор устройства имеет герметичную загрузочную дверку. Она может быть прямоугольной или круглой формы. Последний вариант считается более удобным в использовании. Диаметр проема соответствует размеру реактора – от 2,2 до 2,8 метров. Количество сопел в устройстве зависит от модели пиролизного агрегата.

Котлы с наддувом
Хорошим и легким с точки зрения изготовления и отработки представителем таких агрегатов является пиролизный котел Токарева. Если был сделан выбор в его пользу, то разработку, изготовление и отработку осуществляют, взяв в расчет такие особенности:
- Каналы первичной и вторичной подачи воздуха объединяют в один, и на его конце ставят вентилятор. Для этого может подойти даже компьютерный вентилятор.
- Камеру сгорания можно сочетать с камерой догорания. Это возможно благодаря тому, что в обеих возникает достаточное, даже избыточное количество кислорода.
- Необязательной является сталь с футеровкой. Котел можно сделать из жаропрочной стали, а также шамотного кирпича. Такая особенность возможна потому, что основная часть газов сгорает у сопла. Из-за этого температура у него составляет 1000 °С, а у стенок — 800-900 °С.
При этом нужно взять в расчет, что пиролизный котел Токарева и его надувные аналоги не имеют КПД больше 82-84%, а также при мощности, превышающей 30-35 кВт, теряют устойчивость.
Снижение КПД является результатом того, что через топливо в камере газификации проходит малое количество воздуха. Даже если сделать давление большим, ситуация не изменится. Основная часть воздуха будет уходить в стороны, опускаться и попадать внутрь камеры сгорания, где будет накапливаться в избыточном количестве. Из-за этого ухудшается пиролиз, а также снижается температура в сердцевине факела. Поэтому часть пиролизных газов не сгорает и выходит через дымовую трубу. Об этом говорят в разных видео, которые посвящены расчету, отработке схем, а также подключению котлов.
В самодельных котлах с мощностью 30-35 кВт нужно применять электрическую автоматику, а также ставить датчик в камере сгорания.
Устройство и принцип работы котла
Камера первичного сжигания или пиролизная камера напоминает своим устройством топку обычной печи. Твердое топливо (дрова, опилки, древесные или торфяные брикеты, пеллетные гранулы) помещается через загрузочное окно на массивную огнеупорную решетку – колосник, обеспечивающий приток к топливу воздуха, который называют первичным.
Принцип работы котла длительного горения
Пиролизный газ принудительно, реже самотеком попадает во вторичную камеру – камеру сгорания или камеру дожига, в которую осуществляется подача достаточного количества воздуха, который называют вторичным. От контакта с кислородом нагретый до высоких температур (более 300 градусов Цельсия) газ моментально вспыхивает и горит с выделением большого количества тепла. Происходит выполнение главной функции котла – нагрев теплоносителя.
Подробно принцип работы пиролизного котла показан на видео.
Воздух обычно нагнетается принудительно с помощью небольшого вентилятора. Хотя в небольших моделях иногда для создания тяги используют дымосос.
На этой схеме представлено устройство пиролизного котла нижнего горения. Дрова медленно сгорают при малом количестве кислорода и выделяют горючий газ ( )
Наличие принудительной вентиляции можно считать основным отличием пиролизного котла от классической твердотопливной модели. Корпус устройства состоит из двух частей, вставленных друг в друга. Пространство между стенками заполняют теплоносителем, роль которого традиционно выполняет вода.
Температура горения может достигать 1200°С. Вода, находящаяся в наружном теплообменнике, нагревается и циркулирует по системе отопления дома. Остатки продуктов сгорания удаляются через дымоход.
В упрек устройствам, в работе которых используется пиролизный принцип горения, можно поставить относительно высокую цену. Обычный твердотопливный котел стоит значительно меньше. Но в котлах длительного горения дрова сгорают практически полностью, чего о классическом котле не скажешь.
К дровам для пиролизного котла предъявляют определенные требования по размерам и влажности. Подробную информацию можно найти в инструкции изготовителя
Выбирая пиролизный котел, следует помнить, что недорогие модели малой мощности обычно рассчитаны только под дрова. Дорогие модификации способны работать на разных видах топлива.
По способу сжигания топлива котлы длительного горения с двойным контуром можно подразделить на:
- Пиролизные. Оборудованы двумя камерами для сгорания. В одной из них присходит процесс тления и выделения газа для пиролиза, в другой — смешивание полученного газа с кислородом и его сжигание. Оборудование данного типа характеризуется высокой экологичностью — вредных веществ в атмосферу выделяется минимальное количество. В процессе сгорания образуется мало сажи. Если котел оборудован автоматикой, возможна будет и регулировка мощности.
- С верхней камерой горения. Такие котлы очень просты в обслуживании. Количество автоматики для их стабильной работы нужно минимальное, возможно функционирование в автономном режиме работы без электричества. Есть и недостатки — при работе образуется много золы, есть перечень требований к типам топлива. Например, для растопки не подойдет мелкая щепа или опилки.
- Пеллетные. Для растопки такого оборудования используют специальные пеллеты или топливные брикеты в спрессованном виде. Подобные котлы экологичны, экономичны и эффективны, имеют длительный эксплуатационный срок. Один из главных недостатков — высокая цена котла и специальные условия, которые придется поддерживать для хранения топлива. Помещение должно быть сухим, высокая влажность воздуха будет способствовать порче пеллетов.
Принцип работы пиролизного котла
Чтобы лучше понять преимущество пиролизных котлов нужно подробнее ознакомиться с принципом их работы. Несмотря на классическое определение пиролиза, в котором сказано, что сгорают и отдают тепло только газы, в пиролизных котлах длительного горения с водяным контуром топливо всё же горит в условии недостатка кислорода.
По сути происходит слабое тление с выделением угарного газа. В конце концов образуется два источника нагрева теплоносителя – горящее, хоть и слабо, топливо и горючий газ. Такая схема горения позволяет снизить расход топлива на 40%.
Тление топлива образует древесный газ, который поступает в камеру сжигания, туда же подаётся разогретый воздух. Это приводит к появлению пламени – происходит сгорание с выделением тепла. При этом угарный газ превращается в углекислый и количество вредных веществ меньше, чем в обычных котлах. Использование пиролизных котлов это приводит к экономии топлива, потому что из одного и того же количества топлива получается большее количество тепла.
Например, для обычного агрегата может понадобиться 10 куб.м. дров на отопительный период, а пиролизному будет достаточно 6 куб.м
И что не менее важно, не придётся часто пополнять топливом
Пиролизные котлы длительного горения с водяным контуром производятся в нескольких разновидностях:
- энергонезависимые. Характерны естественная тяга и механический способ управления;
- энергозависимые. Используется дутьевое оборудование, что способствует более высокой эффективности;
- с отличием в расположении камеры дожигания газа. Камера может быть под топкой или над ней.
Вариантов конструктивного исполнения может быть множество, но принципом горения они не отличаются. Существуют, так называемые, шахтные котлы длительного горения, которые работают вне зависимости от вида и качества топлива и являются скорее утилизаторами, чем отопительными пиролизными установками. Использование энергозависимых котлов удобно тем, что они комплектуются автоматикой для регулирования горения, в зависимости от температуры воды и температуры в помещении.
Длительное горение происходит благодаря двум факторам: низкая интенсивность тления топлива и большой топкой. Всё это и гарантирует малую периодичность подхода к оборудованию.
Своими руками
Ниже представлено 25-минутное видео проектирования и изготовления своими руками пиролизного котла. Автор поэтапно описывает процесс сборки, а также рассказывает о трудностях, с которыми пришлось столкнуться.
Не тот сплав. Самой частой ошибкой, характерной, кстати, не только для самодельных моделей, является использование наиболее дешевых материалов из черных металлов. Они не относятся к категории жаропрочных материалов, что в конечном итоге приводит к прогоранию конструкции и сложному, а то и просто невозможному ремонту
Необходимо осторожно подходить к выбору марки стали, использовать специальные жаропрочные сплавы. Например, 20Х23Н18 и ему подобные
Малая толщина стали
Еще одна ошибка – неверно подобранная толщина стального листа. Этот параметр определяют исходя из распределения температур по котлу, но минимальное значение – около 5 мм. Чем толще, тем дороже, но тогда котел и проработает дольше.


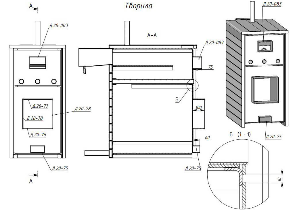
Чертежи
Аттракцион неслыханной щедрости – иначе и не назовешь! У нас вы можете скачать чертежи пиролизных котлов совершенно бесплатно. Это позволит вам при желании собрать сердце отопительной системы у себя на заднем дворе или в гараже.
Смотрите примеры графических материалов на изображениях ниже.




У вас также есть уникальная возможность заказать комплект чертежей на одну из моделей по весьма привлекательной цене. Конечно, это вариант для тех, кто собирается изготовить котел своими руками не только для себя, но и на заказ. Для связи используйте форму, представленную ниже.
Создаём пиролизный котёл
Разбор схем и чертежей
Чтобы создать пиролизный котёл своими руками, важно тщательно изучить схемы и чертежи. Именно по ним вы сможете подобрать конструкцию и максимально точно определить количество нужных для строительства материалов. На схеме и чертеже пиролизного котла отображены основные элементы, без которых невозможно построить конструкцию своими руками:
На схеме и чертеже пиролизного котла отображены основные элементы, без которых невозможно построить конструкцию своими руками:
На схеме и чертеже пиролизного котла отображены основные элементы, без которых невозможно построить конструкцию своими руками:
- регуляторы,
- дымовые каналы,
- отверстия для воздуха,
- трубы для подачи воды,
- трубы для отвода воды,
- камера сгорания,
- вентилятор.
Очень важно при изготовлении пиролизного котла своими руками придерживаться чертежей и схем. Дело в том, что это сложное устройство, в котором будут происходить высокотемпературные процессы. Поэтому малейшая ошибка может обратиться аварийной ситуацией
Поэтому малейшая ошибка может обратиться аварийной ситуацией
Поэтому малейшая ошибка может обратиться аварийной ситуацией.
Для частного дома будет достаточно пиролизного котла, мощность которого составляет 40 кВт. Не стоит стремиться к большой мощности. Дело в том, что в таком случае конструкция становится значительно сложнее. Мало того, конечная стоимость также увеличивается.
Выбор мощности пиролизного котла, который вы собираетесь создать, влияет на размер ключевых деталей на чертеже или схеме. От правильного подбора размеров зависит нормальное функционирование устройства.
Совет. Если вы владелец маленького домика, то можно остановить свой выбор на котле с мощностью в 30 кВт. Этого будет более чем достаточно.
Инструменты, необходимые для изготовления котла своими руками
Чтобы своими руками сделать конструкцию, работающую на основе пиролизной реакции по чертежам и схемам, необходимо запастись некоторым инвентарём. Для воплощения задумки в жизнь, вам понадобятся следующие материалы и инструменты:
- болгарка,
- сварочный аппарат,
- шлифовальные круги,
- электрическая дрель,
- электроды,
- трубы различного диаметра,
- полосы стали,
- термодатчик,
- вентилятор,
- металлические листы.
Это базовый набор, который необходим, чтобы создать пиролизную систему своими руками по схемам и чертежам. Конечно же, в процессе работы может возникнуть необходимость в дополнительных инструментах и материалах.
Внимание. Толщина стали для корпуса должна быть 3 мм, а лучше 4
Тонкости сборки
После того как вы выберите подходящую схему, можно будет приступить к сборке. При этом необходимо придерживаться следующих рекомендаций:
Отверстие, через которое в топку будут попадать дрова и брикеты должно располагаться немного выше, чем у обычных твердотопливных конструкций. Не забудьте про ограничитель. Его главная задача — это контролировать количество воздуха. Для его создания нужна семидесятимиллиметровая труба в сечении. Её длина должна быть больше корпуса. К ограничителю приваривается диск. Элемент должен быть выполнен из стали. Место приваривания — низ конструкции. В результате у вас получится зазор в 40 мм. Чтобы установка ограничителя стала возможной необходимо сделать дырки в соответствующих местах крышки. Лучшей формой для отверстия, через которое будут загружаться дрова является прямоугольник
При этом важно не забыть о дверце. Она должна иметь специальную накладку для лучшей фиксации
Также в конструкции необходимо предусмотреть отверстие, через которое будет удаляться зола
Трубу для теплоносителя нужно сделать с изгибом
Также в конструкции необходимо предусмотреть отверстие, через которое будет удаляться зола. Трубу для теплоносителя нужно сделать с изгибом
Это позволит повысить отдачу тепла.
Ещё одним важным элементом согласно любой схеме и чертежу является вентиль. С его помощью вы сможете контролировать количество теплоносителя, поступающего внутрь. Поэтому лучше всего расположить его в удобном и легкодоступном месте. Сам алгоритм создания пиролизного котла своими руками по чертежам вы можете увидеть на видео внизу.
После сборки огромное значение имеет первый запуск. Лишь после того, как вы убедитесь, что в продуктах горения нет угарного газа, можно будет утверждать, что всё сделано правильно. Для этого лучше использовать специальное оборудование.
Создать котёл, работающий на основе принципа пиролиза можно своими руками. Но перед тем как начать работу необходимо написать проект. Основную роль в нём будет играть рисунок со схемой изделия и размерами.
Обсудить статью на форуме
Делаем агрегат верхнего горения
Как уже говорилось выше, подобные котлы проще всего изготавливать из пропановых баллонов емкостью 50 литров. Для этого из резервуара нужно выкрутить вентиль и заполнить его водой, а потом отрезать верхнюю часть болгаркой по заводскому шву. Дальше надо сварить такие элементы:
- колосниковую решетку из арматуры, как это сделано на фото;
- трубу с дисковым грузом и распределителями воздушного потока;
- загрузочную и зольную дверцу с ручками;
- согните из листового металла обшивку водяной рубашки.
Сборка теплогенератора производится согласно представленному чертежу. Сначала устанавливаются колосники, потом – труба с грузом и верхняя крышка. После чего приваривается дымоход и устраивается водяная рубашка с наружным утеплением. Больше подробностей показано в следующем видео:
Пиролизный котел: преимущества и недостатки
Очевидные плюсы:
- Увеличенная камера загрузки для топлива;
- Высокий КПД, позволяющий дольше поддерживать заданный температурный режим;
- На одной загрузке топлива способны работать до 24 часов;
- Возможность регулировки мощности от 40 до 100%;
- При сжигании не образуется сажа, только зола да и то в минимальном количестве.
Недостатки:
- Классический недостаток — высокая стоимость котла. Изготовить пиролизный котел своими руками решает эту проблему;
- Требуется принудительная тяга, вследствие чего возникает необходимость в постоянном подключении к электроэнергии;
- Внушительные габариты конструкции;
- Обязательное использование сухой древесины. Добиться эффективного процесса пиролиза с топливом с повышенной влажностью невозможно. Содержание влаги, существенно снижает КПД.
Проверка работоспособности

Температура пламени в камере сгорания пиролизных газов около 1 000 градусов.
Не спешите устанавливать собранный своими руками пиролизный котел на штатное место – необходимо провести его тестирование. Для этого монтируем термометр, заполняем котел котловой водой, закладываем в топку дрова и поджигаем их. Включением дутьевого вентилятора создаем тягу, ждем, пока дрова хорошо разгорятся. Теперь можно запустить пиролиз – как мы помним, для этого необходимо ограничить подачу кислорода.
Закрываем дверки топки и зольника, закрываем дроссельную заслонку (ограничивает подачу воздуха, используемого для первоначального розжига дерева) – поленья перейдут из фазы горения в фазу тления. А так как у нас работает дутьевой вентилятор, то он вытянет продукты сгорания в камеру дожигания, где произойдет воспламенение продуктов пиролиза. Далее нам остается лишь контролировать температуру в котле – как только она достигнет точки кипения, пиролиз следует остановить. Для этого выключаем вентилятор, открываем камеру сгорания и выгребаем из нее горящие дрова.
Также существуют рекомендации по проверке пиролизных котлов, собранных своими руками, с помощью опрессовочного насоса – для этого заполняем агрегат водой, герметизируем одну из труб, подключаем к другой насос, и доводим давление до 3 атм., проверяя герметичность всей конструкции.
Плюсы и минусы
К отрицательным характеристикам твердотопливного котла относят:
- очень высокая стоимость;
- необходимость подготавливать дрова, которые должны быть абсолютно сухими;
- работает от электрической сети.
Несмотря на минусы, у газогенераторного устройства есть и плюсы. Это:
- комфортное тепло с пиролизным котлом;
- достаточно прост в использовании;
- выделяется очень маленькое количество вредных элементов;
- способен довольно долго работать после того, как будет положено топливо;
- можно применять при любом виде системы подачи тепла;
- можно полностью автоматизировать процесс;
- применяется для утилизации таких материалов, как пластмасса, резина и полимеры.
Данный вид твердотопливного кола для отопления в своей особенности конструкции имеет несколько участков: отделения для топки, теплообменник и узел, который подводит воду к устройству.
При самостоятельно сборке пиролизного котла, необходимо правильно сделать схему и чертеж. Затем по ней собрать агрегат, который сразу же можно проверить, а в дальнейшем использовать в быту. Для создания необходимо лишь проследить за герметизацией труб отопления, которые подводят воду, чтобы избежать различных неприятностей в будущем. При правильной сборке котла длительного горения, оборудование очень быстро нагревается до нужной температуры, потратив всего полчаса.

Фото схемы пиролизного котла
Любая газогенераторная машина в своей конструкции содержит две камеры. Одна камера котла служит для наполнения ее необходимым топливом, где происходит разложение на сухие остатки и горючий газ. Он перемещается в следующее отделение. Внутрь оборудования подается дополнительный воздух с помощью специального вентилятора, для того, чтобы эффективнее происходило горение дров. Дым, образующийся в данном процессе, удаляется через установленный дымосос. Камеры отделены между собой колосником, изготовленным из чугуна.
При больших значениях температурного режима и отсутствия кислорода, из древесины выделяется газ, при смешивании его с потоками воздуха происходит нагревание теплообменника до 1200 градусов. После этого тепло передается теплоносителю системы. Отработанные газы выходят через специальную трубу дымохода. В состав входит смесь паров воды и углекислого газа. В дымоходе рекомендуется сделать слой материала, который состоит из минеральной ваты, покрытой сверху специальной фольгой. Он делается для того, чтобы при охлаждении не образовывались деготь и конденсат, которые могут оказать довольно негативное воздействие на трубу.
Все отделения котла на пиролизе оснащены огнеупорочной футеровкой, которая выкладывается из шамотного кирпича. Именно она создается благоприятные условия для сгорания топлива в пиролизном котле.
Нюансы, которые нужно знать
Как мы уже сказали, создание такой печи – процесс достаточно простой, но, требующий определенных познаний. Так как данная конструкция относится к обогревательному оборудованию, то будьте готовы к тому, что во время выполнения работ вам придется работать с повышенными температурами и учитывать многие особенности герметизации, что выполнить самостоятельно практически невозможно. Но учитывая советы, которые были упомянуты в данной статье, вам непременно удастся сделать действительно долговечные пиролизные печи.

Если вы желаете усилить тепловой эффект, то обустройте уже завершенную конструкцию дополнительной стенкой из шамотного и огнеупорного кирпича. Создание котла возможно даже с минимальными умениями в работе по свариванию металла. Учитывайте тот факт, что создание пиролизной печки – это не только процесс кирпичной кладки, но и монтаж камеры котла, которую по праву можно назвать основным конструкционным элементом.
Самым правильным решением будет покупка уже собранного котла, который будет необходимо лишь обложить кирпичом
Популярные модели
Рассмотрим наиболее распространённые и популярные пиролизные установки, среди которых есть как зависящие от электроэнергии, так и не зависящие:
- Котёл Попова. Данная модель изготавливается из стали и является основной для изготовления пиролизного котла длительного горения своими руками. Используется любое твёрдое топливо. Большая камера сгорания позволяет обеспечить котлу автономную работу до 1 суток. Наибольшая теплопроизводительность данной модели достигает 1000 кВт, наименьшая – 25 кВт. Коэффициент полезного действия – до 95%.
- Гейзер. Котёл выполняется как для бытового применения, так и для промышленного. Бытовая линейка пиролизных котлов отопления имеет диапазон мощности от 10 до 50 кВт. Котлы энергонезависимые, работают на любом топливе, имеют высокий КПД, просты в эксплуатации.
- Buderus. Имеют высокое качество, механическое управление, независимы от электроэнергии. Теплообменник котлов выполняется как из чугуна, что исключает коррозию, так и из стали. КПД котлов Будерус колеблется от 78 до 87%, в зависимости от модели.
- Бастион. Энергонезависимые пиролизные котлы с водяным контуром, работающие на всех видах топлива. Диапазон мощности – от 12 до 50 кВт. Имеют чугунные теплообменники, качественную конструкцию и невысокую стоимость.
- Wattek Pyrotek 36. Энергозависимые чешские одноконтурные котлы с мощностью от 26 до 42 кВт. Имеют медный теплообменник и оборудованы автоматикой. КПД доходит до 90%. Автономное горение до 10 часов.
- Viessman. Немецкое оборудование, оснащённое автоматической системой управления.Диапазон мощности от 25 до 80 кВт. Топливо используется дровяное. КПД – 88%.
- Dakon. Газогенераторные пиролизные установки мощностью от 18 до 40 кВт. Котлы Дакон работают на дровах и древесных отходах. КПД – до 85%.
- Буржуй-К. Российские котлы мощностью от 10 до 32 кВт. Коэффициент полезного действия – 85%. Изготавливаются и промышленные пиролизные котлы мощностью выше 200 кВт.
- Теплодар42. Российские пиролизные угольные котлы. Имеют широкую линейку для частных домов, коттеджей, административных зданий и промышленности.
- Фортан. Пиролизное оборудование для переработки разного рода отходов. Отличаются экологичной работой при утилизации, качественно перерабатывают бытовые, резинотехнические, промышленные и медицинские отходы.
- Sime. Итальянское оборудование мощностью от 22,5 до 38,7 кВт. Имеют чугунный теплообменник и высокий КПД.
Среди российских производителей можно выделить продукцию ООО «Завод пиролизного оборудования Климова», г.Барнаул.
Установка
Довольно многие люди не владеют достаточными знаниями и не имеют специальных инструментов, навыков обращения с ними. Но даже отсутствие сварочного аппарата и умения его применять не страшно. Пошаговая инструкция по монтажу и обвязке готового пиролизного котла поможет исправить дело. Знать ее полезно, конечно, и при использовании самостоятельно изготовленного оборудования. Сразу стоит уточнить, что решающее значение при выборе схемы подключения имеет приоритет простоты или функциональности.


Так, наиболее совершенные варианты позволяют применять накапливающие тепло емкости, помогающие до 48 часов удерживать стабильную температуру даже при неработающем котле.
Перед установкой следует закупить специально подобранные:
- фитинги;
- трубы;
- отводы;
- фильтры;
- обратные клапаны и другие приспособления.
Специалисты считают, что самые лучшие циркуляционные насосы – германского производства. Пусть они немного дороже моделей из иных стран, но долговечность и повышенная производительность оправдывают разницу. А вот выбирать производителя прочих комплектующих можно по своему усмотрению. Поскольку внутри пиролизного котла есть контуры с очень сильным разогревом, как в металлургии, необходимо скрупулезно соблюдать противопожарные нормы. Котельную стоит разместить в обособленном помещении.
Нормальная вентиляция будет достигнута только через отверстие габаритом 100 кв. см. Ставить котел требуется исключительно на бетон или кирпичную кладку. Пространство перед камерами закрывается стальным листом размером 1х1 м и толщиной хотя бы 0,2 см. Недопустимо монтировать котел там, где хранятся дрова. Возвышение дымовой трубы над крышей должно составлять хотя бы 0,4 м, причем запрещается ставить для отвода дыма негерметичные конструкции.


Минимальное приближение к стенам, даже сделанным из негорючих материалов, равняется 0,7 м. Целесообразно выставлять котел по уровню, так как малейший наклон в сторону плохо отразится на его характеристиках. Знатоки и специалисты рекомендуют утеплять дымоход изнутри. Это помогает точно избежать возникновения конденсата и связанных с ним негативных явлений. Все эти советы вполне можно реализовать и без обращения к специалистам, то есть при минимальных расходах.
Труба дымохода должна достигать высоты, поддерживающей нужную тягу. Минимальное значение – на 50 см выше конька самой высокой постройки, расположенной в радиусе 10 м. Не допускается монтаж дымовых труб, диаметр которых отличается от диаметра шиберов или дросселей газового хода. После этих шиберов следует монтировать прямую вертикаль длиной от 2 м, лишь на следующем участке возможен поворот на 45 градусов, причем строго до 100 см.


Для модульных дымоходов практикуется сборка «по конденсату», когда верхние колена вставляют в нижние сегменты. Нельзя, чтобы дымовые трубы хотя бы немного давили на шиберы. От верхней линии оголовка до вершины трубы оставляют зазор минимум 15 см. Термометры ставят строго на обратных линиях отопительных систем, самое меньшее в 1 м от котла. Целесообразно использовать термометр с разметкой шкалы до 120 градусов.
Начальный участок (1 м отвода для теплоносителя) и такой же сегмент в начале обратного хода лучше формировать из металла. Первые повороты делаются в формате полуотводов. Нельзя использовать вместо них повороты под прямым углом. Вообще, рекомендуется сократить число поворотов. Между фасадной частью котла и ограждений или стен должно находиться минимум 2 м свободного пространства.


Конструктивные особенности
Чаще всего конструкция пиролизного котла, сделанного своими руками, предполагает устройство верхней топки, под которой находится вторичная камера. Такая компоновка наиболее проста в изготовлении и хорошо зарекомендовала себя на практике. Топка и камера сжигания газов облицованы изнутри огнеупорным кирпичом. Воздух подается принудительно вентилятором – нагнетателем через специальные отверстия, между камерами выполнен щелевидный проем, называемый рабочей форсункой. Габаритные размеры проема определяются мощностью установки.

Пиролизный газогенератор
Факел пламени из форсунки нагревает днище камеры, под которым находится водяная рубашка. Нагретая вода поднимается и омывает дымогарные трубы теплообменника, по которым уходят продукты сгорания. Таким образом, схема пиролизного котла данной конструкции предусматривает двойной подогрев теплоносителя.
Для розжига дров в задней стенке топки устанавливается клапан прямой тяги, открываемый вручную с помощью рукоятки, вынесенной наружу корпуса. После того как топливо разгорелось, заслонку клапана закрывают, включают нагнетатель, и установка переходит в рабочий режим. Чтобы вся система работала устойчиво и эффективно, вначале потребуется сделать расчет пиролизного котла. Исходить надо из потребной тепловой мощности агрегата.
Пиролизный котел – схема изготовления, основные этапы
Чтобы самостоятельно собрать газогенераторный отопительный агрегат, следует придерживаться следующих требований:
Необходимые элементы следует резать посредством болгарки. Отверстие для загрузки топлива размещается несколько выше, чем у твердотопливных устройств. Для осуществления контроля над поступающим в топочную камеру количеством воздуха, необходимо вмонтировать ограничитель. Его можно изготовить с помощью трубы диаметром 70 мм, при этом длина должна быть немного больше, чем корпус котла. С помощью сварочного аппарата приваривается стальной диск, который совместно со стенками трубы должен образовывать зазор примерно 40 мм. Чтобы установить в крышке котла ограничитель, нужно проделать соответствующее отверстие. Оно должно иметь прямоугольную форму. Отверстие закрывается дверцей, укомплектованной накладкой из стали. Это обеспечит надежное прилегание. Ниже располагается отверстие, предназначенное для удаления воды. С помощью трубогиба необходимо согнуть трубу, предназначенную для перемещения внутри котла теплоносителя. Таким образом обеспечивается максимальная отдача тепла. Регулирование количества теплоносителя, направляемого в устройство, может осуществляться посредством вмонтированного снаружи вентиля. Как только будет выполнен первый запуск оборудования, в продуктах горения не должно быть угарного газа. Если данное условие соблюдается, обвязка пиролизного котла (схема указана) сделана правильно
Важно регулярно следить за состоянием сварных швов устройства и своевременно удалять с него образовавшуюся копоть и золу. Прекрасным вариантом может стать совместное использование пиролизного котла не с классическим водяным отоплением, а с системами воздушного обогрева
В результате передача воздуха будет производиться по трубопроводам, а его возврат в систему – по полу. Такая система обладает многочисленными достоинствами: при сильных морозах не замерзает, во время отъезда хозяина отсутствует необходимость слива теплоносителя
Прекрасным вариантом может стать совместное использование пиролизного котла не с классическим водяным отоплением, а с системами воздушного обогрева. В результате передача воздуха будет производиться по трубопроводам, а его возврат в систему – по полу. Такая система обладает многочисленными достоинствами: при сильных морозах не замерзает, во время отъезда хозяина отсутствует необходимость слива теплоносителя.
Выводы и полезное видео по теме
На этом видео наглядно изображен принцип работы пиролизного котла:
Подробный обзор работы котла верхнего горения можно посмотреть здесь:
Пиролизные котлы недешевы, но полностью оправдывают вложенные в их приобретение средства. При правильной установке и обслуживании такие устройства обеспечат дом стабильным и недорогим теплом.
Подыскиваете пиролизный котел для отопления дома? Или есть опыт эксплуатации таких агрегатов? Оставляйте, пожалуйста, к статье и делитесь впечатлениями об использовании пиролизных котлов. Форма обратной связи расположена в нижнем блоке.
Насколько экономичный пиролизный котел
Подсчитаем для обычной мощности среднего дома, экономию с пиролизным котлом. Например, сожжем в обычном устройстве за сезон 7 месяцев дров на 20 тыс. руб. При этом на пиролизе сэкономим около 1800 руб, — расход дров на 18200 тыс. руб.
Но вентилятор мощностью 80 Вт., проработав 7 месяцев при цене за 1кВт электроэнергии около 5 рублей, скушает более 1500 руб. Итого, — экономия не больше 200 рублей в год. Т.е. потраченные 50 тыс. рублей не окупятся никогда.
Даже если каким-то образом экономия будет 1000 рублей (чудо-КПД более 92%), — все равно 50 лет – не серьезный срок для окупаемости. Самый большой максимум — дополнительная стоимость котельного оборудования должна окупаться за 10 лет. Иначе оно не выгодно. Таких показателей нет и близко. Что же привлекает пиролизный котел потребителя при такой цене, — большая загрузка!





































