Отверстия в мангале

Расположение отверстий в мангале сказывается на качестве приготовленной на нем пищи. Если отверстия сделать на дне агрегата – это дает возможность выходу сгоревшего кислорода и оттоку вредных микроэлементов, которые напрямую покидают конструкцию, не задерживаясь на мясе или рыбе. А типовые боковые отверстия чуть хуже производят данную циркуляцию сгоревшего кислорода, и возможно оседание не очень полезных частиц на продуктах.
Лучше отверстия диаметром 12 мм просверлить внизу газового баллона. Целесообразно будет сделать не только подставку для мангала, но и дополнительное днище на этой подставке для того, чтобы туда ссыпалась зола.
Как сделать коптилку горячего копчения своими руками
При навыках работы со слесарным инструментом аппарат для копчения легко сделать самостоятельно.
В качестве корпуса используются огнетушители, бочки и другие ёмкости. Простой в изготовлении является коптильня из холодильника, особенно для холодного копчения.
Простая коптильня
Проще всего сделать коптильню горячего копчения из конусного ведра. Такая форма облегчает установку на необходимой высоте решёток с копчёностями. Вместо поддона для жира используется старая миска, которая ставится на подставке из консервной банки. В её стенках прорезаются отверстия для выхода дыма, а сама банка переворачивается вверх дном
Схема простой коптильни
Кирпичная коптильня
Если позволяет место и необходимо регулярно готовить большое количество продуктов, то имеет смысл сделать стационарную коптильню горячего копчения из кирпича.
В этом сооружении камера с продуктами расположена над очагом и отделена листом толстого металла.
Есть два варианта этой конструкции:
- В разделяющем листе сверлятся отверстия для дыма, а вверху камеры находится дымоход. Эта конструкция проще, но дым более горячий, а дрова должны быть только лиственных пород.
- В разделяющем листе отверстия отсутствуют и на него насыпаются опилки и щепа. В очаге есть свой дымоход и топить его можно любыми горючими веществами.
Компоненты кирпичной коптильни
Электрокоптилка
Электрокоптильня отличается от обычной способом нагрева. Вместо костра в ней дно нагревается электронагревателями. Это даёт возможность в устройствах среднего размера устанавливать внутрь корпуса электроплитку, а на неё ставить ёмкость с опилками, например, старую сковородку.
Схема электрокоптилки
Бытовая коптильня
Приготовить домашние копчёности можно не только на даче, но и на кухне городской квартиры. Для этого нужна малогабаритная коптильня с дымоотводящим шлангом. Делается такая коптильня из нержавейки.
Греется такое устройство на газу. Размеры на чертеже коптильни горячего копчения определяются размерами газовой плиты и составляют 450х300х250 или 500х300х300 мм. Конструктивно это металлическая коробка из углеродистой, а лучше нержавеющей стали толщиной 2 мм с крышкой и ручками — по бокам корпуса и сверху крышки. Внутри на подставке устанавливается собранные в одну конструкцию поддон для жира и одна или две решётки.
В крышке имеется дымоотводящий патрубок 1/2″, на который одевается обычный садовый шлаг. Этот шланг высовывается в форточку или вставляется в вентиляционный канал.
При работе на дно насыпаются опилки, устанавливается поддон и решётки, устройство закрывается и ставится на газовую плиту. Нагретый дым идёт по шлангу в форточку, а в щели между крышкой и корпусом подсасывается воздух из кухни. Поэтому в помещении запах практически отсутствует. Для полной ликвидации запаха необходима коптильня с гидрозатвором.
Составляющие бытовой коптильни
Коптильня горячего копчения для квартиры
Большинство устройств для копчения дымят при работе, поэтому они используются только на открытом воздухе. Но есть конструкция, которую можно установить даже на кухне многоэтажного дома. Это коптильня с гидрозатвором.
Это устройство похоже на малогабаритную бытовую коптильню с некоторыми отличиями:
- крышка на 10 мм больше и имеет загнутые края;
- к верхней части корпуса приварен уголок 15х15мм;
- в образовавшийся жёлоб наливается вода и опускаются края крышки.
Образовавшийся водяной затвор не позволяет дыму выходить на кухню. Для большей защиты помещения от запахов в крышке находится патрубок для дымоотводящего шланга.
Коптильня горячего копчения
Коптильня полугорячего копчения
Кроме холодного и горячего есть полугорячее копчение. Оно производится при температуре 50-70 градусов. Длительность приготовления составляет около 12 часов.
Конструктивно это обычная коптильня с дымогенератором. Отличие в длине подводящего дымохода. Он делается такой, чтобы дым не успевал остывать и поступал в коптильную камеру нагретый до необходимой температуры.
Если удлинить дымоход, то коптилку полугорячего копчения легко превратить в коптильню холодного копчения своими руками.
Коптильня для полугорячего копчения
Начало работ
Поводом для конструирования коптильни своими руками служит необычайно высокая стоимость готовой конструкции, если ее покупать в магазине. Надо отметить, что при должном выполнении всех советов по реализации схемы получится коптильня, в которой можно готовить продукты, ничем не отличающиеся по качеству от тех, что коптятся в покупных устройствах.
- Для начала надо освободить баллон от остатков газа. Для этого открывается вентиль, и баллон переворачивается вверх дном. Чтобы убедиться, что весь газ вышел, приготовьте мыльную пену и нанесите ее на кран и штуцер. Любая утечка газа будет сопровождаться образованием пузырей. При этом все перечисленные работы необходимо проводить на достаточно большом расстоянии от жилого дома и, естественно, от открытого огня.
- После этого баллон наполняется водой, чтобы его тщательно прополоскать. Горловину следует спилить ножовкой по металлу. Параллельно с этим необходимо полотно ножовки и саму горловину поливать холодной водой, чтобы не допустить излишнего нагрева металла, иначе существует опасность возгорания.
- Еще раз промывают баллон водой, при этом периодически его встряхивая. Выливать воду необходимо подальше от застроек, так как она может неприятно пахнуть газом. Нельзя пренебрегать полосканием баллона водой. Если вы пропустите этот шаг, то его резка или сварка станут потенциально опасными. Малейшая искра может привести к взрыву газа.
Подставка для коптильни
Обычно коптильню для горячего копчения устанавливают на мангал или на кирпичи. Наше устройство достаточно громоздкое, чтобы его то и дело перемещать, поэтому можно изготовить аккуратную подставку. С ней удобно будет готовить блюда, ведь высота ее оптимальна. Если потребуется перенести коптильню в другое место, то это можно делать по частям: сначала сам ящик, а затем подставку для него.
Сначала определимся с высотой. Ее необходимо подобрать так, чтобы кулинар стоя мог творить свои шедевры. Обычно за пример берут высоту около одного метра. Ничего нет лучше, чем металлические уголки для конструирования станины или ножек под коптильню
Еще нужно обратить внимание на надежность опоры. Так как после заправки продуктами коптильня существенно прибавит в массе, то все уголки должны быть качественно приварены друг к другу, причем каркасы обязательно содержат диагональные распорки
Тем, кто впервые решил заняться самоделкой, желательно обратиться к более опытным наставникам. Мы же предлагаем сварить каркас из уголков в виде прямоугольного параллелепипеда. На боковых гранях содержатся диагональные усилители. Заметьте, что при таком изготовлении подставку можно транспортировать отдельно от коптильни. В некоторых же источниках встречаются советы приварить четыре ножки прямо к баллону. Вы должны выбрать наиболее подходящий для себя вариант.

Сборка и сварка узлов
Для придания жесткости коптильню из баллона необходимо укрепить ребрами жесткости. Для этого к внутренней поверхности приваривают металлические уголки. Процедура сборки выполняется в следующей последовательности:
- Коптильню ставят на подставку или к ней приваривают ножки.
- Топка соединена вместе с коптильной камерой.
- Дымоход подключен.
После сварки всех элементов конструкции проверяется тяга. Если машина не работает должным образом, проверьте правильность сборки.
Подставка для коптильни
Если агрегат стационарный, безопаснее соорудить подставку. Для этого используются металлические уголки. Они привариваются к цилиндру перпендикулярно. Чтобы конструкция была более устойчивой, профиль внизу усилен дополнительными металлическими уголками.
Качество швов контролируется, так как курильщик должен выдерживать большой вес. Преимущество фиксированной конструкции в том, что на подставке можно соорудить дополнительные полки для дров и кухонных принадлежностей.
Изготовление и сварка ножек
Если коптильня из газового баллона своими руками собирается как переносная конструкция, рационально сделать съемные ножки.
Для этого в нижней части емкости просверливаются отверстия и на ножки привариваются гайки.
Изготовление дымохода и топки
В некоторых случаях возможно разжечь огонь прямо в корпусе коптильни. Практичнее соорудить отдельную топку, так как в этом случае можно будет использовать агрегат как для холодного, так и для горячего копчения. Для изготовления духовки понадобится еще один баллон меньшей емкости.
Очаг делается по следующему принципу:
- В цилиндре 2 отверстия: под вентилятор и для заправки топлива.
- Внутри между очагом и вентилятором закреплена решетка, предотвращающая попадание огня в камеру.
- Независимо от вида дыма, необходимо построить дымоход. В случае горячего копчения он может быть непродолжительным. Для холодного приготовления берут более длинную трубку, чтобы дым лучше охладился.
Чтобы конструкция трансформировалась, соединение дымохода между камерой и топкой должно быть съемным, чтобы можно было использовать агрегат для холодного и горячего копчения.
Установка решетки и поддона
В коптильню установлена решетка для продуктов и поддон для сбора жира. Готовые устройства можно использовать как решетку:
- грили с ножками для микроволновок или духовок;
- улучшенные приспособления из форм для пельменей и др.
Если диаметр готовых решеток не подходит для коптильни, подставку для еды лучше соорудить самостоятельно. Для этого используются металлические прутья. Если внутрь коптильни положить трубку, то с помощью крючков можно легко подвесить куриные или рыбные тушки.
Внизу камеры с продуктами установлен съемный металлический поддон для сбора жира с краями, чтобы скопившаяся жидкость не перетекла в емкость и не испортила вкус продуктов. Для облегчения очистки накрывайте сковороду пищевой пленкой перед каждым приготовлением.
Покраска и декорирование готовой конструкции
Правильный подход к отделке готовой конструкции позволит превратить коптильню в неповторимый элемент экстерьера. Придать оригинальности помогут кованые детали: ножки, ручки. Для удобства перемещения устройства по территории смонтированы колеса. Установка дополнительных столешниц и подставок для продуктов, дров и посуды ускорит и упростит процесс приготовления.
Для бензобака, который долгое время находился в эксплуатации, важна покраска. Это не только сделает внешний вид привлекательным, но и продлит жизнь конструкции. С помощью термостойкой краски удастся скрыть сварные швы, защитить поверхность от коррозии и высоких температур. Для покраски выбираются термостойкие краски и лаки. Ограничений по цвету нет, но практичнее использовать черную краску. Хорошо скрывает следы пригорания и копоти.
Оригинальные примеры дизайна
Существует множество оригинальных примеров для создания мангалов из газового баллона. Данное мероприятие ограничивается только вашей фантазией и навыками. Для кого-то будет достаточно простого сооружения из газового баллона, в котором будет присутствовать подставка под шампуры, а другая категория умельцев хочет сделать настоящее произведение искусства.
Привлечет внимание мангал в виде поросенка. Чтобы создать такое сооружение, вам потребуется только один баллон
Расположите изделие в горизонтальной плоскости, оборудуйте крышку. Крышка должна располагаться на петлях. Ножки можно создать из металлической трубы. Чтобы они надежно фиксировали конструкцию, по центру их высоты следует установить решетку.
«Пятак поросенка» создается из отрезка металлической трубы. «Рот» производится также из данного материала. «Ушки» можно создать из кусков металла, которые привариваются к голове «свиньи». Чтобы фигура смотрелась эффектно, мастера рекомендуют использовать элементы художественной ковки.
Интересно будет смотреться мангал в виде подводной лодки. Такое сооружение сложно создать новичку, но если вы обладаете соответствующими навыками, сможете удивить всех своих гостей. Подобная конструкция также создается из старого баллона и листов железа.
Мангалы из баллонов в виде бревна считаются настоящим искусством. На работу уйдет много времени, но результат того стоит. Для усиления эффекта можно по центру конструкции установить пилу или же топор. Такое дополнение делает фигуру завершенной.
Мангал-паровоз считается самым распространенным вариантом дизайна. Такое многофункциональное творение может обладать разным внешним видом, в зависимости от вашей фантазии. При помощи ухищрений вы сможете создать из простого газового баллона настоящее произведение искусства. Такой мангал будет украшать зону отдыха и показывать ваш талант.
Вы можете придумать другие оригинальные фигуры для своего мангала из старых баллонов и дополнительных металлических компонентов. Присмотритесь к изделию и подумайте, что он вам напоминает. Некоторые пользователи создают из простой конструкции оригинальные фигуры в виде кабанов, собак, домиков и прочих фигур, которые удивляют гостей и простых прохожих.
Коптильня из двух газовых баллонов
Из двух ёмкостей получается установка, имеющая дополнительные возможности.
Аппарат для горячего копчения
Из двух баллонов разной ёмкости делается коптильная камера горячего копчения своими руками. Для такого аппарата нет необходимости разводить костёр и его допускается использовать в гараже или сарае, особенно, если установить аппарат в стене здания таким образом, чтобы дверцы оказались снаружи. Изготавливается эта коптильня из баллонов разного размера, например, 27 литров и 50 л. Устанавливаются они вертикально, один над другим.
Ёмкость меньшего размера используется в качестве топки. Пошагово она изготавливается следующим образом:
Эта печь для копчения своими руками будет не только готовить закуски, но и отапливать гараж или теплицу.
Коптилка холодного копчения из двух баллонов
Из двух баллонов можно сделать также коптильню для холодного копчения. Для этого печка и коптильная камера не устанавливаются друг над другом, а соединяются дымоходом длиной 3-5 метров. Принцип работы аналогичен обычным коптильням, работающим на естественной тяге:
- Дрова горят в печке.
- Дым проходит по дымоходу, остывая и очищаясь от конденсата и сажи.
- Остывший дым поступает в коптильную камеру, проходит через решётки с продуктами и выходит на улицу.
Целесообразно установить эту установку в теплице. В этих помещениях печка размещается в углублении, а дымоход прокладывается вдоль всего сооружения. Дым, проходя по нему, остывает и становится пригодным для холодного копчения.
При размещении отверстия для дымохода не вместо вентиля печки, а сбоку появляется возможность установки казана или конфорки для приготовления пищи обычным способом.

Виды и назначение коптильни
Все виды коптилен можно классифицировать по нескольким критериям.
В зависимости от способа изготовления и температуры копчения:
Коптильня для холодного копчения
Отличительной чертой такой коптильни является достаточно длинный дымоход вытянутой формы. Именно дымоход обеспечивает дымовым газам 100%-е выгорание.
Также в модель коптильни холодного копчения входит топка и сама коптильная камера. При копчении продуктов таким способом, все вредные и токсичные вещества от продуктов сгорания остаются на стенке дымохода, а еда отдает легким дымком, с ароматом от вида древесины, которая использовалась для копчения.
Минусом холодного копчения является длительный процесс приготовления — он может занять от 3-х до 7-ми дней. Однако и продукция, приготовленная в коптильне холодного копчения может храниться до 4-х месяцев, что есть однозначным плюсом.
Коптильня для горячего копчения
Такая коптильня имеет свои инженерные особенности, поскольку технология горячего копчения предусматривает использование особых видов щепок, а не дров. Поэтому топочное отделение находится под коптильной камерой.
Коптильная камера должна быть герметичной, чтобы помещенные в нее продукты могли равномерно нагреваться.
А вот временные затраты на копчение сравнимы с запеканием в духовке. И готовый продукт можно получить за 30-60 минут. Тут все будет зависеть от вида и веса продукта, поскольку рыба требует меньше времени на приготовление, чем птица. Однако и срок хранения продуктов горячего копчения составляет всего несколько дней.
Коптильня универсальная
Кроме специальных коптилен для горячего и холодного копчения можно выделить и коптильни универсальные. Такие коптильни являются усредненным вариантом между двумя описанными, и позволяют готовить продукты двумя способами.
Таким образом, при выборе коптильни, стоит обратить внимание на плюсы и минусы каждого вида: так коптильни для холодного копчения являются громоздкими, но приготовленные в них продукты дольше хранятся и обладают более ярким вкусом; в то время как коптильни для горячего копчения миниатюрны, и приготовление продуктов занимает немного времени
Любой вид коптильни подходит для приготовления колбас, различного вида мяса, птицы, сала, бекона и рыбы. Вкусовые качества продукта будут отличаться в зависимости от выбранного способа копчения.
По виду мобильности коптильни можно разделить на:
- стационарные коптильни, которые устанавливаются в одном месте и могут быть использованы для достаточно большого объема продуктов;
- переносные мини-коптильни, представляющие собой небольшой ящичек, который плотно закрывается крышкой. Предусмотрены такие коптильни для походов и отдыха на природе.
Правила техники безопасности
Дабы коптильня с использованного газового баллона, сделанная своими руками, была не только производительной, но еще и безопасной, необходимо грамотно подобрать и подготовить емкость к дальнейшим процедурам.
Задействовать можно баллоны от 20 до 50 л, однако агрегат малого объема невыгоден, поскольку вмещает мало продуктов.
Оптимальной считается 50-ти литровая емкость, в которую не сложно вмонтировать и шампура, и решетку для гриля. Брать нужно не ржавые и не слишком грязные баллоны, без вмятин, с остатками газа, что подтверждает их рабочую способность.
Удаление газа из баллона
Во избежание опасных ситуаций следует уделить особое внимание очистке емкости от поверхностных загрязнений и остатков топлива. До тех пор, пока в пропановом баллоне, находящимся под сильным давлением, есть газ, риск возгорания довольно высок.
Очистку нужно проводить на свежем воздухе вдали от источников огня
Первым делом предстоит открутить вентиль, перевернуть баллон кверху дном и стравить остатки газа. Возможно, придется сбивать прикипевший вентиль молотком.
Или придётся срезать его, время от времени поливая холодной водой и действуя очень осторожно для минимизации возможности воспламенения от искры. Качество очистки газовой емкости тестируют четырьмя способами:
- Наполняют баллон водой через тонкий шланг доверху, что будет подтверждать отсутствие газа. Емкость должна простоять с водой около суток, и только потом опустошена за границами приусадебного участка с растениями, иначе растворенный в воде газ повредит их корневую систему.
- Погружают газовый баллон в наполненную водой ванну.
- Поджигают смоченную в горючей жидкости и помещенную в баллон тряпочку, уложив его горизонтально и отойдя на безопасное расстояние. Должен послышаться отчетливый хлопок после сгорания ветоши, означающий полное удаление газа.
- Наносят на кран и штуцер мыльную пену. Если наблюдается образование пузырей, газ вышел не полностью.
После всех манипуляций необходимо еще раз тщательно прополоскать баллон водой.



При работе с баллоном, будьте очень аккуратны.
Разметка и разрезание
На готовом баллоне нужно выполнить разметку мелом и выпилить намеченный ровный боковой проем с отступом от краев примерно на 15 см и занимающий не более половины диаметра емкости.
Последнюю сторону рекомендуется срезать после монтирования петель для более плотного прилегания крышки к коптильному отсеку.
Петли можно приварить, прикрутить или наклепать. Причем, не обязательно использовать кованые варианты. Подойдут и обыкновенные дверные петли, продающиеся в отделе хозтоваров.
Далее необходимо прорезать:
- отверстие для дымохода возле горловины емкости;
- небольшой вход для дымогенератора;
- отверстия под решетки или шампура.
После этого можно приниматься за сборку конструктивных элементов, следя за прочностью и герметичностью креплений.
Изготовление крышки
Края крышки следует тщательно заровнять и зачистить, затем вмонтировать ручку. В этих целях можно взять большой болт. Для удобного использования рукоять рекомендуется покрыть огнеупорным материалом.



Коптильня из газового баллона.
Какая щепа для чего подойдет
Для того чтобы не разочароваться в кулинарном результате, важно правильно подобрать щепу для копчения. Оптимальной древесиной для этого считается ольха, осина и плодово-ягодные культуры, а вот хвойные опилки использовать не рекомендуется, так как они выделяют много копоти и разъедающий интенсивный запах.
Кору дерева, испорченную вредителями или грибком, откидывают
Щепу берут однородную по размеру и не очень мелкую. Для горячего копчения в топку загружают влажную щепу, для обработки холодным дымом – опилки. Вкусовые качества мясных изделий и птицы хорошо раскрывают: ясень, ива, бук, яблоня, акация, слива, абрикос и персик.
Груша подходит к нежирной рыбе и дичи, можжевельник – к салу, дуб – к говядине и колбаскам, вишня и черешня – к сыру, овощам и свинине. Ольха является универсальной для всех продуктов, осина, как правило, используется смесью.
Для придания блюду особенного аромата можно добавить веточки розмарина, шалфея, лавра, миндаля, можжевельника, эвкалипта, мяты. При затруднении с выбором щепы можно воспользоваться брикетами для копчения, содержащими спрессованную древесину разных сортов.
Тонкости технологии копчения
На продуктах из супермаркета обычно указывается, каким из способов была проведена обработка продукта. Однако покупатель не может быть уверен в том, что были соблюдены все тонкости проведения технологии копчения. Именно поэтому, если есть такая возможность, лучше потрать немного времени, но соорудить мангал-коптильню из газового баллона. В таком универсальном агрегате можно будет выполнять не только копчение, но и жарить шашлык или делать барбекю.
Холодное копчение
При холодном копчении коптильня находится в удалении от огня. От топки подключается труба, по которой охлажденный дым — 25-40 градусов, подается непосредственно в коптильный отсек и там пропитывает продукт. Для выполнения данного вида обработки понадобится вертикально стоящая камера.
Предварительно заготовка засаливается, подвешивается в камере, а под действием дыма и соли происходит ее обезвоживание и консервация. Время до полного приготовления зависит от размера и типа продукта — от суток до нескольких недель. Холодное копчение хорошо тем, что в мясе и рыбе остается большее количество витаминов, чем при горячем способе. Такие продукты могут храниться в холодильнике несколько недель, полностью сохраняя свои вкусовые качества.
Горячее копчение
Горячее копчение выполняется в непосредственной близости от огня. Оптимальная температура — 40-120 градусов. Таким образом, продукт может быть полностью готов к употреблению уже через полчаса. Иногда время растягивается до нескольких часов. Процесс горячего копчения отличается также простотой. При нем продукт получается разваренным и рыхлым. Из-за этого не рекомендуется подвешивать его на крюки, а лучше уложить на решетки, чтобы во время приготовления мясо не упало на угли. Минусы горячего копчения в том, что часть полезных веществ из продуктов улетучивается, да и сроки хранения их меньше, чем после холодной обработки.

Коптильня из газового баллона горячего копчения
Способы копчения
Для копчения применяют два основных способа: горячее и холодное. Они различаются:
- по температуре, поддерживаемой в коптильной камере;
- времени копчения продуктов;
- сроку хранения продукта, прошедшего обработку.
| Характеристика | Горячее | Холодное |
| Температура, оС | до 100 | 19 — 25 |
| Время, часы | 4 — 8 | 24 — 72 |
| Срок хранения, месяцы | до 2 | 2 — 6 |
Отличия горячего и холодного копчения
Если температура или время готовки попадают между этими параметрами, получится блюдо полугорячего копчения.
фото: рыба, подвешенная в коптилкеКопчение рыбы
Для холодного копчения, которое длится несколько дней, продукты предварительно обрабатывают: засаливают или отваривают.
Правила изготовления коптильни
Для изготовления коптилки из газового баллона не нужно делать предварительные чертежи, так как действий для создания конструкции очень мало. Обычно коптилка делается из того материала, который был найден во дворе. Однако если изделие будет более сложным и иметь различные элементы, например, колеса для транспортировки или электрическую плитку, то в этом случае желательно сделать простые схемы. В целом устройство для копчения продуктов делается поэтапно:
- Изначально на корпусе выполняется разметка для будущей дверки. Достаточно воспользоваться карандашом и линейкой. Если же такого нет, то применяется мел и ровная доска. Не позволяется делать распил кривым. По бокам будущей дверцы следует оставить место не допиленным хотя бы на 10 см — это нужно, чтобы вырезанная часть не провалилась внутрь.
- Далее берутся металлические петли и подгоняются по одной начерченной линии. Детали подогнаны, и теперь выполняются прихватки. Петли могут немного сместиться, но так как они держаться на точечной сварке, они не упадут. С помощью молотка окончательно выравниваются петли. После чего их необходимо обварить с двух сторон. Образовавшийся шлак удаляется молотком, а шов зачищается щеткой по металлу. Перед сваркой желательно зачистить рабочую зону от краски и ржавчины.
- Второй способ закрепления накладных петель — это заклепки и болты. Метод трудоемкий, ведь придется в стенке баллона проделывать отверстия дрелью, а эта задача не из легких. После сделанных отверстий берутся болты с гайками и закручиваются до предела. В любом случае после окончательной установки петель, оставшиеся не срезанные участки дверцы нужно полностью срезать. Таким образом, получится идеально ровная дверца.
- На следующем этапе делается колено из двух труб. Берутся две трубы, одна из них длиной 100 см, а второй отрезок не более 20 см. На обоих изделиях при помощи угольника намечаются линии под углом. А затем болгаркой отрезаются намеченные участки. После этого производится сварка двух элементов. Форма такой дымоходной трубы необходима для лучшей тяги, а щепа станет тлеть намного эффективнее. Для контроля над тягой используется заслонка, которая прикрывает верхний торец дымохода. Для удобства эксплуатации в трубе проделывается прорезь, в которую вставляется заслонка.
- Дымоходная труба приделывается к тому месту, где ранее был вентиль. Работа выполняется при помощи сварки. Изначально ставятся прихватки. Дымоход устанавливается строго по вертикали. Далее место соединения полностью обваривается.
- Во время копчения продуктов из-за высокой температуры может возникнуть деформация конструкции. Чтобы минимизировать вероятность деформации, коптильне придается дополнительное усиление. В этом случае поможет труба диаметром 3 см, которая приваривается вдоль внутренней оси баллона. На такую трубу также можно подвешивать мясные продукты для копчения. А чтобы крышка не проваливалась внутрь, с краю приваривается ограничитель в виде мелкой трубки или уголка.
- Для герметизации дверцы привариваются узкие металлические полосы. Прикрепляются они к крышке. Таким образом, можно избежать щелей. Полосы также послужат вспомогательным ограничителем, так как при закрывании крышка не сможет провалиться.
- В подобных конструкциях для копчения на дно всегда кладут специальный поддон, предназначенный для сбора жира. Поверх поддона желательно поместить фольгу — это поможет избежать загрязнения баллона. Вблизи дверцы выполняется монтаж сетки. Если такого изделия нет, то сетку можно сделать из арматуры. Главное, чтобы она была съемная, следовательно, под сеткой привариваются уголки, удерживающие конструкцию. Кроме сетки, предусматривается и место для шампуров. По бокам баллона достаточно изготовить 6 отверстий, в которые установятся шампуры.
Инструкция по изготовлению коптильни своими руками
На этапе подготовки баллона в него заливают воду, после чего отверстие плотно закрывают, вбивая в него брусок. В этом состоянии и производят распиловку металла. Вода в емкости предотвращает случайное возгорание. Для выполнения задачи используют болгарку с диском по металлу толщиной 2,5—3 мм.
Важно! При распиловке баллона с водой нужно подставить под него любую подходящую емкость, в которую будет сливаться жидкость при выполнении первого реза. После получения нужного отверстия сливают всю воду
Для устройства коптильни понадобятся:
- Две дверные петли, с помощью которых будет закрываться и открываться дверца.
- Ручка для дверцы.
- Колено.
- Трубы.
- Решетка.
- Крючки для подвешивания продуктов.
Этапы работ
Шаг 1. Спиливают верхнюю часть горловины с краном.
Шаг 2. Сливают воду.
Шаг 3. Отпиливают заднее кольцо, которое было нужно для устойчивости баллона в вертикальном положении. Как правило, это кольцо приварено не по всей окружности емкости, а в нескольких местах. Нужно найти их и распилить.
Шаг 4. На каждом баллоне имеется линия шва, который проходит вдоль него, от нижней части к верхней. Этот шов послужит ориентиром для выполнения разметки. Алгоритм действий:

- берут рулетку, отмеряют от линии шва 24 см;
- ставят отметку маркером или простым карандашом;
- находят точку на противоположном конце баллона, проводят между ними ровную линию;
- отступают по 3 см от каждого шва, проходящего по окружности баллона по направлению к его центральной части, и проводят линии (должны получиться два «кольца», по одному в верхней и нижней части).
Шаг 5. Делают прямой рез вдоль той линии, которая проходит по всей длине баллона, но начинается и заканчивается у прочерченных ранее окружностей рядом с горловиной и дном (т.е. не доходит до швов).
Шаг 6. По обеим сторонам от реза крепят дверные петли так, чтобы они работали на открытие-закрытие.
Шаг 7. Отмеряют рулеткой от линии реза желаемую ширину дверцы. Проводят линию.
Шаг 8. Делают пропилы вдоль этой линии и по боковым линиям вдоль окружности, но немного не допиливают дверцу, чтобы она пока находилась в зафиксированном на баллоне положении.
Шаг 9. Приваривают к дверце ручку.
Шаг 10. Завершают распиливание дверцы и открывают ее.
Шаг 11. Чтобы в процессе эксплуатации коптильни дверцу не повело, с внутренней стороны к ней приваривают два металлических прутка, расположенных по ее ширине.
Шаг 12. К отверстию в горловине емкости, образовавшемуся после спиливания крана, приваривают колено из трубы, сечение которой соответствует диаметру отверстия. В это колено будет устанавливаться труба дымохода, в верхней части которой крепят заслонку. С ее помощью регулируют выход дыма.
Шаг 13. На дне баллона вырезают окружность, к которой приваривают трубу, идущую от топки.
Шаг 14. Сооружают топку, выбрав любой из предложенных выше способов.
Шаг 15. Собирают все узлы коптильни в единую конструкцию.
Как самому сделать топку из баллона?

Если в наличии имеется второй баллон, можно сделать из него экономичную и долговечную топку.
Правила подготовки и распиловки емкости те же самые. В топке нужно сделать две дверцы: одну для поддувала, вторую (расположенную выше первой на 7—10 см) — для закладки опилок.
Отверстие для дымохода выпиливают рядом с горловиной баллона. Размер 7х10 см.
Отпиленную пластину прикладывают к нижней части коптильни, обводят маркером и вырезают болгаркой. Соединяют два отверстия (на топке и на коптильне), приварив к ним металлическую трубу.
Можно выбрать и другой способ: приварить топку непосредственно к коптильне. Но в этом случае нужно будет делать заслонку, иначе в камеру будет проникать не только дым, но и открытый огонь.
Проекты, схемы, варианты исполнения
Перед работой необходимо начертить самостоятельно или распечатать схему с точными замерами и следовать указаниям. Решая, как лучше сделать коптильню из газового баллона, стоит ознакомиться с несколькими вариантами, отличающимися разной комбинацией камер.
Из 3-х баллонов
Для такого универсального агрегата подойдут следующие комбинации емкостей:
| Назначение емкости | Объем, л |
| Жаровня | 50, 40 |
| Камера холодного копчения | 50, 40, 27 |
| Топка | 27, 40 |
Из 2-х баллонов
Конструкция из двух баллонов может использоваться только для горячего копчения и допускает такие комбинации:
| Назначение емкости | Объем, л |
| Камера-жаровня | 50, 40 |
| Топка | 27, 40, 50 |
Из одного баллона
Для моно-устройства применяют емкости объемом 40 или 50 литров, а схемы исполнения различаются между собой лишь расположением трубы и дополнительными элементами.



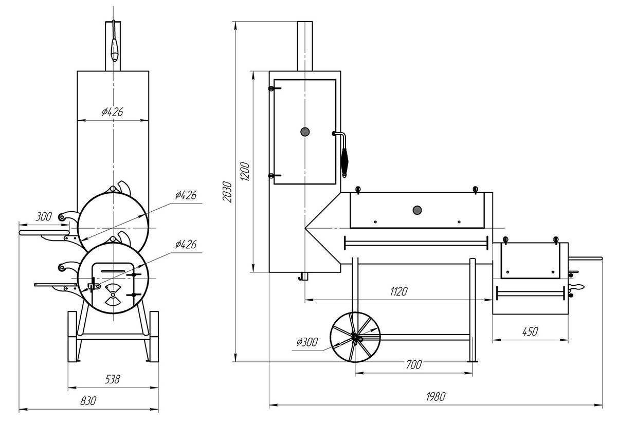
Чертежи коптильни.
Изготовление топки для коптильни
Установка для копчения из газового баллона предполагает наличие отдельной камеры, в которой будет тлеть топливо — щепки либо опилки. Если такое отделение отсутствует, вместо коптильни, получится мангал.
К спиленной горловине баллона приваривают колено, в которое вставляют дымовую трубку с регулируемой съемной либо прикрепленной болтиком заслонкой. С другой стороны емкости есть отверстие для дыма, который и будет поступать из камеры горения.Емкость для топки делают либо из бака меньшего объема, либо из металлического листа. В ней предусматривают два отверстия. Одно служит поддувалом, в другое закладывают опилки. Между топкой и баллоном устанавливают колосник.
Если предполагается получать продукты горячего копчения, трубу делают короткой. Чтобы получить установку для традиционного приготовления копченых изделий, то есть холодного копчения, трубу удлиняют. Это позволит достичь нужного температурного режима от 19 до 25 градусов.Можно сделать и комбинированный аппарат. Такой вариант предполагает наличие съемных короткой и длинной труб. Первую устанавливают для горячего, а вторую ставят для холодного копчения.
































