Чертеж коптильни горячего копчения с гидрозатвором + инструкции по сборке
Если это пикники и редкие готовки для родни на кухне – сборка из нержавейки станет вашим фаворитом. Копчение для реализации и на открытых печах потребует уже вертикальной коптильни. Ниже представлена инструкция для 1-го варианта аппарата.
Какие материалы потребуются:
- листовой металл из нержавейки;
- проволока малого диаметра для ручек;
- проволока среднего диаметра на решетку;
- трубка на дымоотвод.
В качестве базового инструментария используется ручная лазерная сварка, болгарка, дрелька. Остальное – это мелкие ручные инструменты (по типу молотка, зубила, плоскогубцев и т.п.), что есть у каждого в ремонтном чемоданчике.
Этап №1. Делаем короб
Все размеры коптильни горячего копчения с гидрозатвором указаны на чертеже выше. В зависимости от размера стального листа, вы можете воспользоваться 2 способами подготовки основы – крест или 5 стенок. Второй вариант подойдет для случаев, когда у вас завалялось много мелких листов нержавейки.
Как работать по схеме 5 стенок:
- Предварительная фиксация капельной сваркой 2 частей.
- Установка 2 стенок под прямым углом.
- Делаем сварной шов по внешней части.
- Закрепляем шов по внутренней части угла.
- Повторить шаги 2-4 для остальных частей короба.
Если работаете по схеме креста, то следует найти столешницу с ровными краями. Укладываем на него заготовку и последовательно загибаем стенки вниз, тем самым формируя очертания будущего короба. Дальше идет отработка сгиба киянкой и капельная сварка с последующим закреплением линий стыка сплошными швами. Тут же можно добавить и ручки из проволоки.
Этап №2. Изготавливаем крышку коптильни
Размер крышки обязан превышать размеры короба, по крайней мере, на 2 сантиметра. Кроме того, будущий загиб будет помещаться в канавку короба, а потому, сделайте запас по краям. В итоговом варианте крышка будет выходить за края емкости на 10 миллиметров.
Алгоритм изготовления крышки:
- Вырезаем нужных размеров заготовку из листовой стали.
- Карандашом наносим будущие линии перегибов.
- Формируем от внешней части заготовки прорезы вдоль линии сгиба до их пересечения.
- Киянкой загибаем края на столешнице по периметру заготовки.
- Выступы скрываем внутри будущей крышки.
- Свариваем стыки.
- Добавляем отверстие под дымоотвод.
- Крепим сваркой дымоотвод.
На этом же этапе можете прикрепить к верхней части крышки ручку. Как и в случае с коробом коптильни, делается она из проволоки небольшого диаметра. Подойдет 0.8-1 сантиметра. По длине ориентируйтесь самостоятельно, исходя из личных предпочтений.
Этап №3. Добавляем гидрозатвор
Здесь нам требуется сделать канал с глубиной посадки до 3.5 сантиметров. Чтобы сделать элемент конструкции с нуля, предварительно вырежьте 4 металлических полосы прямоугольной формы.
Дальнейший порядок действий включает:
- Сгиб прямоугольных элементов до формы канавки.
- Нанесение вертикалей для будущих прорезов по стенке заготовки на расстоянии 30 мм от ее окончания.
- Добавление маркером линии ко дну заготовки, которая будет соединять разрез по вертикали с противоположной стороной стенки канала. Линия расположится к торцевой части под углом в 45 градусов.
- По аналогии делаем со всеми заготовками.
- Свариваем каналы с коробкой будущей коптильни.
- Окончательное закрепление сварных швов.
Рассмотренная стыковка – не единственный вариант решения вопроса, но с точки зрения эстетичности находится однозначно в лидерах. Если у вас есть способы сделать каналы быстрее, можете воспользоваться ими.
Этап №4. Противень и решетка
Когда крышка с коробом и гидрозатвором готовы, дело остается за малым – добавить наполнение внутри коптильни. Решетка позволит удобно раскладывать продукты, а поднос защитит топливо от попадания жира и его дальнейшего возгорания.
- Режим 2 куска проволоки.
- Загибаем их по форме буквы «П».
- По 2 сантиметра на концах опор загибаются внутрь. Если эти отрезки также перегнуть посередине со смотрящим вверх углом – это будет препятствовать самопроизвольному смещению решетки в стороны.
- Режут еще куски проволоки поменьше для наварки продольных линий. Шаг от 2 до 3.5 сантиметров.
Что касается противня, то он делается по принципу крышки коптильни. В качестве ножек можно использовать 4 полоски, длиной 12-14 сантиметров, которые выгибаются П-образным типом. Одну из стенок «буквы» привариваем к дну, а вторая станет опорой. Ну и не забываем добавить ручку.
Как сделать походную коптильню для рыбы своими руками
Переносную конструкцию делают из металлического листа толщиной 0,3-0,5 см. Коптильня для рыбы состоит из короба, крышки, решетки и поддона. Инструкция изготовления:
- Размеры короба: 25 см ширина, 45 см длина и 20 см высота. Поддон размещаю на высоте от днища 5-7 см. Решетку устанавливают на 10 см выше поддона. Из металлического листа вырезают детали по чертежу.
Все элементы соединяют при помощи сварочного аппарата - К торцам и крышке приделывают ручки.
При желании на крышку монтируют термометр, чтобы удобно было регулировать температуру внутри камеры - На крышке проделывают отверстие для отвода лишнего дыма. К нему крепят трубку.
По периметру приваривают металлический уголок, в получившийся желоб наливают воду для лучшего смыкания крышки
Такой коптильней можно пользоваться как на природе, так и в квартире. Благодаря гидрозатвору крышка прилегает очень плотно и не позволяет сочиться дыму.
«Два в одном»
Когда простейшие варианты коптилен испробованы, можно переходить к усовершенствованным. Например, использовать в качестве материалов для коптильни кирпичи или нержавеющую сталь. Любителям дачи можно посоветовать вариант «два в одном»: устройство, совмещающее и коптильню, и мангал. Хотя изготовление такого «гибрида» отнимет много сил, они окупятся сторицей: такое устройство долговечно и очень практично, поэтому заняться им, безусловно, стоит.
Итак, коптильня своими руками из кирпичей и стали. На первом этапе нужно с учетом пожаробезопасности выбрать на участке место под коптильню. Для комфорта можно протянуть сюда воду и отвести канализацию. После этого следует заняться эскизом будущей коптильни и обязательно расчертить на бумаге схему укладки каждого ряда кирпичей.
Затем необходимо расчистить и распланировать место для будущей коптильни, а также заложить фундамент.
Рассматриваемая нами коптильня – капитальное строение, поэтому для него потребуется вырыть котлован, установить там деревянную опалубку и обшить ее рубероидом. На следующем этапе нужно уложить слой бутового камня (подойдет и бетон, правда, потребуется его армирование), засыпать его щебнем и залить раствором.
На то, чтобы первый слой хорошо просох, потребуются примерно сутки, после этого можно приступать к следующему.
Стоит отметить, что количество слоев будет пропорционально тому, насколько велика конструкция и сколько она весит.
Закончив последний слой, необходимо проверить его уровнем, сделать гидроизоляцию, а также дать ему полностью высохнуть. Скорее всего, на это уйдет несколько дней.
Кладку лучше всего делать из красного печного кирпича. Выложив первый ряд без раствора, можно сделать разметку и определиться с тем, где устанавливать решетки.
В работе лучше использовать песчано-цементный раствор, предварительно добавив в него известь. При замешивании нужно ориентироваться на консистенцию густой сметаны.
Начинать класть кирпич стоит с углов, которые необходимо будет усилить проволокой, а второй и последующий ряды укладывать в разбежку. Не стоит забывать о том, что горизонтальность выложенных рядов необходимо постоянно контролировать.
Для устройства топки нужно выбрать жаростойкий металл (например, чугун). Перед установкой жаровни необходимо позаботиться о закреплении уголков и арматуры между стенками печи.
Удобство этого варианта заключается в том, что, разместив объемы друг над другом, можно получить устройство для горячего копчения. А удалив переносной очаг на небольшое расстояние и соединив его с камерой при помощи дымохода, можно получить устройство холодного копчения.
Коптильня из подручных средств: инструкции
Принимая во внимание большое количество материалов, коптильное приспособление можно соорудить из много чего
Здесь важно понимать основные процессы и технологию, за счёт которых выполняется копчение

Приобретя знания о них можно собственноручно сделать схему и предписание для сборки прибора. В среде дачников широко распространены следующие модели приборов.

Коптильня из газовых баллонов
Работа по формированию коптильни из баллона от газа представляется сложнее, но является подходящим для владеющих ненужным баллоном и желающим вдохнуть в него вторую жизнь. Очередность работ:
- первым делом, согласно правилам безопасности, нужно спустить с баллона весь газ. Затем бережно отпиливается вентиль. Фрагменты газолина также выливаются из баллона во всякую железную тару и поджигаются;
- баллон хорошенько вымывается. В стенке отрезается дверка, через неё потом в камеру станут закладываться продукты;
- к делянке выреза прикрепляются навесы, которые будут удерживать дверку;
- с днища баллона отрезаются железные полоски и отпиливается половина дна, для формировки топки в планируемой коптильне;
- из листового металла создаётся непосредственно топка и наваривается к баллону, потом структура целиком прокаливается на огне.

Коптильня из бочки
Для создания простой коптильни прохладного метода собственными руками, берётся: железная бочка и сетка, жестяной лист, решётка, мешковина, болты.
- Под топку копается приямок, на дно следует вложить жестяной лист – он требуется для постепенного тления опилок или щепы.
- Затем обустраивается дымоход: формируется мелкая траншея широтой 25 см, протяжённостью 2-7 м.
- Для непроницаемости её нужно прикрыть негорючим сырьём, к примеру, шифером и присыпать грунтом.
- Коптильная камера сооружается из железной бочки, от неё отделяется днище и крепится снизу сетка из металла.
- Для фильтрования сажи на неё ложится мешковина. Внизу бочки закрепляется решётка, на неё можно разместить фильтр.
- Потом ещё одну крепкую решётку устраивают в верховой части с отступом от кромки 20 см. На неё будут выкладываться изделия для коптильного процесса.

Коптильня из старого холодильника
Те хозяева, которые не выбросили состарившийся холодильник, а сберегли его, могут вдохнуть в него вторую жизнь. Он замечательно подходит для создания коптилки.
- Вначале из него убираются все электрические элементы и другие составляющие.
- Сверху проделывается отверстие, в него будет заводиться дымоход.
- В средней части холодильника располагаются решётки, крюки и жаровня для жира.


Коптильня из ведра
Берётся обыкновенное невостребованное ведро. В нём крепятся 2 решётки, находящиеся на некотором расстоянии одна от другой. На дно ведра всыпаются щепки. На этом простецкий коптильный прибор готов.

Можно вкладывать внутрь изделия, прикрывать крышкой и ставить на огонь
Из этого следует, что коптильный прибор можно соорудить из всяких невостребованных материалов, важно иметь желание её сделать и усилия.

Домашняя коптильня своими руками
Любителям отведать вкуснейшую и ароматную копчёную рыбу или мяско, можно запланировать смастерить коптильный аппарат собственными руками.

Такой процесс очень интересный и не слишком трудный. Труды хозяев будут вознаграждены аппетитными копчёными изделиями, которые заменят магазинные.










Особенности и преимущества
Сооружение коптильни не трудный процесс, как может казаться вначале. Разумеется, это обусловлено видом агрегата, которое владелец пожелает пристроить у себя на приусадебном участке, а отдельные варианты возможно самим создать всего за считанные минуты.
- Рукотворная коптильня по большей части обходится намного дешевле приобретённой. Её получится сформировать из валяющихся материалов, состаренных предметов, уже не применимых в хозяйстве, но сохраняющих свои качества.
- Удобную коптилку, необходимых размеров и вместимостью, что обусловлено пожеланиями хозяина, можно скоро сформировать собственноручно, непосредственно на даче.


Виды и назначение
Практикуются 2 основных вида коптилен, одна подходящая для горячего, а другая для холодного метода. Они различаются одна от другой в основном методикой изготовления коптилок и температурой, что работает в коптящих камерах.

Продукция отталкиваясь от метода копчения тоже будет иметь отличающийся вкус. Оба типа коптилен возможно задействовать для копчения мяса, рыбки, дичи, колбасок и сала.
- Холодный способ. Их основная особенность в удлинённом дымоходе, что предоставляет полное образование дымовых газов. Эти модели кроме дымохода имеют 2 основных блока: печку и коптильный бокс. Здесь все вредоносные соединения оседают на стенках дымохода, а мясо обретает немного ощутимый приятный дымок. Производство продукта таким способом занимает от 3 до 7 дней. Срок хранения произведённых таким методом продуктов составляет: 3-12 недель.
- Горячий способ. Этим методом продукция готовится заметно скорее. Процесс длится от 15 минут до 2-3 часов, многое зависит от приготовляемого продукта. В этих коптящих аппаратах используется вместо дровишек – особая щепа. Это возможно благодаря отличиям в строении прибора. В этих коптилках топка размещается непосредственно под плотно закрытой камерой, что отвечает за копчение. Непроницаемость камере придаёт нагревание в равной мере всей продукции.
- Существуют разноплановые приборы, что представляются чем-то средним меж холодными и разгорячёнными коптилками.

Кроме неподвижной коптилки имеются переносные агрегаты копчения, компактных размеров, они схожи на ящик с крышкой. Удобны, чтобы брать на рыбалку, пикник.















Дымогенераторы
Чтобы копчение мяса производилось успешно, дымогенератор нужен обязательно. То, как устроен самый простой такой генератор, показано на изображении ниже. Что касается нагревателя, то он здесь показан условно, поскольку, о чем уже говорилось ранее, он может быть абсолютно любым. Также для генератора требуется особое топливо, но об этом несколько позже.
Наддув же обозначен отнюдь не условно. Если генератор работает на естественной тяге (а для этого требуется, чтобы коптильня располагалась на 200-300 сантиметров выше него), то его можно будет использовать разве что для псевдохолодного копчения. Настоящее же горячее копчение требует, чтобы в камере было высокое давление, в то время как тяга, насколько мы знаем, обеспечивает разрежение.
Ниже приведена более интересная схема дымогенератора. Данное устройство функционирует по следующему принципу: чурка, которая поджимается пружиной, оснащенной регулировочным винтом, начинает тереться о шкив еще до начала трения и дымообразования. Здесь же на двигателе располагается вентилятор, который гонит дым внутрь камеры.
На данной схеме изображен коллекторный двигатель переменного тока, и он подходит больше всего. Здесь его мощность должна составлять 200-300 ватт. А вот в случае использования асинхронного двигателя с конденсаторным запуском (а у таких устройств достаточно жесткая наружная характеристика), то для поворота вала потребуется уже примерно 1500-2000 ватт.
Возможные проблемы и сложности при изготовлении самодельной коптильни
Особенность изготовления коптилен – сварка, которая может занять до 60% от общего времени работ
Сварочный шов нужен сплошной, поэтому если вы начинающий сварщик или давно не варили – подбирайте силу тока очень осторожно. Прожечь металл ничего не стоит, а вот поставить «заплатку» — и дольше, и сложнее, и внешний вид с функционалом портит
Внимание! Герметичность – наше всё. В процессе и после сварки сразу проверяйте состояние швов
Именно негерметичный шов является проблемой в более 80% случаев.
Толщина металла должна быть не менее 3 мм. В противном случае при сварке и дальнейшей эксплуатации ваша коптильня сильно деформируется. Не экономьте на металле, по возможности выбирайте нержавейку.
Выкладываем коптильную камеру
Когда дымоход готов, можно приступать к возведению коптильного отдела. Здесь можно проявить фантазию, выстроив круглую, квадратную или прямоугольную камеру. На помощь придут чертежи, фото, видео и пошаговые инструкции, широко представленные в интернете. Самое главное — не спешить, а качественно выкладывать кирпич. Для домашней коптильни вполне достаточной будет камера размером 1 х 1 м и в высоту 1,5 м.
Кладку желательно выполнять на раствор из глины, укладывая кирпич на ребро. Глина – природный материал, и при воздействии высоких температур не выделяет вредных веществ.
Строительство коптильной камеры
В верхнюю часть камеры забуривают металлические штыри, на которые будет монтироваться решетка или прутья с крючками для продуктов. В нижней части нужно предусмотреть крепления для мешковины, которая используется как фильтр для дыма. Посредине – крепления для съемного жироулавливающего поддона.
Сверху камера накрывается специальной крышкой, регулирующей плотность дыма. Если конструкцией коптильни предусмотрен монтаж крыши, не стоит забывать о вентилируемых открывающихся отверстиях. Когда каркас коптильной камеры готов, можно устанавливать двери и монтировать приспособления для раскладки продуктов.
Универсальная коптильная камера из вагонки
Далее будет приведена инструкция по изготовлению шкафа, приспособленного как для горячего, так и для холодного копчения.
Каркас делаем из строганных брусков сечением 40х40. Длина вертикальных — 140 см; горизонтальных (внутренний размер) — 60 см. Соединяем уголками на саморезы. Высота ножек — 30 см.
Спереди каркаса делаем паз, в который будет вставляться дверка (так же из сороковых брусков, собранных на уголки). Паз выбираем фрезерной машинкой.
Внутри на все стенки прибиваем фольгу, после зашиваем вагонкой.
Чтобы прибить фольгу на заднюю стенку, дополнительно прикручиваем к ней бруски.
Дверку обиваем фольгой, внутрь кладём утеплитель, затем обшиваем вагонкой с двух сторон.
В качестве ручек можно использовать оконную фурнитуру.
Проём дверки герметизируем резиновым уплотнителем.
Внизу шкафа сверлим два отверстия для подключения тэна.
В боковой стене отмечаем отверстие под вентилятор (диаметр 100 мм) и выпиливаем его лобзиком.
Сверху сверлим отверстие диаметром 50 мм под трубу для вытяжки.
Снаружи утепляем минватой (на толщину бруса), крепим гидробарьер и забиваем вагонкой.
На противоположной вентилятору стенке отмечаем отверстие для дымогенератора.
Делаем заготовку для крыши: четыре бруска, запиленных под 45 градусов. Длина каждого — 65 см.
Из брусков-заготовок собираем крышу
Собираем крышу на уголки и зашиваем фронтоны вагонкой.
Сверху также бьём вагонку, одну сторону можно сделать открывающейся.
Результат:
Готовая коптильня из вагонки
Баллон для газа
Изготовить коптильню из газового баллона несложно, для этого нужно:
- Выкрутить вентиль из газового баллона, предварительно убедившись, что в нем не осталось газа. Сделать это можно с помощью трубного или кольцевого ключа. После того, как вентиль будет удален, оставить баллон проветриваться на свежем воздухе на несколько дней.
- После извлечения вентиля нужно заполнить баллон водой: это поможет вытеснить оставшийся газ. Лучше всего повторить эту манипуляцию трижды.
- В емкости вырезать отверстие под дымоход и два отверстия для соединения баллонов. Это можно сделать кольцевой пилой, но лучше воспользоваться плазменным резаком.
- Вырезать дверцу вдоль баллона.
- Сделать систему регулирования потока воздуха и дыма. Для этого пластину с треугольными отверстиями приварить к дымоходу. Еще одну такую же пластину прикрепить к верхней части дымовой камеры.
- Сварить дымовую камеру с печкой.
- Установить дверцу. По ее краям приварить стальную ленту (35 мм). На дверцу приварить ручку для открывания.
- Установить внутри баллона решетки, приварив для их фиксации железные уголки.
- В нижней части камеры установить поддон для сбора жира.

Установить баллон, развести под ним огонь, и приступить к копчению.
Полугорячее и горячее копчение
Такие виды копчения выполняются при температуре в 60-80 и 80-120 градусов соответственно. Нейтрализация ПАУ в этом случае ведется «проскоком»: спустя несколько минут при данной температуре на продуктах образуется довольно плотная «зажаристая» корочка, которая оказывается непреодолимым препятствием для вредных составляющих дыма. Им остается «проскочить» в трубу, раз впитаться в готовящееся мясо (или рыбу) нет никакой возможности. А вот легкие невредные компоненты дыма корочку преодолевают без труда.
В процессе полу- и горячего копчения сырье проходит еще и тепловую обработку, поэтому готовый продукт получается нежным, с гораздо более тонким вкусом и ароматом, нежели тот, что получен методом дымного обкуривания. К тому же жир при горячем копчении частично вытапливается (только обязательно нужно следить, чтобы он не попал в очаг). Один минус: «лежкость» у таких продуктов практически отсутствует. Они хранятся до 72 часов, не более.
Ни для полугорячего, ни для горячего способов копчения не нужно предварительной подготовки продуктов. Отлично подходят для такой готовки птица и деликатесные виды рыбы, а также домашняя колбаса и сыр.
Стандартная горячая коптильня обязательно снабжается поддоном для сборки вытапливающегося жира, установленным непосредственно в коптильной камере. А вот чтобы приготовить мелкую рыбешку (например) способом горячего копчения, можно использовать просто ведро-коптильню:
Ведро необходимо взять из нержавеющей стали (оцинкованное просто прогорит, испортив «до кучи» и продукт копчения). А сетки для продукта разместить в этом ведре строго в тех местах, что обозначены на схеме. При этом рыба, что пожирнее, укладывается на верхнюю сетку, а мелочь отправляется на сетку нижнюю.
Важно: В ведре-коптильне в качестве топлива использовать нужно только коптильные материалы без смол. Категорически не подходят для этого щепа можжевельника или ольхи, а также прошлогодние хвойные шишки
С помощью перечисленного набора лучше обкуривать продукты в коптильне с длиной дымовода не менее 10 м и при естественной тяге.
Коптилка горячего копчения своими руками: материалы изготовления
Устройства, которые используются в домашних условиях, подразделяются на стационарные и мобильные. Первые из них требуют обустройства кирпичного основания, что позволяет избежать перекоса конструкции. Для монтажа фундамента используют следующие материалы:
кирпич (огнестойкий);

Для стационарной конструкции коптильни прежде всего необходим надёжный фундамент
- тротуарную плитку;
- цемент.
При сборке мобильных коптилен горячего и холодного копчения своими руками необходимо заострить внимание на одном моменте, который позволит увеличить универсальность устройства. Такие приборы рекомендуется оснащать металлическими ручками для удобства транспортировки
Чаще всего материалом, из которого изготавливаются коптильные камеры, служит стальной лист. Он не должен быть слишком тонким, иначе конструкция прогорит. Желательно, чтобы этот показатель был не ниже 1 мм. Для сборки резервуара больше всего подходит нержавеющая или оцинкованная сталь. Такие металлы обладают не только высокой огнеупорностью, но и устойчивостью к коррозийным воздействиям.
В случае необходимости данный агрегат можно купить. Коптильни горячего копчения имеют разную стоимость. При сборке коптилки горячего типа своими руками нередко применяют подручные материалы. Среди них можно выделить металлические ведра и бочки, а также газовые баллоны. Существуют стационарные модели, для изготовления которых используется кирпич. Такие устройства могут прослужить несколько десятилетий в зависимости от того, насколько надежно была выполнена как сама конструкция, так и ее основание.

При изготовлении коптилки горячего кпчения своими руками нередко применяют подручные материалы
Коптильня своими руками горячего копчения: размеры
Перед составлением чертежа коптилки необходимо определиться с вопросом, для чего она будет использоваться
Важно сразу рассчитать количество продуктов питания, которые будут располагаться в ней за 1 раз. В зависимости от этого определяются габариты будущей конструкции
Во время расчета размера агрегата стоит учесть, что продукты должны находиться на удалении друг от друга. Такая дистанция необходима для свободного проникновения дыма к каждому продукту. Оптимальное расстояние в этом случае составляет приблизительно 6 см
Во время определения габаритов коптильни горячего копчения для рыбы и мяса также берутся во внимание и другие показатели:
- дистанция от топлива до собирательного поддона;
- расстояние от поддона до продуктов;
- дистанция от продуктов до крышки коптилки.

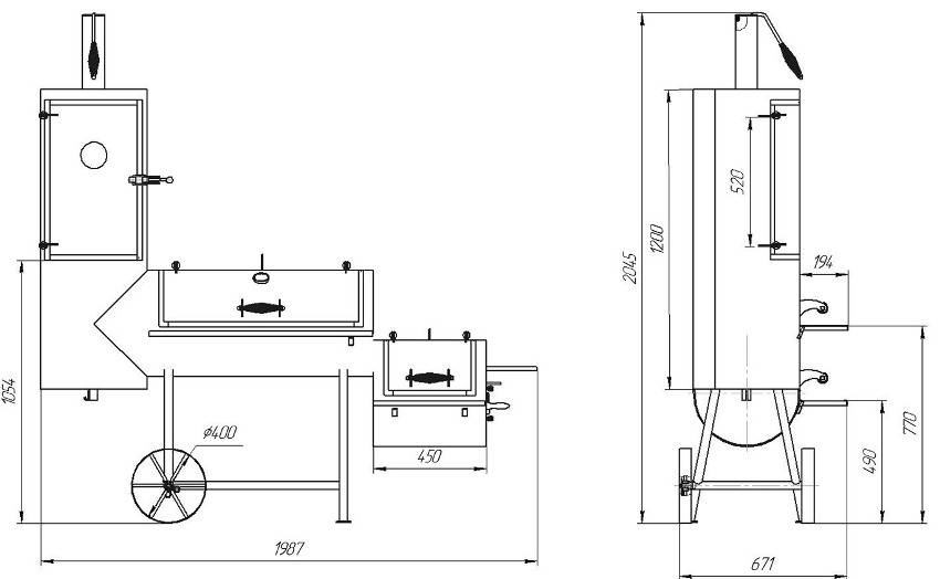
Схема с размерами коптильни горячего копчения
В случае если вы хотите собрать коптильный агрегат для дачи или частного дома, то тогда можно изготовить более габаритную конструкцию. Стандартный вариант коптилки в этом случае имеет следующие размеры: 50х30х30 см. Показатель толщины стенок такого устройства должен составлять не менее 2 мм. Такие агрегаты позволяют проводить горячее копчение свинины, говядины, рыбы, сыра, овощей и грибов.
В свою очередь, расчет габаритов домашней коптилки, которая будет располагаться на кухне, целиком и полностью зависит от размеров варочной панели. Стандартный вариант плиты, как правило, имеет размер 50х60 см. Руководствуясь этими показателями, можно подобрать оптимальное устройство для копчения. Специалисты рекомендуют покупать коптилки 45х25х25 см (для стандартных плит).
Статья по теме:
Почему коптильня на своём участке – это постоянная выгода и удобство?
Имея свою коптильню, можно без ограничения, в любое время, побаловать своих родных и близких вкусными блюдами, приготовленными собственным трудом. Копченые блюда нравятся очень многим, но не каждый может себе позволить приобретать их часто, ведь цена у них тоже не маленькая. Ко всему прочему, простой покупатель никогда не сможет узнать, как, в каких условиях приготавливался продукт, действительно ли его коптили или же просто применили какие-либо вкусовые добавки. Так или иначе, домашнее копчение, пусть даже на примитивной коптилке, сложенной не очень красиво, гораздо лучше, полезнее и вкуснее.
Собираясь заниматься копчением продуктов на дому, не стоит забывать, что традиционно существует два способа копчения, поэтому различают коптильни:
- горячего вида;
- холодного вида.
Какой способ выбрать – это довольно простой вопрос. Если есть желание быстро, не тратя много времени и сил, приготовить рыбу или мясо и не затруднять себя строительством коптильни для холодного копчения, то, конечно, выходом из ситуации будет горячее копчение. Время, за которое продукт будет коптиться – всего лишь 15–20 минут. Холодная же коптильня, напротив, требует гораздо больше сил и внимания, приготовление пищи может занять от 3 до 5 дней.
Пищевая фольга
Если потребность в копчении возникает достаточно редко, можно делать одноразовые коптильни из пищевой фольги. Этот материал нетоксичен, хорошо совмещается с любым продуктом, в том числе с рыбой, идеальный вариант походной коптильни.
Закоптить рыбу этим способом достаточно просто, нужно сделать:
- Взять пищевую фольгу (рулон) и 10 зеленых листьев с любого фруктового дерева или кустарника.
- Отрезать голову у рыбы, вынуть внутренности. Чистить не нужно: чешуя защитит рыбу от пригорания. Промыть и высушить рыбу в течение 20 минут.
- Отрезать лист фольги с размерами 40х40 см, выложить на середину листья.
- Упаковать лист конвертом так, чтобы образовалась подушка. Ее стыки нужно тщательно прижать.
- Все углы на подушке из фольги срезать – это будут дымоотводы.
- Подвернуть края фольговой подушки, должно получиться подобие лодочки.
- Уложить конверт на большой лист фольги, сверху заложить рыбу. Нижний край фольги завернуть слева и справа, прикрыть продукт, потом завернуть фольгой снизу и сверху.
- Поставить на огонь.


































