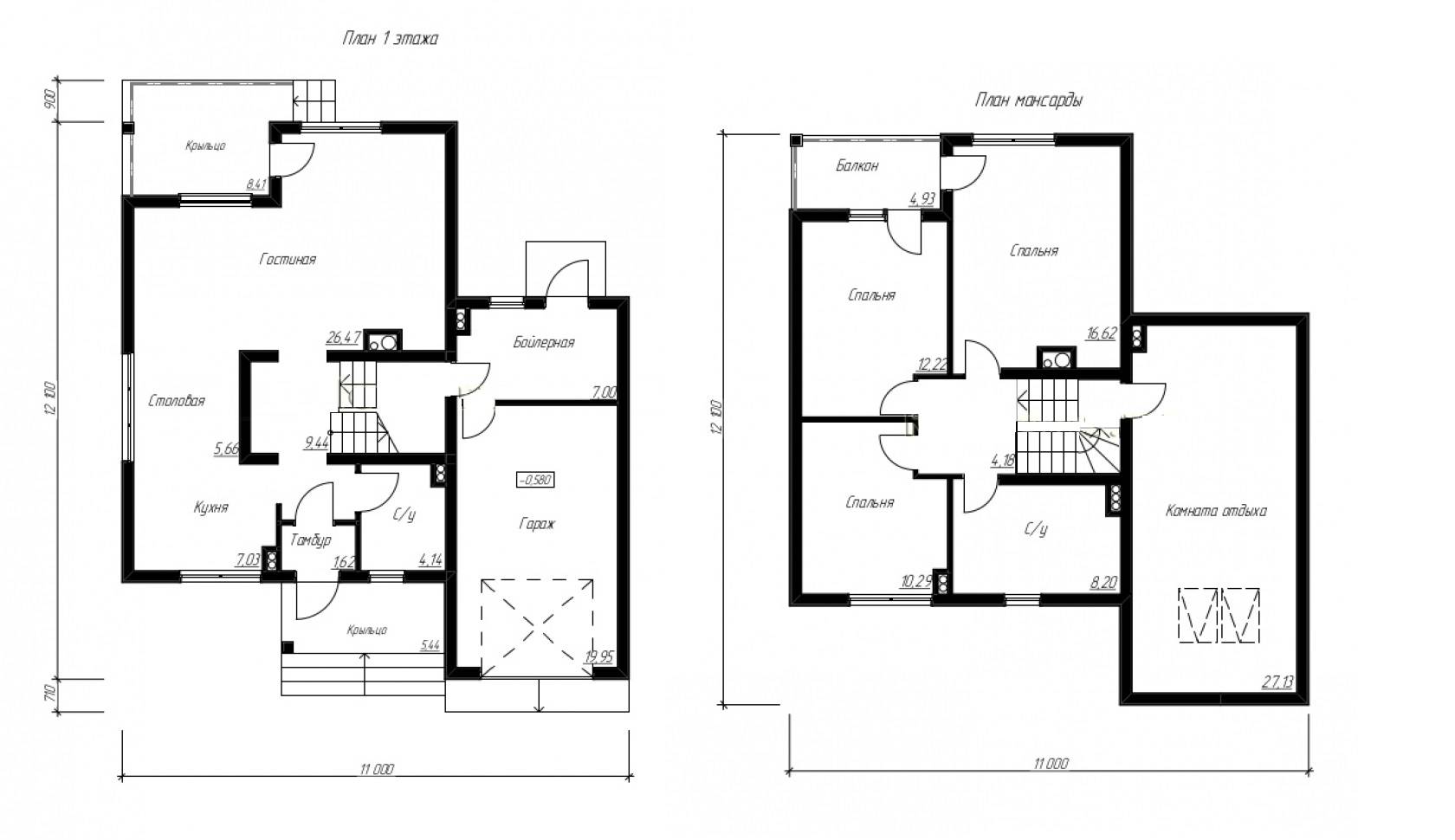
Выбор проекта
Грамотно составленный проект является залогом качественной стройки, а при его составлении необходимо внимательно изучить все детали.
Нужно утвердить площадь планируемого строения. Существует разница между площадью по внешним осям и внутренним
Потому, при составлении проекта, берут во внимание желаемые габариты по внутренним стенам
В проекте следует указывать коммуникационные сети: подвод воды, канализации, электрические сети, отопительная система, вентиляционная, иные детали. В момент проведения строительных работ возможно будут нужны их прокладка параллельно с осуществлением других работ.
В самом проекте должна содержаться информация о несущих элементах, а также составляющих отделки.
Так как в наше время большой ассортимент проектов есть в свободном доступе в сети Интернет, то подобрать что-то стоящее для заказчика не станет особой сложностью.
Потому большинство берут его уже в готовом виде. Но при этом есть смысл попросить помощи у профессионалов.
Популярные проекты
Качественные типовые и индивидуальные проекты каркасных строений с мансардой и верандой являются гарантией того, что будут созданы комфортные условия проживания в жилище в течение длительного времени. В последнее время, в основном, большая часть собственников останавливается на типовых проектах, поскольку альтернативные варианты и другие готовые решения отвечают всем требованиям и дают возможность обеспечить комфорт в помещении.
- Типовой проект позволит в значительной мере уменьшить материальные расходы и максимальным образом ускорить строительство коттеджа с мансардой. Экономия не будет означать, необходимость выбора из 2-3 вариантов. Выбирать можно будет из большого количества типовых проектов каркасных строений с террасой экономного и элитного вариантов. В подобном проекте все предусматривается до деталей.
- Индивидуальный вариант выйдет несколько дороже, но неоспоримым преимуществом будет высказывание всех пожеланий, при его планировке. Разрабатывают его будет выполняться ведущими специалистами, обладающие большим практическим опытом.
- Индивидуализированный проект — адаптируется типовый непосредственно под клиента. В них по желанию вносятся изменения, кардинально сам стиль не меняется. Их цена ориентировочная. Потому если заказчика не устраивают определенные детали в обыкновенном проекте, можно заказать индивидуализированный вариант.
Как построить каркасный второй этаж

Продолжаем цикл статей на тему “Как построить дом”. Вот мы и добрались до второго этажа каркасного дома. Мы уже определили в прошлых статьях, что первый этаж каркасного дома вместе с фундаментом нам обойдётся максимум в 350 000 рублей.
На этом этапе строительство основной части дома в принципе можно было бы и закончить, осталось бы добавить односкатную крышу, а это ещё 30000 рублей, вставить окна и двери, и можно заниматься благоустройством, живя в этом доме, и по мере сил и возможностей доделывать всякие разные мелочи.
Хотя в этом есть и своё рациональное зерно. Зачем городить два этажа сразу при дефиците денег, когда можно построить один этаж но капитально, то есть до конца, а уж потом по мере необходимости и возможностей построить второй этаж. Причём, при строительстве дома, я взял не самый экономичный вариант по расходу материалов. Можно было бы примерно тысяч 50 сэкономить как минимум, и на эти деньги построить двускатную крышу или мансарду.
Стены второго этажа каркасного дома
Строительство стен второго этажа не чем не отличается с строительства стен первого этажа.
Второй этаж каркасного дома
К тому же задача у нас намного упростилась, мы закончили гараж.
Также как и на первом этаже мы сделаем верхнюю обвязку каркаса стен.
Итого на стены мы потратим 19500 рублей.
Утепление стен и потолка каркасного дома
Итак площадь стен второго этажа у нас составляет порядка 100 кв/м. Площадь потолка составляет 60 кв/м.
Второй этаж каркасного дома своими руками
Как мы выяснили ранее, цена утеплителя толщиной 150 мм стоит порядка 250 рублей за кв/м. Итого мы потратим на утеплитель 40 000 рублей.
Общая статья расходов на утепление стен и потолка составляет 46000 рублей.
OSB на фасад потолок и черновую крышу
Площадь стен второго этажа у нас составляет 100 кв/м, цена osb составляет 200 рублей за кв/м. Получаем 20000 рублей.
Площадь потолка и черновой крыши в общей сложности 120 кв/м. Итого на osb потратим 24 000.
Итог затраты на осб 44000 рублей.
Односкатная крыша каркасного дома
В принципе, на этом этапе опять можно сэкономить, сделать крышу прямой. Но экономия тут довольно призрачна поэтому сделаем как по проекту. Хотя мне нравятся дома с прямой крышей и мы обязательно сделаем такой дом. И так, нам понадобится 34 доски на фермы по 300 рублей. Получим расходов 10200 рублей.
Второй этаж каркасного дома
Второй этаж каркасного дома
Кровля 170 рублей кв/м. на кровлю нам понадобится порядка 72 кв/м. металлочерепицы. Итого на металлочерепицу нам понадобится 12240 рублей.
Крыша нам обойдётся в 35 000 рублей.
Итог на возведение второго этажа у нас получается на материалы 155440 рублей.
Второй этаж каркасного дома ИТОГ
Итого 524 000 рублей. что в принципе не далеко от заявленной стоимости. Как я же говорил, что можно ещё было с экономить и мы смело уложимся в эту сумму. Но кривить душой мы не будем, и признаем что 500 тысяч для такого дома это конечно мало. Тут следует прибавить ещё окна и двери это порядка ещё тысяч 50. Отделка внутренних стен гипсокартоном это ещё приблизительно тысяч 30. Покраска фасада, тут цены варьируются.
Электрика. Как показал подсчёт, что такой дом по скромным прикидкам обойдётся в тысяч 700. Но смысл в том, что бы начать строить такой дом при ограниченном бюджете, нужно иметь на руках 500 000 рублей. И не платить огромные проценты банку а достраивать по мере возможности уже живя в этом доме. Достаточно построить один этаж под ключ, а второй пристроить по мере возможности.
И всё таки не будем забывать что площадь дома будет 130 кв/м.
Чертежи стропильной системы
Любое упоминание о мансарде ассоциируется с объёмной «пятиугольной» крышей, в которой можно жить, но существуют и другие варианты.
Односкатная
Предельно простая, надёжная односкатная мансардная крыша. Благодаря прямолинейным формам выглядит скромно, но элегантно. Особой респектабельности добавляют большие панорамные окна «в пол», ведь такая конструкция не просто позволяет, а провоцирует их установку.
Дом с односкатной крышей, с окнами почти на всю стену Источник drevogid.com
Стропильная система очень проста: прямые стропила единственного ската опираются на мауэрлат противоположных стен разной высоты, а если необходимо на промежуточные опоры. Пропорции стен подбираются под уклон в 35-45 градусов, что гарантирует устойчивость ветровым нагрузкам и нормальный сход снега.
Схема односкатной крыши для мансарды Источник dvorakdesign.ru
Объём задействуется эффективно – при желании, это дополнительный полноценный этаж, так как полезная площадь равна площади предыдущего этажа.
Двускатная
Относительно несложная широко распространённая крыша. Выглядит незатейливо, но внушает доверие, так как поддерживает традиции характерные русскому стилю. Как следствие, специально под мансарду проектируется редко, чаще адаптируется в готовом виде.
Двускатная крыша – традиционная, и чаще всего выбор падает на нее Источник dekoriko.ru
Конструктивно проста – технические характеристики и стропильная система как у обычной двускатной крыши. Прямые стропила опираются на мауэрлат, под углом сведены в конёк. Фронтоны треугольной формы, прямые, отвесные, практически всегда остеклённые, часто с выходом на балкон.
Чаще всего применяют подобную схему для обустройства мансарды в небольшом доме с двускатной крышей Источник csgoshik.ru
Полностью задействовать объём проблематично, но можно, даже нужно. Полезная площадь сравнительно невелика, потолок обычно «ломаный». Однако, умелой компоновкой мебели, смелыми дизайнерскими решениями недостатки можно обратить в достоинства.
Ломаная
Самый популярный вариант – ломаная крыша с мансардой. Что совсем неудивительно – несмотря на сложность он наиболее удобный и практичный. Габаритные формы и ломаные линии символизируют основательность и профессионализм. Внешний вид этой крыши «по умолчанию» ассоциируется с «мансардой». Это вполне естественно – она целенаправленно проектируется под жилое помещение.
Чтобы добавить пространства на мансардном этаже предпочтение отдают ломаной крыше Источник lbuilding.ru
Стропильная система достаточно сложная, но её достоинства стоят затраченных средств и усилий. Характерные пятиугольные фронтоны, с функционалом как у двускатной крыши – та же возможность вставить окна, устроить выход на балкон.
Схема более сложная, но дает больше пространства Источник moiton.ru
Просторная мансарда крыши частного дома. Объём задействуется по максимуму – при полноценной высоте, полезная площадь помещения равна или немногим меньше, чем у предыдущего этажа.
Полы
Когда все деревянные брусья уложены и связаны друг с другом и с фундаментом, в них формируются пазы и размещаются напольные лаги (доска 50х150 мм). Верхняя часть лаг выверяется по горизонтали, а по низу прибиваются доски — они будут служить основой для устройства чернового пола. На получившееся досчатое основание укладывается мембранная изоляция (не допускает выветривания и намокания утеплителя, при этом не препятствует выходу наружу водяных паров). В промежутки между лагами нужно запрессовать утеплитель (минвату или пенопласт) и укрыть пароизоляцией. Сверху настилается обрезная доска (40х15 мм).
Схема устройства пола
Дома для постоянного проживания: популярные проекты
А теперь рассмотрим наиболее популярные размеры каркасных домов с мансардой. Как мы уже знаем, дома с мансардами любят за отличное сочетание стоимости и получаемой полезной площади жилья. Однако какие габариты строения позволяют снизить количество отходов стройматериалов и тем самым сократить траты на возведение дома? Как известно, материалы, использующиеся для постройки каркаса и стропильной системы, имеют длину около шести метров. Следовательно, дома размером 6 на 6 являются одним из самых привлекательных вариантов бюджетного строительства и пользуются огромным спросом.
Типичный каркасный дом с мансардой не перегружен декоративными элементами снаружи и не имеет сложной планировки.

Каркасный дом 6*6 с мансардой 4*5
В таком варианте реализации каркасного дома мы получаем мансарду размером 4 на 5 метра. В случае, если к дому будет пристроена терраса, то обустройство общего капитального основания придаст устойчивость всей каркасной конструкции.
Дом с нависающей мансардой
Такой проект представляет собой каркасный дом с просторной террасой и мансардой. Использование подобного подхода позволяет увеличить площадь второго этажа. Террасу можно расположить как спереди здания, так и сбоку.

Как можно улучшить внешний вид каркасного дома с мансардой размерами 6 на 6 метров? Стоит обратить внимание на внешнюю отделку дома. Существует несколько подходов к ее реализации. Первый из них – создать отделку в классическом американском стиле из винилового сайдинга и металлической черепицы
Второй – использование мягкой черепицы и декор фасада в стиле фахверк. Стоимость реализации двух вариантов в принципе схожая. Какой придется вам по душе – тот и будет радовать вас годами
Первый из них – создать отделку в классическом американском стиле из винилового сайдинга и металлической черепицы. Второй – использование мягкой черепицы и декор фасада в стиле фахверк. Стоимость реализации двух вариантов в принципе схожая. Какой придется вам по душе – тот и будет радовать вас годами.
Он дает возможность не только улучшить внешний вид дома, но и создать уютный интерьер. Вместе с использованием двухскатной кровли эркер впечатлит не только ваших друзей, знакомых и соседей, но даже профессиональных строителей каркасных домов.
Помимо этого к дому можно пристроить балкон на втором этаже чтобы иметь возможность любоваться звездным небом не выходя из здания.
Балкон подходит к использованию вместе с «ломанной» крышей или мансардой с высоким коньком. К слову о кровле. Ее тоже можно сделать нетипичной. Среди вариантов:
- Неравноскатная крыша;
- Двухскатная с «кукшкой»;
- Полувальмовая или вальмовая.
Все перечисленное можно реализовать на базе дома размером «шесть на шесть». Кое-что можно обустроить и своими силами, почти ничего не затратив, а остальное придется возводить руками профессионалов за соответствующее сложности вознаграждение.
Дома до сотни квадратный метров
Помимо каркасных домов габаритами 6*6 существует масса других проектов с интересными планировками. Больше площади – больше пространства для реализации нестандартный решений по планировке и фасадам.
Дом 6*8
Подобный проект каркасного дома с мансардой дает возможность «поэкспериментировать» со сложностью кровли, использовав двухскатную форму с разными скатами, а также оптимизировать внутреннее пространство здания, разместив лестницу в просторном холле и сэкономив жилое пространство.

Еще возведение такого каркасного дома с мансардой позволяет установить «кукушку» на крыше использовав один скат кровли.
Дома больше 100 кв.м.
Некоторые люди полагают, что построить большой дом по каркасной технологии невозможно, однако зарубежный опыт показывает что это не соответствует действительности. Потому изучим проекты, рассчитанные на большую семью.

Дом 6*10
Отличительная черта такого каркасного дома с мансардой может заключаться в планировке. Так, второй этаж можно использовать под обустройство огромной спальни с выходом на балкон.
Каркасный дом 8*10
Подобный дом можно возвести с вальмовой кровлей, что позволит существенно увеличить полезную площадь мансардного этажа, получив при этом фактически полноценный двухэтажный дом.

Дом с мансардой 11*12
В конце статьи у нас на обзоре каркасный дом с мансардой, имеющий сложную планировку. Постройка подобного здания требует привлечения большой бригады строителей и специальной техники, а также создания сложного плана, в котором будет учтена каждая мелочь, каждый элемент конструкции. Конечно, профессионалы могут построить такой дом всего за несколько месяцев. Однако построить подобный каркасный дом с обустроенной мансардой своими руками будет проблематично.

Делаем нижнюю обвязку дома и черновой пол
Когда фундамент готов и полностью высох, его обвязывают. Это нужно для того, чтобы сделать основание каркасного дома более прочным и устойчивым.
Выбранная порода древесины для каркасного дома из дерева подойдет и для обвязки, но только при том условии, что брус достаточно толстый (не меньше 15х15 см, а лучше – хотя бы 20х20 см).
Нижнюю обвязку проводят так:
- Укладывают слой рубероида для фундамента. Можно 2 слоя – один на другой, без какой-либо прослойки между ними. Этот материал нужен для гидроизоляции. Если фундамент свайный, то верхушки свай лучше смазать мастикой перед тем, как класть рубероид.
- Устанавливают деревянный брус. Его размещают по периметру фундамента, а также в местах межкомнатных перегородок. Стыки брусков нужно делать с напуском, вырезая на краях «пазы» размером от 20 см и более. Предварительно брус обрабатывают специальным антисептиком для дерева, чтобы защитить от гниения и паразитов.
- Соединяют брус. Удобнее всего делать это гвоздями длиной 120 мм. Гвоздь должен входить как минимум до середины бруска, но ни в коем случае не проходить насквозь.
- Укрепляют угловые стыки металлическими уголками. Для того, чтобы прибить такие уголки, нужны гвозди поменьше – около 60 мм в длину.
- Фиксируют обвязку. Всю конструкцию привинчивают к фундаменту крепежными винтами.
Чтобы полностью собрать каркас дома, поверх обвязки делают черновой пол из такого же бруса. Для этого:
- Кладут лаги (поперечные балки). Их размер поменьше – до 15х10 см. Рекомендуемый шаг (расстояние между брусками) – от 50 до 60 см.
- Прикрепляют балки к обвязке теми же металлическими уголками.
- Между лагами размещают утеплитель, поверх которого кладут пленку для пароизоляции.
- Всю конструкцию покрывают фанерой или другим покрытием. Между листами фанеры промежутков быть не должно. Их прибивают или привинчивают к лагам.
Когда на таком полу строят каркасные дома из дерева, они оказываются прочными и очень устойчивыми.
Монтаж кровли
Каркасный дом 6х8 с мансардой – отличный вариант для тех, кто старается увеличить количество квадратных метров в доме любым доступным образом. Чаще всего, когда речь идет о мансарде, мы представляем себе скатную крышу, под которой расположена какая-либо комната дома. На самом деле мансардой считается любое чердачное помещение. В зависимости от того, какого вида ваша крыша, существуют те или иные способы вписать в помещение жилую комнату.
Мансардный этаж с двухскатной крышей.
Обратите внимание на то, что любую мансарду можно разбить на простые геометрические фигуры, это позволит наглядно понять, как распределяется нагрузка и организовать правильное крепление. Вычислить, какую нагрузку будет испытывать мансарда можно по схемам, которые используются при расчете нагрузки кровли любого типа
Нагрузка должна быть рассчитана в зависимости от региона, в котором проводится строительство каркасного дома 6х9 с мансардой, учитывайте и уклон скатов.
На заметку
Материалы для мансардной крыши лучше подбирать такие же, которые использовались для каркаса здания. Конструкция должна быть максимально легкой, только так получится минимизировать нагрузку на фундамент.
К другим преимуществам конструкции можно отнести то, что для их сборки требуется минимальный набор инструментов, в основном это электроножовка и пистолет для забивания гвоздей.
Дачный каркасный дом с мансардой отличается рядом преимуществ, среди которых можно отметить разборную конструкцию мансардного этажа. Вы в любой момент можно перестроить мансарду по новому проекту.
Утепление постройки
Чтобы было уютно находиться не только в летнее время года, но и зимой на мансарде каркасного дома, стоит побеспокоиться о правильном утеплении крыши. Лучше использовать легкие утеплительные материалы, однако есть проблема гула на крыше, этот недостаток присущ всем каркасным конструкциям. Самым распространенным утеплителем является стекловата либо минеральная вата, она отличается простотой в монтаже и невысокой стоимостью.
Утепление мансардного этажа.
Утепление мансарды лучше проводить поэтапно. На первом этапе проводятся работы по теплоизоляции самой крыши. Места находящиеся под уклоном, лучше утеплять материалами, которые по истечению некоторого времени не поменяют своего внешнего вида. Здесь лучше отдать предпочтение базальтовой вате.
На следующем этапе мастер должен произвести утепление перекрытий. Если перекрытия выполнены из деревянных балок, между балками, необходимо проложить черновой пол, на который будет стелиться теплоизоляционный материал. Не забывайте об организации влагозащитного слоя.
Судя по отзывам, минусами каркасным домов с мансардой является высокая шумность в помещении, именно поэтому желательно использовать не только утеплитель, но и материал с хорошей звукоизоляцией.
На следующей стадии стоит произвести утепление фронтона. Материал для утепления этой части используется материал, который подбирается в зависимости от конструкции самого дома.
Завершающим этапом является утепление перегородок. Для этих целей лучше отдать предпочтение минеральной вате, которая отличается небольшим весом и защитой от возгорания. К преимуществам такой изоляции можно отнести способность сохранять тепло внутри помещения.
На заметку
Обязательно позаботьтесь об организации гидроизоляционного слоя. В таком случае вы защитите утеплитель от лишней влаги и значительно продлите срок его службы.
Каркасные дома только начинают становиться популярными в нашей стране. К их главным достоинствам можно отнести легкость при монтаже и демонтаже, а также невысокую стоимость расходных материалов. На сайте вы сможете вы найдете фото каркасных домов с мансардной, среди которых, возможно, сможете позаимствовать идеи для своего дачного жилища.
Видео: нюансы мансардного этажа каркасного дома
Обязательно посмотрите видео, в котором профессиональные застройщики делятся секретами возведения мансарды в доме каркасного типа.

Строительство мансардного этажа – способ увеличить полезную площадь дома без лишних трат. Полноценная надстройка второго этажа вызывает значительно увеличение веса дома, а следовательно – потребуется усиление фундамента, да и стоимость материалов на возведение объекта повысится значительно.
Один из лучших вариантов надстроить мансарду без ненужных затрат – выбрать каркасную технологию для ее возведения. Сам дом может быть из бруса, кирпича, блоков, а верхний дополнительный этаж – каркас, утеплитель обшивка. Что это дает?
- Высокая степень теплосбережения, снижение затрат на отопление.
- Высокая скорость сборки.
- Малый вес конструкции.
Каркасный мансардный этаж – выход при ограниченном бюджете на строительство, работа и материалы будут стоить на 20-50% меньше, чем случае с газоблоками, кирпичом, брусом. Расходы на монтаж основания под дом также будут ниже, чем в случае выбора тяжелых материалов для мансардного этажа.
Этапы строительства: как построить хороший дом
После того как определен план каркасного дома с мансардой и выбраны строительные материалы, можно приступать к непосредственному строительству. Строительство сооружения проходит в несколько этапов.
Этап первый – фундамент всему голова

столбчатый фундамент каркасного дома
Не удивительно, что возведение канадского дома, как и любого другого, начинается с фундамента. Основание для каркаса имеет огромное значение. На первом же этапе проявляется особое преимущество легкой конструкции – фундамент можно использовать недорогой – ленточный мелкозаглубленный или столбчатый. Наиболее популярным в средней полосе России все же является ленточный фундамент, поэтому рассмотрим строительство дома на его примере.
Почва под ленточный фундамент должна обладать средней плотностью, участок под дом должен быть ровным.

таблица расчетных показателей сопротивления грунта при возведении фундамента каркасного дома
Для одноэтажного дома с мансардой достаточно будет заглубить 40 сантиметров ленты, при этом использование песчаной подушки является обязательным, также, как и армирование фундамента. Необходимо сделать и вентиляционные продухи. Оптимальная толщина ленты – 30 сантиметров, цоколь – 50 сантиметров. Для строительства фундамента двухэтажного каркасного дома с мансардой оптимальная толщина ленты составляет 45 сантиметров.
Обратите внимание, легкая каркасная конструкция может быть поставлена даже на старый фундамент если основание отвечает заявленным требованиям
Этап второй – возводим стены

схематическое изображение стены каркасного дома
Для собственноручного сооружения дома наиболее подходящими являются проекты каркасно-рамочных домов, их возведение не требует использования специальной строительной техники. Необходимые материалы:
- Каркасный брус.
- Обрезная доска для обшивки.
- Пена монтажная.
- Рубероид.
- Материалы крепежные.
В первую очередь устанавливаются вертикальные стойки здания, для того чтобы вычислить их правильный размер, следует подсчитать суммарную длину каждой стены. К примеру, каркасный дом 6х8 с мансардой будет иметь длину 28 метров. Стойки расставляют через каждые 50 сантиметров, кроме тех мест, где будут окна, там проем должен составлять не менее 1,2 метров.
Перед возведением стен необходимо выполнить гидроизоляционную подложку из рубероида. Рубероид застилают между закладным брусом и фундаментом.
Брус каркасный соединяют следующим способом: на концах бруса делают выпиливания, для прочности используют деревянные нагеля, вбивая их в места соединения.
Этап третий – утепляем стены
В качестве утеплителя для стен можно использовать органические и неорганические материалы, наиболее востребованным являются пенопласт и минеральная вата. Перед непосредственным утеплением производят закладку гидроизоляционных материалов, используя пергамент, который крепится внахлест к стене при помощи деревянных реек. Внутреннюю часть дома можно обшить шпунтованной доской, половые доски уходить под стену не должны.
Этап четвертый – монтируем мансарду

мансардный этаж каркасного дома
Для того чтобы в мансарде можно было жить, нужно обеспечить ей высокие теплоизоляционные свойства. Каркас мансарды сооружается из тех же материалов, что и весь дом. Для утепления этой части жилища используют светоотражающую пленку, пенопласт и стекловату.
Этап пятый – кровля
Последний этап заключается в кровле крыши. Кровельные материалы для каркасного дома используются легкие. Монтаж начинается с “шапки”, которая состоит из латов, стропил в виде буквы “А”. Сначала они крепятся внутри, а затем снаружи. После закрепления пароизоляционной пленки, монтируется теплоизоляционный материал. Далее застилаются кровельные материалы, к примеру, металлочерепица.
Строительство мансарды своими руками – что нужно знать?
Возьмем за основу вариант постройки мансардного помещения в полностью готовом и введенном в эксплуатацию доме. Сначала необходимо произвести демонтаж старых кровельных перекрытий. Это способствует повышению безопасности постройки и помогает увеличить пространство под кровлей.
Демонтировать кровлю можно самостоятельно, не привлекая к работам специализированных строителей. На первых этапах демонтажа рекомендуется убрать внешний стройматериал кровли и убирать старую стропильную систему.
После вышеперечисленных мероприятий необходимо заняться укреплением стен, на которые мансардное помещение будет оказывать непосредственное давящее воздействие. Необходимые для этого расчеты заложены в проектной документации.
Далее пойдут мероприятия по гидроизоляции и теплоизоляции пола помещения, с другой стороны – потолка предыдущего этажа. Это важный этап, от которого зависит комфорт нахождения на будущем мансардном этаже. В качестве утеплительных материалов можно взять пенополистирол, минвату, пенополиуретан и другие.
Следующий этап – строительство стен мансарды. Здесь вновь на помощь приходит разработанный ранее проект. Самыми популярными материалами для построения стен обычно выступают брус и дерево. При выборе материалов для финишных отделочных работ необходимо учитывать фактор пожаростойкости – чем показатели пожарной безопасности выше, тем лучше.
Далее необходимо построить кровлю
Важно правильно просчитать угол наклона кровли, в противном случае функциональность мансардного помещения будет низкой
Также особое внимание необходимо уделить грамотной гидроизоляции мансарды, иначе не избежать неприятных протечек
Не стоит конструировать сложные геометрические формы кровли, это значительно усложнит строительство и увеличит затраты на обустройство. При выборе утеплительных материалов предпочтение стоит отдавать влагостойким и морозостойким материалам, а также стройматериалам, устойчивым к перепадам температур и обладающим теплосберегающими свойствами.
Отдельно хочется выделить мероприятия, направленные на теплоизоляционные работы. Они включают в себя следующие действия:
- Установка основания из гипсокартона или фанеры;
- Настил слоя специальной пароизоляционной пленки;
- Непосредственный настил утепляющего материала;
- При помощи специализированных мембран произвести гидроизоляцию кровли;
- Уложить кровельный материал внешней отделки.
Завершающий этап построения кровли – установка оконных конструкций. Количество и размеры окон непосредственно зависят от площади мансардной постройки
Особое внимание необходимо уделить окну на потолке мансарды. Оно должно обладать высокой стойкостью перед всеми погодными катаклизмами и обеспечивать функцию проветривания помещения
После основных процессов по возведению мансарды необходимо произвести отделочные работы, провести систему отопления, самостоятельно или с помощью дизайнера оформить жилое пространство.
Что нужно знать перед составлением проекта дома
Главный мотив появления каркасных домов — снижение себестоимости жилищной застройки. Сегодня технологию используют повсеместно для возведения частного сектора и малогабаритных строений в несколько этажей. Задумав построить такое жильё, вы получите следующие преимущества:
- быстрота сборки;
- простота монтажа;
- высокий уровень теплоизоляции, который обеспечивают современные технические разработки (например, плиты OSB);
- снижение нагрузки на фундамент;
- возведение жилья в любое время года на любом типе грунта;
- возможность отделки сразу после фиксации строительных панелей.
Практика показывает: двум непрофессиональным рабочим под силу возвести одноэтажный каркасный дом площадью около 150-170 кв. м за срок до 1 мес. На 2-этажный (в том числе тот, где роль второго уровня исполняет мансарда) потребуется около 2 мес. В это входят заливка фундамента, сборка каркаса и панелей, наружная отделка, монтаж кровли, окон и утепление. Секрет — в шаблонности.
Возведение дома
Разметка проведена заранее в соответствии с индивидуальными особенностями чертежа вашего дома и с учётом типичных размеров большинства материалов из строймагазина. Подгонять или подпиливать практически ничего не нужно.
Внимание! Такие дома чаще всего обладают симметрией, как на фото, что также облегчает работы по монтажу.
Материалы могут иметь двойную функциональную нагрузку. Например, обрезная доска перед сборкой в каркас иногда используется для опалубки при возведении фундамента. Простоту технологии возведения подобных домов подтверждает отсутствие потребности в монтаже лесов. Не нужна и спецтехника: всё собирается на месте, а при необходимости может быть транспортировано парой рук.
































