Приступаем к работе
В интернете можно найти множество схем и способов изготовления разборного мангала. В рамках этой статьи рассмотрим один несложный вариант. Он заключается в следующем:
- Возьмите лист бумаги. На нем отметьте высоту ножек, размер стенок устройства, а также расстояние между прорезями в боковых элементах и отверстиями для шампуров.
- Выберите лист стали: чем толще металл, тем дольше прослужит изделие. Перенесите на него чертеж разборного мангала.
- Возьмите стальные листы и разрежьте их болгаркой, отступив от отметки 3-4 см.
- Дрелью сделайте в стенках отверстия.
- С помощью ножовки необходимо изготовить направляющие для шампуров по верхним краям боковых элементов конструкции.
- Надрежьте стенки и сделайте сгибы таким образом, чтобы углы можно было стыковать.
- Уложите дно.
- Просверлите в боковых сгибах дырки для болтов. Это необходимо для того, чтобы детали не рассыпались.
- Возьмите четыре прутья и приступите к изготовлению опор, на которые в дальнейшем следует нанести резьбу. Конструкция будет с отвинчивающимися ножками. Их также можно сделать из металлических уголков. Для этого нужно просверлить дырки для болтов. Чтобы опоры получившейся конструкции легко входили в землю, необходимо заострить их снизу.
- Ко дну ящика приварите гайки.
С помощью этой инструкции вы без труда изготовите мангал в домашних условиях.

Как сделать складной мангал
Подготовка инструментов и материала
Для любых работ по изготовлению мангала из металла потребуется одинаковая подготовка. Необходимо будет собрать следующие детали и инструменты:
- болгарка со сменными кругами;
- дрель;
- ножницы для металла;
- измерительные инструменты: линейка или рулетка;
- инструкцию по изготовлению;
- металлические листы;
- сварочный аппарат;
- устройство для создания резьбы;
- арматура или труба.

Выбор металла
Чтобы изготовить мангал своими руками из металла потребуется понять, как его правильно выбрать. Лучше всего использовать нержавейку или жароупорную сталь, толщина которой находится в пределах 2-5 мм. Листы в 5 мм будут самыми надежными и долговечными.

Простой походный мангал своими руками
Простой мангал разборный изготавливается в среднем на 10 шампуров. Конструкция будет собрана за счет создания пазов и крепежей, что исключает проведение сварочных работ. Оптимальные размеры жаровни: 280 мм х350 мм х240 мм. Глубину мангала можно сделать в пределах 150-180 мм.

Чертежи с размерами
Разборный мангал своими руками требует перенесения чертежей на металлические листы. На них придется отметить, где буду находиться пазы и отверстия.


Алгоритм изготовления
Чтобы изготовить разборный мангал своими руками потребуются чертежи и фото. Ориентируясь на них, можно действовать по следующему алгоритму:
- болгаркой осуществляют вырезание стенок мангала и прорезание в них пазов для дальнейшей эксплуатации механизма;
- прорезают в листах дно изделия с отверстием 10 мм для прохода воздушных потоков;
- шлифуют сборные элементы;
- собирают печь и проверяют ее в деле, устраняя имеющиеся недостатки;
- производят окраску жаропрочной краской.
Мангал дипломат своими руками
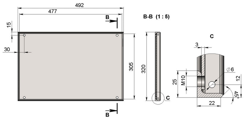
Разборные мангалы, которые называют дипломатами, имеют форму тонкого чемодана и изготавливаются строго по чертежам. В сложенном состоянии их глубина всего 14 мм, в разложенном – 168 мм.

Чертеж с размерами
Разборный мангал имеет чертеж с размерами и детальной инструкцией, где нужно сверлить отверстия, и как соединять между собой отдельные части печи.



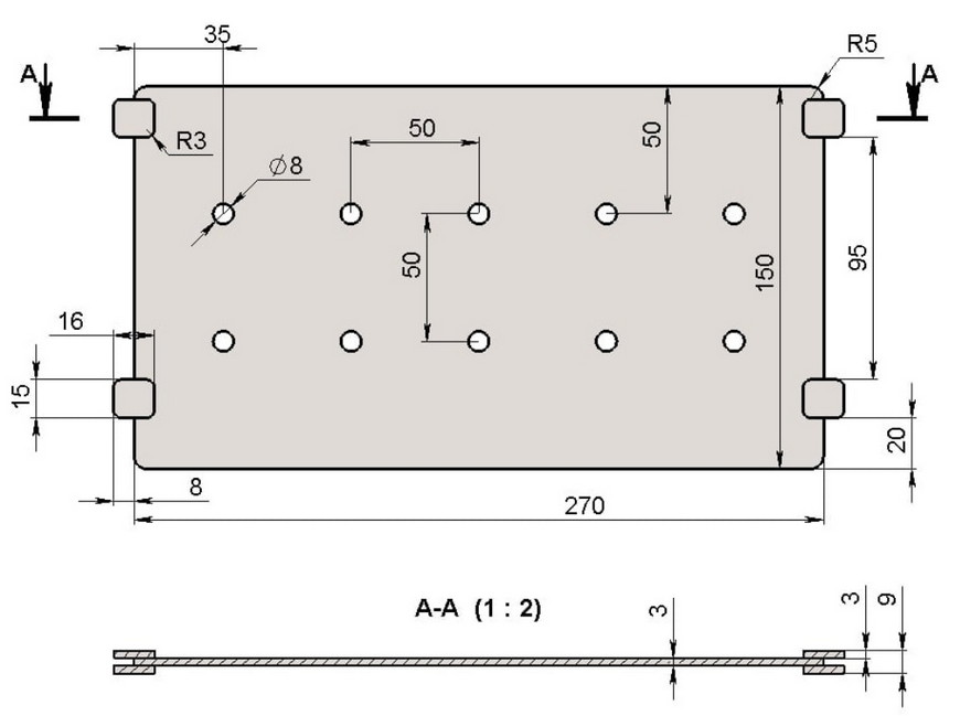
Схема изготовления складного мангала из нержавейки
Мангал разборный своими руками из нержавеющего металла изготавливается по следующей схеме:
- на металл переносится чертеж с размерами и отверстиями;
- отверстия просверливаются;
- болгаркой прочерчиваются линии сгиба;
- металл разрезается на части;
- с помощью тисков создаются линии сгиба;
- создаются оси для частей, которые будут поворачиваться;
- к днищу приваривается труба;
- боковые трубы привариваются к створкам;
- по аналогичной схеме выполняется еще одна створка;
- привариваются планки прочности;
- вырезаются с помощью болгарки отверстия под шампуры;
- создаётся конструкция съемных ног.
Изменение показателей в зависимости от материала изготовления мангала: размеры, чертежи
Прорабатывая чертёж мангала, следует помнить, что его размеры будут напрямую зависеть от того, из какого материала он изготавливается. Изделия из листового металла обычно меньше аналогов из кирпича. Именно поэтому, выбирая оптимальную высоту мангала для шашлыка из металла, нельзя ориентироваться на значения, рекомендованные для конструкций из кирпича.
Параметры изготавливаемого устройства зависят от материала ФОТО: pechi-kamin.ru
Кирпичные конструкции
Большой размер кирпича предъявляет определённые требования к габаритам готовой конструкции. Наличие дымохода, мойки или столешницы ещё больше увеличивает общие габариты
Именно поэтому очень важно разобраться, как правильно сделать мангал из кирпича
При изготовлении кирпичной конструкции учитывается ряд нюансов:
- ширина, длина и высота бортика подгоняется под стандартные параметры;
- глубина жаровни для мангала согласуется с форматом кирпича и толщиной формируемого шва. В зависимости от количества укладываемых рядов, она может быть 21 либо 28 см.
Параметры должны согласовываться с габаритами кирпича ФОТО: sc02.alicdn.com
Размеры и конструктивные особенности мангала из металла
Прорабатывая чертежи и выбирая размеры, важно помнить, как правильно сварить мангал, чтобы он смог прослужить очень долго, должным образом выполняя возложенную на него функцию. Для изготовления подобной конструкции могут использоваться не только новая листовая сталь, но и бывшие в употреблении изделия, имеющие подходящую длину
Некоторые пользователи для изготовления полукруглой модели используют старые металлические бочки и даже баллоны из-под газа
В зависимости от имеющихся в наличии элементов из металла, и выбираются оптимальные размеры мангала для шашлыка
Некоторые пользователи для изготовления полукруглой модели используют старые металлические бочки и даже баллоны из-под газа. В зависимости от имеющихся в наличии элементов из металла, и выбираются оптимальные размеры мангала для шашлыка.
Чтобы продлить срок службы металлической конструкции, стоит изначально выбирать листовой материал из нержавеющей стали либо после изготовления производить обработку специальными защитными составами. Даже небольшой слой позволит защитить металл от коррозии.
Для украшения используются различные декоративные элементы, включая ковку. В некоторых случаях используются подставки из-под старых швейных машинок. Предлагаем посмотреть фото того, как выглядят мангалы, изготовленные из металла. Возможно, что среди готовых решений вы увидите желанную для вас конструкцию и захотите стать её счастливым обладателем.
ФОТО: avatars.mds.yandex.net
ФОТО: unidoski.ru
ФОТО: images.ru.prom.st
ФОТО: avatars.mds.yandex.net
Watch this video on YouTube
Watch this video on YouTube
Watch this video on YouTube
Предыдущая БеседкаСтроительство беседки для дачи своими руками: чертежи, размеры, инструкции Следующая БеседкаДелаем беседку на даче своими руками
Подготовка к строительству мангала
Ширина мангала
Человек, который интересуется, как правильно сделать мангал, должен понимать, что очень важно грамотно распланировать работу. Начать необходимо с определения размеров будущего мангала, разработки эскиза
Ширина мангала диктуется размером шампуров. Минимальная длина последних составляет 30 см, однако ширина проектируемой конструкции должна определяться шампурами, которые планируется использовать.
Длина мангала. Она диктуется количеством человек, которые будут лакомиться жареным мясом. Лучше сразу рассчитывать на прием солидного коллектива гостей, поэтому специалисты не рекомендуют выбирать длину менее 1 метра, чего вполне достаточно для приличного числа шампуров.
Глубина конструкции. Она должна составлять 20 см. Как показывает опыт, этот параметр позволяет максимально равномерно распределить угли по поверхности дна. При уменьшении этого размера появляется большая вероятность «спалить» мясо, при увеличении – придётся расходовать намного больше углей.
Высота ножек мангала. Повар не должен постоянно наклоняться, чтобы подкидывать дрова, переворачивать шампура и выполнять другие характерные действия. Чтобы правильно сделать металлический мангал своими руками, необходимо грамотно определить длину ножек мангала. Она назначается с учетом роста среднестатистического человека. Если человек стоит, то его опущенные кисти рук располагаются на расстоянии примерно 1 м от земли. Поэтому, верхняя точка будущего мангала должна находиться на вышеуказанном расстоянии.
Людям, которые интересуются, как самому сделать мангал из металла, нужно помнить о перфорации на стенках мангала. Перфорация выполняется на больших по длине стенках и предназначена для продувки углей. Диаметр отверстия варьируется в пределах 10 мм, оптимальное количество 10 штук. Межосевое расстояние между отверстиями – 10 см, от отверстий до поверхности дна – 5-10 см.
Простейшая самодельная конструкция
Этот мангал оригинальной конструкции легко изготовит даже тот, кто не обладает серьезными познаниями и навыками в слесарном деле. Сборный мангал подобного простейшего варианта абсолютно не требует применения сварки или использования крепежных деталей.
Все конструкционные элементы мангала крепятся с помощью вырезанных специальных пазов
Для изготовления такого уникального изделия потребуется:
- Лист любого металла, так как можно использовать не только нержавейку, но и обычную сталь.
- Небольшая болгарка.
- Разметочный и мерительный инструмент.
Процесс создания этого оригинального разборного мангала состоит из нескольких элементарных действий:
- Производится разметка имеющегося листа металла.
- Вырезаются необходимые детали конструкции.
- Проделываются крепежные пазы.
- Изделие собирается в единое целое.
- Если есть желание, то мангал можно покрасить любым жаропрочным составом.
- Вот и все. Мангал полностью готов к использованию.
Итак, вырезаются следующие конструкционные детали:
1. Стенки боковые – 2 штуки.

2. Стенки торцевые – 2 штуки.

3. Днище мангала – 1 штука.

При формировании сборочных пазов следует учитывать, что их ширина должна быть немного больше толщины используемого металла.
Далее все вырезанные элементы конструкции обрабатываются и собираются в единое изделие. Для этого используются сборочные пазы, и детали мангала просто вставляются друг в друга.
В конечном итоге должна получиться такая законченная конструкция:

Несмотря на свою элементарность, изготовленный мангал обладает рядом преимуществ:
- Минимальные затраты на изготовление.
- Максимальная компактность как в сложенном виде, так и в рабочем состоянии.
- Предельно легкий вес изделия. Такой мангал можно не только перевозить, но и переносить в рюкзаке.
- Конструкция не обременена громоздкими элементами. Например, не предусмотрен дымосборник.
- Отсутствуют крепежные элементы, что позволяет не опасаться за их потерю.
- На сборку и разборку мангала требуется предельный минимум времени.
- Полная функциональность изделия, которая позволяет приготовить шашлык достойного качества.
- Элементарность процесса изготовления конструкции. Такой складной мангал своими руками может изготовить каждый.
Раскладной мангал подобной конструкции оптимально подойдет не только для выездов на природу, но и для банальных посиделок у собственного гаража.
Следует заметить, что указанные размеры разборного мангала можно изменить по своему усмотрению. Но всегда необходимо выдерживать оптимальную глубину изделия. Ее рекомендуемая величина составляет 15-20 сантиметров.
Кроме того, следует отметить, что рассмотренная технология изготовления мангалов позволяет свободно изменять конфигурацию изделия. И в конечном итоге могут получиться весьма оригинальные конструкции. Пример удачного варианта мангала разборной конструкции изображен на следующем фото:

Из фотографии и схемы сборки видно, что эти изделия изготовлены по аналогичной технологии, но с измененной конфигурацией деталей.
Торцевые стенки, которые являются и ножками мангала, можно сделать различной длины, и тогда получится универсальная конструкция. В стационарных условиях будут использоваться торцевые стенки с более длинными ножками, а в походном варианте – с короткими.
Сделать чертежи и эскизы самодельной конструкции собственной конфигурации, как правило, не составит особого труда.
Для туристических походов можно изготовить облеченную «урезанную» конструкцию разборного мангала. Она представляет собой простой сборный короб из металла. У этого короба отсутствует дно, и он устанавливается прямо на костер. Детали металлического каркаса скрепляются болтами или используют вставку его стенок в специальные пазы, то есть по аналогии, рассмотренной выше. Шампуры раскладываются непосредственно на верхней кромке короба. Удивительно, но и такое упрощение позволяет приготовить стоящий шашлык.
Можно поступить иначе и создать простейшую конструкцию, заменяющую мангал. Смысл идеи понятен на фото

Конструкция тоже разборная и изготавливается из металлических уголков. Основание уголков-ножек необходимо заострить. Соединяются уголки обычными болтами. В верхних поперечных уголках делаются пазы для шампуров, что позволит их надежно зафиксировать в столь необычной конструкции для приготовления шашлыка. Для долгих туристических походов или для рыбаков – это самый оптимальный вариант имитации мангала.
Из вышесказанного видно, что изготовить разборный мангал своими руками достаточно просто, и все зависит от имеющихся навыков или определенных личных предпочтений.
Как покрасить мангал и защитить от коррозии
А теперь давайте ответим на вопрос чем покрасить мангал из металла. Красить установку необходимо после завершения всех работ, желательно акриловой краской в баллончике (требуется защита в виде перчаток, респиратора и спецодежды) или термостойкими лаками КО/08, КО/815. Данный этап является завершающим. Он решает несколько задач:
- Конструкции придается завершенный вид – пользоваться красивым внешне мангалом приятно, чем ободранным.
- Жаропрочная краска по металлу для мангала защитит конструкцию. В итоге коррозийный процесс замедлится.
- Так как краска создает гладкую поверхность, то упрощается процесс чистки самодельного мангала из металла от сажи после эксплуатации.
Лучшие размеры для мангала
В настоящее время нет общепринятых стандартов касательно габаритов подобных конструкций. Существует масса вариантов, поэтому можно подобрать наиболее оптимальные размеры мангала для шашлыка
Первое, на что следует обратить внимание, — так это высота бортиков чаши. Это очень важный момент. Вне зависимости от того, какая схема мангала будет использоваться при выполнении работ, оптимальная высота стенки будет составлять около 13-15 см
В случае если они будут ниже, мясо, находящееся в близком контакте с углями, будет быстро подгорать снаружи, но не успеет приготовиться изнутри. При более высоких стенках для хорошей прожарки мяса потребуется много углей. Таким образом, наиболее предпочтительной является глубина мангала, составляющая около 13-15 см
Вне зависимости от того, какая схема мангала будет использоваться при выполнении работ, оптимальная высота стенки будет составлять около 13-15 см. В случае если они будут ниже, мясо, находящееся в близком контакте с углями, будет быстро подгорать снаружи, но не успеет приготовиться изнутри. При более высоких стенках для хорошей прожарки мяса потребуется много углей. Таким образом, наиболее предпочтительной является глубина мангала, составляющая около 13-15 см.
С размерами остальных частей будущего мангала нужно определяться в индивидуальном порядке, исходя из личных предпочтений
Итак, вторым параметром, на который стоит обратить особое внимание, является ширина чаши. Когда планируется самостоятельно изготовить мангал, вполне можно ориентироваться на длину имеющихся шампуров. Ширина должна быть примерно на 8-10 см меньше длины шампуров
Таким образом, если длина имеющихся шампуров без учета ручек составляет около 50 см, то ширина мангала должна составлять 40-42 см. Это достаточная величина, чтобы было удобно жарить шашлыки
Ширина должна быть примерно на 8-10 см меньше длины шампуров. Таким образом, если длина имеющихся шампуров без учета ручек составляет около 50 см, то ширина мангала должна составлять 40-42 см. Это достаточная величина, чтобы было удобно жарить шашлыки.
Мангалы из металла можно делать абсолютно любой длины. Это зависит от того, сколько шампуров с мясом будет одновременно прожариваться. Расстояние между ними должно составлять около 10 см. Таким образом, для приготовления 8 шампуров одновременно длина мангала должна составлять не менее 90 см. На стенках самодельных конструкций нередко делаются специальные выемки треугольной формы, которые позволяют удобно размещать шампура и не допускать их случайного съезжания вниз или поворотов.
Отдельного внимания заслуживает высота мангала. Когда речь идет о стационарных или монолитных конструкциях, обычно длину ножек делают от 70 до 90 см. В сочетании с высотой чаши выходит, что в целом железный мангал будет достигать примерно 1 м в высоту. В этом случае не придется особо наклоняться при жарке шашлыков что, конечно же, очень удобно. Для переносных моделей в целях экономии места чаще делают короткие ножки, достигающие примерно 20-30 см.
Разновидности
Складные мангалы могут быть выполнены в разных формах и размерах. Прежде всего, их следует условно разделить на две группы:
Складные
Разборные 
Часто эти изделия смешивают между собой, но у них имеется принципиальное различие. Складные модели не обладают разъемной конструкцией — их детали постоянно соединены подвижными элементами.



Разборные мангалы можно разделить на отдельные детали, подвижных соединений у них, как правило, не имеется.
Встречаются также конструкции комбинированные, которые можно разделить на пару половинок с подвижными соединениями. Однако, этот вариант конструкции довольно редок — мангал сам по себе представляет собой достаточно простое изделие, и усложнять его нецелесообразно.

В продаже есть конструкции, пользующиеся популярностью:
Эта конструкция обеспечивает более компактное хранение, но брать их с собой на рыбалку или на пикник весьма сложно;

Он имеет цельное дно и подвижные боковые стенки, поочередно складывающиеся внутрь — сначала короткие, потом длинные. Ножки сгибаются к корпусу и не мешаются при перемещении. В сложенном состоянии изделие становится плоским и удобным для переноски;

Это конструкция, близкая к предыдущей, но меньших размеров;

Отличается от других моделей тем, что в рабочем состоянии представляет собой не ящик, а две плоскости, соединенные под углом. В этот мангал входит больше углей, что обеспечивает более интенсивный нагрев. Однако, стенки быстрее прогорают;

Это самая простая конструкция, у которой никакого ящика нет — просто, разводится костер, над ним устанавливают рамку и укладывают на нее шампуры. В походных условиях этот вариант конструкции вполне работоспособен.

Эти модели имеют свои плюсы и минусы. Основным недостатком (общим) можно считать заметную сложность конструкции. Самодельные складные мангалы обычно делаются по самым простым проектам, чтобы не усложнять процесс изготовления.
Пошаговая инструкция
- Обрезаем металлический лист под нужные размеры при помощи болгарки.
- Привариваем к нему полосы металла таким образом, чтобы образовать бортики. Это будет дно походного разборного мангала своими руками сделанного.
- Нужно взять два небольших листа размером 65,5*17,5 см. Они будут служить боковыми стенками. К ним требуется приварить полосы металла по узким сторонам. Таким образом получится импровизированная крышка для раскладного мангала своими руками.
- По центру бортика крышки надо проделать сверлом сквозные отверстия 6-миллиметрового диаметра в верхней части и 5-миллиметрового – в нижней, в которые будут вставляться болты для закрепления складных боковых бортов. В получившихся отверстиях нарежьте резьбу.
- Нужно прорезать пазы по краям узкой части складных бортов. Их располагают по центру полос, углубляясь на пару сантиметров. Ширина каждого паза – чуть больше диаметра крепежного болта.
- Далее болты вставляются в заранее просверленные отверстия на боковых частях днища и за них на пазы цепляют боковины раскладного мангала, сделанного своими руками. Для большей надежности конструкции болты можно приварить к основанию, предварительно обрезав выступающие части.
- То же самое проделываем на широкой части днища будущего мангала. Отмеряем равное расстояние от края детали, и прорезаем еще по два паза с каждой стороны.
- На самих боковинах закрепляем болты с последующей их подрезкой вровень с основной плоскостью и завариванием. Таким образом, борта не будут болтаться, конструкция «шип-паз» получится устойчивой и жесткой. Сильно затягивать болты перед сваркой не нужно, иначе снять борта не получится.
- На данном этапе у вас будет готово днище с длинными бортиками, по краям которых имеются уголки, заходящие на смежную сторону. Между уголками нужно будет вставить прямоугольники из металла в количестве двух штук – по одному с каждой стороны. Таким образом получится прямоугольный металлический короб раскладного мангала, изготовленного своими руками.
- Для придания еще большей жесткости в верхней части боковин также прорезаются пазы, которые будут надеваться на крепления из болтов. Кроме того, наварить крепежи из болтов нужно и снизу, примерно по центру боковин. Это нужно для того, чтобы сварить разборный мангал своими руками и вся конструкция в сложенном виде тоже держалась надежно.
- Основная «коробка» готова. Остается сделать следующее: нарезать по верху длинных боковин пазы для размещения шампуров. С удобно, если с одной стороны эти пазы будут иметь прямоугольную форму, а с другой – треугольную с углом внизу. Это позволит избежать прокручивания шампуров и зафиксировать их.
- По низу просверлить отверстия для вентиляции. Можно приварить к мангалу ручки для удобства его перемещения в разложенном виде.
- Еще нужны устойчивые ножки. Лучше сделать их из пустотелого квадратного профиля сечением 15 мм. Для их фиксации в днище просверливаются отверстия под 10 миллиметровую шпильку на болтовом креплении.
Как видно из описания, сделать разборный мангал своими руками из металла не так уж и сложно. Каждый домохозяин при наличии нужных инструментов справится с его изготовлением быстро и без хлопот.
Разборный мангал из нержавейки. Особенности изготовления мангалов из нержавейки

Отдых на природе пользуется все большей популярностью. Это является причиной растущего спроса на жаровни, без которых сложно представить полноценный отдых. Мангал из нержавейки является самым рациональным и долговечным устройством для приготовления шашлыка. Нержавейка превосходит по своим технологическим качествам даже сталь самых лучших марок.


Особенности
Иногда трудно найти в магазине устройство для приготовления шашлыков таких параметров, которые максимально устраивают. Тогда не представляет особых сложностей сделать мангала из нержавейки самостоятельно. Самый простой вариант – это модель, которую можно собирать или разбирать. Конструкция изделия должна быть сделана таким образом, чтобы на его компоновку уходило бы минимум времени.


Особенности жаровни, созданной из нержавеющей стали:
- Конструкция не подвержена коррозии.
- Материал нагревается равномерно, что благотворно сказывается на качестве шашлыка.
- Весит изделие из нержавейки немного.


Нередко домовладельцы самостоятельно проектируют и создают из нержавеющей стали мангалы по своим собственным проектам. Изделие, созданное самостоятельно, стоит намного дешевле. Но если умело сочетать творческие способности и фантазию, то можно сделать эксклюзивную модель мангала.


Преимущества и недостатки
Главный признак мангала для дачи – это компактность и небольшие габариты. Изделие должно без труда помещаться в рюкзак или багажник малолитражки. Прежде всего, следует нарисовать эскиз, чтобы понять, какие узлы и детали потребуются для его создания.
Если собрать подобный агрегат, то он будет похож на небольшой чемоданчик, толщина которого не будет превышать 5 см.
Содержимое такого кейса заключает в себе:
- решетку для гриля;
- набор шампуров;
- крепежные стойки.
Дно у такого изделия должно быть толщиной не менее пяти миллиметров, боковые стенки – не тоньше двух миллиметров. Преимущество агрегата, собранного своими руками, заключается в том, что его можно сделать любых размеров. Некоторые домовладельцы предпочитают делать мангал достаточно длинным – около полутора метров, другие делают такое изделие раза в три короче.
Обычно устройство проектируют таким образом, чтобы на него помещалось от 5 до 12 шампуров. Между шампурами должен быть приемлемый зазор, чтобы они не мешали друг другу.
Переносные мангалы имеют общий недостаток: они не так долговечны, как стационарные изделия. Для компактных агрегатов оптимально подходят древесные угли, которые можно купить в любом супермаркете.
Виды
Из нержавейки можно сделать три типа мангалов:
- стационарные барбекю;
- разборные походные;
- с встроенным электроприводом.
Передвижные мангалы – громоздкая тяжелая конструкция, в которой присутствует большая топка из толстой нержавеющей стали.
Такое сооружение оборудовано, как правило:
- дополнительными столами;
- подставками;
- ручками.


В пределах территории домовладения подобный объект без труда перемещается, так как мангал снабжен колесами. Если участок слишком большой, и на нем существует несколько точек отдыха, то передвижной агрегат из нержавейки будет востребован.


Очень популярны также устройства стационарные, чаще всего встречаются агрегаты для улицы. Такие мангалы могут быть снабжены кровлей, иметь оригинальные декоративные украшения и стоить достаточно дорого.


Форма
Первый вид изделий может быть самой разной формы и устанавливаться на любых дачных территориях. Есть среди них такие модели, которые используются для приготовления не только шашлыка, но и барбекю. Слово барбекю пришло из Европы, сам принцип приготовления мяса несколько отличается от традиционного. При этом используется решетка, на которую кладутся небольшие кусочки мяса, шампуры при этом отсутствуют. Чаще всего на территории России совмещают два типа мангалов.
Есть еще один тип агрегатов, который синтезирует в себе особенности барбекю и мангала. Это – так называемый гриль, когда над емкостью с горячими углями помещается вертел, на котором можно готовить крупные куски мяса. Иногда на Северном Кавказе таким способом обжаривают целые туши баранов. Вызывает некоторое удивление эффективность подобной конструкции.
Несмотря на то, что внешне она очень проста, чтобы большой кусок мяса равномерно пропекался, не пригорал, требуется рациональное распределение температуры по всей поверхности продукта.




































