Монтаж инсталляции
Установка инсталляции унитаза своими руками на специальную раму, фиксируемую к стене, является более дорогостоящим процессом, но более быстрым и надежным. Крепление инсталляции будет происходить к полу и прочной стене.
Технологическая последовательность выглядит следующим образом:
1. Закрепление металлической рамы. В ней имеются соответствующие отверстия, с помощью которых она фиксируется к поверхностям дюбелями. Две точки для крепления к полу и две к стене. К месту установки подводятся канализационные и водопроводные трубы. Установленная рама должна быть проверенна на ровность с помощью строительного уровня. Необходимо выдержать точную параллельность к устанавливаемой стене, т.к. даже незначительные перекосы могут привести к перебоям в работе и даже поломкам. Горизонтальную регулировку осуществляют при помощи креплений в стене, которые изменяют свое положение.
Этот этап также предполагает выставление высоты расположения подвесного унитаза. Она будет зависеть от роста жильцов, обычно составляет 0,4 м. Высоту чаши можно будет отрегулировать в дальнейшем.

2. Подведение к сливному бачку воды. Можно использовать гибкую или жесткую систему. Профессионалы чаще используют жесткую, т.к. она способна дольше прослужить. Можно использовать и гибкие шланги, но если они выйдут из строя, то добраться к ним и заменить быстро не получится. В процессе монтажа подводки вентильный кран бачка, также как и слив из него, должен быть закрыт.
После соединения следует проверить надежность соединений. Для этого следует открыть подачу воды и начать заполнять бачок. Если имеются утечки, то устраняются. Вода может остаться в бачке.

3. Подключение к канализации. Сливное отверстие унитаза необходимо вставить в отвод канализационной трубы с помощью соответствующей гофры, но отдельные модели способны подключаться без ее использования. По окончанию соединения следует проверить герметичность системы путем пробных сливов. Чтобы сделать это потребуется временно прикрутить чашу к раме. После этого снова ее снять, она будет устанавливаться в финале монтажа.
Правильную подводку трубы канализации необходимо выполнить еще до того, как начали устанавливать инсталляцию. Диаметр трубы – 100 мм. Ее необходимо прокладывать с соответствующим уклоном. Про можете прочитать в соответствующей статье.

4. Закрытие гипсокартонными листами. Установка подвесного унитаза обязательно должна сопровождаться декоративной отделкой функциональных элементов. Для отделки санузлов необходимо приобретать водостойкий двойной гипсокартон. Он отличается большей прочностью, в сравнении с обычным. Листы требуется монтировать к металлическим профилям и непосредственно к раме унитаза. Инструкция по установке должна обладать необходимой информацией по способу раскроя с указанием точек вырезки отверстий.

Обшивка может быть выполнена двумя способами: по всей площади стены или только по плоскости инсталляции. Второй метод предполагает образование небольшой полочки над чашей, которая может быть использована для размещения необходимых предметов.
В последующем установленный барьер отделывается плиткой или панелями совместно с остальной площадью помещения.
5. В завершение необходимо провести установку унитаза на инсталляцию, а именно чаши. Ее следует навесить на соответствующее место с помощью двух креплений.
6. Последним, наиболее простым этапом является установка кнопки смыва. Они бывают пневматическими и механическими. Процесс не сложный, т.к. все уже должно быть подведено к необходимому проему в стене. Механическая кнопка устанавливается с помощью специальных штифтов с последующей их регулировкой. Для пневматической же следует только подсоединить соответствующие трубочки все готово.

В процессе деятельности необходимо особо контролировать процесс монтажа рамы-инсталляции, т.к. именно от правильности будет зависеть ход дальнейшей установки. Разобраться, как установить инсталляцию для унитаза на самом деле не сложно. Достаточно следовать рекомендациям инструкции по установке, а в дополнение посмотреть соответствующее видео о процессе и все у вас получится.
Подвесные сантехнические устройства постепенно обретают популярность, особенно среди владельцев малогабаритных санузлов. Однако не всем по душе подвесные унитазы – внешне они кажутся неустойчивыми и ненадежными. Это впечатление обманчиво, ведь осуществляется с использованием системы инсталляции, которая скрывается за отделочным материалом стены. Рассмотрим более подробно преимущества подвесных сантехнических объектов и ознакомимся с инструкцией по их установке.
Стандартные размеры
Стандартные размеры
Разберемся в стандартных размерах инсталляций для унитаза. Это модели предназначены для монтажа в помещении, где нет существенных пространственных ограничений.
Их ставят в просторных туалетных комнатах и в небольших санузлах. Большинство каркасов относится к этой группе. Кроме них существуют еще угловые вариации, которые ставят в пустых углах небольших помещений. Особенно хороши они для совмещенных санузлов.
Выпускаются компактные модели, отличающиеся небольшой высотой. Их монтируют под окнами, около невысоких перегородок, т.п. Линейные модули разработаны для подвесного оборудования, расположенного в ряд.
Например, около унитаза находится биде или писсуар. Есть еще двусторонние модели, которые предназначены для закрепления сантехники с двух сторон. Размеры вариаций отличаются от стандарта.
Ширина конструкции
Ширина инсталляции для унитаза не зависит от ее типа. Рамные и блочные стандартные системы имеют одинаковые параметры 500-600 мм. Этого расстояния вполне достаточно для того, чтобы поместить внутрь каркаса смывной бачок.
Его габариты могут быть разными, но ширина не бывает больше 500 мм. Большая часть модулей, особенно блочных, выпускается с шириной 500 мм. Она подходит для сантехники любых габаритов.
Глубина

Глубина считается одной из самых важных и зависит от типа рамы. Так, блочные разновидности самые компактные. Их глубина колеблется от 100 до 150 мм. У рамных моделей это значение располагается в промежутке от 150 до 300 мм.
Таким образом, меньше места занимают навесные модули. Если в санузле несущая стена, выбирают блочную консоль. Так удастся выиграть порядка 15 см свободного пространства.
Глубина консоли определяет габариты и объем сливного бака, который располагается внутри рамы. В отличие от напольного аналога, у подвесной сантехники бачок плоский.
Его толщина — 90 мм, ширина — 500 м, высота — 550-600 мм. Такие габариты позволяют получить объем от 3 до 6 литров. Это немного меньше, чем стандартные характеристики от 6 до 9 литров.
При выборе надо понимать, что размеры инсталляционной системы влияют на объем бачка. Чтобы чаша оставалась чистой желательно, чтобы он был большим.
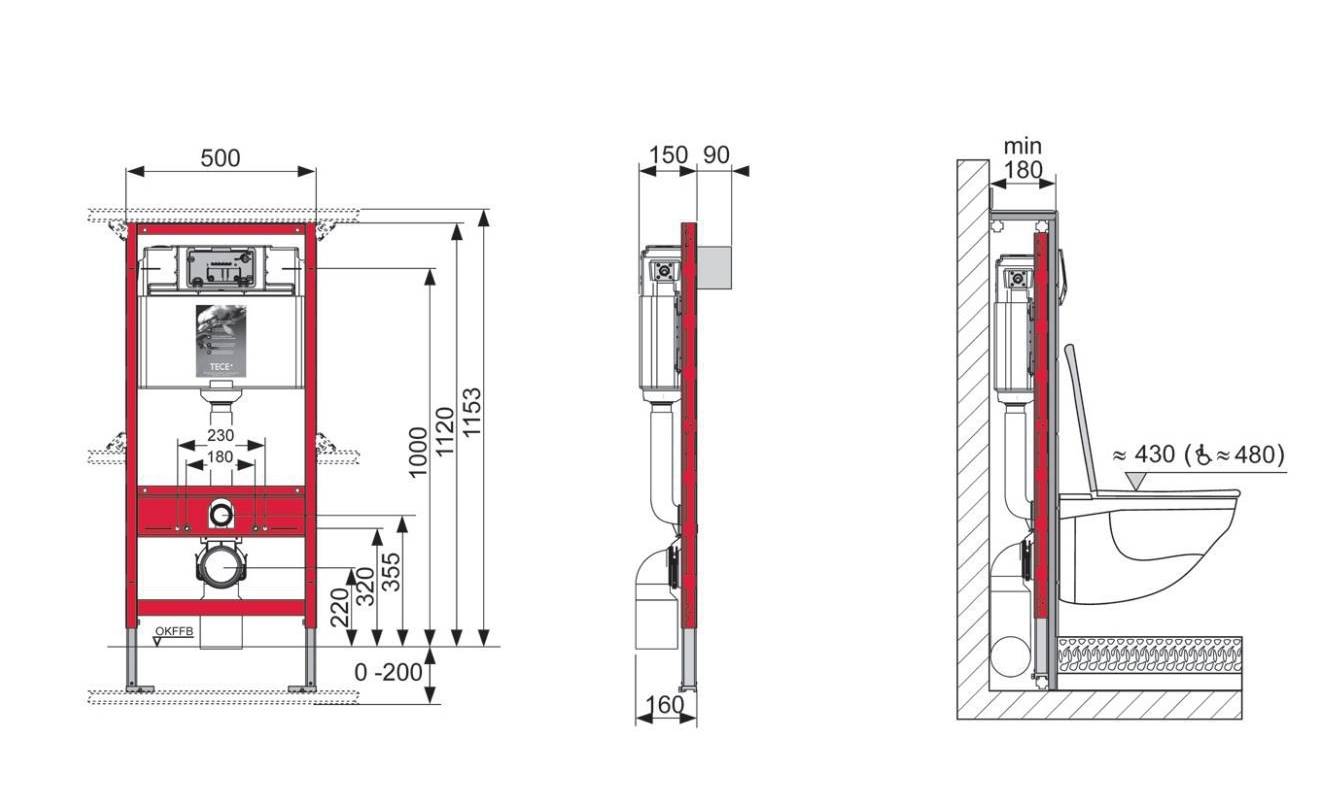
Высота
Еще одна важная характеристика — высота инсталляции для унитаза от пола. Рамные модели выше: от 1 020 до 1 400 мм. Навесные от 800 до 1 000 мм. Крепежи под шпильки, на которые крепится чаша, обычно располагаются на уровне 320 мм.
Это универсальная высота, удобная большинству людей. Но если нужно, ее изменяют при помощи регулируемых ножек. Канализационный патрубок крепится к чаше на уровне 220 мм от пола.
Расстояние между шпильками или, как его еще называют, межосевое, бывает 180 или 230 мм. Это стандартные величины, на которые рассчитаны большинство моделей подвесной сантехники.
Стандартные каркасы предназначены для закрепления трех типов чаш разных габаритов:
- Мини — до 540 мм длиной.
- Стандарт — 550-600 мм.
- Максимум — 700 мм.
Ширина всех разновидностей 300-400 мм, высота — 300-400 мм.
Общая конструкция подвесных систем
На практике довольно часто приходится видеть, что даже специалисты не совсем правильно понимают, что такое инсталляция в туалете (относят к ней сантехническое изделие в сборе), что приводит в некоторых случаях к недопониманию. Особенно это заметно при решении вопроса, какую инсталляцию выбрать — анализируются не узел смыва и рама, а чаша унитаза.
Русское слово «инсталляция» произошло от английского installation, что переводится как установка. Кстати, для людей, владеющих английским языком, выражение произвести установку инсталляции, звучит забавно (масло масляное). Непосредственно в комплект инсталляции входят (см. фото):

- Шпильки для крепления к стене с регулируемыми держателями.
- Командный узел слива.
- Один из штуцеров для подключения к водопроводу.
- Смывной бачок.
- Регулятор пропуска воды в унитаз.
- Сливная трубка.
- Рама — стальная конструкция, на которую навешиваются все элементы сантехнического изделия.
- Монтажные шпильки для навешивания унитаза.
- Сливной патрубок.
- Штанги (выдвижные ножки) для регулирования высоты унитаза.
На фото не показан еще один элемент инсталляции: панель с кнопками слива.
Рама
Основой инсталляции является рама. Это жесткий каркас из толстого стального профиля, который должен выдержать вес бачка с водой, унитаза, сидящего на нем человека и при этом не деформироваться. Выпускается в нескольких вариантах:
однорамные с опорой на пол. Крепятся к стене. Но основная механическая нагрузка ложится на две ножки, которые устанавливаются на основание пола. На стену воздействуют лишь изгибающие раму силы. Поэтому достаточно стены в полкирпича;

двухрамные с 4 ножками. Крепление к стене условное (во многих моделях его вообще нет), так как вся нагрузка ложится на ножки. Предназначены такие конструкции для стен (перегородок) из гипсокартона;

- угловые — монтируются в углу помещения;
- навесные (блочные) модули — рама удерживает только сливной бачок. Выполнены из тонкостенного уголка. Крепятся к стене. Унитаз в таких вариантах не связан с рамной конструкцией и устанавливается на пол — это так называемый приставной вариант.

Рамные конструкции имеют стандартные размеры:
- высота — от 1,02 м до 1,4 м, плюс до 0,2 м за счет выдвигающихся ножек;
- ширина — 0,5 м;
- глубина — от 15 до 30 см.
Модульный вариант более компактен:
- высота — от 78 до 100 см;
- ширина стандартная — 0,5 м;
- глубина — 10-15 см.

Сливной бачок
Установленный в инсталляцию сливной бачок напоминает канистру и вмещает до 12 л воды (наиболее распространен бак на 6 л). Производится из прочного пластика, который во много раз легче керамики. Сверху закрыт пенопластовым кожухом, который выполняет две функции:
- служит шумозащитным материалом;
- предотвращает появление конденсата.
Простенький внешний вид в этом случае не играет роли — все будет скрыто за фальшстеной. Отличается от классического аналога тем, что кнопки слива расположены на передней панели, а не сверху, как у керамики.
Панель слива
У панели слива две функции:
- держать кнопки пуска воды;
- обеспечивать доступ через окно к арматуре сливного бачка.
Вид и количество кнопок для управления сливом зависит от режима работы узла подачи воды и способа передачи команд на выпускной клапан. Поэтому панель может быть:
- однокнопочной — единственная кнопка приводит к выпуску всей воды из бачка;
- двухкнопочной — одна кнопка (всегда меньших размеров) обеспечивает выпуск воды из половины бачка, вторая приводит к полному сливу;

- с ординарной кнопкой, работающей в режиме «пуск/стоп» — при повторном нажатии смывание прекращается;
- сенсорные кнопки, срабатывающие при приближении руки.

Привод может быть механическим, пневматическим и электронным (электрическим). Наиболее надежный вариант — механический, когда передача усилий от кнопки до клапана производится с помощью специальных рычагов. Электрический привод также надежен, но зависит от подачи электроэнергии. Наибольшие нарекания, что подтверждают и отзывы на различных форумах, вызывает пневматика. Она чаще всего ремонтируется.
Панели выпускаются разного цвета и дизайна, в результате чего этот элемент инсталляции часто является украшением туалета или ванной.
Как выбрать подвесной унитаз?
Отметим, что подвесной унитаз обладает рядом преимуществ перед обычным:
- гарантирует чистоту в санузле;
- компактен. Занимает мало места, в отличие от обычного унитаза;
- обладает вариантами слива воды: 3 или 6 литров. Это обеспечивает экономный расход воды;
- несмотря на кажущуюся хрупкость, обладает большой грузоподъёмностью до 400 килограмм.
Благодаря своим преимуществам, подвесной унитаз набирает популярность установки в санузлах. В зависимости от габаритов подразделяется на:
- маленьких, длиной до 54 см. Устанавливаются в помещениях с маленькой площадью;
- средних, которые имеют длину 54 – 60 см. Это наиболее распространённый вариант;
- больших, имеющих длину до 70 сантиметров. Подходят для пожилых и крупных людей.
Примечание
Важно при установке! Подвесной унитаз должен быть закреплён на расстоянии 18 – 23 см от инсталляции. Поэтому перед покупкой следует заранее произвести замеры.
Устройство
В магазинах для дома вы увидите большое разнообразие необходимого вам изделия для санузла
Обратите внимание на страну-изготовителя. Качественные инсталляции продаются с готовыми для установки отверстиями
Также содержат в комплекте необходимые элементы крепления: шурупы, дюбели. Однако головки у них бывают пластмассовыми и настроены для работы с определёнными ключами. Установка требует надёжного крепления. Если у вас стены несущие, то приобретайте отдельно анкерные болты.
Чтобы облегчить задачу, покупайте все изделия от одного и того же производителя. Тогда нестыковок при установке не произойдёт. Все детали изделии одного и того же производства рассчитаны до мелочей, поэтому с крепежом проблем не будет.
Если беспокоитесь за надёжность стены, то используйте специальное крепление для анкеров. Тип конструкции и размер при этом не важен.
Если решили закрепить конструкцию не только к стене, но и к полу, то дополнительные материалы, скорее всего не понадобятся. Можете использовать те, которые имеются в комплекте.
Чаще всего, стандартный подвесной унитаз будет иметь размер 40х55 см. Тогда за унитазом следует выделить место в ширину 10 – 25 см, а в длину 35 – 50 см. Для удобства пользования унитазом, нужно выделить ещё свободное место по 20 см с обеих сторон и 80х60 см спереди.
Ведущие производители
Производитель – это один из главных параметров, на который стоит обратить внимание при выборе инсталляции унитаза. На данный момент, рынок сантехнических изделий скрытого монтажа практически полностью заняли три основных производителя
Geberit
Швейцарская компания, занимающаяся производством сантехники нового поколения: полная линейка инсталляций для раковин, унитазов, писсуаров, бесконтактные системы слива, электронные смесители и т.п. Компания занимается производством сантехнических изделий ещё с 1905 года. Основной уклон делается на модернизацию продукции, высокое качество, надёжность и долговечность. Гарантия на инсталляции компании составляет 10 лет. Металлические детали изделий изготавливаются из 2 мм стали с надёжным внутренним и наружным антикоррозионным покрытием. Ответственные детали изготавливаются из нержавеющей стали и хромированы.
- Следует отметить особенность конструкции смывных бачков всякой компании:
- Патрубки и бачок составляют единое целое, что изучает малейшую возможность протечки;
- Впускной и выпускной механизм практически бесшумны;
- Высокая эффективность и мощность смыва обеспечивает чистоту унитаза при использовании минимального количества воды.
Grohe
Германская компания, которая изначально специализировалась на производстве сантехнической арматуры. Инсталляции в её ассортименте появились сравнительно недавно. Они отличаются продуманной конструкцией и высокой надежностью. Используется порошковое антикоррозионное покрытие, Что обеспечивает длительный период эксплуатации. Внешнее оформление не так разнообразно, как у других производителей, однако модели имеют эргономичную форму, а дизайнерские решения делают возможным гармоничное сочетание внешней части инсталляция практически с любым стилем.
Ideal Standard
Ещё одна германская компания, которая долгие годы выпускала сантехнические изделия. Опыт в разработке новых видов продукции помог инженерам компания создать весьма удачные технические решения инсталляций. Скрытая часть инсталляции имеет ширину 35 см поэтому объём сливного бачка не превышает 6л. Впрочем, благодаря эффективной системе спуска, этого вполне достаточно для очистки унитаза. Большинство моделей компании имеют небольшие размеры и могут устанавливаться в малогабаритных санузлах.
Так же важно упомянуть бренды TECE, Viega, которые так же являются крупными производителями инсталляций
Как установить подвесной унитаз с инсталляцией: особенности установки
Рассмотрим установку инсталляции унитаза. Монтаж производится после того, как выравнивается пол. При выборе блочной конструкции необходимо произвести и выравнивание стен. При этом установка производится только на прочные несущие конструкции
Важно определиться с местом монтажа изделия. В зависимости от разновидности инсталляцию можно прикрепить к стенке или полу. К месту монтажа ведутся трубы канализации и вода
Патрубки крепятся рядом с выбранным местом
К месту монтажа ведутся трубы канализации и вода. Патрубки крепятся рядом с выбранным местом.
В таблице можно посмотреть, как производится крепление инсталляции к стене.
| Изображение | Этапы работ |
![]() | Сначала крепим раму к полу и монтируем к месту его установки. При этом нужно проверить вертикальность и горизонтальность. Затем маркером выполняются отметки в местах крепления. При установке применяются специальные дюбеля. Затем рама ставится на нужное место и фиксируется. |
![]() | У многих конструкций есть функция регулируемой высоты. Если покрытия нет, то толщина прибавляется к нужной высоте. Ножки делаются регулируемыми и крепятся прижимными болтами. |
![]() | Для крепежа к стене требуются специальные регулируемые болты. Одним концом они крепятся к углам рамы, а другим к стене. Конструкция устанавливается в вертикальном положении. |
![]() | Затем патрубок на раме соединяется с выводом канализации. Если на раме установлен хомут из пластика, то в него устанавливается канализационный патрубок. Вода подсоединяется к патрубку на бачке. Подводка выполняется любой трубой. Переходник с бачком подсоединяются гибким шлангом. |
![]() | Выполняются отделочные работы. Рама зашивается гипсокартоном. Сначала устанавливается два листа. При этом габариты наносятся на стену, по ним делается профиль. К конструкции крепится гипсокартон. |
![]() | После отделки коробка под кнопку проделывается. После этого края должны быть на одном уровне с плиткой. В отрезанной крышке будет два отверстия под болты, на них и будет крепиться кнопка слива. Затем к кнопке подсоединяется шланг или трос. Данная деталь затягивается болтами. Установка начинается с монтажа прокладки. Патрубки крепятся в унитаз и конструкция вешается на шпильки. На них надеваются прокладки из резины. Для лучшей герметизации стыки необходимо промазать силиконом. |
Некоторые рекомендации от специалистов помогут сконструировать систему инсталляции для подвесного унитаза:
- при протечке напольного унитаза, необходимо проверить герметичность стыков. Соединение с гофрой повторно обрабатывается;
- чтобы упростить ремонтные работы над кнопкой проделывается технологическое отверстие;
- если унитаз неустойчив, то это можно поправить при помощи подтягивания болтов;
- кнопку слива следует располагать между плитками;
- главной причиной протекания бака является неправильный монтаж уплотнительной прокладки;
- слив делается под углом в 45 градусов, чтобы вода не скапливалась в унитазе.
Подробнее об установке конструкции вы можете видеть на видео:
Watch this video on YouTube
При покупке обращайте внимание на системы с экономным режимом воды, а также определите, какой вес выдерживает подвесной унитаз. Не стоит забывать и о правильном монтаже конструкции, от этого процесса зависит длительность эксплуатационного срока
Преимущества использования
Использование инсталляции унитаза имеет множество преимуществ по сравнению с классическими напольными моделями:
Отлично вписываются в помещения небольшой площади, так как основные конструкции расположены в технологических нишах стен. Снаружи расположено только чаша унитаза
Это обеспечивает, как визуальное, так и фактическое увеличение полезной площади; Скрытые коммуникации — это особенно важно, если в санузле выполнен ремонт премиум-класса; Простота уборки — отсутствие на полу ножки унитаза исключает накопление по её периметру пыли и грязи, которые являются питательным субстратом для патогенной микрофлоры; Возможность регулировки высоты установки унитаза в широком диапазоне параметров. В отличие от классических моделей, имеющих довольно жёсткие ограничения по типоразмерам
Одним из немногочисленных недостатков такой конструкции является достаточно высокая сложность монтажных работ. Фактически, не имея опыта произвести самостоятельную установку правильно очень трудно. Поэтому при приобретении инсталляции унитаза рекомендуется для ее установки привлечь специалистов.
Подписывайтесь так же на наш Youtube, группу , . Там много полезного и интересного контента!
Типы инсталляции

Для доступа к деталям сливного бачка предусмотрена небольшая ниша, скрывающаяся за съемной кнопкой. Клавишу демонтируют при необходимости.
Стандартная инсталляция содержит в составе элементы:
- рама из стали;
- бачок для смыва, чаще всего из пластика для уменьшения нагрузки;
- выводные патрубки канализации, соединители, эксцентрики;
- крепежные элементы к стене, полу;
- крепление для установки унитаза (должно выдерживать до 400 кг);
- кнопка управления;
- комплект звукоизоляции.
Короб для инсталляции может иметь вид:
- с верхней, лицевой и двумя боковыми поверхностями выпуклая инсталляция на продольной стене;
- передняя, одна боковая и верхняя плоскость — рама угловая;
- только лицевая поверхность — инсталляция смонтирована в толще перегородки или стеновой нише;
- нет верхней части, но есть передняя стенка и две боковых — самодельная рама выполнена на всю высоту от пола до потолка.
Перед покупкой измеряют размеры установочной ниши. Некоторые готовые рамы имеют устройство для передвижения верхних стоек, тогда ширина инсталляции для унитаза может меняться, хотя такой вариант увеличивает прилагаемые усилия на стену. Подразделяют блочные и рамные конструкции.
Блочные
Другое наименование такого метода установки — навесной. Детали каркаса крепят на вертикальном ограждении, при этом стена должна быть несущей. Использовать для монтажа блочного варианта перегородки, конструкции из гипсокартона, пеноблоков нельзя, т. к. они не выдержат вес в 400 кг (нормативный для подвесного унитаза).

Плюсы и минусы блочной инсталляции
Свобода выбора места установки бака разной конструкции и размера
Невысокая стоимость
Возможность сделать инсталляцию любой формы
В малогабаритных квартирах не всегда можно выделить для монтажа участок капитальной стены
Рамные

Конструкция включает стальную тяжелую раму, жесткую и прочную. К ней приделана арматура для фиксации подводного водопровода и сточных коллекторов от патрубков чаши. В комплекте продают крепеж для самого каркаса, бачка и унитаза.
Рамные инсталляции делят на три группы:
- для установки на стену (несущую);
- для фиксации к нижнему перекрытию;
- для расположения углового сливного бака.
В первом варианте раму крепят к стене и полу, но конструкция устроена так, что передает нагрузку капитальной стене. Вторые модели предусматривают фиксацию к плите перекрытия, поэтому усилия передаются полу. Такие рамы можно ставить у слабых перегородок из шлакобетона, пенобетона, гипсокартона, ДСП, фанеры.
В угол можно поставить раму прямоугольной конструкции, применяя угловые крепежные детали. Есть специальные каркасы для установки углового бака треугольной формы.
Как выбрать инсталляцию для подвесного унитаза, чтобы ее размеры подошли для конкретного помещения

Как уже писалось выше, при наличии в санузле капитальной стены лучше всего использовать блочную систему. Но если такой возможности нет, то остается рамная конструкция. Она более заметная, но при этом и надежная.
Если в помещении совсем мало места, рассмотрите вариант угловой рамной инсталляции. Благодаря ей вы сможете поместить унитаз в угол, где он совсем не будет мешать.
Кроме этого, нужно учитывать и некоторые дополнительные требования к размерам:
- Расстояние от края унитаза до стены, находящейся впереди него, должно быть не меньше 60 см.
- От центра прибора в каждую сторону также должно быть не менее 60 сантиметров.
Разновидности навесных унитазов
Вниманию потребителя предлагается достаточно разнообразный модельный ряд от ведущих производителей Grohe, Jika, Kludi, Geberit, Cersanit и других. Они отличаются формой, материалом, способом крепления, а также ценой.
Любителям нестандартных решений придется по вкусу унитаз подвесной квадратный: строгие формы, уникальный дизайн.
Выбор в пользу унитаза совмещенного с внутренней полочкой оправдан, если не хочется устанавливать специальные системы для снижения уровня брызг — антивсплеск. Отчасти такое решение помогает избежать попадания в сливное отверстие предметов (например, телефона или туалетной бумаги): они остаются на полке.
Подвесной унитаз, совмещенный с гигиеническим душем, по достоинству оценят дамы: по отзывам, такое устройство значительнее комфортнее, чем биде.
Круглый унитаз подвесной конструкции со специальным решением смыва создает не сплошной поток воды (как в обычных решениях), а двигающийся по спирали, что, в свою очередь, повышает эффективность и оставляет меньше загрязнений на стенках.
Тем более хорош унитаз подвесной безободковый с антивсплеском: вода при смывании распределяется строго по стенкам изделия, не создавая дискомфорта во время пользования. В таких моделях из-за отсутствия стандартного ободка не скапливаются бактерии — не нужно регулярно выполнять очистку с применением агрессивных химических препаратов.
Если существующие компактные габариты санузла (тем более, когда он является совмещенным) не позволяют разместить в нем квадратный подвесной унитаз, отличной альтернативой ему может стать угловой прибор.
Прямоугольный унитаз подвесной конструкции олицетворяет собой стремление хозяина к совершенству: такие модели выбирают не часто, зато они надежны и имеют достаточно серьезные габариты. Для большого санузла лучшего решения не найти.
Унитазы приставные со скрытой инсталляцией занимают промежуточное положение между классическими вариантами (с креплением к полу) и настенными: они опираются на основание, но при этом бачок скрыт за фальшпанелью.
Что представляет унитаз данного типа
Подвесные унитазы отличаются от традиционных напольных своим расположением и креплением. Их цепляют на стену. Поверхность пола при этом остается свободной. Такие модели имеют много преимуществ, правда, о недостатках также стоит рассказать.
Первым делом, мы расскажем о плюсах.
- Подвесные модели занимают мало места. Они придвинуты вплотную к стене и не занимают поверхности пола. Это позволяет экономить пространство. Для небольших квартир самое то. Из-за особенностей конструкции, такое изделие можно разместить в какой угодно части комнаты.
- Для установки унитазов такого типа не нужно портить уже уложенную кафельную плитку. Да и вокруг трубы ничего «лепить» не нужно. Пол сантехникой будет ровный пол без изъянов.
- При наличии подвесного унитаза вы сможете без проблем установить в уборной систему «теплый пол». Раннее проложенные коммуникации не помешают вам это сделать.
- Такие унитазы выглядят более эстетично, чем традиционные. Все трубы и другие детали при их монтаже прячутся в стену.
- Система слива подвесных унитазов продумана и эффективна. Во всех моделях такого типа она регулируется двумя кнопками, что позволяет экономить воду.
Все это очень привлекательно. Было бы прекрасно, если бы подвесные унитазы не имели недостатков. Но они все же есть, не упомянуть их нельзя.
- В первую очередь, отметим высокую стоимость. Цены на подвесные модели унитазов раза в четыре больше, чем на обычные. Они, конечно, имеют свои преимущества, но все равно не все готовы переплачивать.
- Замена инсталляции – дело сложное. Для это придется здорово разбирать стену.
Если вы определились с выбором, и он пал на подвесной вариант, то вам предстоит еще приобрести инсталляцию для унитаза. От нее зависит то, как долго изделие вам прослужит, насколько удобно его будет устанавливать. Так что дело серьезное. В следующих разделах мы расскажем, как это сделать правильно.
Что собой представляет инсталляция для унитаза
Если владелец хочет установить популярные унитазы подвесного типа либо биде, потребуется также монтировать специальную конструкцию – инсталляцию. Она выполняет следующие функции:
- поддерживает вход канализации;
- поддерживает вход труб с водой;
- иногда – держит водный бачок.
Использование подвесных унитазов позволит освободить пространство, а также предотвратит появление сырости под сантехникой. Еще одним преимуществом является отсутствие необходимости в демонтаже изделия при желании сменить напольное плиточное покрытие.
При выборе места размещения сантехнических приборов желательно учитывать, что задняя стена выдвинется вперед на 20-25 см.
Бачок, как правило, изготавливается из полимерного материала. После окончания монтажных работ получить доступ к нему будет невозможно, т.к. встроенная система полностью перекрывается наружной отделкой, например, керамической плиткой. Когда монтаж будет завершен, владельцу будет доступна только возможность регулирования посредством кнопки слива.
Поэтому важно изначально приобретать качественные сантехнические приборы, т.к. при возникновении неисправности потребуется заново производить процедуру: убирать плитку, демонтировать бычок, затем снова устанавливать систему
Это обойдется хозяину квартиры значительно дороже, чем, если изначально купить сантехнику высокого качества.
Итоги
Популярность сантехники с инсталляцией объясняется ее компактностью, удобством эксплуатации и высокими эстетическими характеристиками. Приборы данного типа смотрятся очень стильно, не выставляя напоказ свою внутреннюю начинку. Перед тем, как выбрать подвесной унитаз с инсталляцией, необходимо учесть целый ряд факторов. Главный из них – особенности помещения, где предполагается произвести монтаж. Представленные в продаже модули отличаются друг от друга габаритами, типом установки, и внешним оформлением. Предпочтение рекомендуется отдавать проверенным брендам, среди которых особо выделяются немецкие компании Grohe и Viega, швейцарская Geberit и американская Ideal Standard.











































