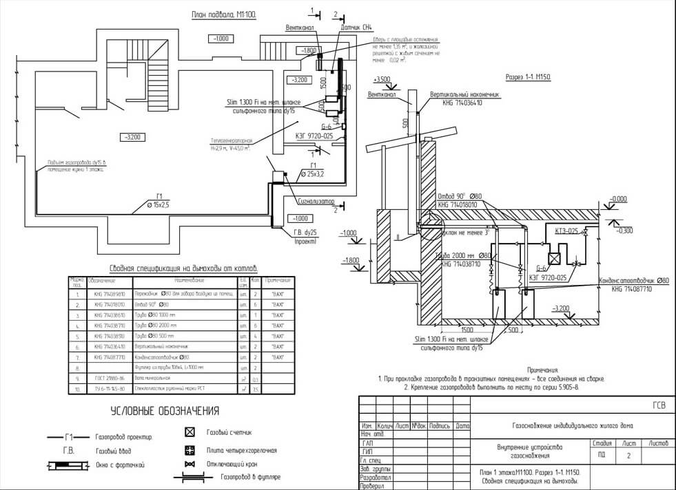
Монтаж автономного газопровода
Если владелец участка хочет сократить расходы на монтаж автономного газопровода, он может самостоятельно вырыть котлован для газгольдера. Но сделать это необходимо в точном соответствии с проектом. Все остальные работы лучше доверить специалистам, чтобы все было проделано в полном соответствии с требованиями безопасности.

При установке автономной газовой системы следует использовать наружную прокладку труб, для соединения отдельных участков применяют только неразъемные соединения
Все газовые трубы следует прокладывать только открыто, их нельзя прятать под стяжкой, фальшь-панелями или другими декоративными элементами. Тщательно следует продумать план разводки труб для сжиженного газа.
Не допускается проводить такие коммуникации транзитом через жилые помещения, через кухню или другие подсобные помещения, в которых уже установлены (или будут установлены) приборы, которые работают на сжиженном газе.
Процесс установки газгольдера в котлован включает ряд традиционных этапов:
Еще один категорический запрет, связанный с монтажом газовых труб – разъемные соединения. Разумеется, разъемы необходимы в начале сети, т.е. там, где сеть подключена к баллонам или газгольдеру. И в конце, при соединении трубы с котлом или колонкой также необходимо поставить разъем.
Но на всей протяженности автономной газовой магистрали соединения нужно делать только неразъемными. О той части газопровода, которая проложена снаружи, нужно позаботиться дополнительно.
Всю наружную сеть следует тщательно утеплить, используя специальные материалы, устойчивые к возгоранию. Кроме того, нужно обеспечить отвод конденсата, это уменьшит вероятность коррозии труб.

Чтобы сократить расходы на монтаж автономного газопровода, можно самостоятельно выкопать котлован для подземного газгольдера, но при этом обязательно нужно следовать проектной документации
Газовый котел нужно установить в отдельном помещении – понадобится обустройство котельной. Ее объем должен быть не менее 15 куб. м. В помещении необходимо сделать окно, площадь проема которого составляет не менее половины кубического метра.
Такое отверстие в наружной стене создаст выход для взрывной волны в случае аварии. Если газ взорвется в помещении с глухими стенами, все здание может серьезно пострадать.
На входе в котельную следует поставить дверь, которая открывается наружу. Еще один момент, которым нельзя пренебрегать – вентилирование помещения котельной. Приток свежего воздуха должен быть постоянным, чтобы обеспечить горение газа.
Необходимо обеспечить достаточно хороший воздухообмен, чтобы газ не концентрировался в помещении с открытым огнем в случае случайной утечки.

Газовый котел следует устанавливать в отдельном помещении с окном и дверью, которая открывается наружу. Отделку выполняют с помощью огнестойких материалов
Вентиляция также предотвратит отравление продуктами горения, если возникнут проблемы с дымоходом. Если нет возможности выделить для котла отдельное помещение, допускается установка некоторых моделей в подвале или на цокольном этаже.
Но в этом случае следует обязательно установить в помещении с котлом систему для контроля уровня содержания опасных газов в воздухе.
Монтажные работы по автономной газификации газгольдером занимают обычно два или три дня. Но после их окончания следует оформить еще ряд документов и провести некоторые согласования. Испытание готовой системы на герметичность должно быть проведено под наблюдением специалистов из областной газовой организации и Ростехнадзора.

Перед тем, как выполнять обратную засыпку подземного газгольдера песком, необходимо подождать после его установки около двух-трех недель
После проверки газгольдер засыпают песком, после чего нужно подождать около трех недель перед первой заправкой емкости сжиженным газом. Окончание работ должно быть оформлено официальным актом приема-передачи. Одновременно обычно заключают договор о сервисном обслуживании.
Иногда удобнее пригласить для монтажа наружного и внутреннего газопровода разных подрядчиков. В этом случае специалисты рекомендуют разграничить ответственность между исполнителями и оформить этот момент отдельным актом. Не помешает также позаботиться о страховании гражданской ответственности.
Новые правила
В июне 2021 года Госдума приняла закон, согласно которому у населения появилась возможность бесплатно довести газ до границ своего участка. До этого времени магистральный газ проводился только до границ населенного пункта.
от 01.06.2021 г. внеся изменения в закон № 69-ФЗ «О газификации в Российской Федерации» (размещен в правовой системе Гарант и Консультант) установил нормы социальной газификации, то есть бесплатного подключения частных домов к действующим или новым сетям газораспределения.
За чей счет поведут газ к участку
Если в населенном пункте, где расположен частный дом, уже имеется или прокладывается газовая магистраль, то все работы по прокладке газопровода будут оплачиваться за счет государства. В этом случае граждане будут оплачивать стоимость газового оборудования, а также работы по прокладке коммуникаций на участке и внутри дома.
Участие в программе социальной газификации могут принять домовладения, расположенные в населенных пунктах, в которых по состоянию на 01.01.2020 года проложены внутригородские и внутрипоселковые газораспределительные сети (Распоряжение правительства № 1152-р от 30.04.2022 г). Кроме этого земельный участок должен отвечать следующим требованиям:
- в населенном пункте, где он расположен, до 01.01.2020 года проведен и сдан распределительный газопровод;
- участок расположен на расстоянии не более 200 метров от существующего газопровода;
- объем потребления на участке (жилой дом, баня, гараж и т.д.) не превышает 7 м3 в час (этот объем позволяет отапливать площадь 300 м2 ).
Какие дома можно подключить к газоснабжению
Частные дома для подведения газа должны отвечать следующим требованиям:
- газовые котлы размещаются в подвале или цокольном этаже, в количестве не более 2 в одном помещении;
- в помещении, где располагаются котлы могут устанавливаться стеклопакеты, но при условии, что конструкция позволяет их быстро выбить;
- жилой дом обязательно оснащается приборами контролирующими давление и температуру в газовой системе и счетчиком учета расхода газа;
- газовая плита устанавливается на расстоянии 1 метра от противоположной стены;
- газовое оборудование, предназначенное для установки, имеют сертификат и все необходимые приложения;
- если газовая плита устанавливается под навесом, она обязательно должна быть оснащена защитой от задувания.
Требования к кухне:
- высота потолков не менее 2.2 метра;
- наличие зазора под дверью и окна для проветривания, с открывающимися створками;
- объем не менее 8 м2 для 2-комфорочой плиты, 12 м2 для 3-комфорочной и 15 м2 для 4-комфорочной плиты.
Что сделать чтобы получить газ бесплатно
Для участия в программе социальной газификации необходимо собрать пакет документов и подать заявку в ГРО, можно воспользоваться официальным порталом Единого оператора газификации Российской Федерации (адрес httpss://connectgas.ru) либо посетив офис регионального ГРО.
В пакет документов должны входить:
- запрос на выдачу технических условий;
- копии документов подтверждающих собственность на земельный участок и дом;
- копия документа удостоверяющего личность;
- план земельного участка;
- согласие собственника и доверенность, если документы подает третье лицо.
Президент России Путин В.В. поручил довести уровень газификации к 2030 году до 82.9%. В целях исполнения поручения и выполнения социальной программы газификации власти регионов устанавливают субсидии на основании Жилищного кодекса РФ и и закона «О государственной социальной помощи», по произведенным затратам по данной программе для следующих категорий граждан:
- участникам, инвалидам и вдовам участников ВОВ;
- труженикам тыла;
- блокадникам Ленинграда и несовершеннолетним узникам концлагерей;
- инвалидам 1 и 2 группы;
- многодетным семьям, имеющим 3 и более детей.
Кто будет проводить бесплатную газификацию
Заниматься осуществлением социальной программой газификации будет единый оператор газификации — «Газпром», в том числе его дочерние компании. Эти услуги населению будут оказываться на основании комплексных договоров, заключенных с оператором.
Могут ли отказать в подключении
Если земельный участок или дом, расположенный на нем, не отвечают требования программы газификации, в подключении ГРО откажет.
Если получен отказ в связи с неверным или неполным оформлением документов, о чем заявитель получает уведомление и у него есть возможность в течение 20 дней исправить недочеты и вновь подать документы.
Рубрика. Вы спрашивали, мы отвечаем
Перейдем к наиболее часто задаваемым вопросам по теме.
Провели газ, как оформить подключение
Такой вопрос часто возникает у людей, которые приобрели дом с уже врезанным газопроводом, но дело до оформления на подключение газа в частном доме так и не дошло.
В этом случае обязательно запросите все документы на газификацию частного дома у предыдущего владельца. Поскольку, по сути, остается заключить договор с газоснабжающей службой и все! Но к нему понадобятся все ранее собранные документы, читайте выше.
Переехали в новый дом, надо ли переоформлять документы на газ
В любом случае у Вас должна быть абонентская книжка на газификацию, оформленная на Вас! Поэтому после переезда придется переоформлять договор. Но в данном случае все гораздо проще и договор, по сути, будет просто переоформлен на вашу фамилию.
Можно ли оформить заявку на подключение газа через интернет
Можно, если есть такая услуга у газовиков. Например, Мособлгаз располагает такой возможностью. Регистрируйтесь на сайте и получите доступ к личному кабинету. Необходимо будет оформить заявку и приложить копии документов. После рассмотрения надо будет явиться к газовикам и заключить договор.
Какие документы нужны для газификации частного дома в деревне
Без разницы, в деревни или в городе, основной перечень один и в этой статье он перечислен. Если же деревня не газифицирована в целом, то можно будет подать коллективную заявку на подключение газа.
Вкратце, наверное, все. В нашей рубрике: “Подключение газа” можно найти всю информацию о порядке подключения газа и газоснабжения в целом.
P.S. Перечисленный перечень исполнительной документации при газоснабжении в частном доме приблизительный и зависит от ресурсоснабжающей организации.
Мне нравится1Не нравится
Льготы по газификации частного дома
В нашей стране большое количество категорий населения, которые активно поддерживаются государством, путем предоставления различных льгот. К ним относятся малоимущие семьи или отдельные граждане, ветераны ВОВ или других боевых действий, многодетные семьи или одинокие многодетные родители, инвалиды. Но действующее федеральное законодательство, к сожалению, не предоставляет никаких льгот и поблажек при газификации частных домов. Имеются различные льготы по оплате того же газа и на услуги жкх, но при проведении трубопроводов льгот нет.
Региональные льготы по подключению газа
Отсутствие федеральных льгот не значит, что их не может быть вообще. Краями и областями России на региональном уровне все же выделяются отдельные категории граждан, которым предоставляются льготы на проведение газа. Данная льгота выражается в компенсации затрат на подключение. Как правило, такими категориями являются ветераны труда, многодетные семьи, герои Советского Союза и России, инвалиды всех 1-2 группы, участники Великой Отечественной Войны, чернобыльцы. Для получения компенсации необходимо собрать все документы, подтверждающие проведенные работы и оплату за них.
Рассмотрим более подробно льготы по подключению газа на примере Ростовской области.
Так, областным законом Ростовской области льготы по газификации в виде компенсации имеют:
- Инвалиды Великой отечественной войны.
- Участники Великой Отечественной войны.
- Инвалиды I и II групп.
- Бывшие несовершеннолетние узники фашизма.
- Лица, награжденные знаком «Жителю блокадного Ленинграда».
- Труженики тыла.
- Вдовы погибших (умерших) инвалидов Великой Отечественной войны и участников Великой Отечественной войны.
- Многодетные семьи
Размер компенсации составляет не более 50 % от уплаченной суммы за подключение. Но максимальная сумма, которая может быть выплачена ограничена 20 000 рублей (по состоянию на 2015 г.). То есть если фактические затраты на подключение газа, например, составили 100 000 рублей – то сумма компенсации составит – 20 000 рублей.
Компенсация может быть предоставлена только один раз в жизни. Для получения компенсации необходимо обратиться в местное отделение Управления социальной защиты населения с заявлением, а также приложить документы, подтверждающие льготный статус и выполненные работы по газификации объекта недвижимости.
В Ленинградской области, например, действует региональная льгота на газификацию. Там принят специальный порядок предоставления субсидий при подключении газового оборудования к распределительной газовой сети. Властями области были установлены суммы, которые будут выплачиваться из бюджета, это 110000 рублей для льготников, которые были перечислены выше, и по 70000 для всех остальных. По задумке властей с учетом субсидии конечная сумма на газификацию, которую потратит гражданин, будет составлять от 10000 до 50000 рублей. Но важным условие является то, что хозяин дома должен быть в нем зарегистрирован и проживать в нем не менее 1 года.
Право областные власти на местном уровне принимать решение о наделении отдельных категорий граждан льготами по оплате за подключение к газу означает, что при проведении газа в частный дом необходимо узнать в местной администрации о наличии субсидий для льготников в конкретном регионе.
Какие дома можно подключить к газоснабжению
Централизованное газоснабжение предусматривает транспортировку и доставку природного газа потребителю. Подключение капитального строения к газовой магистрали включает два этапа – организационные и технические действия. В комплекс организационных мероприятий входит подготовка и сбор необходимой технической документации, подача заявления на газификацию и заключение договора в случае положительного решения газовой службы.
Технические действия: подводка газовой магистрали к земельному участку, подсоединение дома к газораспределительной сети, установление газового счётчика и запуск газа.
Газификация жилого дома чётко регламентирована законодательством. Согласно Постановлению Правительства №1314 подключение газа разрешается к объектам капитального строения. Если жилые, дачные или садовые дома, а также гаражи и постройки хозяйственного назначения имеют прочную связь с землёй, т. е. установлены на фундаменте, и зарегистрированы как недвижимость, то с их подключением не возникнет никаких проблем. В любом другом случае в газификации будет отказано. Попытка подключения газоснабжения к объектам не капитального строительства запрещается законом и, в зависимости от последствий, карается штрафом или уголовным наказанием. В многоквартирном доме газ подключается ко всему дому. Чтобы подключить капитальные строения, расположенные на территории гаражных кооперативов, садоводства или дачных посёлков, заявку на технологическое присоединение подаёт собственник территории.
Получение Технических условий на подключение к сети газораспределения
ТУ получить можно у специализированной организации. Согласно п. 6 Заявитель, не располагающий сведениями об организации, выдающей технические условия, обращается в орган местного самоуправления с запросом об организации, выдающей технические условия.
Срок предоставления ТУ: 14 дней с момента получения заявления с приложениями.
Запрос о предоставлении технических условий должен содержать:
- фамилию, имя, отчество, местожительство и почтовый адрес;
- планируемый срок ввода в эксплуатацию объекта капитального строительства (при наличии соответствующей информации);
- планируемую величину максимального часового расхода газа (мощности) отдельно по различным точкам подключения (если их несколько) с обоснованием необходимости подключения нескольких точек. В случае если заявитель не обладает информацией о планируемой величине максимального часового расхода газа, указанная информация уточняется с участием сотрудников исполнителя при подаче запроса о предоставлении технических условий либо при его формировании без взимания платы при максимальном часовом расходе газа не более 5 куб. метров и за плату при максимальном часовом расходе газа более 5 куб. метров.
Расчет планируемого максимального часового расхода газа может быть выполнен исполнителем в случае направления заявителем письменного запроса о расчете
- полного и сокращенного (при наличии) наименований заявителя, его организационно-правовой формы, местонахождения, почтового адреса (для юридического лица) либо фамилии, имени, отчества, местожительства, почтового адреса (для физического лица (индивидуального предпринимателя);
- направления использования газа, а также характеристик его использования — предполагаемой отапливаемой площади, состава газоиспользующего оборудования, иных характеристик использования газа (определяются заявителем в случае необходимости).
К запросу о предоставлении технических условий прилагаются следующие документы:
- копия свидетельства о государственной регистрации права на земельный участок, на котором располагается принадлежащий заявителю объект капитального строительства (далее ‒ земельный участок);
- ситуационный план расположения земельного участка с привязкой к территории населенного пункта;
- расчет планируемого максимального часового расхода газа (не требуется в случае планируемого максимального часового расхода газа не более 5 куб. метров);
Лучше сразу обратиться в организацию, выдающую ТУ, чтобы они предоставили форму заявления о выдаче ТУ.
Этапы газификации жилого дома
Для начала процесса потребуется приложить усилия, первым делом уточняется информация о юрисдикции существующей магистрали. После чего оформляется технический план на дом, затем будущему потребителю нужно составить проект.
Последним этапом будут непосредственные строительные работы, прокладка системы снабжения производится специалистами, которые имеют лицензию на реализацию подготовленного топоплана участка.
Получение технических условий на газоснабжение
Подобные данные могут выдаваться отдельным документом, но в некоторых ситуациях он является приложением к договору. Разработкой занимается ГРО, после подачи необходимых документов учитываются такие факторы как:
- Нагрузка при расходе в час.
- Срок подключения.
- Срок действия ТУ, не более 70 дней.
Если по истечении отведенного времени не получилось оформить договор, то процедуру следует проделать заново.
Проект газификации частного дома под ключ
Документ создается еще до начала всех работ, без него приступать к реализации нельзя, это обусловлено потенциальной опасностью, которая предполагает соблюдение новых правил. Специалисты этой отрасли знают все тонкости манипуляций и неукоснительно их выполняют. Соответствие проекта с нормами потребует проверки, в некоторых случаях может производиться доработка.

Стоимость проекта газификации
В этом вопросе главную роль играет сложность работы и проведение по всем правилам системы снабжения. Специалисты могут индивидуально оценить конечную сумму, подобные моменты стоит уточнять при личной встрече. Зачастую плата за услугу в среднем обходится 1000 рублей за погонный метр, но это только приблизительные данные.
Покупка газового оборудования
Закупать приспособления необходимо предварительно, без их технических характеристик невозможно просчитать стоимость газификации и составить смету. Но прежде чем посетить магазин не будет лишним подумать над мощностью и производительностью каждого элемента, который будет устанавливаться в помещениях.
Расставлять агрегаты необходимо в соответствии с составленным проектом, этому нюансу нужно уделить особое внимание. Цены на продукцию такого плана отличаются, все зависит от комплектации и производителя
Монтаж газопровода
После подведения трубы от центральной магистрали хозяин может оплатить непосредственное подключение по земельному участку, на котором расположена постройка. Сотрудники ГРО сделают такую работу гораздо быстрее, для этого составляется определенный договор.

В большинстве ситуаций искать частные фирмы будет невыгодно, их в большинстве районов немного, а заказ может обрабатываться определение время. Просчет материалов и другие мелкие моменты ложатся на специалистов, работать с ними получится достаточно продуктивно, тарифы зачастую можно узнать заранее.
Приемка работ
Если сторонняя организация будет заниматься этим вопросом, пуск газа производят только профессионалы ГРО, именно поэтому люди отдают предпочтение работать напрямую с организацией. Контроль хозяина также не будет лишним, ведь за небольшие оплошности мастеров без должного опыта отвечать ему.
Заключение договора с межрегионгазом на подачу газа
Подобные документы касаются обеспечения бытовых нужд абонента по поставке голубого топлива, с целью урегулирования отношений сторон. Прежде чем договор вступит в силу, необходимо предоставить перечень документов с соблюдением всех рекомендаций.
Ознакомившись с условиями, каждый потребитель может задать интересующие вопросы, после чего начнется беспрерывная поставка газа в постройку.
Подобные мероприятия предполагают присутствие хозяина постройки или доверенного лица, прежде чем приедут специалисты потребуется получить разрешение на ввод системы в эксплуатацию. Письменное заявление можно подать в ГРО, но для этого потребуется собрать определенный пакет документов.
Требования для подключения газа к частному дому
Основные требования СНИП таковы:
- Трубы необходимо прокладывать не менее чем в 2.5 м. от поверхности земли.
- Газопровод закрепляется к неподвижной опоре, например к стене дома. При этом он не должен пересекать окна и двери.
- Высота потолков в помещении не должна быть меньше 2.4 м. если используется котел отопления мощностью до 60 кВт.
- Площадь окон должна составлять 0.03 м2 на 1 м3 помещения, при этом быть не менее 0.8 м2.
- При монтаже одного котла площадь помещения должна составлять 7.5 м2 или более, в случае использования двух котлов — от 15 м2.
- Если отопительное оборудование устанавливается в цоколе, следует установить сигнализатор загазованности.
- Объем кухни необходим 8 м3 или более при использовании двухконфорочных плит, и от 15 м3 при использовании четырехкомфорочных.
С полными нормами и требованиями правил проектирования систем газопотребления в жилых зданиях можно ознакомиться в новом документе СП 402.1325800.2018.
Как подать заявку
Заявку на подключение удобнее всего подать через сайт единого оператора газификации. Там же можно проверить, подходит ли ваш участок для программы. Заявку также можно подать через сайт «Госуслуги», но есть существенный минус — заявление примут на рассмотрение вне зависимости от того, подходит ваш участок для соцгазификации или нет.
Заявление рассматривают быстро — до одной-двух недель. Далее вас пригласят на заключение договора. К нему прилагается план-график работ, в котором будут указаны сроки подключения вашего дома. Как правило, он совпадает с общим планом-графиком по вашему населенному пункту, поэтому ознакомиться с ним можно на сайте единого оператора на интерактивной карте.
Если населенный пункт не включен в утвержденный план-график, срок подключения определяется в договоре на основании поданной заявки следующим образом:
- 30 дней, если не нужно строить газораспределительную сеть до границы земельного участка, на котором расположен дом;
- 100 дней, если для присоединения необходимо построить сеть протяженностью до 30 метров;
- 365 дней, если для присоединения необходимо построить сеть протяженностью от 30 метров.
Это идеальные сроки. На деле газовики не успевают по плану-графику, поэтому откладывают заявки на срок от 50 до 200 дней и пересматривают договоры.
Льготы на подключение газа
Общие по стране социальные гаранты всех многодетных семей регламентируются согласно УП РФ от 05.05.1992 N 431. Во всех остальных нормативных актах, меры помощи оставлены на региональное усмотрение.
Так в Федеральном законе от 31.03.1999 N 69-ФЗ (ред. от 26.07.2019) «О газоснабжении в Российской Федерации», а именно в статье 24, указано, что компенсации малоимущим гражданам и список их по категориям, определяется индивидуальными нормативными актами субъектов РФ, то есть территориальными единицами.
Но, опять же, как уже было сказано, помощь в обеспечении магистральным снабжением добровольно нормируется и формируется в размерах на региональном уровне.
В каждой области, где предусмотрена программа компенсации, выделяемые средства могут разниться в суммах, так же как и условия их предоставления
Так, например, в законе 27.03.2009 № 259-ОЗ города Липецка и области малоимущие имеют право на компенсационную помощь в размере 50% от затрат на газификацию частного дома или квартиры многодетным семьям.
В некоторых городах это, опять же, 50-процентная выплата, но не превышающая 20-35 тысяч рублей. И подобные льготы с разницей в размерах финансирования действуют в ряде других регионов. Однако, к сожалению, не во всех. Уточнить, есть ли такая поддержка в субъекте, в котором вы проживаете, можно на сайте соцзащиты или в ее отделении, а также в МФЦ.
Сразу отметим, что скидка чаще всего не действует на приобретение внутридомового газового оборудования и оснащения: котлов, плит, газовых труб для прокладки внутренних веток, запорной арматуры, газовых шлангов для временного подключения, на покупку и установку газовых счетчиков.
В случае получения положительного ответа, семья должна соответствовать следующим критериям:
- Быть многодетной, т.е. с удостоверением, подтверждающим статус;
- Отвечать параметрам малоимущей;
- Владеть официально оформленной недвижимостью. Недвижимость должна быть в собственности подающих заявку и построена в местности, где уже есть газопровод или планируется его введение в эксплуатацию в ближайший год. Подавший заявление должен быть зарегистрирован в объекте недвижимости, которое газифицирует;
- Ранее не получать помощи в газификации по данной статье;
- Жить в регионе, оказывающем помощь в газификации строений многодетным семьям.
Очень важно иметь с собой полный пакет необходимых документов. Как правило, это оригиналы, копии сделают на месте. В МФЦ вам подскажут, какие именно документы необходимо собрать, а также расскажут про прочие льготы, на которые вы можете рассчитывать
В частности, в некоторых регионах многодетным семьям могут бесплатно заменить газоиспользующее оборудование
В МФЦ вам подскажут, какие именно документы необходимо собрать, а также расскажут про прочие льготы, на которые вы можете рассчитывать. В частности, в некоторых регионах многодетным семьям могут бесплатно заменить газоиспользующее оборудование
Перед подачей заявки на государственную поддержку стоит уточнить, какие именно документы следует предъявить предварительно, но обычно это:
- Заявление, написанное по выданной вам форме (можно заполнить на месте);
- Документ, подтверждающий личность подающего заявление (паспорт);
- Свидетельства о рождении всех детей, по которым выдано удостоверение многодетности;
- Удостоверение многодетной семьи;
- Выписки/справки с места учебы детей, военной службы по призыву (если проходят и учатся);
- Справка о составе вашей семьи;
- Выписка из банка (с отчетом о доходности семьи за 3 месяца);
- Контракты с организациями о выполненных работах по газификации и акт-приемки работ, а также чеки об оплате;
- Выписка из банка с лицевым счетом заявителя.
Отказ в частичной компенсации затраченных средств по льготе, может быть вынесен в случае, если предоставленные документы вызывают сомнения.
Помощь не получите также, если вы лишены статуса многодетности и по прочим причинам, нарушающим порядок предоставления государственной поддержки.
Если вы не согласны с решением комиссии, вы его можете обжаловать в судебном порядке. При этом необходимо предоставить суду тот-же пакет документов и письменный отказ от органов соцзащиты
Не стоит ждать, что управляющие органы вам оформят автоматическую поддержку. Это распространенная ошибка, бездействие ни к чему не приведет. Не откладывая, сходите лично или обратитесь по телефону в органы соцзащиты или МФЦ для уточнения целесообразности сбора документов на компенсацию газификации.
Как провести газ в частный дом? Этапы подключения
Газификация частного жилого дома состоит из последовательных этапов:
- Получение технических условий.
- Изготовление проектно-сметной документации.
- Выполнение строительно-монтажных работ.
- Приемка объекта в эксплуатацию, заключение договора на поставку природного газа и пуск газа в жилой дом.
Оформление и получение технической документации в 2021 году
Многие граждане, решившие провести газ в частный дом, не могут понять, с чего начать процедуру проведения газификации. Прежде чем решиться провести газ в дом, необходимо для начала выяснить: есть ли возможность подключить газ конкретно к вашему дому. Для этого нужно посмотреть, где проходят магистральные трубы газа.
После визуального осмотра и нахождения газовых труб, заинтересованное лицо должно пойти в газоснабжающую организацию (Газпром либо к другому поставщику газа) и написать заявление о возможности подключения газа к частному дому.
Чтобы узнать, какая организация занимается газификацией вашего района, достаточно найти в интернете информацию о том, кто занимается газификацией конкретно по вашему адресу.
Через некоторое время (1–4 недели) обслуживающая организация даст ответ о возможности подключения газа. Если было получено одобрение по заявке, тогда заявителю нужно будет прийти в отделение компании, получить на руки договор с техническими условиями на подключение газа.
Изготовление проектно-сметной документации. Проект газификации частного дома в РФ
Создание проекта газификации – важный этап на пути обеспечения дома природным газом. Задача инженеров-проектировщиков – обеспечить безопасную и безостановочную подачу газа ко всем устройствам.
Для этого они решают множество задач:
- прокладывают маршрут локального газопровода;
- выбирают место врезки в магистральный газопровод;
- выбирают диаметр и тип труб для подключения;
- подбирают теплообменник, дымоход, вытяжку и др.
Проект газификации частного дома разрабатывается после выдачи технических условий.
Для составления проекта владельцу недвижимости нужно подготовить такой пакет документов:
техпаспорт на дом (+ его копия); топографический план земельного участка со всеми коммуникациями и газопроводом. План должен быть утвержден газовой службой; технические условия; документы на газовый прибор и газовое оборудование, которое будет монтировано в частном доме.
Когда собственник жилья заключит договор с проектной компанией, компетентный сотрудник этой компании (инженер-проектировщик) должен будет прибыть на место и провести необходимые замеры, чтобы составить проект разводки газовых коммуникаций по дому и по земельному участку.
На месте можно согласовать со специалистом место расположения котельной, счетчика.
При строительстве дома, куда в дальнейшем будет проводиться газ, важно предусмотреть все требования к котельной. Разрешение на подключение дома к газу смогут получить только те лица, которые соблюли ряд требований:
Кто может претендовать на социальную газификацию
Чтобы претендовать на подключение, участок и дом должны соответствовать нескольким критериям:
- участок находится не более чем в 200 м от газораспределительной сети;
- дом на участке — капитальное строение;
- собственники жилой недвижимости — только физлица;
- максимальный расход газа в доме не превышает 7 кубометров в час — этого более чем достаточно для бытовых нужд.
Исходя из требований получается, что в вашем населенном пункте уже должен быть газопровод, то есть вас подключат к существующей сети — это называется догазификацией. Других требований нет. Вне зависимости от льготного статуса оператор подключения проведет работы по запланированной очереди.
Что касается участков в садовых некоммерческих товариществах и огородных некоммерческих товариществах, то в этом случае соцгазификация рассчитана только для тех СНТ и ОНТ, которые расположены в границах населенных пунктов. При этом газопровод бесплатно проведут только до границ товариществ, а уже к участкам и к домам собственники должны подключаться за свой счет.
Если газовой магистрали в населенном пункте еще нет, то участвовать в программе нельзя, так как это уже называется газификацией. На этот процесс повлиять нельзя — им занимается «Газпром» за счет средств федерального и регионального бюджетов.





































