Расчет материалов
Главное, что следует знать при строительстве сооружений из сэндвич-панелей – это количество тех самых панелей, чтобы не купить лишнее и не бегать по городу в поисках недостающего элемента. Возьмем как пример гараж 5 на 7 метров с высотой передней стенки 3,6 метра, а задней 2,4 метра.
Ширина и высота ворот будет соответственно 2,7 и 2,3 метра. Крышу будем проектировать односкатной.
Расчет сэндвич-панелей для гаража
Найдем площадь треугольника по формуле S=a·h, где a – длина стены, h – высота стены.
S=7·2,4=16,8 м²
Поперечный стык стеновых панелей.
После найдем площадь прямоугольного треугольника, используя формулу S=(a·h):2
S=(7·1,2):2=4,2 м²
Общую площадь боковой стены возможно получить сложением предыдущих результатов, а затем результат увеличить вдвое в связи с тем, что стены две.
16,8+4,2=21 м²
21·2=42 м²
Получается, что на боковые стороны гаража необходимо приобрести 42 м² сэндвич-панелей. Таким же образом можно рассчитать площадь задней стенки гаража по известной нам формуле.
S=5·2,4=12 м²
Так как на передней стенке располагаются ворота, то сначала стоит узнать их площадь и вычесть ее из общей площади стены.
Sв= 2,7·2,3=6,21 м² – площадь ворот.
S=3,6·5=18 м² – площадь стены.
Sл=S-Sв=18–6,21=11,79 м² – чистая площадь передней стены без учета ворот.
Находим площадь крыши.
S=5·7=35 м²
Суммируем полученные данные.
42+12+11,79+35=100,79 м²
Получается, что на гараж с заданными выше параметрами следует приобрести почти 101 м2 сэндвич-панелей.
Расчет бетона для фундамента
Чаще всего строители при возведении основания гаража из сэндвич-панелей используют ленточный или плитный фундамент. Ленточный находится по периметру гаража, а также имеет дополнительную ленту по центру помещения от передней до задней стенки. Высота и ширина бетонного основания 40 на 40 соответственно.
Защитная пленка сэндвич-панели.
Количество смеси, необходимого для заливки фундамента, определяется по формуле объёма куба V=h³, где h – значение сторон фигуры. Сначала найдем значение одной ленты, а потом результат умножим на 3 и узнаем объём всех трех лент.
V=0,4·0,4·7=1,12 м³ – одна лента.
1,12·3=3,36 м³ – три ленты.
Далее рассчитываем количество смеси, необходимое на среднюю ленту, идущую от середины передней до середины задней стенки. Сначала три ширины ленты вычтем из ширины помещения.
5-(0,4+0,4+0,4)=3,8 м
Найдем, сколько необходимо смеси для полученного значения ленты. В формулу нахождения куба подставляем значения и получаем следующее.
3,8·0,4·0,4=0,608 м³
Находим общее значение двух сторон.
0,608·2=1,216 м³
Зная эти данные теперь легко найти общий объём бетонной смеси.
3,36+1,216=4,576 м³
Вычисления плитного фундамента гораздо проще. При толщине основания в 20 сантиметров расчет по той же формуле нахождения объёма выглядит следующим образом:
V=5·7·0,2=7 м³
Если гараж спроектирован со смотровой ямой, то при проведении расчетов следует найти ее объём, а затем вычесть его из итоговых значений.
Расчет арматуры для основания
Арматурный пруток сечением 12 мм используется для усиления прочности плитного фундамента. Он кладется в виде сетки с ячейками 15 на 15 см и заливается бетонной смесью.
Перпендикулярно передней и задней стенке поместится следующее количество прутка:
5:0,15=33,3 прутка.
Узнать общую длину в погонных метрах поможет следующий расчёт:
33,3·7=233,1 п. м. по длине гаража.
Схема гаража из сэндвич-панелей.
Аналогичные действия проведем и по отношению к ширине гаража:
7:0,15=46,6 прутка.
46,6·7=326,2 п. м. по ширине гаража.
Сложив эти значения, получаем общее количество арматуры в погонных метрах:
233,1+326,2= 559,3 п. м.
Армирование всегда производится в 2 слоя, следовательно, итоговое число будет выглядеть следующим образом:
559,3·2=1118,6 п. м. потребуется для армирования плитного основания гаража 5 на 7 метров.
Необходимые инструменты
Набор инструментов для строительства гаража из такого материала не уникальный. Человек, хоть немного занимающийся строительством, основную часть уже имеет в наличии, а некоторые элементы можно взять напрокат у строительных магазинов или доброго соседа.
А набор выглядит следующим образом:
- лопата либо мини экскаватор;
- земельный бур;
- тачка для вывоза земли;
- молоток;
- ножницы по металлу;
- шуруповерт;
- циркулярная пила;
- ножовка;
- аппарат для замешивания бетона;
- резервуар с водой;
- кусачки;
- аппарат для сварки;
- вертикальный и горизонтальный строительный уровень;
- рулетка измерительная;
- деревяные колышки и веревка.
Проекты гаражей на две машины
Гараж на две машины обычно строится на своем участке, поэтому нелишним будет расположить в этом здании террасу, мастерскую или другое техническое помещение. Предлагаем несколько проектов гаражей, которые изготовлены из деревянных панелей на каркасе.

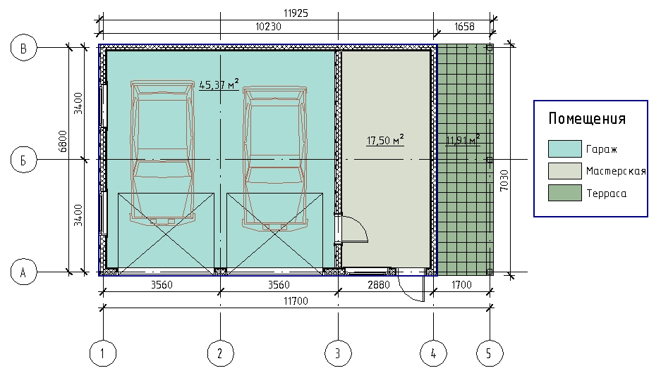
Первый проект — помещение с гаражом на две машины с небольшой мастерской в 17,5 м2, которую можно использовать для столярных или слесарных дел, либо для хранения важных инструментов. По плану в мастерской не предусмотрено окно, если оно необходимо, следует его добавить в чертеж. Справа от входа в гараж предлагается построить узкую террасу с размерами 1,7 на 7 метров.

Второй проект — гараж на две машины, за перегородкой которого находятся еще два подсобных помещения для хранения инструментов, сменных колес, емкостей с маслом. Если вам эти комнатки не нужны, вы можете удалить их из плана, получив чертеж гаража на два автомобиля без дополнительных зон.
Заключительный вопрос, волнующий автовладельцев — будущих строителей каркасного гаража. Это цена. На ремонтных порталах просчитана минимальная стоимость конструкции на 2017 г. На каркас гаража уйдет минимум 35 тысяч рублей. На двойные рольворота с электроподъемником — минимум 100 тысяч. Еще несколько десятков тысяч пойдет на «пирог» стен: на сайдинг, утеплитель, гипсокартон, ветрозащиту.
Строители в интернете рассчитывают, что построить каркасный гараж на две машины (особенно используя каркас из древесины) стоит дороже, чем возвести аналогичную по размерам конструкцию, но из пенобетона. Так как пенобетон не надо дополнительно утеплять, обшивать и гидроизолировать.
Зато с каркасным гаражом можно сэкономить на рабочих руках, для его возведения не понадобится бригада. Достаточно одного руководителя (вас) и одного подсобного рабочего (вашего товарища).
Расчет материалов
Главное, что следует знать при строительстве сооружений из сэндвич-панелей – это количество тех самых панелей, чтобы не купить лишнее и не бегать по городу в поисках недостающего элемента. Возьмем как пример гараж 5 на 7 метров с высотой передней стенки 3,6 метра, а задней 2,4 метра.
Ширина и высота ворот будет соответственно 2,7 и 2,3 метра. Крышу будем проектировать односкатной.
Расчет сэндвич-панелей для гаража
Найдем площадь треугольника по формуле S=a·h, где a – длина стены, h – высота стены.
S=7·2,4=16,8 м²
Поперечный стык стеновых панелей.
После найдем площадь прямоугольного треугольника, используя формулу S=(a·h):2
S=(7·1,2):2=4,2 м²
Общую площадь боковой стены возможно получить сложением предыдущих результатов, а затем результат увеличить вдвое в связи с тем, что стены две.
16,8+4,2=21 м²
21·2=42 м²
Получается, что на боковые стороны гаража необходимо приобрести 42 м² сэндвич-панелей. Таким же образом можно рассчитать площадь задней стенки гаража по известной нам формуле.
S=5·2,4=12 м²
Так как на передней стенке располагаются ворота, то сначала стоит узнать их площадь и вычесть ее из общей площади стены.
Sв= 2,7·2,3=6,21 м² – площадь ворот.
S=3,6·5=18 м² – площадь стены.
Sл=S-Sв=18–6,21=11,79 м² – чистая площадь передней стены без учета ворот.
Находим площадь крыши.
S=5·7=35 м²
Суммируем полученные данные.
42+12+11,79+35=100,79 м²
Получается, что на гараж с заданными выше параметрами следует приобрести почти 101 м2 сэндвич-панелей.
Расчет бетона для фундамента
Чаще всего строители при возведении основания гаража из сэндвич-панелей используют ленточный или плитный фундамент. Ленточный находится по периметру гаража, а также имеет дополнительную ленту по центру помещения от передней до задней стенки. Высота и ширина бетонного основания 40 на 40 соответственно.
Защитная пленка сэндвич-панели.
Количество смеси, необходимого для заливки фундамента, определяется по формуле объёма куба V=h³, где h – значение сторон фигуры. Сначала найдем значение одной ленты, а потом результат умножим на 3 и узнаем объём всех трех лент.
V=0,4·0,4·7=1,12 м³ – одна лента.
1,12·3=3,36 м³ – три ленты.
Далее рассчитываем количество смеси, необходимое на среднюю ленту, идущую от середины передней до середины задней стенки. Сначала три ширины ленты вычтем из ширины помещения.
5-(0,4+0,4+0,4)=3,8 м
Найдем, сколько необходимо смеси для полученного значения ленты. В формулу нахождения куба подставляем значения и получаем следующее.
3,8·0,4·0,4=0,608 м³
Находим общее значение двух сторон.
0,608·2=1,216 м³
Зная эти данные теперь легко найти общий объём бетонной смеси.
3,36+1,216=4,576 м³
Вычисления плитного фундамента гораздо проще. При толщине основания в 20 сантиметров расчет по той же формуле нахождения объёма выглядит следующим образом:
V=5·7·0,2=7 м³
Если гараж спроектирован со смотровой ямой, то при проведении расчетов следует найти ее объём, а затем вычесть его из итоговых значений.
Расчет арматуры для основания
Арматурный пруток сечением 12 мм используется для усиления прочности плитного фундамента. Он кладется в виде сетки с ячейками 15 на 15 см и заливается бетонной смесью.
Перпендикулярно передней и задней стенке поместится следующее количество прутка:
5:0,15=33,3 прутка.
Узнать общую длину в погонных метрах поможет следующий расчёт:
33,3·7=233,1 п. м. по длине гаража.
Схема гаража из сэндвич-панелей.
Аналогичные действия проведем и по отношению к ширине гаража:
7:0,15=46,6 прутка.
46,6·7=326,2 п. м. по ширине гаража.
Сложив эти значения, получаем общее количество арматуры в погонных метрах:
233,1+326,2= 559,3 п. м.
Армирование всегда производится в 2 слоя, следовательно, итоговое число будет выглядеть следующим образом:
559,3·2=1118,6 п. м. потребуется для армирования плитного основания гаража 5 на 7 метров.
Необходимые инструменты
Набор инструментов для строительства гаража из такого материала не уникальный. Человек, хоть немного занимающийся строительством, основную часть уже имеет в наличии, а некоторые элементы можно взять напрокат у строительных магазинов или доброго соседа.
А набор выглядит следующим образом:
- лопата либо мини экскаватор;
- земельный бур;
- тачка для вывоза земли;
- молоток;
- ножницы по металлу;
- шуруповерт;
- циркулярная пила;
- ножовка;
- аппарат для замешивания бетона;
- резервуар с водой;
- кусачки;
- аппарат для сварки;
- вертикальный и горизонтальный строительный уровень;
- рулетка измерительная;
- деревяные колышки и веревка.
Каркасный гаража с мансардой – планировка крыши

Каркасный гараж с мансардой
Для широкого гаража рекомендуется укладывать только симметричную двускатную крышу (каркасный гараж с односкатной крышей будет испытывать большую нагрузку зимой от льда и мокрого снега). Стропильная конструкция собирается из досок с равным шагом в пределах 80 см, и должна включать не менее трех распирающих балок на каждый скат стропил. Ширина каждого ската составит более 3-х метров, поэтому потребуется усиленное крепление стропил на вершине болтами. Обрешетку следует выполнять с учетом порога между распирающими балками.
Для укладки крыши лучше использовать современные марки кровельного материала. Из наиболее предпочтительных вариантов – металлочерепица и профильный лист. Второй материал будет более практичным, т.к. обеспечивает плавный скат осадков и не создаст трудностей при уборке снега.
Заливка бетонных полов для гаража из сип панелей
После того, как ленточный фундамент схватился и стал прочным можно приступить к заливке полов. Для этого расстояние между стенок ленты необходимо засыпать и выровнять песком. Сверху на слой песка укладывается, связанная ранее, армированная сетка. Толщина прутьев у сетки чаще всего составляет не больше 10 мм.
Если не хотите получить перекосов, то обязательно выставьте по всему периметру будущего гаража маячки – быстро выровнять их можно с помощью длинного уровня или прямой 2-ух метровой доски. Раствор для полов готовится по тому же соотношению, что и для фундамента. Единственная разница кроется в консистенции – воды в растворе должны получиться больше. Благодаря заливному полу Вам не придется устанавливать лаги и выравнивать напольное покрытие после перекосов.
Изготовление своими руками
Прежде чем приступать к работе следует осмотреть исходные материалы, убрать мусор или пыль с поверхности. Процесс создания сендвичной панели содержит несколько этапов.
- Шаг 1. Нанесение на первый каркасный лист клеевого состава – для этого нужен стол размером немногим больше самой панели. Можно использовать резиновый шпатель с зубчиками или распылитель.
- Шаг 2. Укладка утеплителя – нужна определенная сноровка, помните, что клей быстро высыхает.
- Шаг 3. Промазывание внутреннего слоя клеем.
- Шаг 4. Выкладывание на скрепляющий раствор второй наружной оболочки. Как только выложили последний слой – приступайте к изготовлению следующей панели. Собрав таким образом нужное количество конструкций – отправляйте их под пресс.
- Шаг 5. Выдержка под давлением до полного застывания – подготовленные сендвичи отправляют под пресс, где вылеживаются согласно времени, указанном в инструкции.
Читать также: Томат денежный мешок характеристика и описание сорта

Чтобы сделать сэндвич панель хорошего качества своими руками требуется соблюдение следующих условий:
- Клей должен наноситься равномерно по всей плоскости в течение не более 10 минут, так как он может оставаться на воздухе короткое время, после которого начинается полимеризация.
- Полимеризации сопутствует бурное вспенивание, увеличение объема клея; в этот момент следует произвести сжатие склеиваемых элементов с усилием около 18 тонн, которое может создать только мощный пресс.
- Склеенные сэндвичи выдерживают под прессом 2 – 3 часа.
- Изделие полностью высыхает за 15 – 30 часов (в зависимости от материалов), после чего острым ножом срезаются выступающие края утеплителя.
- Производится раскрой панелей согласно чертежам на листы требуемого размера и формы.
- Работу следует производить вдвоем, чтобы успеть выполнить операции до застывания полимерного состава.
Как самому сделать замок

В промышленном производстве замок создается в момент сжатия на прессе. При кустарной сборке этой возможности нет – ручное оборудование не оснащено такой функцией. Поэтому следует с торца панели вставить брус, а с противоположной – вырезать утеплитель на величину вставленного пиломатериала. По отзывам людей, воспользовавшихся подобной технологией, получается вполне «рабочий» замок.
Преимущества и недостатки материала
Удобство использования панелей этого типа заключается в том, что такой материал прост в использовании. Плиты фиксируются к заранее возведенному каркасу с помощью саморезов. Помимо этого, конструкция гаража на основе СИП-панелей обладает следующими достоинствами:
- Хорошая теплоизоляция. По этому показателю стена из сэндвич-панели сопоставима с кирпичной кладкой толщиной 2,5 метра.
- Малый вес. Этот материал обеспечивает высокую скорость возведения гаражей. Одна стандартная плита площадью 1 квадратный метр весит 15 килограмм.
- Экономичность. Панели этого типа стоят недорого. Кроме того, экономичность объясняется тем, что при монтаже плит используются саморезы, уголки и герметик.
- Стойкость к воздействию внешней среды. На поверхности панелей не появляются плесень, грибки.
К числу основных недостатков сэндвич-панелей относится то, что ОСП отличается неприглядным внешним видом. Поэтому после окончания строительства необходима дополнительная отделка стен, которая обеспечит защиту от грызунов.

Второй недостаток — повышенная горючесть. Объясняется это тем, что слой утеплителя проложен между древесными плитами, которые хорошо горят.
Описание, достоинства и недостатки сэндвич панелей
Сэндвич-панели — это трехслойный материал, состоящий из двух металлических, пластиковых или иных листов с помещенным между ними слоем утеплителя (чаще всего, вспененного полистирола или полиуретана). Используются для постройки быстровозводимых зданий с каркасом из металлического уголка, швеллера или иных видов проката.
Плоскости панелей покрываются полимерным защитным покрытием, исключающим коррозийные процессы. Строительство из такого материала занимает гораздо меньше времени, чем возведение зданий из кирпича или подобных материалов.
Существуют стеновые и кровельные виды сэндвич-панелей, позволяющие полностью создать все ограждающие элементы конструкции постройки без использования тяжелых плит перекрытия или комбинирования разных стройматериалов.
Кроме того, сэндвич-панели имеют такие достоинства:
- Малый вес, удобство транспортировки и монтажа.
- Высокие теплосберегающие свойства.
- Долговечность от 35 лет.
- Экологическая чистота материала.
- Высокая скорость монтажа, возможность повторного использования.
- Возможность строить в любое время года.
При этом, имеются некоторые недостатки:
- Ограниченная несущая способность.
- Возможность образования конденсата по стыкам материала.
- Меньшая прочность и толщина стен в сравнении с другими стройматериалами.
- Необходимость периодического обновления защитного покрытия.
- Некоторые виды утеплителя со временем теряют свои качества, слеживаются и перестают выполнять свои функции.
Основным недостатком сэндвич-панелей считается невозможность многоэтажного строительства. Низкая несущая способность полотна не позволяет выдерживать механические или ветровые нагрузки, но, тем не менее, из них возводятся как вспомогательные или хозяйственные, так и жилые постройки.
Выбор проекта гаража из сэндвич панелей
Будущее долголетие гаража закладывается на стадии проектирования
Гараж – не настолько сложное в конструкционном отношении строение, чтобы заказывать его проект в специализированных организациях. Можно самостоятельно сделать все схемы и расчёты. Для этого нужно определиться с несколькими параметрами:
- Найти место для строительства гаража.
- Выбрать размеры строения: его длину, ширину и высоту.
- Решить, сколько окон будет в гараже и где они будут расположены.
- Определиться с тем, какие будут ворота и пол.
- Решить, принудительная будет вентиляция в строении или естественная.
Для строительства гаража рекомендуется выбирать СИП-панели с металлическим внешним покрытием и толщиной утеплителя от 10 см. Размер стандартного помещения для одной машины – 3х6 м. Гараж на два автомобиля должен быть более просторным. Наиболее часто возводят строения размером 6х6 м или 4х8 м.
Варианты устройства ворот для въезда в гараж:
- распашные;
- откатные;
- подъёмно-секционные;
- рулонные (рольворота).
Большинство автолюбителей не одобряют наличие окон в гараже
Во-первых, это источник проникновения холода, что важно для регионов с холодным климатом. Во-вторых – дополнительные расходы на приобретение и монтаж оконного блока
Для этого помещения более важно наличие электропроводки и искусственного освещения.
Важный элемент гаража – пол. На стадии проектирования также нужно решить, потребуется ли смотровая яма. Есть несколько вариантов устройства пола в гараже:
- земляной;
- глинобитный;
- деревянный;
- бетонный;
- из тротуарной плитки.
Крышу делают плоской или односкатной с углом уклона в 4-5°. Возможен монтаж и двухскатной кровли, но этот вариант используют намного реже по причине дополнительных финансовых расходов.
Монтаж каркасного пола
Каждый поперечный ряд центральных свай накрывают швеллером 12 или 14 профиля. Так образуется система несущих лаг пола. Они должны выступать за внешнюю плоскость каркаса не менее чем на толщину используемых панелей.

Поверх несущих лаг необходимо уложить закладные под заезд — по два швеллера с профилем № 8 вдоль каждой линии колес. Для обрешетки остального пола продольно с межосевым шагом в 40–50 см укладывают легкую трубу 40х40х4 мм.
Если уменьшить шаг установки свай по периметру до 1,5 метра, можно вообще не выполнять верхнюю обрешетку: вместо этого к швеллерам подбивается опалубка и заливается монолитная плита из железобетона. Ее прочность обеспечивается двумя сетками из 14 мм профильной арматуры, связанными ниже и выше плоскости несущих лаг с защитным слоем бетона не менее 40 мм.

В ином случае следует сначала устроить черновой пол, накрыв обрешетку 16 мм влагостойкой фанерой, а после укладывать кафельную или тротуарную плитку. Можно также просто покрасить поверхность алкидной или полиэфирной эмалью 5–6 раз и затем обновлять каждый год. Следует помнить, что любой каркасный пол нуждается в утеплении и защите от влаги, поэтому перед настилом фанеры необходимо:
Снизу к лагам закрепить подлаговые балки.
Подшить их необрезной доской.
Заполнить внутреннее пространство пола насыпным утеплителем.
Защитить его сверху барьером пароизоляции, а снизу и по бокам — ветрозащитной мембраной.
Тщательно заделать монтажной пеной все внутренние стыки чернового пола.
Гараж для авто, его виды и какой гараж лучше выбрать?
Гараж представляет собой помещение, служащее одновременно местом стоянки автомобиля, мастерской, хранилищем для различных вещей, охотничьих или рыболовных принадлежностей и т.д. Такие обширные функции гаража выдвигают повышенные требования к его размерам.
Если гараж строится в кооперативе, то возможности изменить размер отведенного участка практически не имеется. Другое дело гараж, построенный на участке возле частного дома.
В этом случае можно выбирать один из наиболее распространенных вариантов:
- Совмещенный, или встроенный в дом. Такой вариант считается наиболее привлекательным, но имеются и некоторые неудобства — выхлопные газы от работающего двигателя неминуемо попадают в дом, что не понравится никому. Это вынуждает помимо гаража сооружать еще и навес, под которым автомобиль можно прогреть, отремонтировать или просто оставить для стоянки. Тем не менее, удобство пользования и близость расположения такого гаража самые высокие.
- Отдельно установленный. Такой способ расположения гаража имеет и преимущества, и недостатки. К плюсам можно отнести отсутствие запахов, звуков от работающего двигателя, сварки или прочих технологических проявлений. Недостатком является необходимость отведения некоторой площади под гараж и дорогу, ведущую к нему, что для небольшого участка может быть непреодолимым препятствием.
Кроме того, стали модными двухэтажные гаражи. Это не двухуровневые, т.е. имеющие дополнительный уровень, погруженный в грунт. Это именно двухэтажные постройки со складом, комнатой отдыха или даже жильем на втором этаже.
В качестве строительного материала применяются:
- Кирпич.
- Шлако- или гипсоблоки.
- Металлические листы, профнастил.
- Бетонные плиты.
- Деревянные (каркасные) постройки.
Выбор материала обусловлен, прежде всего, его наличием. Кроме того, определяющими обстоятельствами могут стать цена или доступность материала, прочность, пожароопасность и т.д. Все эти критерии вполне обоснованы, но каждый из вариантов имеет некоторые ограничения.
В частности, чем прочнее материал, тем большая необходимость возникает в прочном фундаменте. Легкие стены не требуют мощного основания, но сами по себе они не могут обеспечить должную защиту от непогоды, низких температур или визита злоумышленников.
Тем не менее, существует компромиссный вариант, позволяющий построить достаточно легкую, но вполне прочную и надежную постройку — сэндвич-панели.
Фото гаража:
Чертежи и схемы
Прежде чем приступить к строительству, разрабатывают чертежи и схемы гаражного сооружения. Для этого придется ознакомиться с размерами одноэтажных и двухэтажных гаражей.
Одноэтажная
Большинство автомобилистов строят одноэтажные постройки для длительного хранения автомобиля. При этом оптимальный размер такого строения составляет 7 х 4 метра, а высота — два с половиной метра. Однако не обязательно придерживаться указанных параметров. При определении наиболее подходящих размеров для гаража учитывают габариты транспортного средства.
Двухэтажная
Некоторые пытаются сэкономить место на земельном участке и строят двухэтажные гаражные здания, в которых транспортные средства хранятся на первом этаже, а жилые комнаты располагаются на втором. Опытные строители советуют строить здание размером не меньше 8 х 8 метров с высотой около 7-8 метров.
На 1 машину
При построении гаража на один автомобиль можно сэкономить строительные материалы, так как такая постройка наиболее компактная. Определяясь с размерами гаражного помещения, учитывают марку автомобиля, который будет стоять внутри, и его габариты. Например, минимальный размер гаража для Ford Focus составляет:
- длина — пять метров;
- ширина — три метра;
- высота — два с половиной метра.
Проект на 2 авто
Владельцам двух автомобилей придется построить из СИП-панелей большой гараж. Его ширина должна составлять 7-9 метров, длина — 5-6 метров, а высота — 2-3 метра.





































