Проектирование
Проект гаража необходим для планирования строительных работ, определения количества и стоимости стройматериалов.
Существуют 3 способа получить проект гаража:
- заказать у специалистов;
- найти на нашем портале;
- сделать расчет самому.
Самостоятельное проектирование гаража требует определенных знаний, включая использование проекта с нашего портала. Особенности гаража зависят от количества автомобилей: на 2 машины или 1.

Основные параметры гаража для 1 легкового автомобиля:
- оптимальные размеры гаража – 6х4х2,4 метра (ДхШхВ);
- ширина ворот – 3 метра;
- толщина стен – 20 или 30 сантиметров, в зависимости от региона;
- крыша – односкатная или двускатная;
- смотровая яма (если позволяет фундамент).
Основные строительные материалы:

- газоблоки;
- цемент;
- песок;
- щебень;
- клей;
- арматура;
- арматурная сетка;
- рубероид;
- пленка;
- доска;
- брус.
Перечень необходимых инструментов:
- Для подготовки к кладке:
- ножовка;
- штроборез;
- щетки.
- Для кладки:
- шпатель зубчатый;
- каретка;
- киянка;
- отвес;
- уровень.
Для заливки фундамента понадобится бетономешалка, лопаты, трамбовка. Клеевой раствор готовится в специальной емкости. При изготовлении каркаса понадобится сварочный аппарат.

Достоинства и недостатки постройки гаража из газобетона

Главным достоинством блоков из газонаполненного бетона является их теплопроводность, что для неотапливаемого помещения даже более актуально, чем для жилого. При высокой сопротивляемости кладки передаче тепла, в гараже будет вполне приемлемая температура даже без организованного обогрева. Главное только сделать всё, чтобы кладка не продувалась ветром, а её теплопотери были сведены до минимума. От чего это зависит?
В первую очередь, от количества отклонений в геометрии блоков. Согласно ГОСТ 21520, для изделий из ячеистого бетона предусматривается три категории качества:
| Критерий оценки параметров | 1 категория | 2 категория | 3 категория |
| По длине | 3 мм | 4 мм | 6 мм |
| По высоте | 1 мм | 4 мм | 5 мм |
| По ширине | 2 мм | 3 мм | 6 мм |
| В разности длин диагоналей | 2 мм | 4 мм | 6 мм |
| В прямолинейности рёбер | 1 мм | 3 мм | 15 мм |
| В глубине отбитости углов и рёбер | 5 мм | 10 мм | 15 мм |
- К первой и второй категории относят изделия синтезного твердения (автоклавные), так как к ним предъявляются более строгие требования. У них есть свой собственный ГОСТ (31360), и третья категория в нём не предусмотрена вообще. Как видно из таблицы, разница в допустимых отклонениях существенная, и в первую очередь она влияет на толщину швов в кладке.
- В силу более высокой способности раствора проводить тепло, швы являются мостиками холода. Но это, если для кладки взяты блоки 2 или 3 категории, которые можно монтировать только на ЦПС. На цементном клеевом составе тоже можно делать толстые швы. В этом случае через них тепло уходить не будет, но большой перерасход смеси выльется в немалые затраты.
- Если же купить блоки 1 категории, их более высокую стоимость можно компенсировать экономией на кладочном растворе. Их вообще можно монтировать на клей пену. 850 мл ППУ-клея способны заменить 25-килограммовый мешок сухого цементого клея, требующего сил и средств на доставку, погрузку-выгрузку, затворение водой. Швы получаются очень тонкими, и к тому же, у клеёв на основе вспененного полиуретана коэффициент теплоизоляции в несколько раз ниже, чем у самого газобетона.
- При тонких швах кладка будет не только лучше сохранять тепло, но и меньше продуваться ветром. Причиной этого, кстати, могут являться вертикальные швы между блоками, боковые грани которых снабжены пазами игребнями. Такие изделия тоже есть в продаже, но строители их не очень-то жалуют. По технологии пазогребневые стыки можно не заполнять раствором, но такое соединение не даёт необходимой герметичности. Так что, берите лучше обычные прямые блоки.
- Любая газобетонная постройка теряет тепло так же и через монолитные участки стен. В случае с гаражом, это может быть армопояс по верхнему обрезу кладки, на который будет опираться плита перекрытия, или железобетонная перемычка над проёмом ворот. Для их заливки лучше использовать не традиционную деревянную опалубку, а газобетонные блоки с U-образной выемкой, специально предназначенные для таких работ.
Ещё одним условием высокой теплоэффективности газобетонных стен является обязательная отделка фасада, которая защитит стены от ветра и атмосферной влаги. Ещё лучше, если под этой отделкой будет утеплительная прослойка. Чем меньше кладка будет увлажняться и промерзать, тем более тёплым будет ваш гараж.
Какой толщины должна быть стена из газобетона?
Значение мощности рассчитывается в зависимости от следующих факторов:
Согласно требованиям такого норматива как СНиП 23-02-2003, минимальная толщина (H) рассчитывается по следующей формуле: H = Rreq × λ, где:
Величина D равняется произведению разности температур внутри помещения в отопительный период и среднесуточной наружной на его продолжительность в днях: D=(tвн.пом-tнар)×Pот.периода.
Расчет мощности конструкций из ячеистого бетона для различных зон РФ:
График изменения толщины стеновых конструкций в зависимости от региона и марки газосиликатных блоков:
Что учитывать при выборе мощности стеновых конструкций?
Кроме расчетных значений также выделяют еще несколько факторов, от которых зависит толщина.
2. Вид – несущие конструкции должны иметь толщину на 10-15 см больше, чем перегородки внутри помещения.
3. Количество и расположение этажей – при увеличении высоты здания используют газоблоки с большей прочностью. Толщина стен одноэтажного строения должна составлять не менее 25 см, двух и более – 30-40 см.
4. Климатические условия снаружи – продолжительность холодного периода и средние температурные показатели напрямую влияют на мощность ограждений здания. Стены в Сибири делают толще, чем в южных регионах.
Создание проекта
Правила составления проекта гаража позволяют определиться с размерами и нюансами постройки, определить объем и стоимость материалов. Проект можно заказать у специалистов или сделать самостоятельно.
Самостоятельное составление чертежа требует определенных умений. Профессиональные версии проекта будут иметь следующий вид:

Особенности составления проекта будут зависеть от:
- количества автомобилей – 1 или 2;
- этажности;
- планируемых коммуникаций;
- ворот;
- толщины стен;
- формы и размеров крыши;
- смотровой ямы;
- мини-мастерской;
- несущей нагрузки на стены;
- фундамента.
Проект, помимо габаритов и конструктивных особенностей, должен учитывать также:
- климатические и ландшафтные условия;
- характер грунта;
- расположение грунтовых вод;
- близость других строений и коммуникаций;
- вид будущей отделки.
В зависимости от почвы, разрабатывается ленточный или монолитный фундамент, который обустраивают после котлована и обратной засыпки пазух. Каждый проект является индивидуальным.
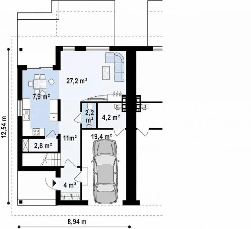
Встроенный гараж
Встроенным называют такой гараж, который располагается на одном фундаменте с домом и является его конструкционной частью. У такого архитектурного решения есть свои достоинства и недостатки. Например, отдельный фундамент под гараж из газобетона может быть менее сложный и дорогостоящий, чем фундамент дома. Поэтому пристройка выходит дешевле. С другой стороны, гараж как часть коттеджа получается более теплым, к нему проще подвести все коммуникации, он изначально входит в планировку первого этажа.

Планировка первого этажа коттеджа с встроенным гаражом Источник stroydom-taldom.ru
Характеристики и особенности газобетона
Газобетон – современный строительный материал, получаемый вспениванием водной смеси цемента, песка, извести при помощи алюминиевой пудры. Способы затвердения: автоклавный при температуре до 200 градусов или воздушный.
Пористый материал имеет низкие показатели:
- удельного веса;
- теплопроводности;
- коэффициента сжатия;
- горючести.
В строительстве гаражей используются марки сибита (газобетона, полученного автоклавным способом) от D300 до D800.
По соотношению цены и качества для строительства гаража предпочтительнее газобетон марок D400-D600, имеющих показатели:

- D400:
- удельный вес – 400 килограммов/кубический метр;
- показатель прочности – 2,17 Мегапаскаля;
- коэффициент теплопроводности – 0,096;
- пористость – 75 %.
- D500:
- 500 килограммов/кубический метр;
- 2,5 Мегапаскаля;
- 0,112;
- 55-75 %.
- D600:
- 600 килограммов/кубический метр;
- 3,2 Мегапаскаля;
- 0,141;
- 40-55 %.
Выбор марки газобетона зависит от климатических условий, состояния грунта (залегания грунтовых вод и состава почвы), проекта.

Основные преимущества построек из газобетона
Большинство потенциальных строителей отдают предпочтение простому в обработке материалу, который может обеспечить все необходимые условия для полноценного хранения транспортного средства, а также комфортного пребывания в таком помещении, вне зависимости от времени года и погодных условий.

Виды и преимущества газобетона.
Газобетон обладает целым рядом преимуществ, благодаря которым он отвечает всем основным требованиям автовладельца:
Обеспечение хорошей теплоизоляции, что, в свою очередь, исключает необходимость в дополнительных затратах на организацию данного конструктивного элемента постройки.
Благодаря пористой структуре материала газобетон наделяет постройку такими качествами как паропроницаемость и морозоустойчивость.
Стеновые перекрытия, возведенные из газобетона, отличаются высокими показателями прочности и долговечности.
Постройки из газобетона соответствуют всем требованиям экологической чистоты
Также этот материал безопасен для здоровья человека, что немаловажно, если автовладелец проводит много времени в гараже.
Наружные стеновые перекрытия возводятся в один слой и не нуждаются в дополнительном утеплении.
Благодаря правильной геометрической форме, гладкой и ровной поверхности данного стройматериала удается сэкономить на его расходе во время строительства.
Нет необходимости в использовании специального оборудования для распиловки блоков. А благодаря наличию захватов и пазов процесс строительства будет проходить очень быстро.
Отсутствие необходимости в проведении частых сезонных работ по реконструкции наружных и внутренних покрытий стены.
Проекты домов из газобетона характеризуются такими преимуществами:
- надежность;
- хороший внутренний микроклимат;
- огнестойкость;
- высокие показатели звуко- и теплоизоляции;
- высокая скорость монтажа;
- экологичность;
- эргономичность, привлекательный внешний вид;
- экономичность;
- простота обработки и широкий сегмент применения.
Внешняя отделка
Газобетон обладает исключительно высокой паропроницаемостью. Если гараж не отапливается и используется только по прямому назначению, этим фактором можно пренебречь: в нем просто-напросто нет источников влаги. А вот в гараже с обитаемыми помещениями, или в доме с гаражом из газобетона, паропроницаемость внешней отделки должна быть как минимум не ниже паропроницаемости материала стен.

Чтобы стена была сухой, ее паропроницаемость не должна уменьшаться изнутри наружу
Именно поэтому, для внешней отделки строений из газобетона используются:
Вентфасады (виниловый и металлосайдинг, профлист и т.д.);

Внешняя отделка гаража виниловым сайдингом
Штукатурки с повышенной паропроницаемостью, предназначенные для газо- и пенобетонных блоков.

Паропроницаемая штукатурка для газобетона
Внешняя отделка
Газобетон обладает исключительно высокой паропроницаемостью. Если гараж не отапливается и используется только по прямому назначению, этим фактором можно пренебречь: в нем просто-напросто нет источников влаги. А вот в гараже с обитаемыми помещениями, или в доме с гаражом из газобетона, паропроницаемость внешней отделки должна быть как минимум не ниже паропроницаемости материала стен.

Чтобы стена была сухой, ее паропроницаемость не должна уменьшаться изнутри наружу
Именно поэтому, для внешней отделки строений из газобетона используются:
Вентфасады (виниловый и металлосайдинг, профлист и т.д.);

Внешняя отделка гаража виниловым сайдингом
Штукатурки с повышенной паропроницаемостью, предназначенные для газо- и пенобетонных блоков.

Паропроницаемая штукатурка для газобетона
Постройка гаража своими руками, пошаговая инструкция

Гараж из газобетона своими руками можно сделать по инструкции:
- Фундамент.
- Возведение стен.
- Монтаж кровли.
Для сравнения, гараж из газосиликатных блоков строится по схожей технологии. Разница между материалами заключается в показателях прочности, усадки. Газосиликат активнее впитывает воду и уступает в морозостойкости.
Постройка фундамента
Подсчет сделан, выходит, требуется приступать к строительству фундамента. В случае с гаражом из газобетона доступны варианты:
- монолит;
- свайно-ленточный.
Построить гараж можно после предварительной оценки грунта. Монолитный фундамент выбирают, когда подземные воды находятся глубоко и конструкции ничего не угрожает. Когда гаражный блок подмывается, надо выбрать свайно-ленточный фундамент. Его не поведет даже при сильном выпадении осадков.
Возведение стен
Когда строим гараж из газоблока 600х300х200 5х8 метров, лучше сосредоточиться на приготовлении качественного раствора. Для такого материала не придётся делать ничего сверхъестественного. Раствор применяется точно такой же, как и при кладке кирпича. Однако есть, одна особенность – добавление клеевой смеси. С ее помощью блок ложится ровно, и не образуются большие швы. Второй нюанс – лучшая теплоизоляция. Вода сквозь представленную смесь точно не пройдет.

В ёмкость засыпают ведро песка, цемент и добавляется вода
В зависимости от качества материала важно смотреть на консистенцию. Если раствор хорошо берется и его можно распределять по поверхности без подтёков, значит, надо приступать. Первый ряд укалывается по разметке и применяется небольшое количество клея
После проверки отклонения возводить становится проще. Последующие ряды необходимо немного подбивать, чтобы в дальнейшем не происходило усадки
Первый ряд укалывается по разметке и применяется небольшое количество клея. После проверки отклонения возводить становится проще. Последующие ряды необходимо немного подбивать, чтобы в дальнейшем не происходило усадки.
Монтаж кровли
Односкатный вариант для проекта 600х300х200 5х8 метров является подходящим.
Преимущества:
- простота постройки;
- отвод воды;
- возможность установки любой гидроизоляции.
Чтобы все получилось, на газобетонный блок устанавливаются деревянные перегородки. На них стоит сделать отметки под стойки.
Стандартный проект не предполагает навес, но он может сослужить неплохую службу. Для этого сначала устанавливается каркас из брусков. Количество опор зависит от материала. Некоторые применяют металлочерепицу, другим подойдет обычный шифер.
https://youtube.com/watch?v=tLV4lpD4Gpg
Видео описание
Строительство ленточного фундамента для гаража: На участках со сложными характеристиками грунта ленточный вариант фундамента не применяется. Вместо него сооружают монолитную плиту. Плитный фундамент позволяет строить на участках с рыхлым или подвижным грунтом, а также при высоком залегании грунтовых вод. Такой вариант фундамента выполняется в два этапа. Сначала под всю постройку укладывается арматурная сетка, после этого площадка заливается бетоном. После застывания бетона эта конструкция станет сплошной монолитной плитой, не позволяющей постройке смещаться или деформироваться. Толщина плиты под гараж из газобетона составляет от 10 до 60 см. Если возводится простая одноэтажная постройка для одного легкового автомобиля, достаточно минимальной толщины в 10 см. Во всех остальных случаях нужно опираться на расчеты архитектора.
На следующем этапе возводятся стены из газобетона. Блоки укладывают обычно на специальный клеевой раствор. Для придания конструкции большей надежности и долговечности применяется усиление стен армированием. Строительство должно осуществляться в строгом соответствии с проектной документацией.

Гараж из газоблоков в процессе строительства Источник koon.ru
После завершения коробки гаража монтируют кровлю и устанавливают ворота. Потом гараж утепляют, если это было предусмотрено в проекте, устанавливают все элементы вентиляционной системы, подключают коммуникации и выполняют отделочные работы.
Отдельным этапом является обустройство смотровой ямы. Ее можно сделать только в гараже с ленточным фундаментом. Яма требует особенно тщательной гидроизоляции дна и стен. Ее необходимо качественно облицевать надежными материалами, выдерживающими высокую влажность и резкие перепады температуры.
Внутренняя и наружная отделка автомобильного помещения может быть выполнена из любых облицовочных материалов. Главное, чтобы они были не горючими и не токсичными. Проще всего оштукатурить гараж из газобетонных блоков, причем как снаружи, так и изнутри. Это наиболее практичный и экономичный способ облицовки, позволяющий выбрать любое цветовое решение для интерьера и экстерьера постройки.

Гараж, облицованный штукатуркой Источник hi.decorexpro.com
Руководство по кладке стен из газобетона — Всё о бетоне

В строительстве большой популярностью пользуются блочные материалы – сделанные из ячеистого бетона кирпичи. Данные кладочные материалы могут быть газобетонными, пенобетонными и иными. Отличия пенобетона от газобетона практически незначительны, но они все же есть.
Благодаря хорошей термоизоляции и простоте при кладке стен, газобетонные блоки имеют высокую популярность использования их в строительстве.
Активное применение ячеистых кирпичей из бетона имеет место не только в строительстве стен частного дома, но и при возведении большого жилого комплекса. Высокая популярность объясняется характеристиками пеноблоков. Во-первых, это способность блоков бетона сохранять тепло. Это становится возможным благодаря наличию в газоблоках воздушных подушек, работающих как термоизоляторы. Помимо всего, кладка стен с использованием кирпичей газобетона отличается простотой.
Несмотря на большой размер блоков, они отличаются маленьким весом.
Технология кладки
Кладка первого ряда газобетонного блока происходит с использованием обычного цементного раствора. Качество исполнения первого ряда сильно влияет на качественность следующих рядов.
Кладка газобетона начинается с возведения первого ряда кирпичей. Он должен получиться очень качественным, именно от него будет зависеть качественность следующих рядов. Кладка блоков бетона первого ряда происходит с использованием обычного цементного раствора. Цементный раствор делают с соблюдением следующих пропорций составляющих компонентов: вода, 1 часть цемента и 3 части песка.
Кладка стен из газобетона не отличается сложностью выполнения технологии. На фундаментной ленте выкладывается цементный раствор слоем примерно в 2 см. В дальнейшем на раствор выкладывают слой материала гидроизоляции (это может быть рубероид, гидроизол, рубемаст и другие). Это делают в том случае, если гидроизоляция не была установлена заранее на фундаменте.
Затем на слой гидроизолирующего материала снова укладывается слой раствора (толщина примерно 2 см) и уже на этот слой раствора начинается кладка стен кирпичей газобетона. Выполнять кладку лучше, начиная с угла, кирпичи выкладываются в обе стороны, формируя замок газоблока.
Таким образом выкладывают первые 2-3 ряда в вертикальном направлении. Далее следует выравнивание по вертикали угла блоков газобетона. При этом не нужно забывать и про горизонтальную ровность ячеистого блока бетона. Получается, что все плоскости кладочных материалов должны лежать в одном горизонтальном направлении.
Контролируется данный процесс при использовании уровня.
После можно переходить к кладке всех остальных рядов газобетона. Используя все те же цементные растворы, о которых было упомянуто выше. Помимо всего, для кладки вместо раствора подходит и специальный клей для газобетона. В практике такой материал довольно тяжело встретить, поэтому именно цементный раствор пользуется большей популярностью и чаще всего используется.
Укладка стен
Процесс кладки ячеистого блока бетона выглядит следующим образом: в качестве основания под кирпич наносится раствор, затем идет кладка самого кирпича, затем снова идет слой раствора. Следующий элемент необходимо промазать раствором с торцевой стороны, которая будет соседствовать с предыдущим блоком. Таким образом, цементный раствор наносится небольшими порциями на блок и после этого он прижимается к стоящему рядом элементу. Стоит заметить, что во время установки ячеистого блока бетона на место его можно двигать руками, еще можно использовать молоточек или ручку кельмы.
Для кладки газобетонных блоков потребуются следующие инструменты и материалы:
- газобетонные блоки;
- строительный раствор;
- мастерок;
- уровень;
- молоток; ведро;
- лопата.
Армирование стен
Армирование кладки газобетона или газосиликатных кирпичей проводят для придания большей гибкости. Для армирования используются пруты, которые кладут в сами блоки, а не в стыковые швы, выполненные из цементного раствора. В блоках необходимо сделать две бороздки, располагая их в 10 мм друг от друга. Главное, чтобы прутья не находились к краю кирпича ближе, чем на 5 см.
Канавки выполняются с применением молотка и стамески. Они должны получиться в глубину и ширину по 2 см. Готовые канавки очищают от пыли и заполняются клеем, применяемым при осуществлении кладки газобетона или газосиликатных блоков. Если же в процессе кладки используется цементный раствор, то пазы заполняются раствором из цемента.
Далее в заполненные пазы вставляются арматурные прутья, полностью погружая их в цемент.
Цифры
Как использовать блоки для внутренних перегородок можно прочесть из статьи.
О том какова цена и характеристика газоблока можно узнать прочитав данную статью.
Узнать мнение специалистов о том, что лучше пеноблок или газоблок можно прочитав данную статью.
Если вы хотите сэкономить денежные средства, то при покупке необходимо учитывать габариты изделия, а также правильно вычислить количество. Чтобы у вас не возникло таких проблем, то стоит тщательно изучить все разновидности газобетона и его размеры.
О том, что лучше пеноблок или шлакоблок можно узнать прочитав статью.
О том какова разница между пеноблоком и газоблоком указано в описании статьи.
На видео рассказывается, как посчитать вес дома из газобетона:
Прочность стен
Газобетоны относятся к категории ячеистых бетонов и их применение в строительной сфере строго регламентировано. Основные рекомендации, позволяющие определить необходимые показатели прочности возводимых стен, следующие:
- обязательно должен быть произведен расчет допустимых показателей высоты возводимых стен сооружения;
- ограничения по высоте несущих стен, возводимых из газобетонных блоков, составляют четыре-пять этажей;
- показатели прочности блоков для возведения пятиэтажных зданий составляют В-3.5, а для трёхэтажных сооружений В-2.5;
- для возведения строений с самонесущими стенами рекомендуется применять, в зависимости от этажности, блоки В-2.0 или В-2.5.
СправкаНормативные документы в условиях частного домостроительства носят в настоящее время чисто рекомендательный характер, поэтому могут и не учитываться в малоэтажном строительстве, а также при возведении любых хозяйственных построек или гаражей.
Что понадобится для строительства, расчет материалов
Затевая строительство гаража, стоит заранее подготовить необходимый инструмент:
- болгарка;
- лом;
- молоток;
- строительный уровень;
- ковш.
Чтобы работать с материалом, не обойтись без штробореза. Клеевой раствор разводится в отдельной емкости. Толщина блока зависит от выбранного проекта. Если остановиться на варианте 600х300х200 (5х8 метров), потребуется не так много материала.
Варианты кладки:
- в 1 блок;
- в 2 разных блока;
- в 2 одинаковых блока.
Чтобы просчитать количество заготовок, стоит знать объем гаража, перемножив длину, высоту, ширину, и расчетную толщину стен.
Проще всего воспользоваться онлайн-калькулятором, где данные вводятся в графы.
Характеристики и особенности газобетона
Газобетон – современный строительный материал, получаемый вспениванием водной смеси цемента, песка, извести при помощи алюминиевой пудры. Способы затвердения: автоклавный при температуре до 200 градусов или воздушный.
Пористый материал имеет низкие показатели:
- удельного веса;
- теплопроводности;
- коэффициента сжатия;
- горючести.
В строительстве гаражей используются марки сибита (газобетона, полученного автоклавным способом) от D300 до D800.
По соотношению цены и качества для строительства гаража предпочтительнее газобетон марок D400-D600, имеющих показатели:

- D400:
- удельный вес – 400 килограммов/кубический метр;
- показатель прочности – 2,17 Мегапаскаля;
- коэффициент теплопроводности – 0,096;
- пористость – 75 %.
- D500:
- 500 килограммов/кубический метр;
- 2,5 Мегапаскаля;
- 0,112;
- 55-75 %.
- D600:
- 600 килограммов/кубический метр;
- 3,2 Мегапаскаля;
- 0,141;
- 40-55 %.
Выбор марки газобетона зависит от климатических условий, состояния грунта (залегания грунтовых вод и состава почвы), проекта.

Крыша: бюджетное решение
После заливки армопояса, газобетонные стены способны нести крышу любого типа; ее сооружение не имеет никаких специфических особенностей.
Автор позволит себе упомянуть лишь одно решение, интересное своей предельной дешевизной:
- Армопояс не заливается;
- Один-три верхних ряда кладки срезаются наискось, образуя уклон не менее 5 градусов;
- В газобетоне выбираются прорези под кровельные балки;
- Пропитанные антисептиком балки вмуровываются в прорези на обычный цементно-песчаный раствор;
- По уложенной на балки обрешетке укладывается кровля (как правило, из металлочерепицы, которая исключает затекание воды при небольших уклонах благодаря поперечной волне).

На фото — самая простая и дешевая конструкция крыши: балки вмурованы в стены




































