Преимущества строительства модульных домов для постоянного проживания
Постепенно, совершенствуясь, быстровозводимые объекты стали занимать и нишу загородного строительства жилья для постоянного проживания, поэтому современные модульные дома могут похвастаться целым рядом преимуществ, среди которых:
максимально сжатые сроки строительства, для которого не требуется привлечение большого количества спецтехники, достаточно кранового механизма, способного установить модуль, вес которого ограничивается 2-3 т;
высокая прочность и надежность;
возможность возведения на участке с любым рельефом и грунтом;
долговечность;
относительная мобильность и возможность трансформации дома, который можно разобрать и перенести на новое место или «увезти» его на платформе, увеличить его площадь и т. д.;
высокие тепло-, звукоизоляционные характеристики, достигаемые за счет использования качественных современных материалов;
возможность строительства как зданий, представленных в каталоге производителя, так и по индивидуальным проектам;
низкая стоимость: цена дома, состоящего из 3-4 комнат, сопоставима со средней ценой однокомнатной квартиры;
возможность возведения строений до 3-4 этажей.
Объективным недостатком является и ограниченное количество архитектурных и дизайнерских решений, хотя для объектов в современных стилях >быстровозводимые модульные дома являются настоящей находкой. В них много света, достаточно пространства и они максимально практичны и технологичны.
А если говорить о некоторых проблемах данного строительства, то стоит обратить внимание на то, что модули собираются на заводах, поэтому важным критерием при выборе должно стать расстояние, на которое необходимо будет транспортировать конструкции. Эти накладные расходы могут существенно сказаться на конечной цене и даже превысить стоимость самого объекта
Эти накладные расходы могут существенно сказаться на конечной цене и даже превысить стоимость самого объекта.
Специфика модульного строительства
Строительство дома сопровождается множеством нюансов, которые требуют мнения или контроля заказчика. Выбор материалов для строительства, подрядчика, который заслуживает доверия и долгое время, уходящее на строительство делают постройку традиционного жилья трудной и затратной.
Суть модульных зданий в быстром и простом способе возведения дома по современным технологиям с использованием инновационных материалов.

Создание модульного дома можно разделить на несколько этапов.
Выбор проекта, который основан на предпочтениях заказчика. На этом этапе подбирается планировка дома, его площадь
Важно выбрать места, где будут располагаться дверные и оконные проемы, а также коммуникационные системы и определиться с общей комплектацией здания.
Заказчик и исполнитель подписывают договор. При необходимости на выполнение определенных строительных работ требуется получить разрешения от госорганов.
После составления и согласования сметы расходов на работы и материалы начинается строительство дома.
Модули изготавливаются на заводе в течение 1 – 2 месяцев, согласно указанным в проекте параметрам, размерам и конфигурациям
Места, в которых модули будут соединяться друг с другом специализированными крепежными элементами также отмечаются на предприятии.
В состав каждого из модулей входят несколько общих элементов (потолок, пол, стены, окна), а также системы коммуникаций (электричество и вода) и встроенная мебель.
- Каждый из модулей складывается наподобие «карточного домика», а затем перевозится на место возведения дома.
- На последнем этапе происходит монтаж модулей в необходимой последовательности. Он занимает максимум пару дней в зависимости от общей площади дома и сложности системы коммуникаций.
Чаще всего на место сборки модули приходят уже с отделкой. Остается только расставить мебель в комнатах, установить забор и разбить за окном садик. В редких случаях обшивка каркаса происходит на площадке, где будет установлен дом.
А можно заказать один модуль (допустим, 7 м на 5 м), в который можно заселиться сразу после установки, а затем дополнять дом другими элементами: верандой, баней, гостевым домом и прочими помещениями.
Важно, что срок службы индивидуального быстровозводимого строения в среднем составляет 20 лет. Долговечность конструкции значительно увеличивается при правильной эксплуатации
Типовые проекты модульных двухэтажных построек
Современные модульные дома становятся все более востребованными. Вообще технологии быстровозводимого жилья сегодня привлекают многих российских граждан. Главные причины – это доступная стоимость и возведение собственного загородного жилья в течение одного сезона.
Практичный модульный дом для круглогодичного проживания может быть, как на 1, так и на 2 этажа. Такие постройки выглядят достаточно эффектно и могут иметь самую разнообразную планировку помещений.
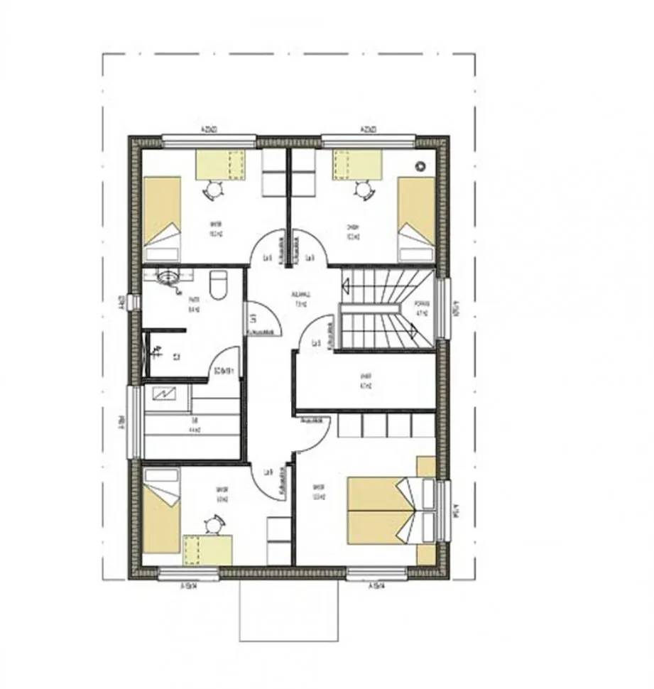
Приведем к примеру проект двухэтажного жилого коттеджа из модулей на 166 м2, размером 8,6х12,3 м. Внешний вид:

Планировка 1 этажа:
- Крыльцо 1 – 8,2 м2;
- Крыльцо 2 – 6,9 м2;
- Тамбур – 1,2 м2;
- Холл – 11,6 м2;
- Гардеробная – 1,6 м2;
- Гостиная – 17,2 м2;
- Санузел – 6,3 м2;
- Кухня – 18,4 м2.

Планировка 2 этажа:
- Гардероб – 5,5 м2;
- Холл – 12,4 м2;
- Спальня 1 – 7,8 м2;
- Спальня 2 – 10,4 м2;
- Спальня 3 – 15,5 м2;
- Санузел – 5,2 м2;
- Балкон – 4,7 м2.

Утепление здания – базальтовая вата. Данным типовым проектом также предусмотрено обустройство гаража на 32,9 м2.
Плюсы модульных построек
Модульная технология строительства стала активно конкурировать с классическим способом возведения зданий. Это случилось благодаря их положительным характеристикам.
- Быстрое производство (от нескольких недель до трех месяцев), транспортировка и сборка (от 1 дня до нескольких недель). Сроки зависят от техники производства, сложности планировки, площади помещений. В любом случае, модульные каркасные здания строятся как минимум в два раза быстрее, чем обычные коттеджи.
- Данные постройки позволяют своим владельцам вести независимую, автономную жизнь.
- Качественные и экологичные стройматериалы обеспечивают владельцев таких построек безопасным и безвредным жильем.
- Благодаря облегченному каркасу нет необходимости устанавливать под здание фундамент (мощное основание).
- Постройки имеют ту же прочность, что и здания из блоков или кирпича.
- Материалы, используемые для постройки модульных зданий, имеют высокий класс износо-, огнеустойчивости и энергоэффективности.
- Быстровозводимые дома имеют небольшой вес.
- Строительство из блоков дает возможность воплотить в жизнь проект с практически любой планировкой. Затраты при этом будут гораздо меньше, чем на ту же планировку в типовых домах.
- Есть возможность расширять площадь дома, присоединяя новые дополнительные блоки (еще один этаж, веранду или детскую и т.д.).
Блочный дом имеет одно из самых интересных и полезных достоинств – возможность перевезти жилье в новое место и избавить себя от проблем с договорами о купле-продаже и новым ремонтом.

Конструкционные особенности модульных жилых домов
Модульный жилой дом для постоянного проживания – это уникальная постройка, которая на сегодняшний день не имеет аналогов. Возведение таких сооружений можно сравнить со сборкой конструктора «Лего», где любая конструкция состоит из отдельных модулей.
В случае строительства модуль представляет собой отдельное помещение, например, ванную комнату, гостиную, спальню и т.д. Количество подобных модулей может быть самым разным. Владелец загородного участка может сначала возвести небольшой дачный домик из нескольких модулей со всеми необходимыми коммуникациями, а через определенный период времени достроить из таких же модулей еще несколько жилых помещений, гараж и т.д.

Это очень удобно, а главное нет необходимости брать банковский кредит, чтобы сразу возвести большой загородный коттедж. Технология модульного домостроения позволяет расширять жилплощадь постепенно, т.е. через 1-2 года и более.
Возведенное жилье из модульных заводских конструкций, практически не отличается от стандартных квартир и кирпичных загородных домов. При этом каждый владелец такой постройки может продумать индивидуальный дизайн оформления фасада здания, а также внутренний интерьер помещений.
Конструктивные особенности
Представления о загородном доме у каждого человека свои. Разнятся его внешний облик, планировка, площадь и другие параметры. Современные коттеджи уже ассоциируются с модульными домами. При покупке такого жилья будущий владелец сам может выбрать все, что ему нужно. Позже подумать о расширении жилого пространства, добавив дополнительные блоки.
На некоторые конструктивные особенности стоит обратить особое внимание
Фундамент для модульных построек
Несмотря на то, что принято считать, что из-за легкости конструкций фундамент для модульного дома не нужен, есть варианты, когда он необходим. Не стоит выбирать вариант «подешевле». Без фундамента ставятся лишь очень легкие конструкции или временные постройки.
При наличии нескольких этажей и планируя оставаться на долгое время на одном месте, стоит обеспечить площадку качественным фундаментом. При этом нужно учесть вид грунта, ровность поверхности, ожидаемый срок эксплуатации и площадь здания (+количество этажей).
Узлы и детали модульных построек
Быстровозводимые относятся к «каркасным» платформенным сооружениям. Они возводятся не так, как капитальные здания.
Сначала собирается первый этаж с основой из балок 50 на 200 мм. Далее устанавливаются брусы 50 на 200 мм (или 150 мм). Их толщина зависит от размеров утеплителя.
Затем монтируется верхняя обвязка и стропила. Утепление крыши, стены и пола выполняются минеральной ватой в виде плит. Снаружи они защищают помещение мембраной от проникновения воды и ветра, а изнутри пленкой, защищающей от пара.
Крыша бывает односкатной и двускатной. Монтируется она под углом 25º. Снизу к стропилам подвешивается потолок без чердачного перекрытия.
Модульные дома для круглогодичного проживания
В нашей стране здания из модулей чаще всего используют для проживания на протяжении всего года. Это экономичный и практичный вариант жилья включает в себя все необходимые коммуникации. Главным плюсом являются быстрые сроки возведения жилья. Не нужно арендовать жилплощадь на время постройки дома. Удобно при недостатке финансов взять кредит на постройку быстровозводимого здания. Со сдачи квартиры в городе можно покрывать проценты за кредит.
Современные модули оснащены плитами, которые обладают хорошей теплоизоляцией. Они поддерживают комфортную температуру как в летний период, так и в период зимнего холода. В кровлю встроена специальная система, защищающая от конденсата. Энергосберегающие стеклопакеты и вентиляция не дает помещениям терять тепло и накапливать влагу.
На что стоит обратить внимание при покупке модульного дома
Перед приобретением модульного дома стоит обратить внимание на несколько нюансов.
Проект является основным документом при строительстве любого объекта. Он должен включать все от архитектурного до строительного раздела. В них также включены: расчеты нагрузок (ветровых и снеговых), детализированные конструкторские чертежи и поработанные узлы, соединяющие конструкцию. В проекте должны быть перечислены все материалы и крепеж. Строительство без грамотного проекта грозит разрушением дома и значительным повышением его цены.
Просчетом станет халатное отношение к расчету и подбору правильного типа фундамента
Необходимо учесть рельеф участка и наличие или отсутствие грунтовых вод.
Грамотный подбор качественных пиломатериалов (без брака и повышенной влажности) позволит исключить образование щелей, усадки и других деформаций конструкции.
Стоит обязательно обратить внимание на наличие гидроизоляции на фундаменте из бетона. Ее отсутствие может привести к впитыванию влаги древесиной, а впоследствии к ее гниению
Также следует защитить каркас конструкции изоляционной пленкой, выпускающей влагу изнутри и не пропускающей внутрь.
Нужно удостовериться в использовании вместо фосфатированных уголков и саморезов ершеных гвоздей или хромированных (латунированных) саморезов. Шаг креплений также имеет значение для прочности здания.
Правильная укладка пароизоляции при утеплении ватой каркасной конструкции не позволит влаге попасть внутрь.
Стоит внимательно отнестись к подбору сечения балок для конструкции и к их опорам. Важен и грамотный монтаж этих элементов.
Самый главный пункт – компетентность строительной бригады и их профессионализм. От выбора исполнителя (от бригады, до завода-изготовителя) напрямую зависит качество дома. Посетив объекты, построенные ранее можно убедиться в правильности своего выбора.

История возникновения модульных домов
История появления модульных построек началась в XII веке. Жители Шотландии и Англии своими руками собирали маленькие домики из дерева прямо на своем участке.
Эти постройки состояли из отдельных элементов. Когда территория приходил в негодность, они легко разбирались и собирались на другом участке.
Но страной, в которой стали производить быстровозводимые здания, считается США.
Здесь рост производства произошел благодаря нескольким факторам в развитии Америки:
- Когда между штатами обустроили достаточное количество дорог, в США наладилась транспортная логистика.
- По всей стране стали перевозить габаритные грузы.
- Большое количество компаний стало производить данные конструкции.
С развитием металлообработки, элементы из дерева стали заменять на металлоконструкции.

Собранный дом из модулей обыватели принимали медленно. Сначала это были бытовки, востребованные в складах и торговых точках. Офисные и жилые быстровозводимые здания набрали популярность гораздо позже. В последствии технологии достигли необходимого уровня и удалось преодолеть технические сложности, которые проявились в процессе изготовления крупных модульных домов под ключ.
После устранения недочетов запросы будущих покупателей были учтены и популярность мобильных строений стала набирать ход.
К концу 50-х годов XX века сложились необходимые условия для повышения спроса на мобильные здания. События военного времени и шаткость рынка недвижимости помогли людям стать смелее и развеять недоверие, которое сложилось по отношению к жилым конструкциям из модулей.

Быстровозводимые жилые постройки выигрывали по срокам транспортировки и возведения. Европа, сильно пострадавшая по время Второй мировой войны, стала наполнятся целыми районами из модульных домов, автозаправками, кемпингами, торговыми павильонами и множеством других временных построек.
В то время к преимуществам быстровозводимых зданий люди относили:
- доступную стоимость;
- разнообразие отделок;
- практичность в эксплуатации;
- множество видов планировки;
- быстрое возведение зданий;
- оперативный демонтаж и перевозка модулей на другое место установки (после покупки нового участка земли).
Один из видов быстровозводимых строений – блок-контейнер представляет собой отдельный бокс, использующийся на стройках, геологических площадках и местах добычи нефти и газа для решения бытовых проблем.

Модульные постройки способствуют повышению производительности труда и сокращению расходов. Главными плюсами модульных конструкций являются быстрая транспортировка в точку размещения дома и оперативное обеспечение жильем жителей определённого района.
В 1977 году в Европе создали собственную технологию astron. Тогда, чтобы построить модульные здания стали использовать высокопрочную сталь. За счет снижения веса профиля сократились затраты на земляные работы и фундамент. Экономический кризис 2007 года возник очередной бум на приобретение модульного жилья, породивший целое архитектурное и социальное движение.
Во время бума строительства в СССР в 50-60 годы прошлого века, возникла необходимость в быстровозводимых строениях. Для развития отдаленных регионов строительные объекты нуждались в благоустройстве с помощью бытовых построек.
В СССР производились:
- блок-контейнеры, используемые как технические и жилые помещения;
- модульные сооружения из дерева с основой из металлических конструкций, предназначенные для временного проживания.
Для использования в сейсмически опасных районах отдавались предпочтения быстровозводимым зданиям с устойчивостью к землетрясениям. Легкость конструкции позволяла устанавливать их на ровную поверхность без заливки фундамента. В районах где преобладал холодный климат сильные морозы помогали пережить печное отопление и утеплители. Крыши выдерживали нагрузку от толстого слоя снега благодаря усиления металлическими конструкциями.
С течением времени в похожих на вагончики временных постройках значительно повысился уровень комфорта. Это позволило использовать их в качестве жилых домов для служащих на стройках и в местах добычи полезных ископаемых. Это позволило распространятся быстровозводимым зданиям еще шире.
Лучшие производители и доступные цены
Модульное строительство в России активно развивается. Растет интерес как со стороны заказчиков, так и застройщиков, борющихся за первенство на рынке быстровозводимых зданий. В пятерку лучших фирм в России вошли несколько предприятий.
- Дом- Строй Сервис – компания с собственным производством. Имеет более 60 готовых объектов, 13-летний стаж и бесплатно разрабатывает индивидуальные проекты (83,83 м² – 1 690 000 рублей).
- Технология – компания с производственной территорией более 5 Га, сертифицированными работниками и контролем качества на всех этапах строительства. Работает по государственной программе льготной ипотеки (68,04 м² – 1 676 294 рубля).
- ТеремЪ – компания с 12 – летнем стажем. Занимается всем от строительства деревянных домов, до благоустройства, страхования и кредитования земельных участков (58, 74 м² – 1 189 800 рублей).
- Дачный Сезон – компания, ориентирующаяся на работы зарубежных коллег. Имеет более 5 000 построенных объектов, бригаду строителей с 15-летним опытом и собственное производство (63 м² – 2 469 983 рубля).
- Альбострой – компания, осуществляющая индивидуальное проектирование. Строит дома с ноля или изменяет готовые проекты под желания клиента. Работает с низким кредитным процентом. (63 м² – 1 479 000 руб).

На сайтах этих компаний множество проектов модульных домов, подходящих как для пары, так и для большой семьи.
Если есть планы на приобретение покупки такого жилья, то стоит рассчитывать на цену за 1 квадратный метр – 20 тысяч рублей. Минимальной стоимостью жилья площадью около 100 м² станет 2 000 000 рублей. В общем здание обойдется дороже, если посчитать полный комплекс услуг. В среднем себестоимость 1 кв.м. выльется в цену от 65 000 рублей.
Стили оформления модульного жилья
Быстровозводимые модульные сооружения могут быть оформлены абсолютно в любом стиле. Рассмотрим несколько из них.
Минимализм
Например, сегодня пользуется популярностью минимализм, который отлично подходит для жилых загородных домов, предназначенных для круглогодичного проживания.
В этом случае для отделки стеновых поверхностей чаще всего используют простую штукатурку либо краску. А половые основания иногда отделывают необработанной древесиной. В данном стиле, как правило, преобладают нейтральные и светлые тона без дополнительного акцентирования.
Для обустройства жилых помещений рекомендуется приобретать светлую мебель с однотонной обивкой и невысокую. При этом желательно, чтобы не было плавных переходов, в минимализме приветствуются простые четкие линии.

В обстановке минималистического стиля не должно быть изобилия разнообразных украшений и прочих предметов декора. В интерьер помещений гармонично вписываются ковровые изделия с высоким ворсом, картины в незамысловатых рамках, привлекательные вазы простой формы, различные фигурки в авангардном ключе. При этом не стоит допускать слишком пестрых ярких цветовых оттенков.
Лофт
Данный стиль также прекрасно подходит для оформления жилых помещений модульных построек. Несмотря на свою брутальность и грубоватость, лофт при этом является достаточно стильным и оригинальным.
В этом случае рекомендуется подбирать материалы с натуральной расцветкой, например, стекло, металл, кирпич, но без окрашивания таких оснований.
В качестве финишного полового покрытия можно использовать линолеум с имитацией бетона либо слегка обработанные строительные доски. Потолочная поверхность должна быть либо полностью белой, либо под цвет бетона.

Мебели в данном стиле не должно быть много, и она должна быть лаконичной. Например, в такой интерьер прекрасно впишется стильный кожаный диван, комбинированные стеллажи, т.е. сделанные одновременно из металла и стекла. Вместо шкафа для одежды рекомендуется использовать обычные вешалки открытого типа. Неплохим решением будет выбор офисных стульчиков.
Стилю лофт не присущи плавные линии. Здесь более гармонично смотрятся строгие геометрические формы, острые углы. Для оформления оконных блоков лучше использовать рулонные материалы либо жалюзи, шторы из ткани для такого интерьера не подходят.
Что такое модульные дома?
Строительство жилья нередко затягивается на годы, человеку приходится иметь дело с большим количеством трудоемких процессов на своем участке, вкладывая громадные деньги в материалы. Идея возводить сборные дома получила громадную поддержку, ведь в данном случае вы за меньшую сумму приобретаете уже готовую постройку с планировкой и инженерными коммуникациями, ускоряя сроки сдачи объекта в разы.
Модульные дома – комфортные жилища, собранные из блок-контейнеров заводского исполнения, способные возводиться без мощного дорогого фундамента. За счет унификации отдельных элементов их развертывание производится относительно быстро. В некоторых вариантах блоки поставляются полностью готовыми со встроенными окнами, сантехникой и коммуникациями. Для удобства и удешевления транспортировки на отдаленные участки можно приобретать разобранные конструкции в виде отдельных пакетов.
Спектр применения домов из блок-модулей:
- частные коттеджи;
- дачные домики;
- подсобные помещения;
- торговые центры и павильоны;
- выставочные залы;
- военные сооружения;
- производственные здания;
- кафе и рестораны;
- офисы;
- клиники;
Из чего делают модульные дома?
Основными материалами для производства элементов сборного здания являются металл и древесина. При любом выборе громадное значение имеет соблюдение технологии, грамотное обустройство влаго- и ветрозащиты, качество монтажа. В качестве наружной отделки применяется практичный виниловый сайдинг, структурная штукатурка, металлический профиль. Модульные дома для круглогодичного проживания обязательно утепляются минватой или пенопластом.
История модульных домов
Простейшими прототипами мобильных построек являются юрты и вигвамы кочевых народов. Технология изготовления мобильных казарм и других объектов всегда востребована в армии, она разрешает в минимальные сроки и без высоких затрат создавать военные городки в любой точке мира. Интересно, что одними из первых «дома с доставкой» для гражданских лиц начали делать в Чили. Первооткрывателем является инженер Фелипе Ассади, корпус его быстровозводимого дома на 80 м² был выполнен из металла, а внутренняя отделка – из сосны.
Производство быстровозводимых зданий самых грандиозных масштабов достигло в США и Канаде. Подстегнуло его возросший с середины 40-х спрос на дешевое жилье. В Европе революционную новинку первыми оценили финны, которым блочное строительство помогло решить жилищную проблему в скалистом регионе. Сейчас на Западе модульный дом для постоянного проживания – привычный объект городского ландшафта, стройные ряды однотипных построек занимают здесь многочисленные жилые кварталы.
Срок службы модульного дома
Одним из главных вопросов для практичного хозяина при покупке нового жилья незнакомого типа является долговечность сооружения. Доказано, что модульный каркасный дом нормально служит не менее 40-50 лет. Сильнее всего страдает от погодных факторов наружная обшивка, поэтому капитальный ремонт фасада в среднем приходиться производить спустя 25-30 лет от ввода блочной постройки в эксплуатацию.
Минусы модульных домов
Выбирая тип дома нужно знать и о недостатках модульных строений.
Небольшой срок эксплуатации. Даже с учетом стремительно развивающихся технологий, нужно понимать, что считается что модульные каркасники прослужат около 55 лет, что гораздо меньше срока службы стандартных зданий.
Сложности при сборке (разборе) конструкции и ее транспортировке. Возможность перевозки модульного дома имеет не только плюсы, но и минусы. Разбор и сбор конструкции потребует специальных знаний и навыков. А для ее перевозки необходим трейлер, оснащенный специальной платформой. Также, стоит учитывать, что участок для расположения дома может быть расположен в местности с трудным доступом.
Небольшой выбор дизайна. Скупость дизайна обусловлена стандартизованными узлами в форме квадратов и прямоугольников. Не все производители предоставляют узлы треугольной формы, поэтому существуют определенные архитектурные ограничения. Бюджетный вариант помещений имеет небольшую площадь, невысокие потолки и обычные стандартные формы. Мебель и планировка также являются стандартными. Фасадная часть зданий чаще всего оформляется в стиле урбан, хай-тек или шале.
Возможность заводского брака. Производство модульных домов необходимо контролировать. Стоит внимательно выбирать подрядчиков из-за риска наличия брака в изделии. В готовых конструкциях изменить уже ничего нельзя, а контролировать модули на производстве невозможно
Из-за заводского брака может снизиться срок службы здания.
Важность качественной прокладки коммуникаций. Переложить электропровода, трубы для сантехники в модульном доме невозможно
Стоит проследить за их грамотным подключением
Особое внимание нужно обратить на работу инженерных систем, и системы вентиляции, обеспечивающей приток воздуха в дом.
Модульный дом для постоянного проживания: основные конструктивные особенности
Чтобы поставить на участке модульный дом, необходимо купить или заказать индивидуальное изготовление (в соответствии с разработанным проектом) готовых секций, которые изначально имеют свое функциональное назначение: жилые, сантехнические, бытовые, хозяйственные и т.д.
Сборка их возможна как в стандартном виде, разработанном на заводе изготовителе, так и в индивидуальном, в зависимости от потребностей и желаний владельца. При этом полностью сохраняется автономность каждого модуля, что позволяет при необходимости произвести перекомпоновку дома или даже перенести его в другое место.
Изначально, такие модульные домики и даже коттеджи оснащены всеми необходимыми коммуникациями и системами жизнеобеспечения: водоснабжения, отопления, вентиляции, электричества.
Панели, которые используются для возведения домов, имеют слоистую структуру и состоят из:
- фанеры или ДСП, которая выступает в роли обшивки;
- цементно-стружечной плиты – для обеспечения высоких тепло- и звукоизоляционных характеристик и механической прочности и устойчивости конструкций;
- каркаса, для которого применяются деревянные и металлические элементы;
- слоя утеплителя, толщина которого может варьироваться в зависимости от того, в каких климатических условиях будет эксплуатироваться дом.
Сложностей со сборкой на строительной площадке не возникает и занимает она от нескольких дней до 1-2 недель, в зависимости от размера строения. В качестве фундамента наиболее часто используется монолитная плита или железобетонные блоки, а иногда, в зависимости от геологических условий участка, может устраиваться воздушная подушка для недопущения проседания или деформации здания.
Но модульные дачные дома вполне можно построить и на проблемных грунтах и сложных рельефах: для этого оптимальным выбором станут винтовые сваи, монтаж которых не занимает много времени, может проводиться в любое время года и несложен даже при самостоятельном выполнении работ.




































