Цветовые решения для квартиры 30 кв. м
Для студий площадью 30 м2 рекомендуется отдать предпочтение светлой цветовой гамме. При этом преобладать должен всего один тон, выступать как основа. В данном случае, можно забыть о правилах соотношения и расставлять яркие акценты так, чтобы подчеркнуть особенности жилья, при этом сохранить максимальное количество света и пространства.
Выбранная базовая гамма используется не только в отделке, но и при выборе мебельной группы. Чистые классические оттенки подчеркнут единство пространства. Не рекомендуется расставлять акценты на тех предметах, которые играют роль перегородок, так как они наоборот должны быть наименее заметными, чтобы не «забрать» часть свободного пространства. Отделка обширных поверхностей определяется согласно выбранному стилистическому решению.
Если квартира расположена с южной стороны, можно добавить немного холодных тонов, которые сбалансируют температуру. Современным приемом визуального увеличения высоты потолков является омбре – постепенная «растяжка» оттенков одного цвета снизу вверх, но без глянца или блеска. Фактура, как и рисунок, будут только сужать пространство.
Статьи по теме
28.11.2023
Дизайн ванной комнаты 2024: что в моде
Модная ванная комната в 2024 году — та, в которой хочется проводить больше времени. Все главные тренды способствует расслабляющей обстановке, равняются на живую природу и думают о вас.
27.11.2023
Модный дизайн интерьера в 2024 году: главные тренды и тенденции
Представляем вашему вниманию самые последние и актуальные модные
тенденции и тренды в современном дизайне интерьера квартиры или дома в 2024
году, открывающие новые возможности для создания комфортного и уютного
интерьера…
22.11.2023
Арочная ниша в интерьере: 5 модных идей
Арки вернулись в моду ещё в 2020 году, и не собираются терять статус тренда в 2024, наоборот: любовь к аркам растёт. А одним из самых заметных трендов грядущего года обещают стать арочные ниши.
07.11.2023
Дизайн кухни 2024: главные тренды
Цвета меняются, плитка тянется вверх, огороды переезжают в квартиры, а фраза «как в ресторане» теперь применима не только к качеству блюд, но и к кухонным фасадам. Узнаем, как будут выглядеть модные кухни в 2024 году.
Что такое квартиры-студии и для кого они предназначены?
Первыми задумались об экономическом варианте жилища японцы. Предназначалось жильё для людей, которые работали далеко от дома и не могли каждый день тратить драгоценное время на передвижение. Из Японии идея мини-квартирок, благодаря дизайнерам, перебралась в Америку, а уже оттуда в Россию.
Квартира-студия представляет собой не просто однокомнатную квартиру, а комнату, практически не имеющую перегородок и дверей. Идея прижилась и понравилась не только дизайнерам. Квартиры-студии покупают в основном творческие люди, которые устраивают в них свои мастерские, но не только они. Интересны такие квартиры людям одиноким, молодым студентам, приезжим, семьям без детей, предпринимателям сдающим жильё в наём. И хотя такие квартиры-студии имеют свои минусы – проблемы с обогревом, посторонние шумы и запахи, распространяющиеся по всей площади, но зато интерьер квартиры-студии можно планировать по своему вкусу и желанию.
Правила
Список вещей, о которых вам следует как минимум задуматься перед началом ремонта в квартире-студии:
Определитесь с полом. Будет ли это ламинат во всей студии, или вы хотите зоны из плитки. Об этом надо думать ещё до перепланировки т.к. важна длина стыков.
Кровать? Не думали? У нас почему-то принято отказываться от кровати в пользу дивана, за рубежом такое даже не рассматривается. Как минимум задумайтесь.
Барная стойка — стандарт. Удобное и современное решение, многократно протестированное на практике.
Пытаемся впихнуть как можно больше закрытых мест для хранения вещей. Иначе будет вечный бардак.
Разберитесь с вентиляцией(будет дальше)
Это важно и в обычной квартире, а в маленькой студии просто критично.
Мебель желательно на заказ. Да, дороже, но это экономит метры, которые тоже стоят денег, и это окупается.
Бытовая техника с совмещенным функционалом: стирально-сушильная машина, мультиварка, духовой шкаф с функцией СВЧ.
Если встаёт вопрос где разместить стиральную машину, то первый кандидат на выход — ванна
Возможно душевой зоны/кабины вам вполне достаточно. Как показывает практика, у кого есть и ванна и душевая кабина, первой пользуются очень редко.
Никогда не делайте перегородки из гипсокартона. Рано или поздно вам понадобится на них что-то повесить и вы обломитесь. Только газосиликатные блоки(стандарт) или кирпич(если нужна максимальная прочность).
Выбираем современные стили дизайна, классические стили для интерьера квартиры-студии подходят плохо.
Материалы и цвета только естественные натуральные и их имитирующие. Яркие насыщенные цвета только точечно, в малых количествах и желательно в текстиле. Хотя для стильного дизайна натуральных оттенков более чем достаточно.
Пройдёмся по неочевидным пунктам.
Выбор пола
Почему это 1-ый пункт?
Потому что в квартире-студии нет дверей между комнатами, а значит стыковать разные напольные покрытия под дверьми не получится. А значит их выбор особенно важен.
Стандартный и лучший по соотношению цена/качество вариант пола для студии — ламинат. И в зоне прихожей тоже. Да, и в зоне кухни тоже можно, хотя и придётся быть аккуратнее — стоящей воды он боится. Нет, в ванной конечно плитка, но там есть дверь, а стыковать ламинат и плитку по узкому месту под полотном двери проблем нет. Как делать НЕ надо:
Современный ламинат вообще без проблем выдерживают все нагрузки и в кухнях и в прихожих. Делать стык ламината и плитки где-то кроме как под дверью — худшая идея. Про это мы подробно писали в плитка или ламинат на кухне и плитка или ламинат в прихожей. В студии свободное пространство, а значит стык будет длинный и всегда на виду. Убирать тоже неудобно. Под него все равно будет забиваться грязь, попадать влага.
Паркет — другое дело, его с плиткой стыковать можно и нужно. Во-первых паркет идеально стыкуется с плиткой т.к. оба материала закрепляются на клей, во-вторых паркет очень нежный и его на кухне и в прихожей действительно укладывать не стоит.
Квартира-студия с кроватью
То, что у вас маленькая квартира, ещё не означает, что вы не должны комфортно спать
Многие недооценивают важность таких простых вещей. В Европе вы не увидите квартиры-студии без кровати, но с диваном
Да, в маленькой квартире вполне может не быть дивана. Главное — удобство хозяев, вам тут жить в конце концов.
Спальня, конечно, не получится — кровать придется разместить в углу или нише. Либо окружить её мебелью. Либо сделать перегородку. Не обязательно даже до потолка. Стандартная практика в любой студии, не делать промежутков между предметами мебели. Где это возможно, ставим всё в упор. Интерьер от этого не будет восприниматься тесно, скорее наоборот.
Сейчас мы всё реже ходим в гости. Дешёвая телефонная связь и интернет сделали своё дело. С друзьями тоже всё чаще встречаемся где-то на нейтральной территории. А если и приводим домой, то сидим на кухне. В общем, как минимум рассмотрите идею отказа от дивана в пользу полноценной двуспальной кровати.
И ещё одна студия из Скандинавии:
Как распланировать интерьер квартиры-студии?
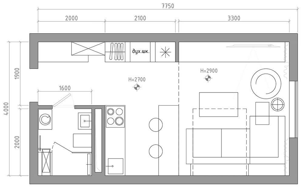
Прежде чем рассмотреть варианты планировки квартиры-студии, надо отметить, что дизайн и планировка интерьера «студии» большой квадратуры не многим отличается от интерьера малогабаритной квартиры-студии. Стоит также сказать, что большинство квартир-студий имеют среднюю общую площадь 20-30 кв/м, но есть малогабаритные квартирки на 15 кв/м и 18 кв/м. Квартира студия может быть одно- и двухуровневой, а потому при планировке необходимо учитывать и площадь, и количество уровней квартиры.
Итак, рассмотрим два варианта планировки и дизайна: квартиры-студии 30 кв/м и квартиры-студии 18 кв/м. И первое, что нужно сделать, это грамотно составить план планировки. Можно распланировать комнату так, что изолированными будут только зона ванны и туалета, а остальное пространство зонировать под кухню, зону отдыха и спальню. Если площадь квартиры-студии слишком мала, то зону спальни и зону отдыха можно совместить.
Оформление спального места
Зону для сна, в основном располагают подальше от входной двери или даже оборудуют уголок с отдельной спальней, скрытый от глаз. Иногда вместо кровати, выбирают разборный диван, отличающийся более легким и компактным видом и оснащенный ящиками для белья и других различных вещей. Благодаря встроенным системам хранения, получается отказаться от приобретения громоздкого комода или шкафа.
На фото кровать, расположенная в нише, в дизайне кватиры-студии 30 кв м.
Спальную зону отделяют с помощью штор, балдахинов или прочего зонирующего декора, который позволяет обеспечить приватность и более комфортный отдых.
Планировка и составление дизайн-проекта
Пространство небольшой студии 30 кв. м легко расширить и сделать уютным с помощью нехитрых дизайнерских приемов. Любое начинание, особенно касающееся кардинальных видоизменений в помещении, должно опираться на заранее подготовленный подробный план. Можно сотрудничать с профессиональными дизайнерами или довериться своему вкусу.
Если перепланировка намечается в двухкомнатной хрущевке, необходимо найти план постройки и убедиться в отсутствии несущих стен. Создание основного проекта должно происходить с участием следующих документов:
- Обмерный план. Площадь квартиры, прилагаемые составляющие элементы измеряются с помощью современного оборудования.
- Записи о возводимых конструкциях. Упрощают обустройство вставных деталей, вновь построенных арок, ниш.
- План демонтажа. Указывает на участки, предназначенные к сносу, перепланировке.
- Схема потолка и стен с отметками о размещении электрических точек. В документе отражен путь прохода новой проводки, розеток, выключателей, потолочных светильников и прочего, купить недорогой кабель ВВГ можно в интернет- магазине.
- Схема разводки труб. Составляется при необходимости перепланировки санузла, добавления новых батарей.
Пространство квартиры-студии до 30 кв. м должно быть светлым. Если есть застекленный балкон, его можно утеплить и сделать рабочую зону или добавить эту площадь к общей. Перед тем как составлять дизайн проект, надо подобрать несколько вариантов эскизов, мебельных групп, цветовых палитр.

При составлении проекта необходимо добиться точного соединения всех деталей в один ансамбль. На небольшой площади малейшее отклонение тона или текстуры будет заметно. Открытая планировка требует грамотной расстановки акцентов. Студия не должна быть перегружена мебелью и бытовыми приборами, следует грамотно продумать скрытую систему гардеробного хранения.
Как спрятать коммуникации
Размещение коммуникаций следует продумать еще при планировании ремонта. В некоторых стилях, таких, как лофт, открытые коммуникации не только не считаются недостатком, но и служат одним из элементов, задающих атмосферу. Поэтому при выборе такого интерьера можно не беспокоиться по поводу открытого стояка или заметных мест прокладки проводки.
Аккуратно проложить коммуникации так, чтобы они не были заметны, можно на ранних стадиях ремонта. При этом следует подготовить фотографии развязок, чтобы при возникновении неисправностей быстрее определить проблемный участок и починить его.
Разводку электрики и слаботочные электрокабели легко проложить в половой стяжке. К потолочным и настенным светильникам кабели протягиваются в штроблёных каналах.
Часто у квартир-студий нет отопительного стояка. Лучше всего обустроить отопление жилища системой тёплого пола. Есть и вариант с радиаторами, но он отнимает часть места, которое можно использовать для других целей. Рукав кухонной вытяжки скрывается верхними шкафами гарнитура или фальш-полками.
Кухни-студии: принципы обустройства
Оформление
Идеальным для создания квартиры-студии считается жилье, площадь которого составляет 30 кв. м и более с высотой потолков от 3 м.
Однако не стоит паниковать, если жилище расположено в стандартной многоэтажке, где классическая высота потолка составляет около 2,5 м. Существует способ визуального увеличения высоты, например, с помощью натяжных потолков с глянцевым полотном.
Можно также выстроить декорации на стенах в вертикальной плоскости – применить дизайн комнаты обоями (и, возможно, обивку мебели) с вертикальным рисунком, а также использовать светильники и картины вытянутой формы. Поверхность пола можно сделать глянцевой и равномерно подсветить углы стен, смежные с полом.

Визуальное увеличение высоты потолка
Оснащение кухонной зоны
Размер получившейся квартиры-студии позволяет более вольно обращаться с компоновкой мебели и габаритами гарнитура. Если же помещение небольшое, то и мебель должна подбираться компактная и легкая.
В любом случае установки диванов и шкафов по периметру лучше избегать. Обычно в зоне гостиной делают акцент на мягком уголке, расположенном в некотором удалении от стены ближе к центру зоны.
Подбор и размещение техники в студии следует осуществлять согласно следующим правилам:
- При интенсивном использовании кухонной зоны следует установить очень мощную вытяжку, она сможет практически полностью исключить проникновение запахов на территорию других зон и предостеречь от такой неприятности, как пропитка сторонними запахами отделки квартиры-студии.
- Стиральную и посудомоечную машину, холодильник и другие шумные приборы следует располагать в наиболее отдаленных углах кухонной зоны (стиральную машину можно разместить на территории санузла), это позволит максимально снизить общий шум и создать более комфортную атмосферу.
Телевизор или плазменную панель располагают в гостиной зоне на стене напротив мягкого уголка либо на специальном столике.
Освещение квартиры-студии
При недостаточном естественном освещении можно прибегнуть к использованию французского окна (если установка такого возможна). Естественного света оно будет пропускать значительно больше.
Также следует отказаться от плотных тяжелых портьер, заменив их легкими и светлыми шторами с современным дизайном.

Французское окно в кухне-студии
Что касается искусственного освещения, здесь в дополнение к основному верхнему свету следует добавить подсветку каждой отдельной зоны. Можно использовать светодиодные шнуры для мягкого освещения, расположенные под потолком в специальных карнизах, а также под кухонными шкафами для освещения рабочей области.
При этом не стоит забывать, что дизайн освещения должен быть самодостаточным. Не нужно перегружать квартиру разнообразными осветительными приборами, расположенными наобум.
Кухня и оформление
Конечно, в каждом доме кухня является очень важным помещением. Но дизайн однокомнатной квартиры студии содержит всего минимум, в том числе и техники, посуды.

Все же есть некоторые хитрости, используя которые заставлять зону кухни, не придется:
- Отказ от большого и вместительного холодильника.
- Плиту выбирайте с 2-мя конфорками.
- Если духовая печь крайне необходима, выбирайте. Но не слишком большую.
- Приобретайте мультиварку, она позволит обходиться без многочисленных кастрюль и сковороды.
Что же касается расположения обеденного стола, то его Вы можете поставить в любой из зон, где Вам будет удобно.

Студии с балконом
Вы можете утеплить балкон и расширить квартиру за счет его площади. На лоджии можно обустроить различные зоны:
● Рабочее место. Поместите в углу балкона стол, стул и полки. Для работы в вечернее время, потребуется провести освещение.

Пример рабочей зоны на застекленной лоджии
● Расширение кухни. Если зона готовки расположена близко к балкону, то разместите на лоджии бытовую технику, увеличьте подоконник и сделайте бар.

Размещение стиральной машины
● Объединение с гостиной. Во время ремонта вы можете убрать стену и увеличить площадь квартиры за счет присоединенного балкона.

Студия, увеличенная за счет удаления перегородки между комнатой и лоджией
Основные правила зонирования квартиры-студии 25–30 кв. м
Размечая жилое пространство, важно не упустить из виду ни одну функциональную область:
- приготовление и прием пищи;
- прием гостей, отдых;
- работа;
- сон.
Они могут совмещаться и накладываться.
Также больше возможностей использовать в качестве разграничителей шкафы – в Интернете есть большое количество реальных фото такого зонирования студий в 25–30 квадратных метров.
Еще один принцип – стилистическая однородность. Дизайнеры советуют оформлять квартиру в едином стиле, таким образом, гармоничные элементы интерьера будут взаимодополнять друг друга. Большие различия в стиле оформления будут утомлять глаз, создавать визуальный хаос.

Так же, как в случае с малогабариткой, в крупной студии рекомендуется максимально использовать все имеющееся пространство, избегая захламленности. Этому помогут:
- встроенная мебель (например, места для хранения);
- мебель-трансформер (раскладывающиеся диваны, кровати);
- разные уровни (создание жилых антресолей, подиумы со встроенными ящиками, двухъярусные кровати и пр.).
Общие советы
Для того чтобы скромные квадратные метры превратились в уютное, функциональное помещение, необходима грамотная и продуманная организация имеющегося пространства. В интернет сети, многочисленных журналах, можно почерпнуть идеи, просмотрев различные фото дизайна квартиры 30 кв. метров, и воплотить их в жизнь.

Отличным решением станет перепланировка однушки. Здесь необходимо разобраться, возможны ли такие существенные изменения в помещении, как снос стен, получить разрешение на такой вид работ в специальном учреждении.

Согласовав этот процесс, вы получите замечательную квартиру — студию 30-ти квадратных метров. Такое решение придаст вашему дому функциональности, современности, простора и стиля.
Пространство в полученной студии разделяется с помощью условного зонирования, позволяющего визуально отделить территорию кухни от зоны отдыха и т.д.

Необходимо помнить о ряде обязательных правил, которые сделают жизнь комфортной в такой квартире: над варочной поверхностью должна быть установлена мощная вытяжка, чтобы запах пищи не витал по всей комнате, не впитывался в мягкую мебель, текстиль.


Следующий секрет, который позволит разместить на небольших квадратах всё нужное для комфортабельного проживания — использование предметов интерьера, способных существенно сэкономить место:
- угловая мягкая мебель, днем – собранная до компактного размера, ночью – превратившаяся в большое и удобное спальное место;
- высокие шкафчики кухонного гарнитура добавят как минимум 29 сантиметров в высоту, а это полноценная полочка, по всему периметру вашей кухни.;
- вещевые шкафы от пола до самого потолка позволят сложить огромное количество одежды, обуви, различных предметов;
- спрятанные в шкафы – купе или стеновые ниши кровати, столы. В настоящее время производители предлагают большой выбор отлично маскируемой мебели, которая выставляется только в то время, когда необходима;
- встраиваемая техника сбережет ценное пространство небольшой кухни, отлично впишется в интерьер, будет смотреться модно и красиво;
- навесные шкафчики и полки дадут дополнительное место для хранения нужных вещиц, не загромождая пространство комнаты. Их дизайн достаточно разнообразен, поэтому подобрать такую мебель, которая идеально впишется именно в ваше оформление, не составит труда.
Планирование пространства
Самую просторную комнату, как правило, делают гостиной. По словам дизайнеров, в небольшой квартире стоит поступить наоборот – большую комнату сделать спальной, а маленькую – уютной гостиной. Для этого целесообразно создать несколько дополнительных уровней.
Если квартира двухкомнатная со спальней и гостиной, стоит подумать о перепланировке, объединив их вместе с зоной кухни. Вход и прихожую можно изолировать с помощью раздвижной стены при необходимости от остальной части дома.
Так, в небольшой прихожей, где нет возможности установить шкафы, стоит оборудовать антресоли. Их можно сделать малозаметными, однако, благодаря им, получится существенно сэкономить пространство, которое можно использовать для хранения вещей и книг.
Оригинальные решения в оформлении квартиры-студии
При оформлении квартир-студий дизайнеры часто предлагают оригинальные решения в оформлении студии и зонировании. Например:
- Для того, чтобы отделить прихожую от других помещений, совсем не обязательно использовать шкафы или постоянную перегородку, можно установить мобильную перегородку, которую можно отодвигать или складывать.
- Технику лучше выбирать встроенную или помещать её в специально сделанные ниши, освобождая при этом пространство.
- Разный уровень потолков в различных зонах увеличит возможности и сэкономит пространство.
- Мебель-трансформер и модульная мебель поможет создать две зоны в одной. Раздвижное кресло или диван дополнительно могут стать местом для сна, а сервировочный столик будет кроме основных функций выполнять ещё и функции рабочего стола.
- Для разделения квартиры-студии на зоны можно использовать не только стеклянные и зеркальные перегородки, но и лёгкие ширмы, которые по желанию можно передвигать (изменяя интерьер зон) или складывать (увеличивая пространство зон).
Прекрасно работает приём с перегородками в виде стеллажей. Они не только разделяют пространство, но и служат для хранения множества необходимых вещей: книг, аппаратуры, посуды.



Квартира-студия хороша тем, что оформить и распланировать её можно на любой вкус. Главное – творческая фантазия и бюджет. Хотя жильё такого типа и дешевле обычного, но иногда перепланировка и обустройство «съедают» немалую долю финансов. Однако все старания и деньги того стоят.





https://youtube.com/watch?v=fOgJCgpNjQ0
Как организовать пространство квартиры-студии
Выделение спальной зоны.
Ширма
Неоспоримым преимуществом ширмы является простота в использовании — ее легко установить, можно передвигать, внося изменения в дизайн помещения. В сложенном виде она компактна и занимает мало места.
Ширмы бывают створчатые, одноэкранные и гибкие (ширмы-трансформеры), существуют ширмы, напоминающие витражи. Красивая необычная ширма поможет не только зонировать пространство, но и украсит, и оживит интерьер.
Шторы
Доступность и экономичность, возможность быстро и недорого изменить интерьер, поменяв шторы — это достоинства метода зонирования пространства шторами. Кроме того, шторы придадут уют комнате. Для крепления штор необходимо установить потолочные карнизы.
Стеллаж
Разграничение пространства с помощью стеллажа — популярное решение, позволяющее хранить вещи, распологать предметы декора или разнообразить интерьер, не загромождая комнату. Модульный стеллаж состоит из секций, расположение которых можно менять.
Монолитный стеллаж более простой, но прочный. По форме стеллаж может быть ступенчатый, прямоугольный или фигурный. Деревянный или металлический. Цвет подбирается под дизайн помещения.
Перегородки
Раздвижные перегородки из различных материалов, они фиксируются сверху на ролевом подвесе, обладают хорошей шумоизоляцией.
Разное оформление стен
Комбинируя разные цвета, можно зонировать пространство, отделяя спальню, кухню, гостиную. Темные цвета лучше использовать локально. На поверхности большей площади лучше использовать светлые тона.
Чердачная кровать
Кровать-чердак прекрасно зонирует помещение, сверху располагается кровать, нижнее пространство остается свободным, его можно использовать как угодно. Например, для обустройства рабочей зоны, расположив там письменный стол. Можно сделать полки для книг, установить тренажер или оборудовать гардеробную.
Маскировка
Стены, пол и потолок делают одноцветными и постельное белье подбирают в тон.
- Кровать, которая выглядит как диван
- Кровать за стенкой.



![Дизайн квартиры-студии 30 кв. м. [80+ фото] планировки, зонирование](https://les-stroi.ru/wp-content/uploads/7/9/3/793c2c6c943668b01fff6e7f7ba799d8.jpeg)






























