Этап второй – сооружение каркаса строения
На готовый фундамент выполняется монтаж каркаса сооружения. Деревянная терраса изготавливается быстро даже в одиночку. Для работы потребуется строительный брус сечением 150х150 и 100х100 мм. Первый брус подойдет на нижнюю обвязку – основание пола веранды, второй – на стойки и опоры для перил.
Укладываем нижнюю обвязку
Брус сечением 150х150 укладываем на предварительно выстеленный рубероидом фундамент для террасы. Если размеры пристройки превышают 6 метров – стандартная длина пиломатериалов в нашей стране, придется сращивать элементы обвязки. Технология углового и продольного соединения бруса следующая:
- Отберите наиболее ровные, не поведенные пиломатериалы.
- На торцах разметьте запилы на половину толщины бруса. Длина будущего паза равна в нашем случае 150 мм.
- Пропилите брус по разметке с помощью ручного или механического инструмента – столярная ножевка, циркулярная или цепная пилы.
- Соедините детали паз в паз под углом или вдоль.
- Дополнительно усильте соединение, вбив по 2-3 гвоздя №150.
Во избежание возможного смещения каркаса террасы относительно основания (об этом стоит подумать на этапе возведения фундамента) в верхней части столбов или ленты оставляют несколько обрезков стальной арматуры диаметром 8 или 10 мм и длиной свободного конца 200-250 мм. Перед укладкой обвязки в точках выхода стальных стержней сверлятся отверстия большего диаметра, и брус укладывается на штыри, которые затем загибаются заподлицо.
После выполнения брусовой обвязки пола террасы по периметру, уложите аналогичным образом несколько поперечных брусков того же сечения, устанавливая в заранее размеченные и выпиленные пазы с шагом около 1 метра, скрепив их длинными гвоздями.
Устанавливаем стойки
Для опоры крыши веранды из дерева необходимо установить по внешним углам и вдоль длинной стороны, параллельной стене дома, несколько вертикальных брусков. Длина которых выбирается таким образом, чтобы высота крыши террасы от пола составляла не менее 2 метров, и соблюдался уклон кровли от основного строения.
Схема соединения обвязки и стоек
Если брус обвязки террасы разрешается не строгать, то стойки обязательно должны быть предварительно простроганы электрорубанком. Это позволит придать им более эстетичный вид и упростит дальнейшую отделку и обработку веранды. Крепить стойки к обвязке следует саморезами с использованием усиленных стальных уголков. В верхней части торцы бруса крепят к обвязке террасы, которая представляет собой элемент каркаса, служащий для увеличения прочности конструкции веранды.
Верхнюю обвязку лучше сделать из строганого бруса 100х100. Сборка осуществляется на земле подетально, после чего устанавливается на торцы стоек и крепится к ним. При этом необходимо убедиться в перпендикулярности вертикальных деталей в двух плоскостях. Для этого используют отвес или строительный уровень.
Выбор материалов для пристройки
Веранда продолжает основное строение, когда работы по возведению готовы. И гармонично сочетаться с дизайном тех объектов, которые уже присутствуют на участке. Необходимо заранее продумать, какие материалы станут лучшим решением.
Древесина во многих ситуациях станет оптимальным выбором благодаря своей сочетаемости с любыми другими основами. Главное – проследить за тем, чтобы внешнее оформление было выбрано правильно. Этого требуют любые современные веранды для дачи.
Пристроенная веранда из кирпичей и блоков будет смотреться неуместно для деревянных домов. И стыковка в этом случае станет весьма проблематичной.
Зато можно наоборот – к кирпичному или блочному дому сделать деревянные постройки. От использования металла рекомендуют отказаться. Высокая теплоёмкость и теплопроводимость станут серьёзными проблемами.
Закрытые веранды с широкими оконными проёмами часто возводят из металлопластика, это допустимое решение. Для зимы и лета актуальность остекления будет одинаковой. Но здесь потребуется помощь с возведением.
При стенах полностью из металлопластика внешний вид постройки тоже остаётся привлекательным. Что касается кровли – то и тут желательно выбирать материал, идентичный основному дому. Из чего сделать веранду, всегда решает только покупатель.
Веранда — определение, отличия от других видов пристроек, назначение
Есть много публикаций, в которых авторы рассказывают о различных проектах закрытых и открытых веранд. Но если строго следовать определениям норматива для многоквартирных домов (СП 54.13330 статья 3.3), то этот вариант пристройки должен быть неотапливаемым и застекленным, то есть закрытым.

А по виду связи с основным зданием веранда может быть: пристроенной, встроенной, встроенно-пристроенной или надстроенной на перекрытии нижнего этажа. Это же определение дословно повторено в СП 55.13330.2016 для одноквартирных домов (статья 3.4).
Открытые веранды, в терминах тех же сводов правил, определяются как террасы (статьи 3.30 и 3.17 соответственно). По устройству и связи с основным зданием все то же самое, кроме остекления, которого не должно быть.

Если в веранду провести коммуникации и устроить там кухню, топочную, бойлерную или санузел, то она перейдет в разряд вспомогательных помещений. При подключении в системе отопления закрытая пристройка уже относится к жилым помещениям.

Исходя из вышеперечисленного, примеров использования веранды не так уж много. Как правило, это помещение в теплое время предназначено:
- для отдыха;
- для обустройства обеденной зоны;
- для организации рабочего места.
Как построить террасу на даче своими руками: стойки и балки с фото
Перед тем как сделать террасу своими руками, нужно установить стойки. Стойки — это брусья (столбы), равномерно распределяющие вес террасы на фундамент. Обычно они имеют сечение 100 х 100 мм, но бывают и больших размеров, в зависимости от величины и конструкции террасы. Крепить стойки террасы к фундаменту следует с помощью кронштейнов, а не заливать бетоном. В последнем случае нижний конец стойки быстро сгниет.
При возведении террасы к дому своими руками стойки могут поддерживать балки либо проходить сквозь настил вверх, образуя столбики ограждения или, например, скамейки.
Балки покоятся на стойках или крепятся к ним шурупами или болтами. Их следует предварительно выставить строго горизонтально во фронтальной плоскости. Для этого в случае необходимости на отдельные стойки положите под балки подкладки. Кроме того, до того как построить террасу своими руками, если вы планируете применить не дощатый настил, а сплошное покрытие террасы, следует обеспечить легкий уклон ее поверхности в сторону от дома. Уклона 1:100 будет вполне достаточно.
Чем больше сечение балки, тем больший пролет может быть между стойками — это позволяет использовать меньшее количество блоков фундамента террасы к дому, построенного своими руками. Также необходимо отметить, что если вы планируете использовать балки с поперечным сечением 100×150 мм, то их можно собрать, скрепив болтами две доски 50 х 150 мм.
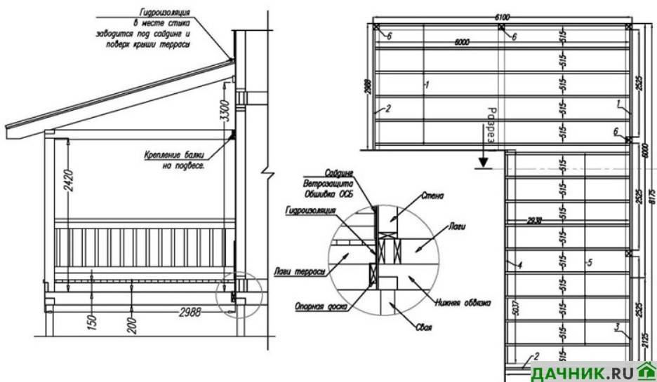
Лаги, обычно изготавливаемые из досок сечением 50×150 мм, соединяют балку и опорный брус, который крепят непосредственно к зданию, что придает всей конструкции террасы определенные жесткость и устойчивость. Чтобы построить террасу к дому своими руками, лаги укладывают перпендикулярно балкам с шагом 400,600,800 и даже 1200 мм в зависимости от толщины досок настила. При толщине досок настила 50 мм расстояние между лагами не должно превышать 800 мм, при использовании досок толщиной 25 мм расстояние между лагами должно быть не более 400 мм.
Дощатый настил — самая верхняя, видимая часть изготавливаемой террасы. Лаги при этом не видны, но они должны быть расставлены с одинаковым шагом и параллельно друг другу. Этим вы облегчите последующую установку перил. Кроме того, расположение лаг определяет, как шурупы крепления досок будут видны на настиле. Расположенные в одну ровную линию, они будут выглядеть гораздо аккуратнее.
Как видно на фото, у террас на даче, возводимых своими руками, опорный брус обычно имеет ту же ширину, что и лаги:
Его крепят шурупами (болтами) к стене здания, и на нем лежит один конец каждой лаги. Опорный брус необходимо размещать таким образом, чтобы между верхом настила и низом дверного проема оставался зазор 30 мм. Это предотвратит попадание дождевой воды внутрь помещения через порог.
На видео «Терраса своими руками» показано, как крепятся стойки и балки:
Далее описано, как возводится терраса своими руками поэтапно.
Ленточный фундамент под веранду
Нашу статью мы начнем со всеми любимого ленточного фундамента. Этот вид фундамента традиционно используется для массивных построек из кирпича, шлакоблока, ракушняка, пенобетона. Его мы и будем использовать в случае строительства веранды из этих строительных материалов. Ленточный фундамент представляет собой монолитную конструкцию, которая состоит из цементного или бетонного раствора, арматуры, песка, щебня и проволоки.
Чтобы сделать красивый ленточный фундамент под веранду, необходимо сделать надежную опалубку. Она делается из листов фанер или других деревянных досок, которые сбивают между собой. Перед строительством такого фундамента нужно разметить всю территорию, которая будет выделяться под веранду. Для этого воспользуемся колышками и веревкой. Далее следуем пошаговой инструкции и не пропускаем ни один шаг.
ШАГ 1: роем траншею. Начинаем рыть траншею по нашей ранее заготовленной разметке. Стоит учитывать, что для каждого качества грунта нужна разная глубина фундамента. Если у вас на участке глинистый грунт, то глубина фундамента под веранду из кирпича должна составлять 1,0 – 1,5 метра. Если же грунт песчаный, то хватит 20 — 30 см. Помните, что ширина фундамента должна быть на 30 см шире, чем ширина будущей стены веранды. Это значит, что траншея должна быть на 5 – 7 см шире запланированного фундамента.
ШАГ 2: песок. Теперь, дно траншеи нужно засыпать ровным слоем песка. Для этого сойдет любой вид песка, хоть речной, хоть карьерный. Насыпаем примерно 10 см песка по всей площади траншеи, и утрамбовываем его.
ШАГ 3: опалубка. Теперь переходим к изготовлению и установке опалубки для фундамента под веранду. Из досок или листов фанеры сбиваются опалубки и устанавливаются в траншеи. Сразу стоит учесть, что высота опалубки должна быть на 30 см выше уровня земли. Чтобы придать этой неуверенной конструкции какую-то жесткость, делаем импровизированные распорки в виде колышек.
ШАГ 4: армопояс. Армопояс обязательно должен быть, иначе фундамент вскоре рассыпется. Делаем армопояс из арматуры толщиной от 0,8 до 1,0 мм. Варить арматуру нельзя, нужно только вязать. Для этого вам может пригодится специальный вязальный крючок. Делается эта процедура очень быстро.
ШАГ 5: заливка раствора. Теперь пришло время замешать хорошую бетонную смесь. Берем ведро воды, ведро песка, ведро цемента, забрасываем это все в бетономешалку, добавляем 50 грамм пластификатора. Включаем бетономешалку в сеть, и ждем, пока все эти «ингредиенты» не перемешаются, и не получится однородная масса. После всего этого выливаем приготовленный раствор в опалубку, и повторяем процесс, пока весь фундамент под веранду к дому не будет залит.
ШАГ 6: арматура. Сразу после заливки фундамента можно произвести небольшое дополнительное армирование. Просто воткнуть прутки арматуры по всей площади фундамента. Такой «армопояс» поможет сделать бетонную конструкцию еще более мощной и надежной.
Время полного застывания фундамента колеблется от 1 до 2 недель, в зависимости от погоды. Если вы хотите залить фундамент под веранду в солнечный летний день, то, возможно, и через 5 дней он будет полностью застывшим. Но, все равно, желательно подождать 2 недели, и можно начинать строительство веранды. Вот примерно так выглядит процесс изготовления простого ленточного фундамента.
Такой вот получился простенький фундамент для массивного сооружения из кирпича или шлакоблока. Можно быть уверенным, что веранда будет уверенно стоять на таком фундаменте много-много лет.
Фундамент для пристраиваемой конструкции
В качестве основания для сооружения чаще всего используют ленту или столбчатый фундамент, каждый их них обладает определёнными преимуществами и недостатками.
Ленточный фундамент
Представляет собой замкнутый контур из железобетона, возводимый под всеми несущими стенами постройки, который передаёт нагрузку от них на грунт. Он позволяет возводить деревянные, кирпичные и монолитные строения.

Рассмотрим поэтапное возведение:
- На выделенном под строение участке делается разметка с помощью колышков и веревки;
- По разметке для фундамента под пристройку к дому своими руками выкапывается траншея, зависит её глубина от залегания основания дома. Ширина нужна больше, чем толщина укладываемой стенки на 10-15 см;
- В траншею засыпается песчаный пласт в 10-12 см и утрамбовывается;
- На дно выкладывается гидроизоляция, которая выступает на поверхность почвы на 40-45 см;
- На гидроизоляцию устанавливается арматурная решётка, которая соответствует форме возводимого фундамента по ширине и высоте;
- Ленту заливают бетоном на ⅓ высоты, когда данный слой застынет, то укладывается второй на ½ оставшейся высоты;
- После заливки 2-го слоя устанавливается опалубка из древесины для возведения надземной части ленточного основания (цокольной части). Гидроизоляционный материал запускается внутрь опалубки и фиксируется к её стенкам;
- Опалубка заполняется бетонной смесью, в процессе укладки уплотняется возвратно-поступательными движениями куском арматуры или вибратором для предотвращения образования в нём пор. После заполнения всей опалубки поверхность бетона разравнивается по уровню;
- Далее бетон должен высохнуть и набрать 100%-ю прочность через 28 дней. Первые 3 дня его нужно смачивать через 2-3 часа водой. Затем он поливается 3 раза в сутки на протяжении 25 дней.
После затвердения основания опалубка снимается, поверхность покрывается снаружи материалами для гидроизоляции.

Столбчатый фундамент для пристройки к дому своими руками
Его применяют при постройке веранд и летних кухонь, обустраивают из красного кирпича либо бетона. На столбы в основном устанавливают каркас из древесины, на него настилают сам пол.
Возводится основание таким образом:
- Размечается выделенный для строительства участок. Столбы устанавливают с шагом 1,5 м;
- Для каждого столбика копается отдельная 50х50 см ямка с углублением на 50-60 см. К верху она должна расширяться на 10 см со всех сторон;
- На дно ямы насыпается подушка из слоя песка и щебёнки. Затем её дно и стенки покрываются гидроизоляцией;
- Если опоры из кирпича, то на дно ям укладывается слой раствора, на который после застывания кладётся первый ряд кирпича;
- Если опорные столбики из бетона, то в ямы устанавливают арматуру и опалубку на высоту опоры. Гидроизоляция запускается внутрь опалубки и крепится к ней;
- В установленную опалубку слоями заливают бетон. Причем каждый слой раствора должен нормально схватиться;
- Верх столбика разравнивают, бетон увлажняется водой до набора им марочной прочности;
- Опалубка демонтируется, столбы покрываются гидроизоляционным материалом (обмазываются битумной мастикой, на которую наклеивается рубероид);
- Пустоты между стенками ямы и опорой засыпаются перемешанным с щебнем грунтом, который плотно утрамбовывается.

На верх столбов укладывается рубероид для укрытия от воздействия влаги уложенных на них деревянных брусьев.
Чтобы пристроенная конструкция не отошла со временем, возводят её с небольшим наклоном в направлении дома. Уклон стенок по вертикали закладывается в 1 см на каждый метр высоты пристроя. Чаще всего уклон закладывается на этапе возведения основания.

Как узаконить веранду
Все возводимые на собственном участке объекты должны соответствовать законодательно базе. Причин для этого есть несколько:
- Соблюдение прав жильцов дома и соседей.
- Изменение проекта здания и его площади.
- Требования норм безопасности – в связи с перераспределением нагрузки нового сооружения.
- Возможность легальной продажи.
Легкая пристройка, которой, по сути, является веранда, относится к некапитальному строительству. Поэтому чтобы узаконить ее, до начала строительства нужно подать документы и заявление на внесение изменений в техдокументацию в БТИ.
После этого специалист посетит участок и выполнит соответствующие замеры. Далее владельцу нужно дождаться новой документации с изменениями, в которой будет отражена пристройка – что будет считаться фактом признания ее законности.
Подробнее о том, как узаконить пристройку к дому, смотрите в видео:
Как крепить стойку и нижнюю обвязку
Работы по строительству каркаса веранды начинают после того, как бетон фундамента (если использовался) набрал часть прочности. Достаточно 50% от расчетной, а это при температуре +20° C, произойдет через 4-5 дней. Тогда поверх бетона, в тех местах, где будут крепиться стойки или обвязка, укладывается в два слоя гидроизоляция. Это может быть рубероид, толь, свернутый в два раза. Можно дважды промазать битумной мастикой или использовать другие современные материалы.
Потом есть два способа:
- закрепить стойки и потом обвязку;
- сначала обвязку, к ним стойки.
Если выбран первый вариант, для стоек в фундамент при заливке вставляют специальные держатели. Это могут быть разные приспособления (смотрите фото), но удобнее всего металлическая пластина в виде перевернутой буквы «П», к нижней части которой приварена шпилька, которая и замуровывается в фундамент. В эту пластину вставляется стойка (конец должен быть обработан антисептиком), выверяется ее уровень, закрепляется болтами или гвоздями.
Как крепить стойки к фундаменту
После того, как выставлены и закреплены все стойки, между ними прибивается брусья обвязки.
При втором варианте ситуация другая: стойки придется крепить к обвязке. Первым крепится брус обвязки. Это делать удобнее, если в бетон с каким-то шагом вмурованы шпильки. Тогда в брусе в нужных местах делают отверстия, его надевают на шпильки и фиксируют болтами. Затем одним из предложенных на фото способов устанавливают стойки.
Варианты крепления стоек к обвязочному брусу
Любой из этих способов не исключает использование металлических уголков
Они делают крепление более надежным, что в данном случае очень важно. Ведь на стойках будет держаться крыша, да и стены или ограждение
Оформление и рекомендации по обустройству веранды
Оформление веранды является заключительным этапом ее возведения. Следует учитывать такие нюансы, как усадка стен и срок созревания бетона. Начинать отделочные работы можно только полного окончания данных процессов, чтобы не начинать через некоторое время все заново.
Отделочные материалы
Прозрачная веранда с крышей из противоударного стекла
Приоритет в выборе отделки нужно отдавать качественной продукции от проверенных производителей. Веранда — это часть дома, причем та, которую первой видят хозяева и их гости. Внутри и снаружи пристройка должна быть идеальной во всех отношениях.
Существуют следующие варианты выбора отделки для разных частей помещения:
- Крыша. Может быть прозрачной (из стекла или поликарбоната) и глухой. Во втором случае может применяться шифер, рубероид, ондулин, черепица и профилированный лист. От железного покрытия следует отказаться, так как при простоте монтажа и доступной стоимости во время дождя оно издает очень сильный шум.
- Пол. Для строения закрытого типа лучшим вариантом является натуральное дерево, паркет или ламинат. Для открытых сооружений хорошо подойдет кафель или композитная инженерная доска. Если веранда не имеет фундамента, можно остановиться на тротуарной плитке из цемента, глины, резины или винила.
- Стены. Не имеет особого значения из чего они сделаны. Современные отделочные материалы способны эффектно замаскировать любую поверхность, выполняя при этом декоративные и изоляционные функции. Хорошо зарекомендовали себя виниловые обои, ламинированные МДФ панели, деревянные рейки и кафельная плитка. При их укладке нужно следовать инструкции по эксплуатации.
- Потолок. Веранды постоянно отапливаются крайне редко, как правило, зимой они промерзают полностью. От натяжных полотен и пластиковых панелей лучше отказаться. Лучший выбор — плиточный «Армстронг» или подвесной потолок из водостойкого гипсокартона. Более дорогим, но красивым вариантом являются рейки из дуба, кедра или лиственницы.
Следует обращать внимание, чтобы все виды отделки сочетались между собой по цвету, фактуре и тональности
Мебель для летней веранды выбирают легкую, чтобы можно было ее занести в дом
Выбирать мебель нужно по нескольким критериям:
- подверженность помещения погодным условиям;
- стиль изготовления и соответствие дизайну веранды;
- материал изготовления (дерево, металл, пластик, ДСП, ротанг);
- ценовая политика;
- степень мягкости и уровень комфорта;
- прочность;
- легкость обслуживания и чистки.
Украшением любой веранды станет настоящий, декоративный камин или очаг на биотопливе. Отлично впишутся в интерьер пристройки деревянные полки, на которые можно ставить книги, сувениры, свечи, фотографии и прочие небольшие предметы, поднимающие людям настроение.
Шторы
Для украшения веранды более всего подходят цветущие лианы
Проще всего оформить веранду горизонтальными или вертикальными жалюзи. Однако они хорошо смотрятся в городской квартире, но совершенно не сочетаются с природными видами. Для помещения любого стиля подойдут классические шторы, гардины и тюль от потолка до пола. Если же хочется чего-то современного, можно обустроить окна рулонными шторами с соответствующим интерьеру принтом, сделанным на заказ.
Необходимость веранды. Функции, достоинства и недостатки
Возведение такого сооружения, как веранда, часто является важным условием для создания комфортного отдыха и организации в ней функциональных зон. Конструкции бывают открытого и закрытого типа. Каждый из них имеет свои преимущества и недостатки. К преимуществам следует отнести следующие моменты:
- возведение конструкции открытого типа не представляет особой сложности и не требует дополнительных затрат на установку окон и дверей.
- для этих конструкций нет необходимости закладывать глубокий фундамент.
- в закрытой веранде можно поместить зимний сад, которому не страшны морозы, или организовать зону отдыха, где можно находиться в любое время года.
Говоря о недостатках типов веранд, следует отметить, что:
- веранды закрытого типа, как правило, утепляют, в них устанавливают отопление, что влечёт за собой расход электроэнергии и требует дополнительных средств постройки.
- мебель и другие предметы интерьера на открытых верандах быстро покрываются пылью или отсыревают, поэтому они должны изготавливаться из влагостойких материалов.
- открытая веранда не укроет от сильного ветра или низких температур воздуха.
Необходимость этой пристройки определена следующими критериями:
- Прежде всего, она увеличивает полезную площадь жилого дома, тем более, если он очень маленький.
- Обустройство в ней печи или летней кухни в тёплые месяцы года более практично, чем внутри жилища. Дополнительная жара и испарения не задерживаются, что делает процесс приготовления пищи более комфортным.
- Расположение в ней столовой, переместит отдыхающих из душных помещений дома на свежий воздух.
- Веранда, при соответствующем оформлении, станет изящным архитектурным дополнением и придаст дому красивый вид.
- Застеклённая конструкция станет промежуточным помещением между домом и улицей. Это сохранит тепло в холодное время года.
Функциональность этого сооружения, в зависимости от типа постройки, заключается в следующем:
- благодаря своей конструкции веранда защищает дом от различных атмосферных явлений;
- имеющиеся ограждения веранды воспрепятствуют прямому попаданию мусора в помещения жилища;
- конструкции веранд закрытого типа позволяют в зимний период размещение в них большого количества растений и даже деревьев;
- раздвижной каркас этой пристройки позволяет регулировать области затенения и укрыть от дождя;
- пристройка даёт возможность находиться на свежем воздухе даже при неблагоприятных погодных условиях.
Строительство фундамента
Когда проект будет завершен, а все разрешения получены, можно будет приступать к собственно строительным работам. И первая их часть — это возведение качественного и надежного фундамента. Как сделать эту часть здания правильно?
Главное требование таково: основание закрытой или открытой веранды, пристроенной к частному дому, должно соответствовать по своим техническим характеристикам фундаменту основного здания. В первую очередь, одинаковой должна быть его глубина залегания. Если это требование не будет выполнено, при понижении температуры воздуха из-за неравномерной деформации материалов части дома разойдутся, между террасой и стеной появится щель.
Присоединение нового фундамента к старому производится разными способами в зависимости от того, как давно был построен дом.
- Новый дом, как правило, находится в процессе усадки, поэтому жесткое соединение приведет к разрушению менее прочной конструкции — скорее всего, это будет терраса. Веранда в таком случае пристраивается способом «шип — паз» — она будет скользить по дому, как по рельсам, и разность скоростей усадки никак не навредит строению.
- Если дом стоит уже давно, и усадка завершилась, жесткое соединение террасы с ним допускается. При этом используется прокладка из гидроизоляционного материала (например, толя) и обработка соединения монтажной пеной.
Тип фундамента выбирается в зависимости от особенностей конструкции террасы, в первую очередь — ее массы, а также от типа грунта.
- Легкую постройку на влажной почве лучше размещать, используя столбчатый фундамент — например, винтовые сваи — на который затем укладывается облегченный каркас из деревянного бруса или стальных балок.
- Если почвы болотистые, предпочтителен бетонный фундамент — например, ленточный — который способен выдержать большую массу. Чтобы терраса при этом не ушла под землю, основание следует как можно надежнее привязать к фундаменту основного дома.
Особенности строительства веранды из поликарбоната своими руками
Поликарбонат – относительно новый материал на строительном рынке, который отличается высоким уровнем теплоизоляции. Листы из поликарбоната хорошо гнутся – можно «задать» им любую форму. Этот материал может использоваться не только для оборудования летней веранды – если обеспечить помещение обогревательными приборами, то в зимнее время можно будет оборудовать в нем оранжерею.
Стоит знать, что специалисты не рекомендуют возводить веранду из поликарбоната, если она будет располагаться с южной стороны – постоянное солнце не будет добавлять территории уюта и комфорта, а к вечеру оно так прогреется, что ни о каком приятном отдыхе на свежем воздухе не может быть и речи.
Веранда из поликарбоната может быть пристроена к дому и деревянному, и кирпичному – она только привнесет оригинальности в общий экстерьер, будет смотреться стильно и современно.





































