Самостоятельное соединение деталей
После тщательного подготовительного процесса приступают к сборке устройства
При этом важно не торопиться и хорошо проверять качество соединений деталей
Начинается сборка самодельной ленточной пилорами с изготовления стола с тумбой. На этом столе и будет расположен механизм. Для его сборки понадобятся деревянные бруски, мебельный щит. Заранее просчитывается удобная высота стола, диаметр шкивов. Стол должен быть удобным и вмещать в себя шкивы и двигатель.
На столе должны помещаться необходимые инструменты и быть место для собирания стружки. Желательно сразу продумать поддон для отходов. Чистка пилы будет проще и удобнее.
Если готовых нет, то нужно изготовить самодельные шкивы. Их можно вырезать из фанеры. Затем заготовки шлифуются, покрываются эпоксидной смолой. По центру шкива высверливается отверстие для роликовых подшипников. Сам подшипник для устойчивости закрепляют в муфте из текстолита. После этого колеса оклеиваются ленточной резиной. Диаметр шкивов допускается произвольный. Тем не менее чем больше диаметр шкива, тем дольше срок службы пилы.
Полотно зависит от размера шкива. Очень хорошим соотношением считается 1/1000 полотна пилы к диаметру шкива. Другими словами, если имеется шкив с диаметром в сорок сантиметров, то подойдет четырехмиллиметровая лента. Когда устанавливается шкив, необходимо проследить, чтобы вал подшипника был перпендикулярным. Даже при небольшом отклонении будет наблюдаться биение колеса, в результате чего лента будет соскакивать.
Следующий этап — это сборка опорной рамы. На ней будет крепиться все устройство. Рама делается из углового швеллера и может иметь С-образную форму. Эта форма замечательно удерживает ленту. На швеллер надевается металлическая ось. Рама или станина — это самая важная часть конструкции.
На оси при помощи втулок насаживаются шкивы. После чего, добиваются их баланса. Против вибрации ленты используют демпфер. Присоединяют к двигателю подвижные детали. Надо иметь в виду, что средняя скорость вращения ленточной пилы составляет от 700 до 900 оборотов в минуту. Этот параметр необходимо учитывать, когда рассчитывается диаметр приводных шкивов.
На двигатель лучше всего одеть защитный кожух. Он защитит приводной механизм от попадания мелкой пыли и стружек.
Для удобства подачи обрабатываемого материала крепят металлические уголки. Они создают направляющий механизм.
Деревянные части надо астроганить, покрасить или покрыть лаком. С одной стороны, это эстетично и удлиняет срок службы изделия, а с другой — защищает руки работающего от заноз из необработанного дерева. Перед покраской древесина зачищается мелкой шкуркой и обрабатывается жидкостями, предотвращающими гниение дерева.
Настройка, проверка и заточка
Перед началом работы обязательно надо проверить и настроить аппарат. Необходимо убедиться, что лента образует прямой угол. Малейшее отклонение может привести к поломке машины и даже нанести травму. С помощью ведомого шкива натягивают ленту. Добиваются максимального натяжения резательной ленты.
Заточка ленточных полотен несложна и доступна. Технология проверена многими мастерами. Необходим специальный станок и немного терпения. Сначала производят первоначальную заточку, то есть восстанавливают симметрию, выравнивают зубья пилы, удаляют небольшие трещины на кромках. Затем очищают пилу от пыли и металлических опилок и производят разводку, восстанавливая задний и передний углы.
Завершающим действием является финальная заточка. Именно она придает зубьям необходимую остроту и устраняет различные искажения.
Чертежи для самодельной пилорамы
После подбора материалов и инструментов приступают к проектированию. Для начала необходимо выбрать конструкцию подходящих размеров, провести расчеты и разработать чертеж пилорамы своими руками.
Процесс начинается с выбора площадки для изготовления устройства. Она должна быть размером около 4×8 м. Лучше выбирать закрытое производственное помещение. Тогда можно будет работать при любой погоде.
При расчетах для конструкции определяют общее число уголков, металлических труб. Необходимо также рассчитать отрезок между рельсами. Для этого прибавляют к самому большому диаметру древесины 0,5 см с обеих сторон.
Также нужно запасти расстояние для поперечных установок между рельсами. Их крепят через каждый метр конструкции. Опору для пилорамы размещают на высоту 0,3 м.
С помощью токарного станка изготавливают ролики, винты, подшипники. Перед этим необходимо сделать чертеж данных деталей.
Стоимость конструкции рассчитывается индивидуально, исходя из наличия некоторых деталей, проектирования.
К изготовлению самодельной пилорамы нужно подходить ответственно. От того, насколько качественно сделано устройство, зависит долговечность и надежность работ за станком.
Конструкцию рекомендуется делать на опорной бетонной плите. Процесс ее изготовления схож с обустройством малозаглубленного фундамента. Для ее создания необходим песок и гравий толщиной до 20 см. Диаметр изделия составляет 15 мм. В таком случае плита будет крепко держать всю конструкцию.
Видео по теме
С вами был Андрей Ноак. Заходите на мой блог и будьте в курсе всех событий. Подписываться на обновления и приглашайте своих друзей ознакомиться с моими советами. Удачи и до новых встреч!
Отменить ответ
Поставил себе такую электронную линейку в Дзержинске. Порекомендовали на МГГВУД, потом проблем было, лучше б просто в ручную пилил.
Такое бывает если линейка не качественная
И не только ты попал с этими уродами
Имею крайне негативный опыт работы с этой фирмой. Настоятельно не рекомендую никому с ними связываться. В июле 2021 года заключил контракт с МГГВУД-Н, директор Кригина Наталья Ивановна, тел. +375297627645. Заказ в срок не выполнили. Договор был расторгнут. По состоянию на июль 2021 года предоплата в полном объёме не возвращена. Более наплевательского отношения к клиентам со стороны Кригиной не встречал. Дозвониться нереально, трубки не снимают. Сами на связь не выходят и не перезванивают даже если и обещают. Дозвониться можно только с незнакомого им номера, тем не менее это ничего не гарантирует. Разговаривают на повышенных тонах, бросают трубки, истерят. Свои деньги приходится в прямом смысле выбивать силой и нервами. Постоянно ссылается на хроническое отсутствие денег. Судя по негативным отзывам в Интернете я не единственный кто с ними попал. Подводя итог, если располагаете лишними деньгами, нервами и кучей свободного времени на бесконечные звонки и поездки на разборки в Дзержинск, то смело подписывайте договор с МГГВУД и вносите предоплату. В ином же случае лучше выбрать поставщика более надежного и с хорошей репутацией и должным отношением к клиентам, либо купить уже готовое оборудование пусть и дороже. Таким как МГГВУД в целом не место на рынке в принципе.
Да, зрк 5.1 полное дерьмо. В РБ уже все вкурсе.
Прочитал ваши отзывы про электронную линейку ZRK 5.1. пришёл к некому недоразумению написанному Вами на этой странице. У меня дисковая угловая пилорама, собранная полностью собственноручно не жалея средств и времени на это. Собирал агрегат, как говорится по последнему слову техники, практически полностью автоматизированная, оператор находится в стороне от станка, управляя им с помощью выносного пульта. В интернете при сборке нашёл те самые электронные линейки ZRK5.1. какие вы так хаете на всю страну. Меня очень сильно заинтересовал прибор и я не долго думая связался с продавцом в лице его был Руденец Андрей.
После приобретения и установки столкнулся с рядом проблем аналогичными как у Вас. Естественно сразу навёл связь с продавцом. Разговаривали со мной охотно, внятно и доходчиво по истечении всего времени поддерживали со мной связь несмотря на моё местоположение, на Урале Свердловская область, пока я не устранил все ошибки, допущенные мной при сборке станка и монтаже линеек, у меня их 2 штуки одна отвечает за горизонтальную, а другая за вертикальную координату. Ошибки были такие, как проскальзовал ремень на шкиве эл. двигателя, неправильно был отрегулирован датчик хола и неправильно были подобраны провода, идущие от датчика к приборам.
Вот уже 2 года мы работаем на этом станке и не знаем ни каких проблем, связанных с настройками размеров пиломатериала. Нынче летом в июне месяце Андрей прислал мне 2 новые перепрошитые электронные линейки на полном доверии, что я верну старые приборы, после установки проблем у меня никаких не возникло, работаем и посей день без проблем.
может у вас можно купить линейку с градуировкой
Видеть не могу эту электронную линейку и это мггвуд, сколько промучился с ней и с «производителем» пилорамы, жулик редкий. Действительно лучше бы в ручную пилил. Пока не поставили нормальную электронную линейку ничего не работало нормально. Доски не выходили нужного размера и долго выставлялось, хотя может проблема была и в пилораме.
Пришлось заплатить дважды, но теперь опыт будет.
Устройство и ее разновидности
Дисковые пилорамы используются в случае, когда необходимо распилить ствол древесины вдоль его волокон. Источником энергии для работы станка служит электричество. Главными компонентами оборудования являются рама, дисковые пилы, передвижная каретка, электродвигатели:
- Основное предназначение рамы — объединение всех компонентов конструкции в единое целое. При этом элементы оборудования должны располагаться на таком расстоянии друг от друга, чтобы работу можно было выполнять безопасно. Главное требование к раме: она должна быть устойчивой и жесткой.
- Двигатель обычно имеет рабочее напряжение — 380 В. Его выбирают исходя из мощности и количества оборотов в минуту. Если нет возможности подключить оборудование к электросети, можно использовать бензиновый мотор.
- Режущий узел пилы может располагаться как вертикально, так и горизонтально, при этом в его состав может входить один диск или сразу пара. В связи с этим бывают пилорамы двухдисковые, а бывают однодисковые. Если диск всего один, бревна можно распиливать в двух положениях — по горизонтали и по вертикали.
- Каретка такой пилы может двигаться вдоль и поперек. Двухдисковая пилорама имеет две пилы, которые по отношению друг к другу расположены под прямым углом. Такое оборудование может работать ортогонально, и поэтому производительность его выше.
Пилорамы подразделяются не только на две разновидности. Есть и множество других вариантов конструкции станков. Например, существует такая, которая работает не от одного, а от двух двигателей: один отвечает за вращение пилы, а другой — за передвижение каретки. Независимо от того, к какой разновидности относится та или иная пилорама, она будет продаваться по высокой цене. Именно поэтому многие желающие приобрести такое оборудование, увидев ценник, отказываются от покупки.
Отказ от покупки не означает отказ от желания иметь в своем распоряжении этот замечательный инструмент для обработки древесины. Можно сделать его самому, главное подойти к процессу создания со всей серьезностью и ответственностью.
Устройство и принцип работы
Самодельная ленточная пилорама своими руками значительно облегчает рабочий процесс распиловки. Такой способ уменьшает потери древесины при пилении. Преимущества сделанной самостоятельно ленточной пилорамы:
- Высокое качество обработки материала.
- Компактный размер по сравнению с профессиональным оборудованием.
- Точность в работе.
- Доступная цена.
- Простое устройство прибора.
- Небольшой вес.
- Надежная и крепкая система.
- Бесшумность.
- Легкость при транспортировке.
- Малое потребление энергии.
Устройство ленточной пилорамы для работы по дереву организовано по принципу блоков. В агрегате используется автоматическая система подачи пилы, регулировка ширины резки дерева, индикатор, показывающий нагрузку на прибор.
Перед началом изготовления ленточной пилорамы с бензиновым двигателем своими руками необходимо подготовить все необходимые материалы и инструменты. Купить некоторые из них можно в строительных магазинах. Самодельное устройство для распила сэкономит деньги и качественно выполнит свою работу.
Центр тяжести прибора находится в близком расстоянии от земли. Это позволяет ему держаться устойчиво на любой поверхности. Масса агрегата должна быть в 2 раза больше, чем обрабатываемые на станке материалы. Рельсовые пути ленточной пилорамы дает возможность легко передвигать дерево в разных направлениях, размещать его под разными углами.
Основой ленточной установки является пила, которая может достигать 70 мм. Такое устройство рассчитано на долгое использование при обработке больших кусков дерева.
Над станком находится электродвигатель, что удобно при распиле материалов. Рама для ленточной установки может быть изготовлена самостоятельно. Как правило, она крепкая и долгое время держит всю конструкцию.
Подъем механизма осуществляется за счет подшипниковой опоры и дополнительных труб. Движения ленточной пилорамы линейные по направлению опорных частей.
Принцип работы ленточного механизма включает несколько этапов. Сначала на него укладывается бревно на рельсы. Затем оно крепится на винты и упоры с двух сторон.
Ленточная пилорама движется по траектории квадрата, за счет чего достигается точность при пилении. Толщина бревен для распила составляет от 2 до 7 мм.
Процесс должен быть под контролем. Необходимо установить, перевернуть, зажать и передвигать материал. Специальная жидкость для смазывания обеспечивает охлаждение рамы, что продлевает срок службы ленточного механизма.
В изготовлении станка своими руками встречаются некоторые сложности:
- при монтаже: использование сварочного аппарата;
- трудно сделать устойчивую поверхность для установки;
- необходимо правильно заточить инструменты;
- сложно достичь безопасности при эксплуатации прибора.
Ленточная пилорама подходит для нарезания дерева. Место для изготовления станка должно быть освещенным, проветриваемым и просторным. Для обеспечения безопасности в использовании прибора необходима тщательная работа с режущими частями.
Шинная пилорама
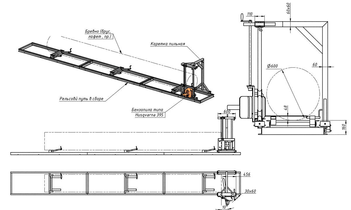
Начать необходимо с понимания, что и сколько будем резать. Если необходимо нарезать 100 – 200 стропил для строящегося дома из дармовых бревен, потом 400 досок – лучше воспользоваться ручной профессиональной бензопилой. Сделаем самодельную пилораму из бензопилы, способ недорогой, простой и эффективный.

чертеж простейшей пилорамы из бензопилы (скачать полный чертеж)
Понадобится любой ровный металлический профиль, сварка и болгарка. Начинаем с максимального длинна бревна – практические около 4 м. На такую длину нужно найти швеллер или двутавр, можно сварить из кусков с усилением – главное чтобы получившийся профиль был ровным. Начинаем делать нашу автономную шинную пилораму на основе бензопилы.
Конструкция представляет собой мощный профиль на рабочей высоте – выше пояса, по которому перемещается в тележке закрепленная бензопила.
Высота обусловлена эргономикой, длительная коленно-локтевая поза не полезна. Параллельно основному профилю кладется бревно на опорную раму, работающая бензопила перемещается вдоль бревна производит необходимую обрезку.
Несколько подробней об особенностях. Главный элемент – основной профиль, обеспечивающий геометрически правильные размеры пиломатериалов, должен быть достаточно прочным и жестким, если швеллер – не менее 200. Профиль опирается на 3 и более опор, связанных с опорной рамой, на которую ложится бревно.
Основные погрешности при распиловке образуются при колебаниях тележки с бензопилой, поэтому продвижение тележки по профилю — не менее четырех жестко прижатых металлических колес, необходимо предусмотреть ручной привод. Самый простой – вороток колодца с приводным колесиком по основному профилю.
Для установки тяжелого бревна обычно ставят наклоны, по которым удобно толкать бревно последовательно по сторонам на опорную раму, расклинивая его на раме.
https://youtube.com/watch?v=s4cWGjwU7VQ
Самое сложное – регулировочный механизм толщины изделия. Простейший способ – установка по краям подвижной в вертикальной плоскости опорной рамы винтовых или любых домкратов жесткой фиксации. Регулируем домкраты – регулируем толщину изделия. Пример постройки мобильной шинной пилорамы на основе бензопилы можно посмотреть на фото.
Порезку древесины можно выполнять одному человеку: держась за ручку бензопилы и регулируя газ, второй рукой осуществляем подачу.
Заключение
Несколько мыслей о целесообразности изготовления пилорамы. Проверено временем и практикой – самостоятельное изготовление имеет смысл при бесплатных материалах. Если посчитать трудозатраты и материалы, и возможную выгоду, тот поймете сами
Самое страшное, при самостоятельном изготовлении – мало кто обращает внимание на технику безопасности. Этот момент нужно продумать обязательно! Безаварийной работы и качественной древесины
Крепеж под сырье
Строго по разметке и предварительно проставленным размерам внутри рельсового пути, устанавливается крепеж под сырье. Это длинная рама, которая по двум сторонам обеспечена разного рода зажимами и фиксаторами.
Необходимо произвести установку точно и качественно, чтобы уложенное на основание бревно было распущено на доску безопасно, без передаваемых вибраций, а также очень ровно.
Нужно понимать, что крепления должны быть концевыми или частичными, но не круговыми, типа хомутов вокруг бревна, ведь так шина с цепью не смогут выполнять свою работу по распиловке.
Также, крепеж можно предусмотреть из нескольких отдельных частей, например, крепеж общей длиной в 2 метра разбить на две равные части, по 1 метру, и оставить между ними просвет в несколько сантиметров. Это нужно для удобства последующей обработки готовых пиломатериалов, например, общему разделению их на равные части, даже на те же две половины.

Циркулярная пила своими силами
Самодельная циркулярная пила своими руками
Самодельная циркулярная пила – один из самых необходимых станков для домашнего мастера, особенно при постройке дома или дачи. Фирменные стационарные станки стоят очень дорого, а для большинства домашних потребностей сгодится самодельная несложная конструкция деревообрабатывающего оборудования. Есть много способов — как сделать циркулярку своими руками из ручной дисковой пилы, болгарки, старого электродвигателя и даже из дрели. Что для этого необходимо и как собрать стол для циркулярной пилы с минимальными затратами описано ниже.
Стол для циркулярки
Стол для циркулярки должен быть устойчивым. Раскачивание во время работы сильно мешают и могут быть опасными. В качестве каркаса подойдёт старый кухонный стол или сборная конструкция из деревянных брусков или металлического профиля. Важная часть станины – ровная, широкая поверхность с прорезью для диска пилы. Её изготавливают из листа железа не менее 4 мм, стеклотекстолитовой плиты, оргстекла, фанеры, ДСП или их комбинацией. В любом случае толщина крышки стола должна соответствовать нагрузке, которую она будет претерпевать при работе. Нужно учитывать, что привод в некоторых самодельных циркулярках крепится именно к крышке, поэтому её лучше сделать подъёмной, как показано на фото. Это позволит избежать усложнения конструкции станины и облегчит доступ к электроинструменту.
Самодельный стол для циркулярки
Направляющую планку обычно делают из уголка, который крепится к плите струбцинами каждый раз при выставлении нового размера. Можно сделать скользящую планку, как видно на картинке. В таком случае крышка стола должна иметь строго параллельные стороны для скольжения, а направляющая планка перпендикулярна плоскости вращения круглой пилы. Это очень удобно, но требует небольшой доработки. Скользящие салазки делаются из стального или алюминиевого уголка, который должен свободно скользить по краям, не теряя при этом прямой угол. Возможен вариант с деревянными салазками, но это делает станину станка более громоздкой и менее долговечной. Циркулярка из болгарки, ручной дисковой пилы, дрели
Самодельная циркулярка из болгарки
У многих нет возможности собрать самодельную циркулярку с мощным электродвигателем, ременной передачей и системой шкивов. Зато наверняка найдётся, хотя бы один из таких электроинструментов, как ручная дисковая пила, болгарка или дрель. На любой из них можно насадить отрезную круглую пилу, они компактны и могут быть использованы как электропривод для распила не очень толстых досок. Как уже отмечалось выше, такие инструменты лучше всего крепить к крышке стола снизу. Самой удобной в этом плане является ручная дисковая пила, т.к. она имеет максимальный размер полезной части отрезного диска, в то время, как у дрели и болгарки корпус не даёт возможности использовать всю площадь пилы. Плюс ещё и толщина крышки закрывает часть диска. Поэтому можно ставить пилу большего диаметра или применять другие технические решения. На рисунке показан возможный способ крепления электроинструмента к станине с помощью пластиковых хомутов.
Маятниковая циркулярка с мощным электродвигателем
Самодельная циркулярная пила
Самодельная циркулярная пила предназначается для распила древесины такой толщины, на которую рассчитан электропривод. Если необходимо обрабатывать толстые бруски, придётся ставить мощный электродвигатель, монтировать ременную передачу и вал. В таком случае целесообразно делать маятниковую станину, как показано на рисунке. Рама полностью стационарная, сваренная из стальных уголков. На ней располагается весь крутящий и режущий механизм. Одной стороной рама подвешивается к станине, а вторая сторона регулируется по высоте с помощью винтового механизма. Такая схема позволяет регулировать высоту вылета диска пилы без особых усилий и лишних конструкторских сложностей.
Устройство пилорамы или определение затрат
Независимо от типа деревообрабатывающего станка, понадобятся следующие элементы:
- основание;
- рама;
- станина.
Не рекомендовано экономить на упомянутых материалах, их качество должно быть на высоте. От основания, рамы и станины также зависит параметр безопасности и распила.
Как самостоятельно определить длину устройства? Учесть максимальные параметры брёвен, которые нужно обрабатывать. В качестве направляющих используют уголок либо трубу. Мастера рекомендуют определять соотношение между металлическим листом и весом кругляка. От характеристик последнего зависит толщина металла, вернее, её можно правильно определить. К примеру, 3–4-сантиметровый лист подойдёт для каретки с пилкой. Такая конструкция адаптирована и под арматуру, и для пиления, и для двигателя.
Чем руководствоваться при выборе «сердца» пилорамы? Собственными финансовыми возможностями. Допустимо использование исправного б/у оборудования, если таковое имеется. Есть любительская бензопила? Адаптируйте её под каретку. Также можно использовать старый, но рабочий электродвигатель на 3 фазы с мощностью от 3 кВт. От чего стоит отказаться, так это от цепной и бытовой электропилы, которая не предназначена для интересующих вас целей. Традиционная бензопила тоже не подойдёт. Она, как правило, при значительных нагрузках быстро выходит из строя.
Что касается элемента для закрепления брёвен, то оптимальным вариантом считают конструкцию небольшой высоты стационарного типа. Толщина креплений зависит от особенностей использования пилорамы. Наибольшей простотой в работе отличаются деревья твёрдых пород. Рекомендованная длина шины и диска – в пределах 50 см. Используя специальные приспособления такого типа, можно добиться уменьшения количества расходов.
Рекомендации по изготовлению
В том случае, если установка будет применяться в коммерческих целях и для работы с большими объемами материала, подходить к вопросу собственноручного изготовления необходимо максимально ответственно и внимательно. Модели, сделанные своими руками, не во всех случаях способны делать качественный распил при постоянном воздействии нагрузок. Такие конструкции лучше изготавливать для незначительных работ.
Для начала нужно подобрать показатели мощности и число оборотов двигателя. Как правило, при монтаже электропривода не появится никаких проблем, но вы будете вынуждены подсоединять линию в 380 V, потому что понадобится установка трехфазных моделей.
Заранее нужно составить чертежи будущего оборудования. Запомните, что каких-то определенных правил для самостоятельного создания мини-пилорамы не существует — оборудование в каждой ситуации получается индивидуальным.
Но можно воспользоваться рекомендациями профессионалов:
каркас следует делать из швеллеров под номером 6 и 4. Соединения можно сделать двумя способами — сваркой и болтами. Это благоприятно скажется на долговечности конструкции;
для изготовления направляющих лучше пользоваться рельсами Р50
Затем под них следует подобрать колесики;
при изготовлении необходимо обратить внимание и на то, что ширина подвижной платформы и каретки не должна различаться;
размещение привода. В связи с тем, что большая часть моделей обладает воздушным охлаждением, двигатель рекомендуется устанавливать подальше от участка распила
Для дискового привода нужно сделать цепную передачу или вал.
для обеспечения защиты исполнителя на платформу ставится специальный щит из стального сплава. Эта конструкция позволит предотвратить опасные ситуации.
При эксплуатации самодельной мини-пилорамы необходимо регулярно проверять работоспособность оборудования. Такие установки при долгом применении могут утрачивать свои изначальные свойства. Также не стоит забывать о двухсторонней заточке пил, а после окончания их ресурса — производить замену элементов.
Ленточные пилорамы.
Ленточная пилорама Используются на небольших деревообрабатывающих предприятиях, в частном использовании или фермерском хозяйстве. На больших производствах одновременно устанавливают несколько ленточных пилорам для повышения эффективности работы.
Использование ленточной пилорамы для производства бруса и доски сопровождается сравнительно небольшим объемом отходов.
Плюсы ленточных пилорам
Невысокая стоимость; Экономность – пила потребляет меньше электроэнергии в сравнении с дисковым аналогом;
Возможность производства тонкой доски;
Высокий выход пиломатериала с одного бревна по сравнению с диском;
Возможность внесения корректировок движения пилорамы после каждого спила;
Ленточная пилорама обладает большей мощностью, с ее помощью можно пилить бревна с большим диаметром;
При работе можно вращать бревно – выбирать стороны без дефектов, чтоб на выходе получить первосортные доски из сердцевины.
Минусы ленточных пилорам
Частый ремонт и необходимость замены пилы через каждые три часа; Затруднения при работе с горевшими, грязными или чрезмерно сухими бревнами.
Некоторые особенности оборудования
Ленточную пилораму необходимо установить на портал, чтобы она надёжно и долго работала. Вертикальные направляющие подбираются в зависимости от сечения. Благодаря такой установке получится уменьшить нагрузку на устройство, даже если оно будет работать довольно активно. Кроме того, необходимо установить дополнительный навес, чтобы защитить оборудование.


































