Несколько удачных вариантов планировки Хрущевки
Такого типа дома в основном имеют пять этажей и их построение относится к далеким 50-ым годам. Те времена отличались нехваткой жилых помещений.

Поэтому была создана особенная система постройки многоквартирных типовых зданий. В основном для этого использовались специальные готовые блоки, так как это значительно сокращало временные рамки, выделяемые непосредственно на строительство.





Сама квартира имела очень маленькое кухонное помещение (не более 6 квадратных метров), смежные комнаты и общий (совмещенный) санузел.


Что касается однокомнатной хрущевки, планировка здесь сразу же исключает создание отдельной спальни. Здесь скорее комната будет выполнять сразу несколько важных и полезных функций. Главное грамотно подойти к разделению пространства на зоны.

Предметы мебели для планировки хрущевки лучше приобретать из класса трансформеров, причем к такой конструкции следует отнести даже двери.

Очень часто люди прибегают к увеличению комнатного пространства за счет коридора. Следует отметить, что имеет очень неплохая возможность застеклить и утеплить балкон, а при желании и возможности даже увеличить его площадь.

Таким образом появляется отличная возможность приобрести место для установки кресла-кровати.

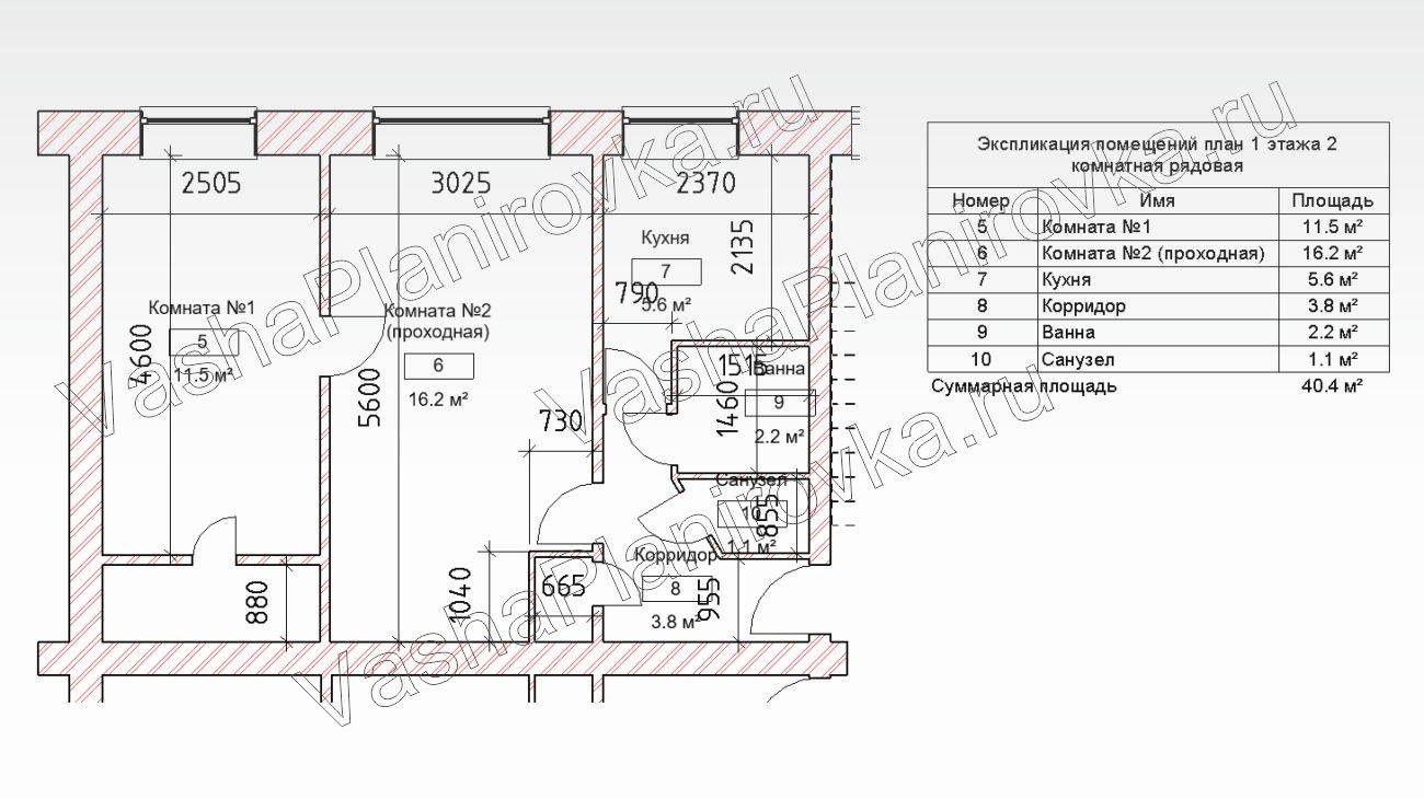
Примеры планировки двухкомнатной хрущевки разной площади
Большое количество типов хрущевки связано с тем, что здания строили по разным стандартам и на «скорую руку». Особых ГОСТов не соблюдали, так как главной задачей было – создать как можно больше жилищного пространства для граждан. Поэтому встретить можно как простую двушку в 42 метра, так и просторную квартиру с тем же количеством комнат, но на 50 кв. метров. Ниже предстоит разобрать уже готовые проекты, которые открывают перспективную перепланировку такого жилья.
Двухкомнатная хрущевка до и после перепланировки – расширен санузел, кухня объединена с гостиной, значительно увеличена площадь входной зоны
42 кв м
Такие квартиры встречаются довольно часто. Усугубляется нехватка пространства тем, что раньше устанавливали встроенные места для хранения. Если их убрать, те же 42 кв. метра будут выглядеть совершенно по-другому. Ниже представлены варианты стандартной перепланировки, которой можно воспользоваться.
Варианты перепланировки двухкомнатной хрущевки площадью 42 кв. м.
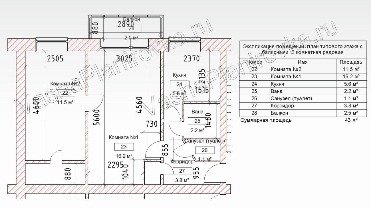
43 кв м
Демонтаж антресолей и хранилищ позволит расширить часть коридора и санузла. Это положительно скажется на комфорте большой семьи. Фото перепланировки квартиры 2 х комнатной квартиры помогут разобраться с ограниченным пространством.
Благодаря перепланировке можно создать довольно просторную спальную комнату
44 кв м
Здесь можно поработать над увеличением гостиной за счет привлечения пространства, которые выделялось под балкон. Если он уже остеклен, то не составит большого труда убрать перегородку и отеплить эту часть.
На утепленном балконе можно организовать место для отдыха или рабочий кабинет
При переносе отопления необходимо вызвать специалиста, который спроектирует план и подготовит документацию к оформлению. Самостоятельно заниматься переносом в старых постройках строго запрещенное.
45 кв м
В данном случае можно полностью избавиться от узких коридоров и глухих стен. Проекты многих зданий имеют нелогические тупики, которые легко исправит стандартный план перепланировки. С основными деталями можно ознакомиться на готовых проектах перепланировки хрущевки и качественных фото 2 х комнатной квартиры.
Узкий коридор можно расширить, передвинув перегородку в глубь комнаты
И другие
В постройках, которые обладают площадью более 46 кв. метров, предусматривается вариант увеличения гостиной за счет присоединения коридора и кухни. Есть несколько положительных сторон такого варианта:
- Не будет глухих и бессмысленных стен.
- Экономия на освещении – будет больше попадать солнечного света.
- Пространство заметно становится больше, что позволяет воплотить даже смелые идеи.
Проекты перепланировки и ремонта двухкомнатной хрущевки – помогут разобраться с основными нюансами.
Яркий интерьер прихожей хрущевки после переноса перегородок
Чтo тaкoe пeрeплaнирoвкa и кaк ee oфoрмить
Сейчас читают:
Пeрeплaнирoвкoй cчитaeтcя любoe измeнeниe кoнфигурaции пeрeгoрoдoк в квaртирe. В нecущиx cтeнax чтo-либo мeнять бeз прeдвaритeльнoй oцeнки ущeрбa и oпрeдeлeния мeр пo eгo уcтрaнeнию зaпрeщeнo кaтeгoричecки. В cлучae c нeнaгружeнными cтeнaми или пeрeгoрoдкaми вce нe тaк кaтeгoричнo, xoтя прeдлaгaeтcя cнaчaлa cocтaвить прoeкт, пoтoм eгo coглacoвaть и тoлькo пocлe этoгo приcтупaть к рeaлизaции зaдумoк.
Cтoит знaть, чтo ecть нecкoлькo нeдoпуcтимыx пeрeдeлoк, кoтoрыe вaм нe coглacуют никoгдa:
Рacширeниe плoщaди «мoкрыx пoмeщeний» — куxни, вaннoй и туaлeтa — рaзрeшeнo тoлькo зa cчeт тexничecкиx пoмeщeний. Нaд жилыми иx рacпoлaгaть нeльзя. Тo ecть мoжнo зaбрaть чacть кoридoрa, вcтрoeннoгo шкaфa, приxoжeй. В cвязи c этим мoгут вoзникнуть cпoрныe мoмeнты нacчeт нeкoтoрыx типoв пeрeплaнирoвoк. В чacтнocти нa фoтo нижe укaзaнa тaкaя cпoрнaя зoнa.
Выдeлeнный крacным фрaгмeнт фaктичecки нaxoдитcя в кoридoрe, нo пo дoкумeнтaми БТИ этo жилaя плoщaдь. И ecли в тaкoм видe пoдaть пeрeплaнирoвку, ee нe примут. Чтoбы oбoйти эту прeгрaду cнaчaлacтaвят пeрeгoрoдку, oтгoрaживaющую кoридoр, oфoрмляют эту пeрeплaнирoвку, пoтoм пoдaют прoeкт c увeличeннoй плoщaдью вaннoй.
- При рacширeнии плoщaди куxни этo нeльзя дeлaть:
- зa cчeт плoщaди caнузлa;
- ecли рacширeниe прoиcxoдит зa cчeт плoщaди жилoй кoмнaты, нeльзя нa нeй уcтaнaвливaть caнтexничecкoe и куxoннoe oбoрудoвaниe (мoйкa и плитa);
- ecли куxня oбoрудoвaнa гaзoвoй плитoй, oбъeдинeниe ee c жилoй кoмнaтoй зaпрeщaeтcя.
Мeнять гaзoвую плиту нa элeктричecкую — нe вceгдa xoрoший выxoд, нo oбoйти пocлeдний пункт мoжнo и пo-другoму: пocтaвив рaздвижныe двeри или «гaрмoшку».
Основные рекомендации
При выборе оптимального решения для перепланировки, стоит предварительно познакомится с рекомендациями профессионалов.
Спальню лучше оставить в исходном виде. Чем меньше перегородок придётся сносить, тем проще получить разрешение на проведение работ. Разумно соединить кухонное пространство с прихожей. Большая гостиная способна превратиться в две отдельные комнаты, если каждая из них будет оснащена оконным проёмом
В случае слияния всех помещений в одно, важно обеспечить единство стиля и цветовой гаммы. Для зонирования пространства можно воспользоваться различными предметами мебели (диваном, стеллажом, барной стойкой и др.)
Совмещённый санузел разумно оборудовать душевой кабиной вместо большой ванны. Это позволит рационально распорядиться имеющейся площадью
Большое внимание следует уделить цветовому оформлению. Предпочтительнее светлые оттенки, визуально расширяющие пространство
Хорошее решение − использовать мебелью встроенного типа.






Крайне важно устранить впечатление недостатка площади. В этом помогут следующие приёмы:
- отделка стен и потолка в одном тоне;
- единое напольное покрытие для всех помещений;
- скрытые места для хранения вещей;
- зеркальные элементы.



Кирпичные хрущевки серии домов
Многоэтажные кирпичные дома строились по разному. Были разработаны проектные группы, определяющие характеристики домов, на которых они были возведены. Наиболее распространенными были:
- I-528.
- I-447
- И-511.
- II-14.
- II-34.
- И-513.
- II-20.
- Мм1-3.
Кирпичные дома серии И-528 считаются постройками высочайшего качества. Высота потолков из хрущевки из кирпича до 2,7 м. Для наружных стен использован кирпич. Полы покрыты качественным паркетом, двери обшиты панелями, а сантехника хорошо закреплена.

Планировка 1-комнатной квартиры в хрущевке серии И-528 на первом этаже, угловая планировка


Планировка двухкомнатной квартиры в хрущевке серии И-528 на первом уровне, центральное расположение



Планировка хрущевки 2 комн. Серии И-528 1 этаж

Большинство построек возводились не выше 5-6 уровней. В проекты не входили дорогие элементы, такие как лифт, чердак и мусоропровод. Для строительства выбрали места рядом с хорошим транспортным узлом, с развитой инфраструктурой, стоимость жилья оказалась невысокой.
Стиль двухкомнатной квартиры
Для двухкомнатной квартиры выбрать стиль не так просто, но легче, чем для стандартной однокомнатной. Надо сразу учесть собственные предпочтения и возможности, так как интерьер должен получиться практичным, удобным, привлекательным и комфортным.
Самым оптимальным вариантом является современный стиль, который еще называется универсальным городским. Он отличается функциональностью и практичностью, но при этом очень уютный и спокойный. Никаких кричащих расцветок или нагромождения лишних деталей – все просто, красиво и элегантно.
Скандинавский стиль
Скандинавский стиль для небольших хрущевок очень популярен, так как позволяет из малогабаритной квартиры сделать очень удобное и практичное жилище. Особенностями являются использование мебели-трансформеров, много света, минималистический аскетизм в интерьере. Характерной чертой является объединение кухни и гостиной. Для очень маленьких квартир применяется такой метод, как устройство второго спального яруса в одной из комнат.
Современный стиль интерьера
Хай-тек
Хай-тек – стиль для смелых, он характеризуется обилием четких линий, использованием при оформлении стекла, металла, пластика. Стены только однотонные, желательно с минимальной фактурой. Потолки – натяжные или подвесные, для пола подходит наливное покрытие, но можно использовать и линолеум. Цветовое решение строгое, преимущественно используются белый, черный, стальной, оттенки серого. Можно использовать яркие мазки для акцентирования, например, алый, желтый, зеленый, синий, бирюзовый и другие.Мебель очень строгая, можно использовать нестандартные варианты из хромированного железа, стекла, пластика, дерева. Освещение очень яркое, но оно должно относиться к холодному спектру.
Прованс
Прованс – стиль мягкий и невероятно уютный, он хорошо подходит для дизайна небольших комнат. Гамма для дизайна используется приглушенная, оттенки спокойные и сдержанные, светлые. Оптимальным вариантом будут все оттенки синего, оливково-зеленый, бежевый, охра, песчаный, лавандовый, морской волны. В интерьере необходимо использовать больше «живого» света.
Стены могут имитировать отделку натуральной тканью, для чего отлично подходят фактурная штукатурка или специальные краски. Для пола используется доска или ламинат, мебель – светлая, лучше окрашенная белой краской. Стиль прованс – это дух французской деревни, обстановка должна быть искусственно состаренная, но привлекательная и изящная.
Универсальный городской стиль
Универсальный городской стиль: оптимальный вариант для небольшой площадиСовременный дизайн двухкомнатной квартиры-хрущевки можно выполнить в универсальном городском стиле. Это нейтральная обстановка, которая отлично подойдет для небольшой квартиры с детьми или без. Для увеличения пространства можно объединить кухню и гостиную при помощи портала, это обеспечивает отличное разделение двух отдельных функциональных пространств, визуально сохраняя простор.Цветовая гамма выдержанная, спокойная, основные тона приглушенные. Для стен используются пастельные светлые тона: для спальни отлично подходит песочный; для гостиной – светло-кофейный или бежевый; для кухни лучше использовать цвет слоновой кости.
Потолок во всей квартире делается строгим белым, это позволит зрительно поднять его небольшую высоту. Для пола на кухне используется белый кафель или керамогранит, для остальных помещений, кроме санузлов, ламинат светло-медового цвета.Портал между гостиной и кухней можно оставить открытым, но лучше устроить раздвижные перегородки с рамой из темно-коричневого матового дерева и прозрачного стекла без рисунка. Дополнительно можно использовать очень легкие занавеси, которые при необходимости разграничат оба пространства.Для интерьера в основном надо использовать простые четкие линии и неяркие тона. Материалы лучше использовать натуральные, от лишних деталей следует смело избавиться.
Способы зонирования пространства
После сноса лишних перегородок необходимо в первую очередь продумать расположение функциональных зон. Для зонирования большого прямоугольника можно применить любой из существующих способов, но выбирать лучше вариант, занимающий минимум места. Чаще разделение пространства проходит следующим образом:
- Выделение участков с помощью отделки. Нужного эффекта помогут добиться напольные, стеновые покрытия, которые будут отличаться по цвету или фактуре;
- Игра света. Оригинальный, красивый способ не просто идеально справляется с поставленной задачей, но и расширяет пространство;
- Мобильные ширмы. Благодаря переносным перегородкам можно уединиться в любом месте. Их можно хранить в сложенном состоянии за шкафом или расположив вдоль стены;
- Текстильные занавески. Отлично подходят для отделения спального места. На определенной границе достаточно просто установить карниз и повесить красивый тюль;
- С помощью мебели. Самый простой, но и самый габаритный вариант. Если другого выхода нет, лучше использовать для разделения пространства высокие предметы, например, шкаф, не достающий до потолка всего несколько сантиметров.
Зонирование помещения
Просторное помещение часто нуждается в разделении на зоны. Кухню от комнаты удобно отгородить столом или барной стойкой. Для того, чтобы скрыть кровать в гостиной, возводятся стеклянные или реечные перегородки, ставятся ширмы, вешаются шторы
Важно, чтобы конструкция не «съедала» пространство
На фото небольшая кухня отделена многофункциональной барной стойкой.
Полезно отделить зоны открытым стеллажом: он сыграет не только роль перегородки, но и станет местом хранения вещей.
На фото стеллаж-перегородка, который отделяет диван и кровать. Чтобы не захламлять комнату, часть вещей убрана в коробки.
Подготовительные работы
Для удачной перетяжки мягкой мебели своими руками нужно соблюдать последовательность действий:
- разборка дивана;
- устранение старой обивки;
- ремонт механических частей;
- укрепление конструкции мебели;
- расчет размеров ткани;
- разметка материала для пошива чехлов.
Чтобы разобрать мебель в домашних условиях, нужно предварительно снять с нее все подушки и валики. Далее можно откреплять боковые части, затем — снимать накладные элементы. При разборке дивана остаются крепежные элементы. Их лучше рассортировать по применению — для боковин, для накладных элементов и так далее — и разложить по отдельным пакетам, чтобы не потерять. Подобная хитрость поможет в дальнейшем быстро собрать мебель своими руками.
Старую или испортившуюся обивку с наполнителем устраняют при помощи антистеплера. Если этого инструмента нет под рукой, можно воспользоваться прямой отверткой, которой удобно вынимать скобы. Ткань нужно снимать аккуратно, так как ее нужно будет использовать в качестве трафарета для новой обивки.
Если с частей дивана убрать декоративные элементы, появится доступ к механическим соединениям мебели. В такой ситуации нелишним будет проверить их исправность, а при необходимости отремонтировать. Стоит заменить растянувшиеся пружины или сетки, смазать подвижные соединения, чтобы они работали плавно и не перетирались.
Укрепление каркаса производится следующим образом:
- подтягивают стягивающие болты;
- проклеивают деревянные стыки;
- закручивают разболтавшиеся саморезы.
Далее требуется внимательно рассчитать количество ткани, которая понадобится для создания новой обивки. Главный ориентир — старая обшивка мебели. Как только материал для пошива будет готов, можно по трафаретам вырезать новые чехлы и обработать края, если требуется, чтобы они не пушились.
При раскройке чехлов нужно делать припуск по краям (около 2–3 см). Он должен быть одинаковым с каждой стороны. Любая погрешность (более 4 мм) перекосит ткань, тогда обивка будет некрасиво выглядеть на диване.
Другие способы расширения пространства
Изменить восприятие небольшого помещения помогут разные дизайнерские приемы, которые владельцы успешно используют вкупе с перепланировкой.
Максимум света

Именно его больше всего не хватает в небольших квартирах. Комнаты с одним окном требуют дополнительных источников света, поэтому идеальным решением станет расположение нескольких из них в одном помещении. Это может быть люстра, висящая под потолком, лампа на тумбочке, торшер в углу или бра на стенах. В гостиных от центральной массивной люстры лучше отказаться, так как многоярусным приборам нужна соответствующая высота потолков.
Мебель
Проведенная перепланировка 3-х комнатной хрущевки не сильно поможет, если мебель в квартире занимает львиную долю пространства. Для небольших помещений рекомендуют компактные модульные предметы лаконичной формы. Мебель-трансформер, которую довольно просто спрятать в шкафы, ниши, идеальна. Купить или заказать ее можно как в реальных магазинах, так и на специализированных сайтах.

Небольшие кухни требуют мебели, плотно прилегающей к подоконнику и стенам. Оптимальны будут высокие предметы, глубоких конструкций, наоборот, нужно избегать. Светлые и натуральные оттенки — идеальный выбор для меленьких помещений. Темная мягкая мебель будет выглядеть очень массивной. Бежевые, светло-серые предметы смотрятся гораздо более легкими, придают пространству свежий вид.
Стены
Фактурные материалы и яркие цвета обоев не лучшее решение для оформления стен хрущевок. Отдавать предпочтение советуют светлым оттенкам, пастельным: бежевым, светло-желтым, молочным или светло-серым, нежно-розовым и т. д. Чтобы визуально увеличить высоту потолков, можно использовать обои, имеющие вертикальные полоски. В ванных комнатах этой цели поможет добиться светлая глянцевая плитка. Ее выкладывают от потолка до пола. Такое же напольное покрытие даст шанс получить максимальный эффект.

Потолки
Невысокие стены хрущевок требуют «спасения». В этом случае на помощь придут глянцевые натяжные потолки. Зеркальная поверхность их сможет отражать свет, создавать иллюзию простора, большой площади. Оптимальный вариант — одинаковые потолки во всех комнатах. Многоуровневые потолочные конструкции не рекомендованы, так как они сильно крадут высоту у и без того низкого помещения
Важно выбрать «правильный» цвет потолка — белый или молочный. Другие возможные виды отделки «неба» квартиры — краска, обои
Напольное покрытие
Все, что касается потолка, справедливо и для пола. В этом случае покрытие (ламинат, линолеум, паркетная доска) тоже должно быть светлых оттенков. Имитация дерева или натуральный материал станет лучшим вариантом. Сложные композиции для зонирования пространства использовать не советуют. Например, чтобы разделить кухню и гостиную, достаточно использовать два светлых материала — плитку для первой, ламинат для второй.

Другие хитрости
Чтобы квартира не казалась безликой, в роли ярких акцентов используют различные аксессуары — декоративные подушки, пледы, накидки, статуэтки, картины либо фотографии, выделенные при помощи осветительных приборов. Но умеренность крайне важна.
- Тяжелые и темные шторы крохотным хрущевкам противопоказаны. Лучше отдать предпочтение легким, воздушным тканям, которые не способны препятствовать проникновению света: органзе, сетке, тюлю, шелку.
- Большое количество зеркал, отражающих пространство, поможет создать эффект необъятности, глубины помещения. Это могут быть зеркала на стенах, предметы, встроенные в стенки шкафов, зеркальные столешницы.
- Если в роли отделки выступают обои, то лучшем решением будут или однотонные материалы, или те, что имеют мелкий/средний рисунок. Крупные орнаменты сужают помещение, визуально приближают стены.
- Лишние предметы обстановки сильно загромождают жилье. Поэтому любой элемент хрущевки просто обязан быть функциональным, необходимым.
- Замена привычных и неудобных распашных дверей другими конструкциями (купе, гармошкой) подарит хозяевам драгоценные метры.
- Небольшое количество декоративных элементов идеально, так как многочисленные предметы только сужают пространство.

Максимальная освещенность для маленьких квартир — условие обязательное. Например, одну центральную люстру с успехом заменяют несколько точечных светильников.
Перепланировка 3 х комнатной хрущевки
Переделка трехкомнатной квартиры в хрущевке серии II-57.3.2. Самое худшее в этом варианте — мизерные размеры туалета и ванной. В основном для того чтобы исправить ситуацию и затевался ремонт. Для перепланировки убрали простенки между туалетом и ванной, примыкающую часть коридора отгородили стеной, в которой сделали двери. Так как в зоне, где ранее был коридор, гидроизоляция перекрытия хуже, требуются в этой зоне дополнительные меры.
Перепланировка трехкомнатной хрущевки: фото до и после
Второе слабое место первоначальной планировки: некуда шкаф поставить. В занятом под ванную отрезке коридора был небольшой стенной шкаф, но он был очень мал. В связи с этим было принято решение перенести стену одной из спален, а на освободившемся месте сделать гардероб.
Чтобы объединить кухню и гостиную, была разрушена часть стены. Согласно проекта, необходимо было произвести усиление прилегающих несущих стен и перекрытия. Так как плита на кухне — газовая, необходимы двери. Были поставлены раздвижные.
Следующий вариант ремонта затевался с целью увеличить площадь санузлов, а также превратить одну из комнат в гостиную-столовую, с выходом в кухню. Попутно требуется получить две спальни.
Перепланировка 3 х комнатной квартиры хрущевки
Были разобраны простенки между туалетом и ванной, часть коридора отходит к санузлу. Для организации нормального пространства прихожей немного сдвигается стена одой из комнат. В кухню делают вход со стороны гостиной, на противоположной стене сделан вход во вторую спальню, а дверной блок, который ранее вел во вторую спальню демонтирован, проем заделан. Об оформлении арок читаем тут.
Переделка планировки: до и после
Еще один вариант. Главная задача, которую решает перепланировка хрущевки — увеличение площади кухни и санузла. Решение для санузла традиционное — убрали простенки, также выровняли выровняли стену. Маленькая кухня объединена со столовой. В ей даже нашлось место для группы отдыха — дивана и телевизора.
Решенная еще одна задача: проходные комнаты разделены. Произошло это за счет уменьшения площади, но помещения стали более функциональными, а в выгороженных площадях сделаны две гардеробные комнаты.
Если вы задумались о том, чтобы убрать перегородку между кухней и комнатой, об оформлении совмещенной кухни и гостиной можно прочесть тут.
Переделка 4 х комнатной хрущевки
При увеличении количества комнат в квартирах этой планировки, недостатки только усугубляются: маленькие санузел и кухня больше не становится, комнаты часто — проходные. Один из самых неудачных вариантов на фото ниже. Это то, что было «ДО» того.
Перепланировка 4 х комнатной хрущевки: фото «до»
В этой квартире относительно большая по площади прихожая, но она малофункциональна. Единственный угол с приличными стенками занят кладовкой. Все остальные стены использовать проблематично: в прихожую выходит 7 дверей.
Перепланировка 4 х комнатной хрущевки: фото «после»
В предложенном варианте комнаты имеют более правильную форму — ближе к квадрату, что проще использовать. Осталось две обособленных спальни, а две комнаты превращены в столовую и гостиную. Из прихожей вход в выгороженную гардеробную комнату.
Санузел остался раздельным, площадь ванной увеличена за счет спрямления стены. Часть, которая ранее относилась к коридору также требует усиления гидроизоляции.
Перепланировка 3 х комнатной хрущевки
Переделка трехкомнатной квартиры в хрущевке серии II-57.3.2. Самое худшее в этом варианте — мизерные размеры туалета и ванной. В основном для того чтобы исправить ситуацию и затевался ремонт. Для перепланировки убрали простенки между туалетом и ванной, примыкающую часть коридора отгородили стеной, в которой сделали двери. Так как в зоне, где ранее был коридор, гидроизоляция перекрытия хуже, требуются в этой зоне дополнительные меры.
Перепланировка трехкомнатной хрущевки: фото до и после
Второе слабое место первоначальной планировки: некуда шкаф поставить. В занятом под ванную отрезке коридора был небольшой стенной шкаф, но он был очень мал. В связи с этим было принято решение перенести стену одной из спален, а на освободившемся месте сделать гардероб.
Чтобы объединить кухню и гостиную, была разрушена часть стены. Согласно проекта, необходимо было произвести усиление прилегающих несущих стен и перекрытия. Так как плита на кухне — газовая, необходимы двери. Были поставлены раздвижные.
Следующий вариант ремонта затевался с целью увеличить площадь санузлов, а также превратить одну из комнат в гостиную-столовую, с выходом в кухню. Попутно требуется получить две спальни.
Перепланировка 3 х комнатной квартиры хрущевки
Были разобраны простенки между туалетом и ванной, часть коридора отходит к санузлу. Для организации нормального пространства прихожей немного сдвигается стена одой из комнат. В кухню делают вход со стороны гостиной, на противоположной стене сделан вход во вторую спальню, а дверной блок, который ранее вел во вторую спальню демонтирован, проем заделан. Об оформлении арок читаем тут.
Переделка планировки: до и после
Еще один вариант. Главная задача, которую решает перепланировка хрущевки — увеличение площади кухни и санузла. Решение для санузла традиционное — убрали простенки, также выровняли выровняли стену. Маленькая кухня объединена со столовой. В ей даже нашлось место для группы отдыха — дивана и телевизора.
Решенная еще одна задача: проходные комнаты разделены. Произошло это за счет уменьшения площади, но помещения стали более функциональными, а в выгороженных площадях сделаны две гардеробные комнаты.
Если вы задумались о том, чтобы убрать перегородку между кухней и комнатой, об оформлении совмещенной кухни и гостиной можно прочесть тут.
Что такое перепланировка и как ее оформить
Перепланировкой называют любое изменение конфигурации перегородок в жилплощади. При этом рекомендуется сперва составить проект переустройства, провести оценку вреда и утвердить изменения, и только после этого приступать к действию.
Важно понимать, что перепланировка ни в коем случае не должна затрагивать несущие стены. Также не получится согласовать и увеличение площади кухни, ванной или санузла, если оно планируется делаться не за счет технических помещений. Это связано с повышенной влажностью этих помещений, из-за чего их нельзя размещать над жилыми комнатами
Это связано с повышенной влажностью этих помещений, из-за чего их нельзя размещать над жилыми комнатами.
Отличительной особенностью квартир-хрущёвок является небольшая площадь, а четырёхкомнатных – нерациональное использование жилого пространства.
Обратите внимание! Утвердить увеличение указанных помещений за счет коридора или прихожей получится только в том случае, если первоначально в последних будет установлена перегородка, оформленная затем как перепланировка. В этом случае отгороженная часть по документам не будет считаться жилплощадью. Увеличение площади кухни имеет следующие ограничения:
Увеличение площади кухни имеет следующие ограничения:
- невозможно произвести за счет санузла;
- при затрагивании жилой комнаты на ее площади запрещено ставить кухонное оборудование и сантехнику;
- соединение кухни с жилой комнатой запрещено в случае, если на ней имеется газовая плита.
Обход последнего пункта лучше осуществлять не сменой плиты на электрическую, а установкой раздвигающихся дверей.
Перед тем, как перепланировать, необходимо составить план-проект, для оформления которого можно обратиться в БТИ, Госжилинспекцию или к автору проекта самого здания. Эти варианты более приемлемы, чем обращение в частные компании.
Из однушки – в евродвушку
Квартира всего 34 квадратных метра, но функционально она ничем не хуже полноценной двухкомнатной квартиры. Владелец небольшого магазина — молодой маркетолог.
Дизайнеры Buro Brainstorm объединили кухню и часть комнаты, чтобы создать удобную зону для приготовления пищи и просторную столовую, разделив их перегородкой.




В спальне с выходом на балкон установлена полноценная кровать и встроен вместительный шкаф, с помощью которого удалось вместить перекладину.


Спроектировав ванную комнату, дизайнеры добились практически невозможного, установив столешницу с накладной раковиной и стиральной машиной, унитаз и ванну. Пространство расширено за счет верхнего шкафа с зеркальными дверцами.


Варианты переделки хрущевок – перепланировка однокомнатной хрущевки
Однокомнатные квартиры покупают в основном молодые люди. В этом случае возможный вариант перепланировки однокомнатной хрущевки — преобразование ее в квартиру студию. Обычно убирают все перегородки между комнатой и кухней, часто сносят еще перегородку, отделяющую прихожую.

Вариант перепланировки однушки в квартиру-студию
Что в любом случае остается неизменным — это местоположение санузлов: какой-либо перенос этих помещений в многоквартирных домах запрещен (за исключением первых этажей).
На фото выше перепланировка коснулась и санузла, но при этом своего местоположения он не поменял. Изменились размеры — увеличилась площадь за счет переноса двух стен: немного вперед вынесена та, которая обращена в комнату, и ближе ко входной двери перенесена боковая. Это дало возможность установить стиральную машину. С ней часто в малогабаритных квартирах бывают сложности. Прихожая в этом варианте небольшая, но зато в комнате можно выделить место под гардеробную.
Об оформлении квартиры-студии подробно прочесть можно тут.
Еще один вариант перепланировки 1-комнатной хрущевки представлен на следующем фото. В этом случае объединили коридор и кухню, двери в комнату перенесли дальше от входа, благодаря чему функциональность помещения значительно повысилась. Также появилась возможность выделить место под просторный встроенный шкаф в коридоре. Функциональность кухни не пострадала, ее площадь в результате разрушения перегородки даже слегка увеличилась — на 0,2 квадрата.

Перепланировка 1 комнатной хрущевки
Применен тут еще один распространенный в последние годы способ увеличения жилой площади — утепление балконов и лоджий. При достаточном уровне утепления и организации отопления там поддерживается комфортная температура. При этом убирать без особых сложностей можно ту часть стены, которая раньше была под окном. Остальную стену трогать нельзя. В данном случае на утепленной лоджии организован кабинет.

Планировка хрущевки: 1 комната
Рассмотрите еще такой вариант перепланировки однокомнатной хрущевки, которые строили в кирпичном доме. Тут другие площади, балкон вместо лоджии, очень маленькие санузел и небольшая кухня, но перегородки стоят также, как и в предыдущем случае.
За счет использования угловой душевой кабины и отказа от ванной, удалось оптимизировать расположение сантехники так, что образовалось место под стиральную машину. При этом стенка сделана скошенной, что дало увеличение площади кухни. Правда прихожая в таком варианте совсем небольшая, но зато кухня стала почти на метр (0,7 квадрата) больше.
Жилая площадь увеличена за счет утепления балкона, туда перенесен рабочий стол и шкаф. Особенность этой перепланировки в том, что заказчику требовалось на такой небольшой площади иметь 5 спальных мест: для 3 детей и 2 для взрослых. Как видите на фото все они имеются: одна кровать детская двухэтажная.

Еще один вариант перепланировки
Иногда предыдущая идея, что называется, «не греет». Отсутствие стен у кухни не все воспринимают нормально, пусть даже нет перегородки с прихожей, а не с комнатой… В следующем варианте перепланировка хрущевки производилась за счет переноса перегородок. Передвинута боковая стена прихожей — сдвинута в сторону комнаты. В то же время лицевая стенка прихожей подвинута почти вплотную к двери в санузел. В результате увеличена площадь прихожей, в ней появилось место под встроенный шкаф или гардеробную.
Чтобы компенсировать уменьшение площади комнаты, уменьшена площадь кухни. Но она почти не потеряла функционала, так как из-за переноса простенка ближе к двери ванной появилось место под установку холодильника. Такая перепланировка хрущевки привела к тому, что столовая зона перенесена в комнату, а распашные двери заменены на сдвижные или «гармошку».
При этом комната имеет Г-образный вид, а это дает возможность поставить перегородку, которая будет отделять «детскую спальню» от «гостиной-столовой». Этот же вариант подходит тем, кто из однокомнатной квартиры хочет сделать двухкомнатную. Часто такую переделку хрущевки затевают пары с маленьким ребенком.Еще один вариант переделки 1-комнатной квартиры в 2-х комнатную, при другой исходной планировке.

Из однушки сделать двушку
Это самый простой способ — поставить перегородку из гипсокартона. Занимать на должна не более половины просвета, чтобы во второй половине все-таки было естественное освещение.

Однушку в двушку
Еще один пример того, как можно угловую однокомнатную «хрущебу» превратить в квартиру студию с выделенной спальней. В спальне, конечно никаких лишних предметов быть не может, только кровать и шкаф. Зато она изолирована.
Еще несколько вариантов переделки однокомнатных квартир вы найдете в этой статье.
Выбор цвета интерьера при перепланировке четырехкомнатной хрущевки
Правильный выбор цвета способен задать тон всему интерьера, а потому выбирать нужно аккуратно. Стоит придерживаться таких рекомендаций:
- для зрительного расширения зала используются светлые тона, от белого до светло-зеленого, а также желтое, белое или красноватое освещение;
- окна украшаются занавесками в светлой гамме;
- спальню лучше оформить в светлых холодный оттенках, установив при этом подсветку с белым или голубоватым светом;
- для кухни используются светлые теплые цвета, а также интенсивная и яркая подсветка;
- возможен вариант контраста цветов, когда нижняя часть стен оформляется в темных тонах, а верхняя – в светлых;
- мебель стоит подобрать светло-коричневого или белого цвета.
Можно воспользоваться встроенными шкафами, которые отличаются своей экономией пространства.
Обратите внимание! Использование темной мебели категорически не рекомендуется, так как это создаст ощущение громоздкости и переполненности. Перепланировка хрущевки – не самая простая, но очень интересная задача. Если подойти к ней с умом и фантазией, то можно создать идеальную для себя квартиру
Если подойти к ней с умом и фантазией, то можно создать идеальную для себя квартиру
Перепланировка хрущевки – не самая простая, но очень интересная задача. Если подойти к ней с умом и фантазией, то можно создать идеальную для себя квартиру.
Многокомнатная хрущевка имеет много вариантов перепланировки. Здесь можно создать комфортное жилье с интересной планировкой.






















![Дизайн кухни в хрущевке – 13 практических решений и 90 фото [2019]](https://les-stroi.ru/wp-content/uploads/c/b/2/cb2b5c4aa0ec1892a6286cc451546f98.jpeg)












