Отделочные работы в доме-шалаше для круглогодичного проживания
При строительстве дома для постоянного проживания в первую очередь формируют теплый пол. Для возведения каркаса оборудуют черновое покрытие. Затем по несущим прогонам треугольных рам производят укладку деревянных лаг. Шаг размещения этих элементов 0,5 м, фиксацию производят гвоздями.
Чистовой пол формируют из прочных, высококачественных досок, размещенных перпендикулярно лагам. Внешнюю отделку здания выполняют подходящим материалом. Можно использовать доски, которые устанавливают горизонтально.
Внутренняя отделка выполняется с укладки теплоизоляции. Состав зависит во многом от климатических условий в холодное время года. Затем производят отделку ДВП или другими стройматериалами по желанию владельца или наличию бюджета. По завершении отделочных работ производится установка дверных и оконных блоков.
Как сделать летний домик своими руками
Прежде всего, следует своевременно подготовить материалы, необходимые для постройки дома. Материалы должны быть полностью готовы, чтобы в дальнейшем их достаточно было скрепить, не тратя время на ненужные действия. Если вы все работы проводите в одиночку, то помните, что вес каждой детали должен быть таким, чтобы вы могли поднять её. Благодаря всем этим моментам вы сможете существенно сэкономить время, отведённое на строительство дома.
Помимо этого, для обустройства домика эконом-класса можно использовать фанеру, толщина которой составляет не менее 10 мм, брус сечением 50 х 50 мм и минеральную вату в качестве утеплителя.
При изготовлении основания для конструкции дома вполне пригодны бетон и кирпич. Если вы решили использовать кирпич, то приобретать следует полнотелый, красный, из которого будут выкладываться столбы. Лаги и стропила сооружают из досок (обрезных или необрезных) сечением 100х50 мм, которые скрепляются при помощи пластин и уголков. При использовании необрезной доски помните, что её придется сверху дополнительно прикрыть слоем фанеры.
При обустройстве фундамента тоже можно использовать листы ДСП, но их потребуется тщательно обработать олифой, иначе они в самое ближайшее время загниют и придут в негодность.
Очень часто строительство летних домиков подразумевает возведение бетонного фундамента, для которого потребуется предварительное строительство каркаса. Для этого вам потребуется вырыть яму глубиной около 70 см и сделать в ней песчано-гравийную подушку высотой около 20 см. Цемент, в процессе застывания, следует периодически поливать водой, за счёт чего он приобретет нужную прочность и не потрескается.
Кроме этого, обязательным элементом надёжного фундамента является обвязка из бруса (150х150 мм), на которую в дальнейшем укладывают каркас из доски. Во внутреннюю часть каркаса помещают 10 сантиметровый слой минеральной ваты, после чего полученную конструкцию зашивают двумя слоями фанеры (чтобы скрепить листы фанеры друг с другом, можно использовать клей ПВА).
Обустройство щитовых садовых домиков требует предварительного изготовления щитов для стен, которые в идеале должны быть двойными. Чтобы добиться нужного результата, по каждому краю прибивают брус сечением 50х50, после чего для большей надёжности между двухслойными листами фанеры пропускают дополнительный брус посередине щита. Изнутри щит заполняют утеплителем, что позволяет получить конструкцию, в чём-то схожую с сэндвич-панелями. Для ещё большей прочности брус рекомендуется скрепить уголками.
Помимо этого, при последующем скреплении щитов при помощи гвоздей (во время возведения стен), желательно использовать соединительные пластины. Расположение дверных и оконных проёмов также следует предусматривать заранее, чтобы избежать всевозможных переделок, которые отнимут лишнее время и средства.
Стеновые панели из бруса необходимо подготавливать заранее, благодаря чему их установка и выравнивание не будут сопровождаться лишними трудностями. На завершающем этапе, после сборки конструкции из щитов, следует произвести обшивку ветровых планок с последующей установкой дверей и окон. Чтобы конструкция дома прослужила дольше, весь используемый брус необходимо обработать специальными защитными составами, предохраняющими от воздействия насекомых и огня.
Затем стены следует обрешетить и обшить, после чего можно заняться подготовкой лаг. Их укладку под потолком производят точно так же, как и при обработке пола. При этом с каждой боковой стороны доски следует выпустить на 20 см по длине, что позволит сделать кровлю более широкой (её края будут нависать над стенами). Для изготовления стропил идеально подойдёт коньковая доска сечением 50 х 150 мм, кроме этого, потребуются чердачные балки сечением 25 х 100 мм.
Для обеспечения большей прочности крыши потребуется установка укосин. Стропила к обвязке прибивают при помощи винтовых гвоздей длиной 10 см, с использованием уголков. Затем стропила покрывают фанерой, сплошным слоем, при этом её толщина должна составлять не менее 10 мм. Далее на фанеру укладывают и крепят при помощи кровельных гвоздей рубероид или кровельную черепицу. Наиболее оптимальным вариантом станет именно черепица, так как она не поддается воздействию влаги и ветра, а также очень удобна и проста в своем монтаже.
Шаг 8: Время посадки
Время посадки
Время посадки
Время посадки
Как только вся ткань была прикреплена скобами к мусорному ведру, добавилась сочная грязь. Чтобы заполнить один поддон, потребовалось 2 мешка по 1 кубический фут земли. Один мешок заполнял нижний бункер, а другой – средний и верхний бункеры.
Поскольку я буду использовать эти две паллеты, чтобы начать свой бизнес по производству суккулентов (шшшш, это пока секрет), я спланировал расположение суккулентов. Мои суккуленты были сгруппированы по типам и цвету. Я обрезал и удалил суккуленты перед их посадкой. После этого я добавил небольшие слои камней. Камни помогли суккулентам не улететь.
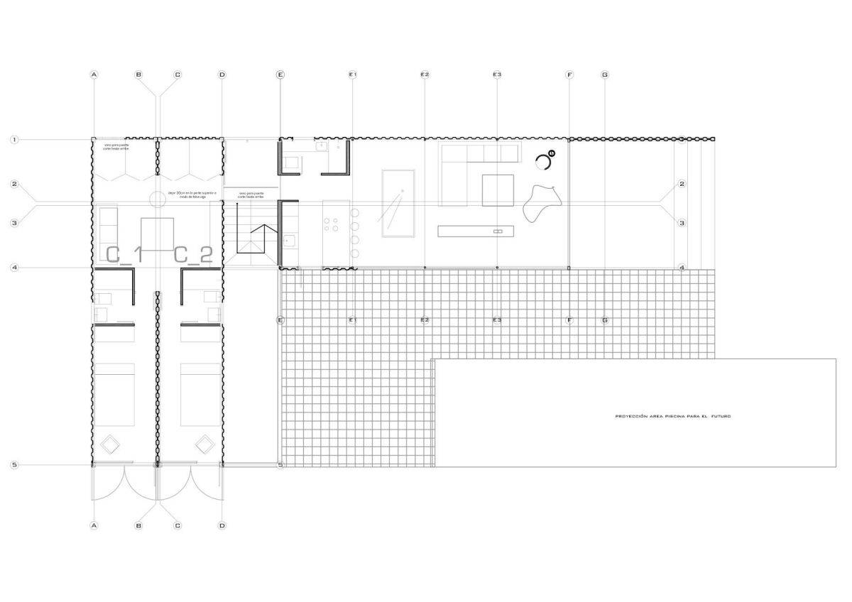
Основные этапы строительства
Возведение любого здания начинается с проекта
Особо важно подобрать вариант, наиболее подходящий по бюджету, соответствующий площадке для строительства. После выбора проекта приступают к поэтапной постройке треугольного дома:
- Подготовительные работы;
- Обустройство фундамента;
- Сборка и установка каркаса;
- Монтаж кровли;
- Обустройство фасада, тыльной стороны здания;
- Внутренняя обшивка;
- Отделочные работы: снаружи, внутри.
Подготовка заключается в очистке участка для обустройства основания. На ровных площадках выполнить их несложно самостоятельно. Подготовив территорию, приступают к работам по установке фундамента. Ввиду легкости каркасной конструкции выбирают некапитальные основания. После обустройства фундамента выполняют обвязку, подготовку поверхности под черновой пол.
По готовности основания приступают к сборке А-каркаса. Треугольные элементы в сборе достаточно тяжелые конструкции. Рекомендуется во избежание падения выполнять их подъем, установку с помощниками. Монтаж обрешетки, кровельных покрытий небольшого веса при наличии специального трапа не составит особого труда. Обшивка корпуса потребуется для фасада, тыльной стороны здания. Для обеспечения достаточного освещения по периметру каркаса обустраивают оконные проемы.
Не быть рабами

Рис и Кэтрин относятся к продвинутому поколению. Они решили соблюсти несколько условий. Во-первых, построить небольшой дом, который не оказывал бы негативное воздействие на местную экосистему. Во-вторых, при строительстве использовать переработанные материалы, бывшие в употреблении. В-третьих, не стать рабами ипотечной системы и ограничиться собственными накоплениями.

Чтобы было понятно, частная недвижимость в Австралии стоит очень дорого. Дом или квартира за 400-500 тысяч долларов относятся к бюджетному сегменту. Люди до конца жизни выплачивают кредиты на жилье, нередко остаток долга переходит детям.
“Мы постарались не быть рабами ипотечной системы и жить свободными – той жизнью, которой мы хотим”, – пояснил Рис.
Шаг 7. Превращение каждого бункера на поддоне в ящики для сеялки
Превращение каждого бункера на поддоне в ящики для сеялки
Превращение каждого бункера на поддоне в ящики для сеялки
Превращение каждого бункера на поддоне в ящики для сеялки
Превращение каждого бункера на поддоне в ящики для сеялки
На этом этапе я использовала ландшафтные ткани, так как они были дешевыми и немного утяжеляли поддоны. Минусом было то, были ли ландшафтные ткани достаточно прочными, чтобы выдерживать вес грязи, растений и камней. Плюсы заключались в том, что ткань была достаточно тонкой, пропускала воду сверху вниз. Определенно, хороший способ сэкономить воду и добавить дренаж.
Я измерил, сколько ландшафтной ткани необходимо для каждого ящика первого поддона, и использовал его в качестве шаблона для ячеек второго поддона. Я увеличил количество используемых тканей вдвое, чтобы исключить возможность разрыва ткани. После того, как вся ткань была обрезана до нужного размера, я использовал степлер, чтобы скрепить ткань скобами со всех четырех сторон и углов к четырем сторонам корзины. Чтобы получить четыре угла идеально, я сложила брезент треугольником и согнула его в сторону. Этот метод был таким же, как и техника упаковки подарочных коробок с четырьмя углами.
Контейнерный гостевой дом разработан архитектором Poteet




Контейнер Гостевой дом – это именно то, что предлагает название проекта. Он был спроектирован и построен Poteet Architects для клиента, который жил в Сан-Антонио, США, в доме, расположенном на бывшей промышленной площадке. Клиенту было любопытно и взволновано экспериментами с транспортными контейнерами, поэтому архитекторы постарались сохранить дизайн этого нового гостевого дома как можно более аутентичным.







Одной из основных целей проекта было создание устойчивой структуры, поэтому клиент решил в первую очередь переработать контейнер. Превращение впечатляет. В гостевом доме установлены большие окна и раздвижные стеклянные двери, которые обеспечивают тесную связь между внутренним пространством и окружающей средой, в данном случае садом. Колода выступает в качестве соединителя между этими двумя областями.






Зеленая крыша – действительно классная особенность. Это помогает этому модулю транспортного контейнера гармонировать с его пышным окружением. Еще одна приятная особенность дизайна – изоляция из аэрозольной пены, покрытая бамбуковой фанерой. Кроме того, нам нравится тот факт, что контейнер имеет этот стальной синий корпус, который помогает ему сохранять свой промышленный вид.


Преимущества домов-шалашей
Несмотря на мнение противников такого архитектурного решения, здания треугольной формы обладают своими достоинствами. Основные преимущества коттеджа-шалаша или летного дачного домика:
- Простота конструкции;
- Возможность возвести здание самостоятельно;
- Короткие сроки строительства;
- Небольшой бюджет для дома-шалаша эконом-класса;
- Строительство на ограниченном пространстве участка.
Возвести дом-шалаш можно и VIP-класса, если будущий владелец обладает достаточной суммой средств на его строительство. Планировка зданий может быть самой различной конфигурации. При наличии большой площади для фундамента можно построить здание значительных размеров. Коттеджи такого типа обладают и несколькими отрицательными сторонами.
Пора домой

Остров Филиппа – туристический рай, расположенный к югу от Мельбурна. Местные жители делят территорию с пингвинами и многочисленными путешественниками. Именно здесь решил осесть Рис Улих – победитель популярного реалити-шоу “Сделай меня супермоделью”.
Мужчина вырос в этих краях, засыпая и просыпаясь под звуки прибоя. Живя в Америке, он мечтал когда-нибудь возвратиться в благословенный край чистого воздуха, красивой природы и бесконечных пляжей. И вот его грезы стали явью, благо семья в лице жены Клэр и двух несовершеннолетних дочерей поддержала столь кардинальное решение. Может, кто-то и будет скучать по шумному Лос-Анджелесу, но не Рис.
Провокатор в коллективе. Как общаться с таким человеком и не ругаться
Круглогодичное производство: преимущества тепличного хозяйства как бизнеса
Установите реальные сроки ухода: простые стратегии перехода на другую работу
Особенности строительства дома-шалаша
Возведение дома-шалаша предусматривает четкую последовательность работ. В любом случае сначала потребуется устройство фундамента. Большинство современных застройщиков прибегают к использованию ленточного или свайного фундамента. Реже используют цементные блоки, которые укладывают на песчаную подушку.
Затем можно прибегать к следующему этапу. Сначала фундамент покрывают гидроизоляционным слоем, позже поверх гидроизоляции укладывают прогоны, фиксируя их к фундаменту.
Далее собирают и устанавливают треугольные стропильные каркасы из бруса необходимого сечения. Потом монтируют каркасы под перегородки, двери и окна, которые будут предусмотрены чертежами.
Поверх стропил монтируется гидробарьер и готовится основание и монтируется кровельное покрытие (профлист, мягкая и фальцевая кровля).
Следующими этапами будут установка оконных и дверных конструкций и устройство фасада.
После выполняется теплоизоляция а-образного дома
На этом этапе важно предусмотреть вентиляционные зазоры, чтобы в доме-шалаше было комфортно жить в любое время года при любом температурном режиме и уровне влажности
Далее по желанию клиента может быть обустроена открытая терраса или веранда. Такое решение станет отличной идеей для расширения площади небольшого дома-шалаша.
А-образный дом – отнюдь не новое, а скорее реанимированное архитектурное решение. Уютный и лаконичный коттедж на фоне природы, построенный с использованием эко-материалов, будет выгодным вариантом для круглогодичного проживания за городом. Также он может использоваться в качестве гостевого домика или сезонного жилья.
Сегодня а-фрейм дома находятся на пике популярности среди компаний-застройщиков. Выбирайте свой идеальный вариант и ждите переезда в готовый дом-шалаш уже за считанные месяцы.
Share on Facebook
Tweet
Follow us
Paper – The Paper House – Рокпорт, Массачусетс.
Бумага является домом из карт . Элис Ф. Стенман, инженер-механик, которая проектировала машины для изготовления скоб, начала строительство дома в 1922 году. Стенман использовал прессованную бумагу и много краски для стен и бумажных журналов для мебели. Бумага должна быть хорошей изоляцией. В итоге из бумаги сделали не только дом, но и мебель. Структура дома является дерево и находится в Rockport, в штате Массачусетс.
Материал стен, который на самом деле должен был быть изоляционным материалом, – это прессованная бумага толщиной около дюйма. Это слои и слои из газет , клея и краски на внешней стороне , что делает его по- настоящему водонепроницаемой.

Шаг 5: Шлифовка / заполнение отверстий и трещин
Шлифовка / заполнение отверстий и трещин
Шлифовка / заполнение отверстий и трещин
Шлифовка / заполнение отверстий и трещин
Чтобы не получить осколки и помочь краске прилипнуть к дереву, мы отшлифовали поддоны. Мы начали с наждачной бумаги с зернистостью 60 и перешли к наждачной бумаге с зернистостью 120. Чем выше степень крупности, тем более гладкой становится поверхность. Наждачная бумага зернистостью 60 сглаживает грубое повреждение древесины и высохшее пятно клея. Наждачная бумага с зернистостью 120 была использована, чтобы сделать поверхность более гладкой.
Чтобы предотвратить неровное шлифование поверхности из-за разного давления пальцев / руки, мы использовали технику блочного шлифования. Для этого мы обернули обрезанные деревянные бруски (от кусков, которые мы снимаем с ног) наждачной бумагой и шлифовали поддоны. Эта идея помогла эргономике предотвратить травму руки и случайно отшлифовать пальцами наждачную бумагу.
Там было много дырок от гвоздей и скоб. Маленькие особо не заморачивались, потому что мы можем покрыть их краской. Было две или три дыры, в которых мы случайно забили или помяли дерево. Столярного наполнителя у нас не было, поэтому мы остановились на столярном клее. Этот метод работает только с небольшими вмятинами, размер которых меньше четверти. У нас было гигантское пятно, где клей продолжал вытекать и образовывал липкую массу клея.
Г-образный контейнер для дома, разработанный James & Mau





В 2010 году компания James & Mau завершила строительство контейнерного дома с L-образной планировкой 190 квадратных метров. Дом делится на два тома. На первом этаже находятся гостиная и открытая кухня, а домашний офис и спальня находятся на верхнем уровне. Оба тома очень гостеприимны и имеют стильный и современный дизайн интерьера и декора.



Существует довольно большой контраст между внутренним и внешним дизайном этого контейнерного дома. Снаружи есть сильная индустриальная атмосфера, в то время как интерьер на самом деле не предлагает этот стиль в любом случае. Более того, интригует и хроматическая палитра. Внешность дома синего цвета и имеет типичный потертый вид морских контейнеров. Объемы первого этажа имеют остекленные поверхности и открыты для обзора и окружающей среды, а верхний этаж является более приватным и имеет маленькие и горизонтальные окна.



Контейнерный дом, построенный вокруг кедра
В Эскасу, Коста-Рика, есть этот довольно необычный дом, спроектированный Марией Хосе Трехос. Есть несколько интересных вещей об этом проекте. Прежде всего, дом построен из исправленных транспортных контейнеров, но это было легко предположить, учитывая тему нашей статьи. Другой необычный элемент – это кедровое дерево, которое растет прямо сквозь колоду. Это происходит потому, что дом был построен вокруг этого дерева, а его дизайн был спроектирован таким образом, что из каждой комнаты открывается вид на дерево.







Особое значение было уделено материалам, использованным на протяжении всего проекта. Главная цель состояла в том, чтобы обеспечить минимальное воздействие на окружающую среду, и это имело такое же отношение к дизайну, как и к материалам и энергосберегающим системам, внедренным повсюду
Основное внимание было уделено возобновляемым, повторно используемым и пригодным для повторного использования материалам, и, следовательно, выбор использования контейнеров. Они также должны были быть долговечными и не требующими особого ухода
В доме деревянные поверхности, бетонные полы, а также ряд бамбуковых акцентов. Кроме того, для орошения используется система сбора дождевой воды, а на крыше дома установлены солнечные батареи.





Преимущества треугольного дома
Оригинальная форма, гармонично вписавшаяся в ландшафт – это не единственный плюс а-образного дома. Помимо этого, архитекторы выделяют такие преимущества:
- Легкий вес здания;
- Прочная конструкция;
- Низкая материалоемкость фундамента;
- Быстрые сроки возведения;
- Высокая устойчивость и прочность.
Дома треугольной формы считаются удачным вариантом для сейсмоопасных зон. Также они могут легко выдерживать большой слой снега на скатах, в таком доме-шалаше на страшны сильные морозы и летняя жара. Для поддержания комфортной круглогодичной температуры советуем тщательно подойти к выбору утеплителя для стен дома-шалаша.
Часто архитектурную форму дома относят к минусам, утверждая, что наклонность стен препятствует нормальному расположению мебели. Но современные дизайнерские идеи решают эту проблему быстро и легко, одновременно предоставляя шанс обустроить пространство авторской мебелью. Если дом-шалаш имеет два этажа, отличным вариантом становится расположение мебели под лестницей. Такой способ помогает сэкономить полезное пространство.
Еще одним минусом считают большие затраты на кровельный материал. Но следует учитывать, что качественная кровля продлит жизнь коттеджа и стоимость большая площадь кровли, компенсируется отсутствием боковых стен. Дом-шалаш, построенный с использованием высококачественных материалов, может выстоять 70 и даже 100 лет.
Современный транспортный контейнер для дома из переработанных материалов






Жизнь за пределами сети не должна означать отсутствие стиля или комфорта, и одна из величайших вещей при перевозке контейнерных домов заключается в том, что они способствуют и поощряют идею свободы жить где угодно и уметь делать это стильно. Архитектор и строитель TY Kelley построил свой собственный контейнерный дом и прекрасно поработал над тем, чтобы он выглядел гладким и современным. Дом довольно маленький, но имеет большой характер. Он имеет план спальни с одной спальней, одной ванной комнатой, остекленный задний фасад и множество элементов ручной работы и классных деталей, включая душ на открытом воздухе, дровяную печь и яркую цветовую палитру.
Contanium лесной отступление








Если вам интересно поэкспериментировать с жизнью в контейнере для хранения, просто чтобы почувствовать его, вы можете арендовать дом для содержания, который находится в Согерти, штат Нью-Йорк. Это очаровательная маленькая каюта, размещенная в транспортном контейнере. Внутри есть зона отдыха с дровяной печью и удобным диваном-кроватью, мини-кухня со всеми основными приборами и функциями, а также множество интересных функций, таких как письменный стол, проигрыватель, площадка для йоги, гидромассажная ванна и даже гамак и костровая яма снаружи. Вы можете арендовать это через Aibnb.
Шаг 10: советы / неудачи
Советы / Опыт неудач
Заключение
В целом проект получился таким, каким я его себе представлял. Этот проект занял у меня 3-4 полных дня, из которых в моем расписании было 3-4 субботы и воскресенья. Было много проблем, но я действительно многое узнал о производстве дерева и новых методах садоводства. К тому же у меня теперь есть милый проект, которым я могу похвастаться.:П
Неудачи
- Столярный клей не заполняет гигантские дыры. Мы пробовали заклеить заднюю часть отверстия и залить столярным клеем. Проблема, клей высыхал вечно. После высыхания мы удалили ленту, и весь клей со стороны ленты вылился. Столярный клей попал повсюду на траве и поддоне. Это был такой беспорядок, мы так расстроились, что оставили сушиться. Так как он находился внутри поддона, мы не стали его ремонтировать. На поддоне было так много клея, что некоторые пятна мы заново отшлифовали.
- Я должен был добавить камни перед тем, как начать сажать суккулент, а не наоборот. Не знаю, о чем я думал в то время, но добавление камней в мусорное ведро после того, как суккуленты были посажены на место, было кошмаром. Большинство моих суккулентов было раздавлено камнями. В моделях, похожих на цветы, между педалями было так много камней, что их было так сложно удалить.
Предложение и идеи по улучшению
- Раскрашивайте валиком, а не кистью. Это поможет значительно ускорить процесс. Используйте кисти, чтобы закрасить небольшую область.
- Купите настоящую шпатлевку для дерева вместо того, чтобы пытаться использовать столярный клей для заполнения больших отверстий.
- Плоскогубцы и ломы необходимы для снятия крупных массивных промышленных скоб.
- Для вертикального огорода обязательно используйте почву для ящиков для цветов. В прошлом я совершил ошибку из-за того, что не читал, и в итоге использовал садовую почву вместо почвы для ящиков с цветочными горшками. В итоге в ящиках с кашпо оказалось так много сорняков и травы, и это было неинтересно, так что не делайте той же ошибки. Поместите камни в мусорные ведра, прежде чем сажать какие-либо растения.
- Для вертикального огорода я бы рекомендовал покрыть верхнюю поверхность мульчей вместо камней. Мульча определенно поможет сохранить воду, особенно в летний сезон.
С чего начать составление проекта
Для того чтобы получить крепкий и красивый летний домик на садовом участке, платить большие деньги совсем не обязательно. Его можно построить своими собственными силами, если заранее тщательно изучить некоторые проекты садовых домов и процесс их составления.
- Учтите максимальное количество людей, которые будут проживать в летнем домике, а также их требования к условиям проживания.
- Помните, что особенности проекта домика напрямую зависят от рельефа и месторасположения вашего садового участка, направление ветров, месторасположение самого домика.
- Подумайте, будет ли удобным и необходимым подведение к домику тех или иных коммуникаций: канализация, вода, свет.
- Выберите стиль интерьера вашего будущего сооружения. Если вы хотите самостоятельно изготовить некоторые предметы мебели, то вам следует заранее обзавестись подходящими инструментами.
- Определите функциональное назначение постройки. Летнее помещение для отдыха вполне может обойтись без погреба и кухни, а домик для хранения инвентаря и урожая должен включать в себя подсобные помещения и кладовку.




































