На что обратить внимание при выборе
Инсталляции под унитаз продаются как в комплекте с чашей, так и отдельно. Проще, естественно, купить все в комплекте. Тогда все размеры точно будут совпадать. Если чаша уже имеется, необходимо будет смотреть на габариты рамы и расстояние между крепежными элементами — оно должно совпадать с монтажными отверстиями в унитазе.
Очень полезно, если рама имеет возможность регулировки по высоте — можно выставить чашу на нужный именно вам уровень
Обратите внимание также на тип окраски. Лучший вариант — порошковая окраска
Она надежна, создает жесткую долговечную пленку, которая хорошо держится на металле. Все остальные типы краски хуже держаться.
Размеры инсталляции Grohe Rapid Sl (Германия)
При выборе инсталляции для унитаза стоит обратить внимание на комплектацию. Обычно вместе с рамой идут элементы крепления — для подвески унитаза, арматура для фиксации канализационных и водопроводных труб
Некоторые фирмы в базовую комплектацию также включают бачок и кнопку слива. Слив, кстати, может быть двухрежимным. Он более экономный, так как при нажатии большой кнопки сливается 6-9 литров, малой — всего 3-4 литра воды. Хорошо если слив регулируемый — объем спускаемой воды можно подстроить под конкретную форму унитаза.
Какой из типов инсталляций под унитаз и биде лучше? Более надежной считается рамная конструкция — в ней обычно используются более толстый металл, но и стоит она дороже
В любом случае, при выборе рамы для подвесного унитаза обращайте внимание на прочность конструкции — она не должна шататься, ее элементы не должны прогибаться. Осмотрите сварные швы и качество окраски — не должно быть даже небольших огрехов
И немного о производителях. Лучшими считаются инсталляции для унитаза произведенные в Германии и Италии. Но их сантехника дорогая. Не хуже качеством оборудование для ванных комнат и туалетов делают в Чехии и Болгарии, а ценовой диапазон на их изделия — средний. Наиболее дешевые инсталляции и подвесные унитазы — китайские, но с ними связываться рискованно — могут работать нормально, а могут быстро выйти из строя.
Как выбрать инсталляцию для подвесного унитаза, чтобы ее размеры подошли для конкретного помещения
 
Как уже писалось выше, при наличии в санузле капитальной стены лучше всего использовать блочную систему. Но если такой возможности нет, то остается рамная конструкция. Она более заметная, но при этом и надежная.
Если в помещении совсем мало места, рассмотрите вариант угловой рамной инсталляции. Благодаря ей вы сможете поместить унитаз в угол, где он совсем не будет мешать.
Кроме этого, нужно учитывать и некоторые дополнительные требования к размерам:
- Расстояние от края унитаза до стены, находящейся впереди него, должно быть не меньше 60 см.
- От центра прибора в каждую сторону также должно быть не менее 60 сантиметров.
Как выбирать инсталляцию
При планировании ремонта ванной комнаты необходимо заранее разобраться в устройстве и особенностях конструкций.
Для туалета
При монтаже инсталляции учитывают материалы, используемые в производстве сантехники:
- стекло;
- керамика;
- полимерные смеси;
- искусственный камень.
Керамические чаши считаются традиционным выбором, их чаще устанавливают. Сантехника обладает устойчивостью к чистящим средствам и долговечна.
Перед покупкой инсталляции и унитаза учитывают детали:
- Тип стены под монтаж конструкции. Для крепления на несущей перегородке выбирают любую модель. Для установки на стене из хрупких материалов подходит рама с ножками.
- Чаша, приобретенная отдельно от конструкции, все равно подойдет, потому что в раме предусмотрено несколько отверстий.
- Звукоизолирующие прокладки обеспечат возможность не слышать шума воды, набирающейся в резервуар.
- Клавишу слива лучше приобретать отдельно, т. к. можно выбирать любую на свой вкус.
- Покупка запасных частей позволит легко их заменить при поломке.
Для раковины
Системы для умывальника отличаются способом монтажа и бывают:
- Напольные — комплектуются фиксаторами крепежа к полу.
- Настенные конфигурации устанавливаются на капитальной стене или жесткой перегородке.
Выделяются виды конструкций по типу смесителя:
- классическая предполагает монтаж раковины со встроенным смесителем;
- вариант размещения, когда углы установки располагаются сверху — рама нужна для настенного смесителя;
- инсталляция без деталей подключения устанавливается чаще, позволяет проводить монтаж в удобном месте.
Распространенные габариты рамы для раковины: высота 35-130 см, ширина 35-50 см, глубина — 7,5 см.
Советы по подвесному оборудованию
Чтобы установить и смонтировать подвесную конструкцию вам понадобятся:
Система инсталляции. На выбор варианта влияет материал и прочность стен: при гипсокартонных перегородках подойдет только рамная модель
 Также уделите особое внимание месту расположения установки;
 Подвесная чаша. Она идет сразу с крышкой
Также заранее уточните насчет комплектации и наличия крепежа с переходников, которые потребуются позже. Если они не идут сразу в наборе, то придется приобрести их отдельно. Лучше всего брать все от одной фирмы;
 Бачок и смывная клавиша. Покупаются отдельно в том случае, если не идут сразу в наборе;
 Прокладки для звукоизоляции. Нужны для обеспечения шумоизоляции.
Варианты расположения унитазов
Особенности интерьера, формы и размеры помещения под сантехнику диктуют выбор для расположения конструкции.
Конструкция в помещении может монтироваться по-разному:
- Стандартным способом. Если крепить инсталляцию к стене, то приобретают рамный либо навесной каркас.
- Расположение, которое предполагает установку с обеих сторон стены. Для такого расположения выбирают объемное устройство, на которое комплектующие детали сантехники свободно прикрепятся по обе стороны перегородки. Такое расположение встречается в деревянных перекрытиях дач, загородных хозяйств.
- Угловое расположение системы применяется в помещениях с малыми габаритами.
Два способа монтажа:
- При помощи углового модуля для монтажа.
- При помощи обычного каркаса, купив крепления, подходящие для угловой конструкции.
Как выбрать инсталляцию для унитаза
При выборе оборудования рекомендуется оценить совместимость с унитазом и допустимую нагрузку. Стоит разобраться в особенностях крепления, сравнить у понравившихся моделей объёмы смывного бачка и срок гарантии производителя. Это позволит купить систему, которая будет соответствовать требования покупателя и не доставит проблем при монтаже.
Совместимость с унитазом
Не всегда производители предлагают инсталляцию в комплекте с унитазом. Покупатели могут выбрать опорную конструкцию одного бренда, а сантехнику – другой компании. При этом оборудование может быть в разных ценовых категориях. Главный критерий совместимости – расстояние между крепёжными шпильками. Есть два размера – 180 и 230 мм. Если на раме есть отверстия под оба стандарта, то установить на ней можно любой подвесной унитаз.
Допустимая нагрузка
Конструкция может быть рамной или блоковой. Рама опирается на пол, на перекрытие приходится основная нагрузка. Такое оборудование может выдержать вес в 400 кг. Этого запаса прочности достаточно для надёжной эксплуатации подвесной системы. Блоковые конструкции фиксируются только к стене. В этом случае нагрузка лимитируется анкерами и прочностью материалов перегородки. Такие модели рассчитаны на вес 150-200 кг.
Срок гарантии
Бесшумная инсталляция для унитаза прячется за гипсокартонной конструкцией, на которую укладывается керамическая плитка. Доступа к раме нет. Пользователь не может визуально оценить её состояние. В этой ситуации остаётся полагаться на срок гарантии от производителя. ТОП компании используют качественную, толстую сталь, антикоррозийную защиту, прочный пластик и надёжную арматуру. Это даёт возможность гарантировать покупателю, что оборудование прослужит более 25 лет.
Крепление
В зависимости от особенностей конструкции монтаж может производиться к несущей стене, к боковым направляющим перегородки и к полу. Для крепления используют нержавеющие анкера. Самый надёжный монтаж – к стене и полу. Такая система позволяет равномерно распределить нагрузку. Боковой монтаж актуален при перепланировках, когда помещение меняет площадь, а перегородки делают из гипсокартона. В этой ситуации крепление выполняется к оцинкованному профилю направляющих ГКЛ.
Объем смывного бачка.
Система комплектуется пластиковым бачком, который отличается от санфаянса небольшой шириной. Тонкая инсталляция для унитаза может вмещать от 6 до 10 литров воды. Для экономичного слива достаточно 3 л. Для полного – от 4,5 до 7,5 литров. Оптимальный объём зависит от формы дна унитаза. Пологое основание потребует больше воды для поддержания чистоты.
Что следует знать перед монтажом
В процессе покупки желательно выбирать только высококачественную сантехнику. Однако даже это не всегда предотвратит поломку. Главным недостатком скрытых коммуникаций является то, что всегда существует вероятность разгерметизации соединения труб, что подразумевает необходимость ремонта.
Смотреть видео
Если это произойдет, владелец квартиры не сразу заметит поломку, а к тому времени, когда протечка будет обнаружена, вода сможет залить соседскую квартиру. Если свободный доступ к внутреннему содержимому отсутствует, отремонтировать систему без демонтажа элементов будет очень затруднительно.
Чтобы свести вероятность подобной проблемы к минимуму, рекомендуется приобретать сантехнические приборы и крепежи только у проверенных производителей. Однако за качество потребуется платить, стоимость моделей от всемирно известных производителей достаточно высокая.
Профессионалы также рекомендуют использовать трубопровод без разъемных стыков, которые способны разгерметизироваться. Лучшим выбором являются трубы из полипропилена, части которых нагреваются и соединяются в единую не разборную конструкцию.
Подобный подход позволит минимизировать риск протечки. Если все-таки необходимо применять металлопластиковый водопровод, желательно устанавливать пресс-фитинги. Они считаются наиболее надежными из всех разновидностей фитингов.
Также рекомендуется уделить время выбору сливной кнопки. На рынке представлены многочисленные варианты, подходящие под любой дизайн интерьера. Если поискать, можно найти деталь, которая идеально соответствует стилю помещения. Помимо обыкновенных кнопок механического вида, продаются модели с пневматическим механизмом.
Их отличие от механических состоит в том, что действие на сливной клапан осуществляется не с помощью металлической тяги, а посредством смены воздушного давления. Преимущество пневматического механизма – допускается установка подобной кнопки в любое место.
Также существуют кнопки для слива, которые позволяют экономить воду при смывании. Они бывают таких видов:
- двудольные – состоят из двух компонентов. При нажатии на одну половину смывается только половина воды, на вторую – сливается вся вода в бачке;
- механизм «старт/стоп». При клике на кнопку «старт» начинается слив, а при нажатии на «стоп» – он прекращается. Этот подход помогает использующему туалет самостоятельно решать, какой объем воды будет вылит.
Таким образом, установка инсталляции может осуществляться своими руками. Процедура не слишком сложная, ее выполнит даже новичок в строительстве
Однако важно тщательно следовать инструкции и рекомендациям
Перед началом монтажа желательно знать высоту и другие размеры подвесного унитаза с инсталляцией, чтобы правильно подобрать место для установки.
Смотреть видео
Подготовительные работы
В процессе подготовительных работ закупаются материалы и инструменты, делается разметка под инсталляцию и вырубается ниша в капитальной стене под блочную инсталляцию. Последняя операция не всегда выполняется. Часто бачок устанавливается на поверхность стены. Но в этом случае лучше покупать рамную конструкцию.
Необходимые материалы и инструменты
Установка инсталляции унитаза своими руками невозможна без покупки комплекта инсталляции, вспомогательных материалов, а также приобретения набора инструментов. Последняя позиция не является сложной. Поэтому часть инструментов или все из них можно найти дома, у знакомых или соседей. В крайнем случае, взять в аренду у специализированных фирм.
В комплекте инсталляции должны быть:
- рамная конструкция;
- пластиковый бачок;
- впускной клапан;
- фитинг;
- элементы крепежа для рамы и унитаза;
- панель управления сливом с кнопкой (специалисты всю панель называют кнопкой или клавишей);
- колено смыва;
- труба слива;
- заглушки на трубы — устанавливаются на время монтажа, чтобы внутрь не попал мусор;
- шумоизолирующая (амортизирующая) прокладка под унитаз;
- чаша навесного унитаза;
- стульчак;
- крышка унитаза.
Кроме этого, потребуются вспомогательные материалы:
- труба для подключения бачка к водопроводу;
- герметик на основе силикона для изоляции соединений труб смыва между собой, унитазом и канализационным стояком;
- льноволокно или фум-лента для изоляции резьбы на фитингах.
Из инструментов потребуются:
- перфоратор с победитовыми или алмазными сверлами для бетона или кирпича;
- молоток;
- набор гаечных ключей;

- разводной (газовый) ключ;
- нивелир;

- отвес;
- шуруповерт или отвертки;
- строительный нож;
- рулетка;
- строительный уголок;
- маркер или простой карандаш (для строителей);
- болгарка с отрезным кругом или ножовка по металлу.
Разметка стены под инсталляцию
Правильно поставить инсталляцию без предварительной разметки теоретически можно, практически же — очень сложно.
Поэтому необходимо вооружится рулеткой, карандашом, отвесом и длинной ровной рейкой, а лучше правилом и нанести на стену размеры для установки инсталляция для унитаза: вертикальную линию, которая будет служить осью для конструкции подвесного унитаза и точки крепления рамы. Здесь есть несколько вариантов установки, а, следовательно, и несколько вариантов определения осевой линии:
- В отдельном санузле устанавливается только унитаз. В этом случае вертикальная линия наносится строго по центру стены, около которой будет стоять инсталляция.
- Рядом с унитазом планируется установить биде. Тогда две оси, одна — для рамы унитаза, вторая — биде, должны поделить стену на три равные части. Это оптимальный вариант, но не единственный. При длинной стене пропорции могут быть нарушены при сохранении минимального расстояния между чашами унитаза и биде в 50 см.
- В совмещенном санузле вертикаль чертится по центру выбранного места. Но при этом нужно выполнить одно правило: от смежной стены рама инсталляции должна находиться минимум на расстоянии 13,5 мм. Тогда осевая линия расположится от боковой стены на расстоянии ½ ширины инсталляции +13,5 мм.
После нанесения вертикали определяется место расположения панели слива. Она должна находиться на высоте 1 м от финишной отделки пола: плитки, ламината, паркета или линолеума
Поэтому нужно принимать во внимание, на что устанавливаются ноги конструкции: на основание пола или стяжку. В первом случае следует учесть толщину стяжки, плиточного клея и кафеля, если пол керамический, во втором — только клея и плитки. Дальше операции проводятся в следующей последовательности:
Дальше операции проводятся в следующей последовательности:
Дальше операции проводятся в следующей последовательности:
- находится верх конструкции;
- через точку верха рамы отбивается горизонтальная линия, после чего на ней делаются отметки монтажной ширины инсталляции;
- через отмеченные точки вниз по стене опускаются строго вертикальные линии, после чего они продолжаются по полу перпендикулярно стене и параллельно друг другу на расстояние до 25 см от поверхности стены;
- на линиях на полу определяется место установки ножек. Расчет ведется следующим образом: к глубине конструкции добавляется 1,5 см для зазора между бачком и стеной и 3,5 см, если канализационная труба уложена вдоль стены. Приведенные цифры применяются при ровных стенах. Если плоскость стены завалена или имеется кривизна, вносятся поправки;
- точки на полу соединяются;
- проверяется перпендикулярность нарисованной линии по отношению к смежной стене. Если нет 90o, точки расположения ног корректируются. При этом у ног рамы станет разное расстояние до стены. Здесь нужно сохранить у ближайшей к стене ноги реальную глубину конструкции с добавлением 1,5 см.
Популярные линейки
Изделие бренда “Grohe”
Надежность и качество инсталляции для унитаза во многом зависит от фирмы-производителя.
Grohe — это немецкая фирма сантехники, которая тщательно контролирует качество своей продукции. Надежность бренда, возможность комбинации сантехники из разных линеек подтверждается отзывами покупателей.
Geberit — швейцарский бренд, напрямую конкурирующий с Grohe. Когда-то именно с Geberit началось знакомство российских потребителей с инсталляциями для унитазов. По качеству и цене продукция примерно соответствует Grohe.
TECE — фирма предлагает немецкое оборудование премиум-класса по приемлемой цене. Все изделия сочетаются друг с другом. Монтаж простой. Любую инсталляция можно установить самостоятельно.
Viega — немецкий бренд, продукция которого рассчитана на массового потребителя. Если сравнивать с тройкой основных конкурентов, стоимость инсталляции при прочих равных условиях будет значительно ниже. При этом конструкции надежны и отвечают всем последним технологическим требованиям.
Cersanit — польский производитель, который заслужил место в топе, благодаря высокому качеству продукции и доступной цене. Это самый бюджетный вариант для российского потребителя.
Какими бывают размеры инсталляции для подвесного унитаза (общая информация)
Размеры инсталляции под унитаз включают в себя такие показатели:
- высоту. Обычно, этот показатель делают регулируемым. Это удается за счет двигающихся ножек и винтового зажима. Если инсталляция стандартная, то ее устанавливают на расстоянии от 1100мм до 1300мм от пола. Но есть и модели, которые располагаются не выше 850мм.
- ширину. Пределы для этого параметра – от 300 до 500мм. Размеры могут быть разными, но только в этом промежутке. Иногда инсталляции для подвесных унитазов имеют раздвижные крылья. С их помощью конструкция крепится между двух стен. В таком случае ширина всего изделия, конечно, будет больше.
- глубину. Обычно этот параметр находится в пределах от 145мм до 235мм. Но можно подыскать варианты поменьше. Ведь в таком случае не придется проделывать в стене большую нишу. Малые габариты станут плюсом и, если вы выбрали отделку гипсокартоном.
Кроме этого, производители часто указывают дополнительные размеры инсталляции для унитаза. Но обычно, эти параметры не особо влияют на процесс установки, поэтому с ними можно особо не заморачиваться.
Обычно стандартные размеры инсталляции для унитаза вполне подходят. Но если ваш санузел слишком узкий или наоборот обширный, позволяющий многое, то стоит приглядеться к оригинальным моделям с редкими параметрами.
Размеры, характерные для рамной системы
Такая система для удерживания подвесного унитаза выглядит как каркас с отверстиями, в которые вставляются крепежные элементы. Это оборудование очень выдержанное, на него можно прицепить груз в 500 килограмм. Такую инсталляцию крепят как на капитальные стены, так и на гипсокартон. Основание конструкции при этом утапливается в бетонный пол.
Рамная система может быть довольно объемной, но на эстетический вид санузла это никак не повлияет, так как все устройства будут скрыты в стене. За счет этого и сэкономится место в помещении.
Рамная инсталляция имеет примерно такие размеры:
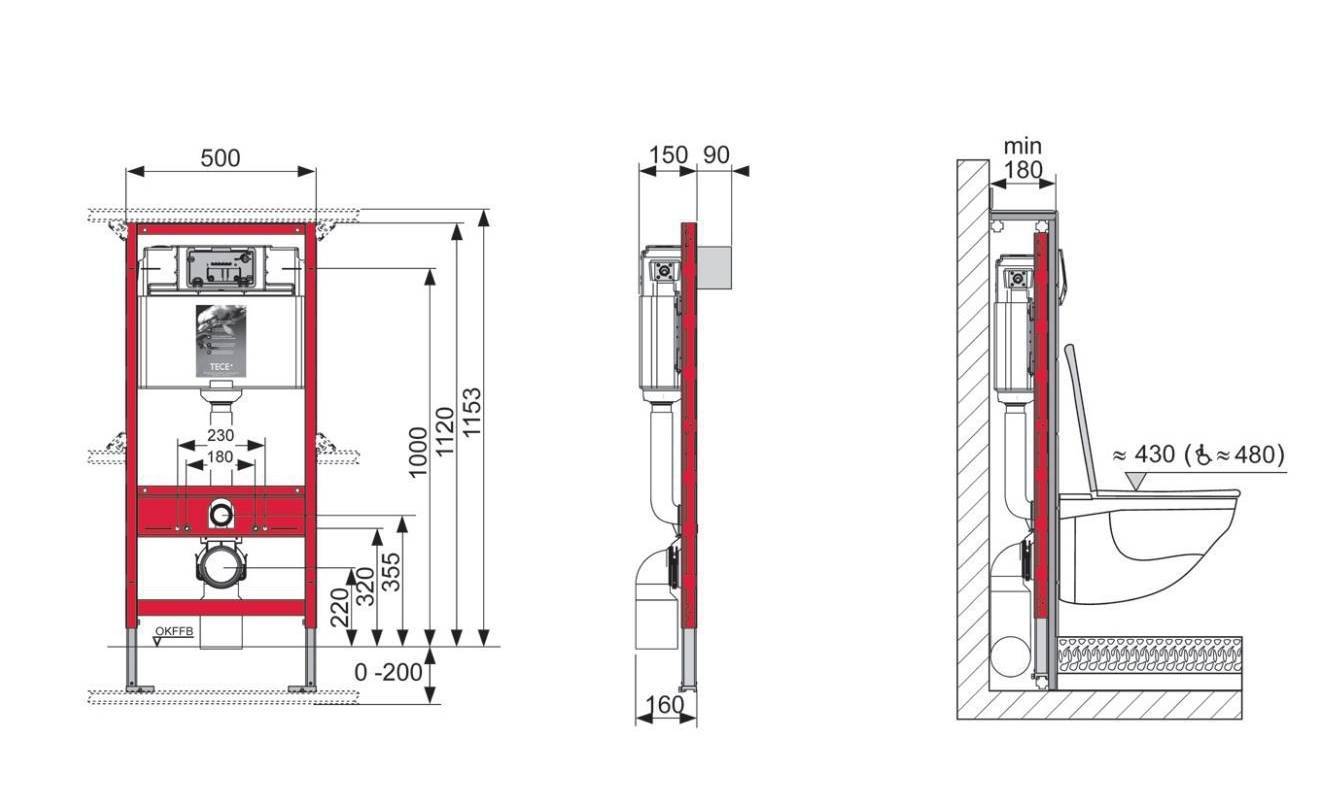
- Сливной бачок, встраиваемый в стену. Его толщина практически одинаковая у всех производителей и составляет 500 миллиметров в ширину и 90 миллиметров в глубину.
- Каркас рамы. Его обычно делают на 1020-1400 миллиметров в высоту. 200 миллиметров из этой длины будут заглублены в пол и забетонированы.
- Ширина рамной системы – 500 миллиметров.
- От пола должно быть расстояние до центра канализационной трубы чаши унитаза. Оно будет составлять 220 миллиметров.
- Отверстия для крепежных шпилек имеют объем в 320 мм.
- Расстояние между центрами отверстий для крепления составляет 180 и 230 миллиметров практически во всех моделях.
Зная эти параметры, вы сможете спланировать монтаж подвесного унитаза еще до начала работ.
Стоит отметить, что рамная система практически универсальна. Ее можно как встроить в стену, так прикрепить на ее поверхности. Иногда ее используют также в качестве основания для перегородки.
Размеры, характерные для блочной системы
Такая система инсталляции крепится на капитальные стены. Она имеет упрощенную конструкцию и состоит лишь из пластины и бачка. Обычно, все это почти полностью скрывается в специально проделанной нише, поэтому тонкие стенные перегородки в таком случае не годятся.
Размеры инсталляции данного типа для подвесного унитаза следующие:
- высота от 800 до 1000 миллиметров;
- глубина – примерно 100-150 миллиметров.
В инсталляции такого типа также имеются отверстия для вкручивания анкерных болтов. Но их практически никогда не размещают в центре. Обычно, они имеются по углам конструкции.
Размеры чаши подвесного унитаза
Визуально создается впечатление, что устройства подвесного типа имеют очень скромные габариты. Да, они выглядят миниатюрно за счет «парящей» конструкции. Но на самом деле размеры изделия не так и малы. Это следует учесть перед установкой.
- Длина. Если говорить о стандартных моделях, то она составляет 500-600 миллиметров. Это наиболее распространенный вариант. Но есть еще модели «мини» и «макси». Последние могут достигать длины в 700 миллиметров.
- Ширина. Она примерно одинакова во всех моделях и составляет 300-400 миллиметров.
- Высота чаши – от 300 до 400 миллиметров.
Стандартные размеры
  Стандартные размеры
Стандартные размеры
Разберемся в стандартных размерах инсталляций для унитаза. Это модели предназначены для монтажа в помещении, где нет существенных пространственных ограничений.
Их ставят в просторных туалетных комнатах и в небольших санузлах. Большинство каркасов относится к этой группе. Кроме них существуют еще угловые вариации, которые ставят в пустых углах небольших помещений. Особенно хороши они для совмещенных санузлов.
Выпускаются компактные модели, отличающиеся небольшой высотой. Их монтируют под окнами, около невысоких перегородок, т.п. Линейные модули разработаны для подвесного оборудования, расположенного в ряд.
Например, около унитаза находится биде или писсуар. Есть еще двусторонние модели, которые предназначены для закрепления сантехники с двух сторон. Размеры вариаций отличаются от стандарта.
Ширина конструкции
Ширина инсталляции для унитаза не зависит от ее типа. Рамные и блочные стандартные системы имеют одинаковые параметры 500-600 мм. Этого расстояния вполне достаточно для того, чтобы поместить внутрь каркаса смывной бачок.
Его габариты могут быть разными, но ширина не бывает больше 500 мм. Большая часть модулей, особенно блочных, выпускается с шириной 500 мм. Она подходит для сантехники любых габаритов.
Глубина

Глубина считается одной из самых важных и зависит от типа рамы. Так, блочные разновидности самые компактные. Их глубина колеблется от 100 до 150 мм. У рамных моделей это значение располагается в промежутке от 150 до 300 мм.
Таким образом, меньше места занимают навесные модули. Если в санузле несущая стена, выбирают блочную консоль. Так удастся выиграть порядка 15 см свободного пространства.
Глубина консоли определяет габариты и объем сливного бака, который располагается внутри рамы. В отличие от напольного аналога, у подвесной сантехники бачок плоский.
Его толщина — 90 мм, ширина — 500 м, высота — 550-600 мм. Такие габариты позволяют получить объем от 3 до 6 литров. Это немного меньше, чем стандартные характеристики от 6 до 9 литров.
При выборе надо понимать, что размеры инсталляционной системы влияют на объем бачка. Чтобы чаша оставалась чистой желательно, чтобы он был большим.
Высота
Еще одна важная характеристика — высота инсталляции для унитаза от пола. Рамные модели выше: от 1 020 до 1 400 мм. Навесные от 800 до 1 000 мм. Крепежи под шпильки, на которые крепится чаша, обычно располагаются на уровне 320 мм.
Это универсальная высота, удобная большинству людей. Но если нужно, ее изменяют при помощи регулируемых ножек. Канализационный патрубок крепится к чаше на уровне 220 мм от пола.
Расстояние между шпильками или, как его еще называют, межосевое, бывает 180 или 230 мм. Это стандартные величины, на которые рассчитаны большинство моделей подвесной сантехники.
Стандартные каркасы предназначены для закрепления трех типов чаш разных габаритов:
- Мини — до 540 мм длиной.
- Стандарт — 550-600 мм.
- Максимум — 700 мм.
Ширина всех разновидностей 300-400 мм, высота — 300-400 мм.



































